
| 賃料 | 予想金額:720,000〜740,000円程度 | 管理費 | 予想金額:0〜2,000円程度 |
| 礼金/敷金 | 非公開(アーカイブ) | 平米数 | 88.69㎡ |
| 初期費用概算(参考) | 目安:4,056,500〜4,156,500 円 | みなし賃料(月額・参考) | 790,344〜810,344 円 |
| 備考 | 本ページは過去募集のアーカイブです。表示の金額は周辺相場・過去募集を踏まえた参考レンジであり、実際の契約金額・条件ではありません。 | ||
※上記みなし賃料(月額)は仲介手数料割引・無料&キャッシュバックを加味した高級賃貸バイブル限定の金額です。一般的なみなし賃料とは異なります。
【建物ページ】愛宕グリーンヒルズフォレストタワーの詳細・最新空室はこちら▶▶選ばれる理由
仲介手数料無料・キャンペーン情報(毎月15名様限定)
〇仲介手数料割引キャンペーン
愛宕グリーンヒルズフォレストタワー 3203の口コミ・レビュー
愛宕グリーンヒルズフォレストタワー 3203。ここに足を踏み入れる瞬間から、貴方の生活はまるで映画のワンシーンのように輝き始めます。南向きの窓から差し込む温かな光が、あたかも優しい手で貴方を包み込むように、心地よい明るさをもたらします。88.69㎡の広がりは、貴方が望む全ての瞬間を受け入れられる余裕を持ち、洗練されたデザインは、日々の生活を上質なものに変えてくれるでしょう。
LDKは14.4帖、…愛宕グリーンヒルズフォレストタワー 3203。ここに足を踏み入れる瞬間から、貴方の生活はまるで映画のワンシーンのように輝き始めます。南向きの窓から差し込む温かな光が、あたかも優しい手で貴方を包み込むように、心地よい明るさをもたらします。88.69㎡の広がりは、貴方が望む全ての瞬間を受け入れられる余裕を持ち、洗練されたデザインは、日々の生活を上質なものに変えてくれるでしょう。
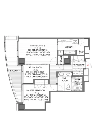
LDKは14.4帖、居心地の良さが際立っており、家族や友人との会話が弾む空間を演出します。この場所では、新しい料理に挑戦する楽しみや、大切な人との語らいが、まるで甘美なメロディのように響き渡ります。隣に佇む10.8帖の寝室は、静かな安らぎを与え、日々の喧噪から解放される特別な空間。ここでの眠りは、まるで星空の下で夢見るような至福の瞬間に変わります。そして、6.2帖のDENは、貴方のクリエイティブなアイデアを育む場所として、また、心落ち着く書斎や趣味のアトリエとして機能することでしょう。
愛宕グリーンヒルズフォレストタワー 3203は、設備面でも至れり尽くせりです。24時間管理される安全な空間は、心のどこかにある不安を振り払い、安心して生活するための基盤を作ります。オートロックシステムが貴方をしっかり守り、エレベーターで快適に部屋へと導いてくれる様は、まるで貴方専用の執事がいるかのようです。フィットネスやプール、ラウンジでの憩いも、貴方のライフスタイルに高貴さを加え、心身の健康を育むのに役立ちます。
そして、愛宕グリーンヒルズフォレストタワー 3203の魅力は、周辺の歴史と文化に根ざした場所にあることも忘れてはなりません。東京メトロ日比谷線の虎ノ門ヒルズ駅から徒歩わずか4分の距離は、日々の喧騒から一歩引いたところで、まるで都市のオアシスのように感じられます。周囲にはアートギャラリーやカフェがあり、感性を刺激される瞬間が日常に溢れているのです。街を歩くことで、心の中のイマジネーションがふくらみ、まるで画家がキャンバスに描くように、貴方自身の人生を彩ることができるでしょう。
愛宕グリーンヒルズフォレストタワー 3203。ここでの毎日は、貴方にとって特別な物語の始まりです。心の奥で感じる小さな幸せを育て、五感で楽しむ日々が、貴方を待っています。この場所で、貴方が描く夢を実現させる手助けができることを、心より願っています。
LDKは14.4帖、…愛宕グリーンヒルズフォレストタワー 3203。ここに足を踏み入れる瞬間から、貴方の生活はまるで映画のワンシーンのように輝き始めます。南向きの窓から差し込む温かな光が、あたかも優しい手で貴方を包み込むように、心地よい明るさをもたらします。88.69㎡の広がりは、貴方が望む全ての瞬間を受け入れられる余裕を持ち、洗練されたデザインは、日々の生活を上質なものに変えてくれるでしょう。
LDKは14.4帖、居心地の良さが際立っており、家族や友人との会話が弾む空間を演出します。この場所では、新しい料理に挑戦する楽しみや、大切な人との語らいが、まるで甘美なメロディのように響き渡ります。隣に佇む10.8帖の寝室は、静かな安らぎを与え、日々の喧噪から解放される特別な空間。ここでの眠りは、まるで星空の下で夢見るような至福の瞬間に変わります。そして、6.2帖のDENは、貴方のクリエイティブなアイデアを育む場所として、また、心落ち着く書斎や趣味のアトリエとして機能することでしょう。
愛宕グリーンヒルズフォレストタワー 3203は、設備面でも至れり尽くせりです。24時間管理される安全な空間は、心のどこかにある不安を振り払い、安心して生活するための基盤を作ります。オートロックシステムが貴方をしっかり守り、エレベーターで快適に部屋へと導いてくれる様は、まるで貴方専用の執事がいるかのようです。フィットネスやプール、ラウンジでの憩いも、貴方のライフスタイルに高貴さを加え、心身の健康を育むのに役立ちます。
そして、愛宕グリーンヒルズフォレストタワー 3203の魅力は、周辺の歴史と文化に根ざした場所にあることも忘れてはなりません。東京メトロ日比谷線の虎ノ門ヒルズ駅から徒歩わずか4分の距離は、日々の喧騒から一歩引いたところで、まるで都市のオアシスのように感じられます。周囲にはアートギャラリーやカフェがあり、感性を刺激される瞬間が日常に溢れているのです。街を歩くことで、心の中のイマジネーションがふくらみ、まるで画家がキャンバスに描くように、貴方自身の人生を彩ることができるでしょう。
愛宕グリーンヒルズフォレストタワー 3203。ここでの毎日は、貴方にとって特別な物語の始まりです。心の奥で感じる小さな幸せを育て、五感で楽しむ日々が、貴方を待っています。この場所で、貴方が描く夢を実現させる手助けができることを、心より願っています。
バイブルスコア
バイブルスコア: 21.4
平均的なスコアです。
※バイブルスコア詳細はこちら
バイブルスコアとは独自のAI機械学習技術を利用した物件評価システムで、物件のおすすめ度を示します。最高得点は100点で、スコアが高いほど、よりおすすめの物件と評価されています。
写真
契約条件
| 賃料 | 予想金額:720,000〜740,000円程度 | 管理費 | 予想金額:0〜2,000円程度 |
| 礼金 | 非公開(アーカイブ) | 敷金 | 非公開(アーカイブ) |
| フリーレント | なし | 平米数 | 88.69㎡ |
| 間取り | 1LDK | 大型収納 | DEN |
| 契約期間 | 方角 | 南 | |
| 更新料 | 契約形態 | 定期借家契約 | |
| 取引態様 | 媒介 | 内見状況 | 入居中 |
| 入居時期 | 入居中 | SOHO・事務所 | |
| ペット | ペット可 | 間取り内訳 | LD=14.4J / BR=10.8J DEN=6.2 |
| キャンペーン情報・備考 | 本情報は賃料改定交渉の資料作成、収益物件の利回り試算、周辺エリアや最寄り駅の坪単価分析、次回募集開始時期の予測などにご活用いただけます。 | ||
※「どの不動産に頼めばいいのか分からない」「信頼できる営業マンの話を聞きたい」「一番親切な会社と契約したい」とお悩みの方におすすめなのが「高級賃貸バイブル」です。
高級賃貸バイブルは業界10年以上の熟練スタッフ群がお客様ファーストで対応します。
下記ボタンから、まずは無料でご相談下さい。
※内覧をご希望の際には、どうぞ物件のエントランス前にてお待ち合わせくださいませ。ご内覧後は、同じ場所でお別れとさせていただきます。お客様のご都合に合わせたスムーズなご案内を心がけておりますので、ご質問等がございましたら何なりとお申し付けください。 物件概要
| 物件名 |
| 築年月 |
|
|---|---|---|---|
| 所在地 | |||
| 交通 | |||
| 総戸数 |
| 総階数 |
|
| 構造 |
| ||
地図
物件までの道のりは、「拡大地図を表示」をクリックしてナビ機能をご利用ください。
部屋設備

















建物設備

24時間管理

TVモニターホン

エレベーター

オートロック

バイク置場

フィットネス

フロントサービス

プール

ラウンジ

宅配ボックス

敷地内ゴミ置場

駐車場平置き

駐車場機械式

駐輪場
愛宕グリーンヒルズフォレストタワーの現在募集中のお部屋
- 愛宕グリーンヒルズフォレストタワー 2509 - 間取り: 1LDK - 賃料: 70万円
- 愛宕グリーンヒルズフォレストタワー 1604 - 間取り: 1LDK - 賃料: 58万円


