
| 賃料 | 予想金額:136,000〜156,000円程度 | 管理費 | 予想金額:10,000〜14,000円程度 |
| 礼金/敷金 | 非公開(アーカイブ) | 平米数 | 29.56㎡ |
| 初期費用概算(参考) | 目安:101,880〜201,880 円 | みなし賃料(月額・参考) | 148,123〜168,123 円 |
| 備考 | 本ページは過去募集のアーカイブです。表示の金額は周辺相場・過去募集を踏まえた参考レンジであり、実際の契約金額・条件ではありません。 | ||
※上記みなし賃料(月額)は仲介手数料割引・無料&キャッシュバックを加味した高級賃貸バイブル限定の金額です。一般的なみなし賃料とは異なります。
【建物ページ】セジョリ虎ノ門の詳細・最新空室はこちら▶▶選ばれる理由
仲介手数料無料・キャンペーン情報(毎月15名様限定)
〇引っ越しお祝い金105120円プレゼント(キャッシュバック)
〇仲介手数料無料キャンペーン
セジョリ虎ノ門 201の口コミ・レビュー
セジョリ虎ノ門 201、これはただの物件ではありません。まるで都会のオアシスとして、人々の心に寄り添う存在なのです。東京都港区虎ノ門3-22-8という立地にあるこの住まいは、皆さまを温かく迎え入れるために、美しさと機能性を兼ね備えています。南向きの窓からは、日差しがふんわりと差し込み、柔らかな光が室内を包み込みます。まるで自然のアートが、手のひらの中に広がっているかのように心が安らぎます。
エレ…セジョリ虎ノ門 201、これはただの物件ではありません。まるで都会のオアシスとして、人々の心に寄り添う存在なのです。東京都港区虎ノ門3-22-8という立地にあるこの住まいは、皆さまを温かく迎え入れるために、美しさと機能性を兼ね備えています。南向きの窓からは、日差しがふんわりと差し込み、柔らかな光が室内を包み込みます。まるで自然のアートが、手のひらの中に広がっているかのように心が安らぎます。
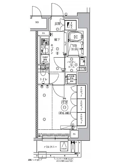
エレベーターで2階へ上がれば、あなたを待つのは、29.56㎡という空間が生み出す静かな歓喜です。この1Kの間取りは、6.4帖の優雅なRoomが、心の余裕と生活の快適さを提供します。部屋の中に一歩踏み入れると、温もりを感じる素材感が心に触れ、ふんわりとしたフローリングが足裏に心地よい刺激を与えます。思わず深呼吸をすると、周囲の喧騒を忘れさせるような、穏やかな空気が漂っています。
セジョリ虎ノ門 201は、特にデザイナーズとしての魅力が際立っています。洗練されたデザインが、どこを見ても息をのむ美しさを感じさせます。TVモニターホンによる安心感や、オートロック機能が施されていることで、心安らかに過ごせることをお約束します。また、敷地内のゴミ置場や駐輪場も、暮らしを快適にサポートしてくれる素晴らしい要素です。
この場所には、心を豊かにしてくれる文化が息づいています。近隣には歴史的な名所が点在し、散策をすれば、古き良き日本の面影が色濃く残るエリアが広がっています。東京メトロ日比谷線の神谷町駅まで徒歩4分という便利なアクセスも、あなたの生活スタイルを華やかに彩ります。朝の空気を吸い込むと、少しだけ贅沢な時間を味わえるのです。
想像してみてください。静かな夜、セジョリ虎ノ門 201の窓から見える華やかな夜景を眺めながら、友人を招いてのホームパーティー。冷たいシャンパンの泡音と、賑やかな笑い声が響き合い、まるで映画のワンシーンのようなひと時を過ごすことができるでしょう。ここがあなたの新たな舞台となり、日常が特別なストーリーに変わります。
セジョリ虎ノ門 201は、ただの住まいではなく、あなたの人生を豊かにする場所です。新たな生活がここから始まり、想い出が重なり合う瞬間をぜひ体験してください。あなたがこの地で出会う全ての人々と、心温まる物語が展開されることでしょう。この特別な空間で、あなたの人生をさらに美しく、色鮮やかに彩っていってください。
エレ…セジョリ虎ノ門 201、これはただの物件ではありません。まるで都会のオアシスとして、人々の心に寄り添う存在なのです。東京都港区虎ノ門3-22-8という立地にあるこの住まいは、皆さまを温かく迎え入れるために、美しさと機能性を兼ね備えています。南向きの窓からは、日差しがふんわりと差し込み、柔らかな光が室内を包み込みます。まるで自然のアートが、手のひらの中に広がっているかのように心が安らぎます。
エレベーターで2階へ上がれば、あなたを待つのは、29.56㎡という空間が生み出す静かな歓喜です。この1Kの間取りは、6.4帖の優雅なRoomが、心の余裕と生活の快適さを提供します。部屋の中に一歩踏み入れると、温もりを感じる素材感が心に触れ、ふんわりとしたフローリングが足裏に心地よい刺激を与えます。思わず深呼吸をすると、周囲の喧騒を忘れさせるような、穏やかな空気が漂っています。
セジョリ虎ノ門 201は、特にデザイナーズとしての魅力が際立っています。洗練されたデザインが、どこを見ても息をのむ美しさを感じさせます。TVモニターホンによる安心感や、オートロック機能が施されていることで、心安らかに過ごせることをお約束します。また、敷地内のゴミ置場や駐輪場も、暮らしを快適にサポートしてくれる素晴らしい要素です。
この場所には、心を豊かにしてくれる文化が息づいています。近隣には歴史的な名所が点在し、散策をすれば、古き良き日本の面影が色濃く残るエリアが広がっています。東京メトロ日比谷線の神谷町駅まで徒歩4分という便利なアクセスも、あなたの生活スタイルを華やかに彩ります。朝の空気を吸い込むと、少しだけ贅沢な時間を味わえるのです。
想像してみてください。静かな夜、セジョリ虎ノ門 201の窓から見える華やかな夜景を眺めながら、友人を招いてのホームパーティー。冷たいシャンパンの泡音と、賑やかな笑い声が響き合い、まるで映画のワンシーンのようなひと時を過ごすことができるでしょう。ここがあなたの新たな舞台となり、日常が特別なストーリーに変わります。
セジョリ虎ノ門 201は、ただの住まいではなく、あなたの人生を豊かにする場所です。新たな生活がここから始まり、想い出が重なり合う瞬間をぜひ体験してください。あなたがこの地で出会う全ての人々と、心温まる物語が展開されることでしょう。この特別な空間で、あなたの人生をさらに美しく、色鮮やかに彩っていってください。
バイブルスコア
バイブルスコア: 32.1
平均的なスコアです。
※バイブルスコア詳細はこちら
バイブルスコアとは独自のAI機械学習技術を利用した物件評価システムで、物件のおすすめ度を示します。最高得点は100点で、スコアが高いほど、よりおすすめの物件と評価されています。
写真
契約条件
| 賃料 | 予想金額:136,000〜156,000円程度 | 管理費 | 予想金額:10,000〜14,000円程度 |
| 礼金 | 非公開(アーカイブ) | 敷金 | 非公開(アーカイブ) |
| フリーレント | なし | 平米数 | 29.56㎡ |
| 間取り | 1K | 大型収納 | なし |
| 契約期間 | 2年 | 方角 | 南 |
| 更新料 | 1ヶ月 | 契約形態 | 普通賃貸借契約 |
| 取引態様 | 媒介 | 内見状況 | 入居中 |
| 入居時期 | 入居中 | SOHO・事務所 | 不可 |
| ペット | 不可 | 間取り内訳 | Room=6.4J |
| キャンペーン情報・備考 | 本情報は賃料改定交渉の資料作成、収益物件の利回り試算、周辺エリアや最寄り駅の坪単価分析、次回募集開始時期の予測などにご活用いただけます。 | ||
※「どの不動産に頼めばいいのか分からない」「信頼できる営業マンの話を聞きたい」「一番親切な会社と契約したい」とお悩みの方におすすめなのが「高級賃貸バイブル」です。
高級賃貸バイブルは業界10年以上の熟練スタッフ群がお客様ファーストで対応します。
下記ボタンから、まずは無料でご相談下さい。
※内覧をご希望の際には、どうぞ物件のエントランス前にてお待ち合わせくださいませ。ご内覧後は、同じ場所でお別れとさせていただきます。お客様のご都合に合わせたスムーズなご案内を心がけておりますので、ご質問等がございましたら何なりとお申し付けください。 物件概要
| 物件名 |
| 築年月 |
|
|---|---|---|---|
| 所在地 | |||
| 交通 | |||
| 総戸数 |
| 総階数 |
|
| 構造 |
| ||
地図
物件までの道のりは、「拡大地図を表示」をクリックしてナビ機能をご利用ください。
部屋設備















建物設備

TVモニターホン

エレベーター

オートロック

敷地内ゴミ置場

駐輪場
セジョリ虎ノ門の現在募集中のお部屋
- No rooms found for this property.


















