
| 賃料 | 予想金額:138,000〜158,000円程度 | 管理費 | 予想金額:10,000〜14,000円程度 |
| 礼金/敷金 | 非公開(アーカイブ) | 平米数 | 29.56㎡ |
| 初期費用概算(参考) | 目安:133,500〜233,500 円 | みなし賃料(月額・参考) | 153,823〜173,823 円 |
| 備考 | 本ページは過去募集のアーカイブです。表示の金額は周辺相場・過去募集を踏まえた参考レンジであり、実際の契約金額・条件ではありません。 | ||
※上記みなし賃料(月額)は仲介手数料割引・無料&キャッシュバックを加味した高級賃貸バイブル限定の金額です。一般的なみなし賃料とは異なります。
【建物ページ】セジョリ虎ノ門の詳細・最新空室はこちら▶▶選ばれる理由
仲介手数料無料・キャンペーン情報(毎月15名様限定)
〇フリーレント1か月キャンペーン
セジョリ虎ノ門 601の口コミ・レビュー
セジョリ虎ノ門 601。ここはただの住まいではなく、貴族のように暮らすための舞台です。港区の中心、虎ノ門の喧騒を少し離れた場所に佇むこの物件は、あなたが心を開くための最初の一歩として、静寂と優雅さをもたらしてくれるでしょう。
南の光が優しく差し込むこの601号室は、あなたの日常に喜びを与える特別な空間です。29.56㎡の専有面積には洗練されたデザインが息づき、まるで美術品のように美しく、居住者で…セジョリ虎ノ門 601。ここはただの住まいではなく、貴族のように暮らすための舞台です。港区の中心、虎ノ門の喧騒を少し離れた場所に佇むこの物件は、あなたが心を開くための最初の一歩として、静寂と優雅さをもたらしてくれるでしょう。
南の光が優しく差し込むこの601号室は、あなたの日常に喜びを与える特別な空間です。29.56㎡の専有面積には洗練されたデザインが息づき、まるで美術品のように美しく、居住者であるあなたを優雅に迎え入れます。たった1Kの部屋の中でも、あなた自身の物語を大いに広げることが可能です。
この部屋に足を踏み入れると、6.4帖の空間があなたを包み込みます。その瞬間、あなたはまるで映画の主人公になったかのように感じることでしょう。ベッドに腰を下ろし、窓から差し込む南の光が顔に触れると、それは柔らかな絹のように温かく、忙しい日常から解放してくれるひとときの祝福を与えてくれます。そして、ふわりと香るコーヒーの香りが、朝の目覚めをさらに特別なものにしてくれるでしょう。
このセジョリ虎ノ門 601の魅力は、ただ素敵な設備やデザインだけではありません。あなたの心を癒すオートロックシステムが、安らぎの空間を確保し、デザイナーズの息吹が漂う中で、何気ない日常がラグジュアリーなひとときに変わります。エレベーターに乗り込むたびに、あなたの心もまた高く舞い上がり、素敵な日常への扉が開かれるのです。
周りには東京メトロ日比谷線の神谷町駅が徒歩4分の距離にあり、活気あふれる都市の風を感じながらも、あなた自身の時間を重視した生活が実現します。この立地は、東京の歴史や文化が醸し出す独自の魅力を感じる場所でもあり、周囲にはアートギャラリーやスタイリッシュなカフェが点在しています。まるで街そのものが、あなたを迎え入れるために設計されたかのようです。
セジョリ虎ノ門 601での日々は、まさにあなた自身の物語を描き出すキャンバスです。自分自身を見つけ、新たな可能性に出会うための冒険がここから始まります。今、この瞬間から、あなたの特別な時間を過ごしてみませんか。日常の中に潜む美しさや楽しさを見つけ、心満たされる毎日が待っています。セジョリ虎ノ門 601で、あなたが求める最高のライフスタイルを手に入れてください。
南の光が優しく差し込むこの601号室は、あなたの日常に喜びを与える特別な空間です。29.56㎡の専有面積には洗練されたデザインが息づき、まるで美術品のように美しく、居住者で…セジョリ虎ノ門 601。ここはただの住まいではなく、貴族のように暮らすための舞台です。港区の中心、虎ノ門の喧騒を少し離れた場所に佇むこの物件は、あなたが心を開くための最初の一歩として、静寂と優雅さをもたらしてくれるでしょう。
南の光が優しく差し込むこの601号室は、あなたの日常に喜びを与える特別な空間です。29.56㎡の専有面積には洗練されたデザインが息づき、まるで美術品のように美しく、居住者であるあなたを優雅に迎え入れます。たった1Kの部屋の中でも、あなた自身の物語を大いに広げることが可能です。
この部屋に足を踏み入れると、6.4帖の空間があなたを包み込みます。その瞬間、あなたはまるで映画の主人公になったかのように感じることでしょう。ベッドに腰を下ろし、窓から差し込む南の光が顔に触れると、それは柔らかな絹のように温かく、忙しい日常から解放してくれるひとときの祝福を与えてくれます。そして、ふわりと香るコーヒーの香りが、朝の目覚めをさらに特別なものにしてくれるでしょう。
このセジョリ虎ノ門 601の魅力は、ただ素敵な設備やデザインだけではありません。あなたの心を癒すオートロックシステムが、安らぎの空間を確保し、デザイナーズの息吹が漂う中で、何気ない日常がラグジュアリーなひとときに変わります。エレベーターに乗り込むたびに、あなたの心もまた高く舞い上がり、素敵な日常への扉が開かれるのです。
周りには東京メトロ日比谷線の神谷町駅が徒歩4分の距離にあり、活気あふれる都市の風を感じながらも、あなた自身の時間を重視した生活が実現します。この立地は、東京の歴史や文化が醸し出す独自の魅力を感じる場所でもあり、周囲にはアートギャラリーやスタイリッシュなカフェが点在しています。まるで街そのものが、あなたを迎え入れるために設計されたかのようです。
セジョリ虎ノ門 601での日々は、まさにあなた自身の物語を描き出すキャンバスです。自分自身を見つけ、新たな可能性に出会うための冒険がここから始まります。今、この瞬間から、あなたの特別な時間を過ごしてみませんか。日常の中に潜む美しさや楽しさを見つけ、心満たされる毎日が待っています。セジョリ虎ノ門 601で、あなたが求める最高のライフスタイルを手に入れてください。
バイブルスコア
バイブルスコア: 26.9
平均的なスコアです。
※バイブルスコア詳細はこちら
バイブルスコアとは独自のAI機械学習技術を利用した物件評価システムで、物件のおすすめ度を示します。最高得点は100点で、スコアが高いほど、よりおすすめの物件と評価されています。
写真
契約条件
| 賃料 | 予想金額:138,000〜158,000円程度 | 管理費 | 予想金額:10,000〜14,000円程度 |
| 礼金 | 非公開(アーカイブ) | 敷金 | 非公開(アーカイブ) |
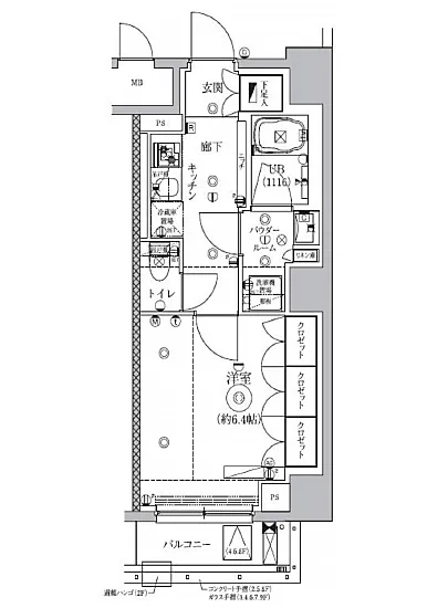
| フリーレント | 1.5ヶ月 | 平米数 | 29.56㎡ |
| 間取り | 1K | 大型収納 | |
| 契約期間 |
| 方角 | 南 |
| 更新料 | 契約形態 | 普通賃貸借契約 | |
| 取引態様 | 媒介 | 内見状況 | 入居中 |
| 入居時期 | 入居中 | SOHO・事務所 | |
| ペット | 間取り内訳 | Room=6.4J | |
| キャンペーン情報・備考 | 本情報は賃料改定交渉の資料作成、収益物件の利回り試算、周辺エリアや最寄り駅の坪単価分析、次回募集開始時期の予測などにご活用いただけます。 | ||
※「どの不動産に頼めばいいのか分からない」「信頼できる営業マンの話を聞きたい」「一番親切な会社と契約したい」とお悩みの方におすすめなのが「高級賃貸バイブル」です。
高級賃貸バイブルは業界10年以上の熟練スタッフ群がお客様ファーストで対応します。
下記ボタンから、まずは無料でご相談下さい。
※内覧をご希望の際には、どうぞ物件のエントランス前にてお待ち合わせくださいませ。ご内覧後は、同じ場所でお別れとさせていただきます。お客様のご都合に合わせたスムーズなご案内を心がけておりますので、ご質問等がございましたら何なりとお申し付けください。 物件概要
| 物件名 |
| 築年月 |
|
|---|---|---|---|
| 所在地 | |||
| 交通 | |||
| 総戸数 |
| 総階数 |
|
| 構造 |
| ||
地図
物件までの道のりは、「拡大地図を表示」をクリックしてナビ機能をご利用ください。
部屋設備















建物設備

TVモニターホン

エレベーター

オートロック

敷地内ゴミ置場

駐輪場
セジョリ虎ノ門の現在募集中のお部屋
- No rooms found for this property.

















