
| 賃料 | 予想金額:138,000〜158,000円程度 | 管理費 | 予想金額:10,000〜14,000円程度 |
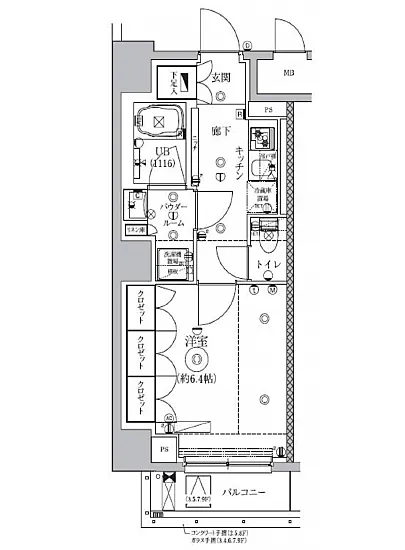
| 礼金/敷金 | 非公開(アーカイブ) | 平米数 | 29.56㎡ |
| 初期費用概算(参考) | 目安:282,250〜382,250 円 | みなし賃料(月額・参考) | 154,328〜174,328 円 |
| 備考 | 本ページは過去募集のアーカイブです。表示の金額は周辺相場・過去募集を踏まえた参考レンジであり、実際の契約金額・条件ではありません。 | ||
※上記みなし賃料(月額)は仲介手数料割引・無料&キャッシュバックを加味した高級賃貸バイブル限定の金額です。一般的なみなし賃料とは異なります。
【建物ページ】セジョリ虎ノ門の詳細・最新空室はこちら▶▶選ばれる理由
仲介手数料無料・キャンペーン情報(毎月15名様限定)
〇仲介手数料割引キャンペーン
セジョリ虎ノ門 702の口コミ・レビュー
セジョリ虎ノ門 702、あなたの新しい人生の舞台がここにあります。この洗練された空間は、ただの住まいではなく、生活を彩るアートピースです。南向きの明るい陽光が、まるで優しい手であなたを包み込むかのように、日々の暮らしに温かみを添えます。この702号室は、29.56㎡というコンパクトな空間の中に、贅沢なエッセンスを凝縮した1Kのお部屋です。
扉を開けた瞬間、あなたは洗練されたデザインに心を奪われる…セジョリ虎ノ門 702、あなたの新しい人生の舞台がここにあります。この洗練された空間は、ただの住まいではなく、生活を彩るアートピースです。南向きの明るい陽光が、まるで優しい手であなたを包み込むかのように、日々の暮らしに温かみを添えます。この702号室は、29.56㎡というコンパクトな空間の中に、贅沢なエッセンスを凝縮した1Kのお部屋です。
扉を開けた瞬間、あなたは洗練されたデザインに心を奪われることでしょう。6.4帖のRoomは、空間の流動感を感じることができる、優雅な舞踏会のホールのような印象を与えます。壁は穏やかな色合いで彩られ、まるで静かに物語を語りかけるかのようです。手触りの良い素材で仕上げられたインテリアは、心地よい温もりを感じさせ、家に帰るたびに安らぎをもたらしてくれます。
セジョリ虎ノ門 702に住まうあなたの日常は、まるで映画のワンシーンのように演出されます。ひんやりとした朝の空気を感じながら、コーヒーの香りを楽しむ瞬間は、まるで晴れた日の公園で朝食を取っているかのよう。窓から差し込む光が、穏やかにあなたの心をリフレッシュし、また新たな一日を迎える準備を整えてくれます。
東京都港区虎ノ門という立地は、歴史と文化が交錯する場所であり、周囲には数多くのアートスポットが存在します。少し足を延ばせば、豊かな歴史を持つ街並みが広がり、時の流れを感じながら散策することができます。文化的な刺激を受けることで、あなたの感性がさらに磨かれることでしょう。
この物件には、セキュリティが整ったオートロックやエレベーター、TVモニターホンといった安心の設備が整い、生活をより快適にサポートします。敷地内ゴミ置場や駐輪場も完備されており、忙しい日常の中でもスマートに暮らすことができます。日比谷線の神谷町駅から徒歩4分というアクセスの良さは、あなたの毎日の忙しさを軽減し、都会の喧騒から一歩離れた安息の地を提供します。
セジョリ虎ノ門 702は、ただの住まいではなく、あなたの新しい物語のスタート地点です。毎日が特別なひとときとなり、心と体が喜ぶ空間で過ごしましょう。あなたの帰りを優しく待つこの場所が、あなたにとっての安らぎの拠り所となりますように。セジョリ虎ノ門 702での新しい生活が、素晴らしい思い出に彩られることを心より願っています。あなたがここで描く未来のシーンは、まるで映画のエンディングのように美しいものになることでしょう。
扉を開けた瞬間、あなたは洗練されたデザインに心を奪われる…セジョリ虎ノ門 702、あなたの新しい人生の舞台がここにあります。この洗練された空間は、ただの住まいではなく、生活を彩るアートピースです。南向きの明るい陽光が、まるで優しい手であなたを包み込むかのように、日々の暮らしに温かみを添えます。この702号室は、29.56㎡というコンパクトな空間の中に、贅沢なエッセンスを凝縮した1Kのお部屋です。
扉を開けた瞬間、あなたは洗練されたデザインに心を奪われることでしょう。6.4帖のRoomは、空間の流動感を感じることができる、優雅な舞踏会のホールのような印象を与えます。壁は穏やかな色合いで彩られ、まるで静かに物語を語りかけるかのようです。手触りの良い素材で仕上げられたインテリアは、心地よい温もりを感じさせ、家に帰るたびに安らぎをもたらしてくれます。
セジョリ虎ノ門 702に住まうあなたの日常は、まるで映画のワンシーンのように演出されます。ひんやりとした朝の空気を感じながら、コーヒーの香りを楽しむ瞬間は、まるで晴れた日の公園で朝食を取っているかのよう。窓から差し込む光が、穏やかにあなたの心をリフレッシュし、また新たな一日を迎える準備を整えてくれます。
東京都港区虎ノ門という立地は、歴史と文化が交錯する場所であり、周囲には数多くのアートスポットが存在します。少し足を延ばせば、豊かな歴史を持つ街並みが広がり、時の流れを感じながら散策することができます。文化的な刺激を受けることで、あなたの感性がさらに磨かれることでしょう。
この物件には、セキュリティが整ったオートロックやエレベーター、TVモニターホンといった安心の設備が整い、生活をより快適にサポートします。敷地内ゴミ置場や駐輪場も完備されており、忙しい日常の中でもスマートに暮らすことができます。日比谷線の神谷町駅から徒歩4分というアクセスの良さは、あなたの毎日の忙しさを軽減し、都会の喧騒から一歩離れた安息の地を提供します。
セジョリ虎ノ門 702は、ただの住まいではなく、あなたの新しい物語のスタート地点です。毎日が特別なひとときとなり、心と体が喜ぶ空間で過ごしましょう。あなたの帰りを優しく待つこの場所が、あなたにとっての安らぎの拠り所となりますように。セジョリ虎ノ門 702での新しい生活が、素晴らしい思い出に彩られることを心より願っています。あなたがここで描く未来のシーンは、まるで映画のエンディングのように美しいものになることでしょう。
バイブルスコア
バイブルスコア: 26.5
平均的なスコアです。
※バイブルスコア詳細はこちら
バイブルスコアとは独自のAI機械学習技術を利用した物件評価システムで、物件のおすすめ度を示します。最高得点は100点で、スコアが高いほど、よりおすすめの物件と評価されています。
写真
契約条件
| 賃料 | 予想金額:138,000〜158,000円程度 | 管理費 | 予想金額:10,000〜14,000円程度 |
| 礼金 | 非公開(アーカイブ) | 敷金 | 非公開(アーカイブ) |
| フリーレント | なし | 平米数 | 29.56㎡ |
| 間取り | 1K | 大型収納 | |
| 契約期間 |
| 方角 | 南 |
| 更新料 | 契約形態 | 普通賃貸借契約 | |
| 取引態様 | 媒介 | 内見状況 | 入居中 |
| 入居時期 | 入居中 | SOHO・事務所 | |
| ペット | 間取り内訳 | Room=6.4J | |
| キャンペーン情報・備考 | 本情報は賃料改定交渉の資料作成、収益物件の利回り試算、周辺エリアや最寄り駅の坪単価分析、次回募集開始時期の予測などにご活用いただけます。 | ||
※「どの不動産に頼めばいいのか分からない」「信頼できる営業マンの話を聞きたい」「一番親切な会社と契約したい」とお悩みの方におすすめなのが「高級賃貸バイブル」です。
高級賃貸バイブルは業界10年以上の熟練スタッフ群がお客様ファーストで対応します。
下記ボタンから、まずは無料でご相談下さい。
※内覧をご希望の際には、どうぞ物件のエントランス前にてお待ち合わせくださいませ。ご内覧後は、同じ場所でお別れとさせていただきます。お客様のご都合に合わせたスムーズなご案内を心がけておりますので、ご質問等がございましたら何なりとお申し付けください。 物件概要
| 物件名 |
| 築年月 |
|
|---|---|---|---|
| 所在地 | |||
| 交通 | |||
| 総戸数 |
| 総階数 |
|
| 構造 |
| ||
地図
物件までの道のりは、「拡大地図を表示」をクリックしてナビ機能をご利用ください。
部屋設備















建物設備

TVモニターホン

エレベーター

オートロック

敷地内ゴミ置場

駐輪場
セジョリ虎ノ門の現在募集中のお部屋
- No rooms found for this property.

















