
| 賃料 | 予想金額:105,000〜125,000円程度 | 管理費 | 予想金額:8,000〜12,000円程度 |
| 礼金/敷金 | 非公開(アーカイブ) | 平米数 | 27.41㎡ |
| 初期費用概算(参考) | 目安:459,000〜559,000 円 | みなし賃料(月額・参考) | 123,208〜143,208 円 |
| 備考 | 本ページは過去募集のアーカイブです。表示の金額は周辺相場・過去募集を踏まえた参考レンジであり、実際の契約金額・条件ではありません。 | ||
※上記みなし賃料(月額)は仲介手数料割引・無料&キャッシュバックを加味した高級賃貸バイブル限定の金額です。一般的なみなし賃料とは異なります。
【建物ページ】グランドガーラ西麻布の詳細・最新空室はこちら▶▶選ばれる理由
仲介手数料無料・キャンペーン情報(毎月15名様限定)
〇仲介手数料割引キャンペーン
グランドガーラ西麻布 319の口コミ・レビュー
グランドガーラ西麻布 319は、まるで映画のセットから抜け出したかのような、洗練された空間を提供する物件です。この素晴らしい1Kの住まいは、27.41㎡という広さに、あなたの心の拠り所を見つけるための理想的な舞台を整えています。南向きの窓から差し込む柔らかな光は、まるで朝のコーヒーの香りを運ぶ使者のように、気持ちを豊かに、そして穏やかにしてくれます。
暮らしの主役となるのは、洋室9.4帖の空間で…グランドガーラ西麻布 319は、まるで映画のセットから抜け出したかのような、洗練された空間を提供する物件です。この素晴らしい1Kの住まいは、27.41㎡という広さに、あなたの心の拠り所を見つけるための理想的な舞台を整えています。南向きの窓から差し込む柔らかな光は、まるで朝のコーヒーの香りを運ぶ使者のように、気持ちを豊かに、そして穏やかにしてくれます。
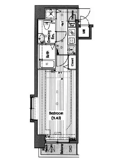
暮らしの主役となるのは、洋室9.4帖の空間です。このお部屋は、あなたの想いをのせるキャンバスです。朝日がカーテン越しに差し込み、ゴールドの光が壁面に舞い踊る様子は、まるで自然のアート作品のよう。ここで過ごす一日は、まるで新進気鋭のアーティストが生み出したプロットのように、あなたの心を刺激し、毎日の生活に彩りを与えます。
グランドガーラ西麻布 319のフロントサービスは、まるで専属の執事のように、あなたの日常を華やかに演出します。訪れる人々は、この静謐な空間に足を踏み入れるたび、都会の喧騒から解放され、心安らぐひとときを味わうのです。エレベーターで半階上がると、すぐにあなたの新たな生活が待っています。その先には、オートロックで守られた安全な空間が広がり、まるで秘密の隠れ家のような安心感が漂います。
周辺には、六本木の華やかな夜景や、伝統的な文化が息づく歴史的な街並みが広がっており、刺激的な日常があなたを待っています。東京メトロ日比谷線の六本木駅までの徒歩8分は、あなたの生活における小さな冒険であり、街の喧騒を感じながらも、心の奥に温もりをもたらす時間です。バイク置場や駐輪場も完備されており、自由な移動をサポートします。
グランドガーラ西麻布 319の毎日は、五感を刺激する感動で溢れています。エレガントな雰囲気の中で、愛しい人と共に美味しいディナーを楽しむ時間や、友人を招いてのホームパーティーで笑顔が溢れる瞬間、すべてがあなたの心に刻まれる特別な思い出となることでしょう。
この物件は、ただの住まいではありません。それは、心の故郷となる場所、そしてあなたの人生の物語が始まる舞台なのです。グランドガーラ西麻布 319での生活は、まるで一流の映画監督が心を込めて紡ぎだすラブストーリーのように、あなたの日々を輝かせてくれることでしょう。ここから始まる新しい章を、共に歩んでいきませんか。あなたの理想の暮らしが、ここには待っています。
暮らしの主役となるのは、洋室9.4帖の空間で…グランドガーラ西麻布 319は、まるで映画のセットから抜け出したかのような、洗練された空間を提供する物件です。この素晴らしい1Kの住まいは、27.41㎡という広さに、あなたの心の拠り所を見つけるための理想的な舞台を整えています。南向きの窓から差し込む柔らかな光は、まるで朝のコーヒーの香りを運ぶ使者のように、気持ちを豊かに、そして穏やかにしてくれます。
暮らしの主役となるのは、洋室9.4帖の空間です。このお部屋は、あなたの想いをのせるキャンバスです。朝日がカーテン越しに差し込み、ゴールドの光が壁面に舞い踊る様子は、まるで自然のアート作品のよう。ここで過ごす一日は、まるで新進気鋭のアーティストが生み出したプロットのように、あなたの心を刺激し、毎日の生活に彩りを与えます。
グランドガーラ西麻布 319のフロントサービスは、まるで専属の執事のように、あなたの日常を華やかに演出します。訪れる人々は、この静謐な空間に足を踏み入れるたび、都会の喧騒から解放され、心安らぐひとときを味わうのです。エレベーターで半階上がると、すぐにあなたの新たな生活が待っています。その先には、オートロックで守られた安全な空間が広がり、まるで秘密の隠れ家のような安心感が漂います。
周辺には、六本木の華やかな夜景や、伝統的な文化が息づく歴史的な街並みが広がっており、刺激的な日常があなたを待っています。東京メトロ日比谷線の六本木駅までの徒歩8分は、あなたの生活における小さな冒険であり、街の喧騒を感じながらも、心の奥に温もりをもたらす時間です。バイク置場や駐輪場も完備されており、自由な移動をサポートします。
グランドガーラ西麻布 319の毎日は、五感を刺激する感動で溢れています。エレガントな雰囲気の中で、愛しい人と共に美味しいディナーを楽しむ時間や、友人を招いてのホームパーティーで笑顔が溢れる瞬間、すべてがあなたの心に刻まれる特別な思い出となることでしょう。
この物件は、ただの住まいではありません。それは、心の故郷となる場所、そしてあなたの人生の物語が始まる舞台なのです。グランドガーラ西麻布 319での生活は、まるで一流の映画監督が心を込めて紡ぎだすラブストーリーのように、あなたの日々を輝かせてくれることでしょう。ここから始まる新しい章を、共に歩んでいきませんか。あなたの理想の暮らしが、ここには待っています。
バイブルスコア
バイブルスコア: 33.6
平均的なスコアです。
※バイブルスコア詳細はこちら
バイブルスコアとは独自のAI機械学習技術を利用した物件評価システムで、物件のおすすめ度を示します。最高得点は100点で、スコアが高いほど、よりおすすめの物件と評価されています。
写真
契約条件
| 賃料 | 予想金額:105,000〜125,000円程度 | 管理費 | 予想金額:8,000〜12,000円程度 |
| 礼金 | 非公開(アーカイブ) | 敷金 | 非公開(アーカイブ) |
| フリーレント | なし | 平米数 | 27.41㎡ |
| 間取り | 1K | 大型収納 | |
| 契約期間 |
| 方角 | 南 |
| 更新料 | 契約形態 | 普通賃貸借契約 | |
| 取引態様 | 媒介 | 内見状況 | 入居中 |
| 入居時期 | 入居中 | SOHO・事務所 | |
| ペット | 間取り内訳 | 洋室9.4畳 | |
| キャンペーン情報・備考 | 本情報は賃料改定交渉の資料作成、収益物件の利回り試算、周辺エリアや最寄り駅の坪単価分析、次回募集開始時期の予測などにご活用いただけます。 | ||
※「どの不動産に頼めばいいのか分からない」「信頼できる営業マンの話を聞きたい」「一番親切な会社と契約したい」とお悩みの方におすすめなのが「高級賃貸バイブル」です。
高級賃貸バイブルは業界10年以上の熟練スタッフ群がお客様ファーストで対応します。
下記ボタンから、まずは無料でご相談下さい。
※内覧をご希望の際には、どうぞ物件のエントランス前にてお待ち合わせくださいませ。ご内覧後は、同じ場所でお別れとさせていただきます。お客様のご都合に合わせたスムーズなご案内を心がけておりますので、ご質問等がございましたら何なりとお申し付けください。 物件概要
| 物件名 |
| 築年月 |
|
|---|---|---|---|
| 所在地 | |||
| 交通 | |||
| 総戸数 |
| 総階数 |
|
| 構造 |
| ||
地図
物件までの道のりは、「拡大地図を表示」をクリックしてナビ機能をご利用ください。
部屋設備












建物設備

TVモニターホン

エレベーター

オートロック

バイク置場

フロントサービス

宅配ボックス

敷地内ゴミ置場

駐車場平置き

駐車場機械式

駐輪場
グランドガーラ西麻布の現在募集中のお部屋
- No rooms found for this property.























