
| 賃料 | 予想金額:108,000〜128,000円程度 | 管理費 | 予想金額:10,000〜14,000円程度 |
| 礼金/敷金 | 非公開(アーカイブ) | 平米数 | 27.54㎡ |
| 初期費用概算(参考) | 目安:472,500〜572,500 円 | みなし賃料(月額・参考) | 128,427〜148,427 円 |
| 備考 | 本ページは過去募集のアーカイブです。表示の金額は周辺相場・過去募集を踏まえた参考レンジであり、実際の契約金額・条件ではありません。 | ||
※上記みなし賃料(月額)は仲介手数料割引・無料&キャッシュバックを加味した高級賃貸バイブル限定の金額です。一般的なみなし賃料とは異なります。
【建物ページ】グランドガーラ西麻布の詳細・最新空室はこちら▶▶選ばれる理由
仲介手数料無料・キャンペーン情報(毎月15名様限定)
〇仲介手数料割引キャンペーン
グランドガーラ西麻布 301の口コミ・レビュー
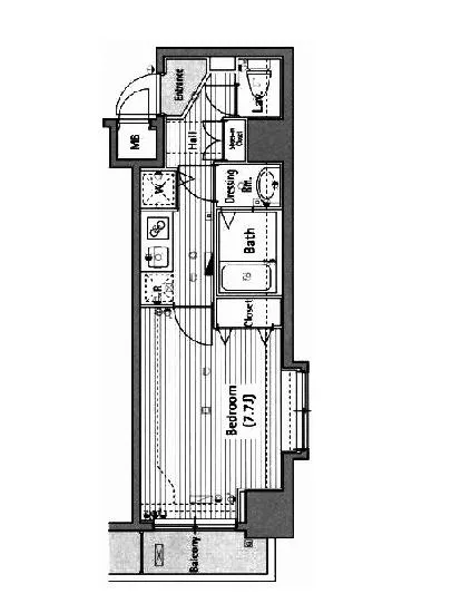
グランドガーラ西麻布 301は、まるで大都会の真ん中にひっそりと佇む宝石のようです。この特別な空間に足を踏み入れた瞬間、あなたはまるで洗練された映画の主人公になったかのような気分に包まれます。専有面積27.54㎡、1Kの間取りは、そのサイズを超えた広がりを与え、心地良い居場所を提供します。このお部屋は、きっとあなたの日常を豊かに彩ってくれることでしょう。
朝、一日の始まりを告げる柔らかな光が、東…グランドガーラ西麻布 301は、まるで大都会の真ん中にひっそりと佇む宝石のようです。この特別な空間に足を踏み入れた瞬間、あなたはまるで洗練された映画の主人公になったかのような気分に包まれます。専有面積27.54㎡、1Kの間取りは、そのサイズを超えた広がりを与え、心地良い居場所を提供します。このお部屋は、きっとあなたの日常を豊かに彩ってくれることでしょう。
朝、一日の始まりを告げる柔らかな光が、東向きの窓から届きます。その光の中で、あなたは優雅なコーヒーの香りに包まれながら、静かに目覚めることでしょう。新鮮な豆を挽く音が、静寂を破り、新たな一日の始まりを祝福します。キッチンから漂う焼きたてのトーストの香ばしい香りが、あなたをリビングへと誘います。洋室7.7帖のスペースは、あなたの好みに合わせて自由にアレンジできる無限の可能性を秘めています。
「グランドガーラ西麻布 301」があなたの生活に寄り添うことで、あなたの毎日はまるで名画のように彩られます。夜には、都会の喧騒を忘れさせてくれる穏やかな静けさの中で、映画を鑑賞したり、本を手にして静かな時間を過ごしたりすることができるのです。エレベーターでフロントサービスに迎えられる感覚は、まるで高級ホテルに宿泊しているかのような特別感を醸し出します。
周囲の歴史や文化、芸術と密接に結びつくこの場所は、あなたが散策することで新たな発見をもたらしてくれます。東京都港区西麻布は、アートギャラリーやスタイリッシュなカフェ、伝統ある料理店が点在し、あなたの感性を豊かに刺激してくれることでしょう。六本木駅への徒歩8分の距離は、アクセスの良さだけでなく、あなたを新たな出会いへと導いてくれます。
駐車場や駐輪場、宅配ボックスといった便利な設備が揃うことで、日常生活が一層快適に。オートロックで守られた空間で、安心して暮らせることも、この物件の大きな魅力の一つです。夕暮れ時、窓から見える街の風景は、まるで絵画のように美しく、その中に自分が溶け込んでいる感覚を味わうことが出来ます。
グランドガーラ西麻布 301は、ただの住まいではなく、あなたの人生に新たな物語を加えてくれる特別な場所です。あなたが新しい毎日を踏み出すその瞬間を、静かに見守りながら、心からの温もりを提供し続けることでしょう。ここでの暮らしは、まるで一つの芸術作品のように、煌びやかでありながら、あなたにぴったりと寄り添うことで、特別な時間を紡いでくれるのです。
朝、一日の始まりを告げる柔らかな光が、東…グランドガーラ西麻布 301は、まるで大都会の真ん中にひっそりと佇む宝石のようです。この特別な空間に足を踏み入れた瞬間、あなたはまるで洗練された映画の主人公になったかのような気分に包まれます。専有面積27.54㎡、1Kの間取りは、そのサイズを超えた広がりを与え、心地良い居場所を提供します。このお部屋は、きっとあなたの日常を豊かに彩ってくれることでしょう。
朝、一日の始まりを告げる柔らかな光が、東向きの窓から届きます。その光の中で、あなたは優雅なコーヒーの香りに包まれながら、静かに目覚めることでしょう。新鮮な豆を挽く音が、静寂を破り、新たな一日の始まりを祝福します。キッチンから漂う焼きたてのトーストの香ばしい香りが、あなたをリビングへと誘います。洋室7.7帖のスペースは、あなたの好みに合わせて自由にアレンジできる無限の可能性を秘めています。
「グランドガーラ西麻布 301」があなたの生活に寄り添うことで、あなたの毎日はまるで名画のように彩られます。夜には、都会の喧騒を忘れさせてくれる穏やかな静けさの中で、映画を鑑賞したり、本を手にして静かな時間を過ごしたりすることができるのです。エレベーターでフロントサービスに迎えられる感覚は、まるで高級ホテルに宿泊しているかのような特別感を醸し出します。
周囲の歴史や文化、芸術と密接に結びつくこの場所は、あなたが散策することで新たな発見をもたらしてくれます。東京都港区西麻布は、アートギャラリーやスタイリッシュなカフェ、伝統ある料理店が点在し、あなたの感性を豊かに刺激してくれることでしょう。六本木駅への徒歩8分の距離は、アクセスの良さだけでなく、あなたを新たな出会いへと導いてくれます。
駐車場や駐輪場、宅配ボックスといった便利な設備が揃うことで、日常生活が一層快適に。オートロックで守られた空間で、安心して暮らせることも、この物件の大きな魅力の一つです。夕暮れ時、窓から見える街の風景は、まるで絵画のように美しく、その中に自分が溶け込んでいる感覚を味わうことが出来ます。
グランドガーラ西麻布 301は、ただの住まいではなく、あなたの人生に新たな物語を加えてくれる特別な場所です。あなたが新しい毎日を踏み出すその瞬間を、静かに見守りながら、心からの温もりを提供し続けることでしょう。ここでの暮らしは、まるで一つの芸術作品のように、煌びやかでありながら、あなたにぴったりと寄り添うことで、特別な時間を紡いでくれるのです。
バイブルスコア
バイブルスコア: 30.2
平均的なスコアです。
※バイブルスコア詳細はこちら
バイブルスコアとは独自のAI機械学習技術を利用した物件評価システムで、物件のおすすめ度を示します。最高得点は100点で、スコアが高いほど、よりおすすめの物件と評価されています。
写真
契約条件
| 賃料 | 予想金額:108,000〜128,000円程度 | 管理費 | 予想金額:10,000〜14,000円程度 |
| 礼金 | 非公開(アーカイブ) | 敷金 | 非公開(アーカイブ) |
| フリーレント | なし | 平米数 | 27.54㎡ |
| 間取り | 1K | 大型収納 | |
| 契約期間 |
| 方角 | 東 |
| 更新料 | 契約形態 | 普通賃貸借契約 | |
| 取引態様 | 媒介 | 内見状況 | 入居中 |
| 入居時期 | 入居中 | SOHO・事務所 | |
| ペット | 間取り内訳 | 洋室:7.7 | |
| キャンペーン情報・備考 | 本情報は賃料改定交渉の資料作成、収益物件の利回り試算、周辺エリアや最寄り駅の坪単価分析、次回募集開始時期の予測などにご活用いただけます。 | ||
※「どの不動産に頼めばいいのか分からない」「信頼できる営業マンの話を聞きたい」「一番親切な会社と契約したい」とお悩みの方におすすめなのが「高級賃貸バイブル」です。
高級賃貸バイブルは業界10年以上の熟練スタッフ群がお客様ファーストで対応します。
下記ボタンから、まずは無料でご相談下さい。
※内覧をご希望の際には、どうぞ物件のエントランス前にてお待ち合わせくださいませ。ご内覧後は、同じ場所でお別れとさせていただきます。お客様のご都合に合わせたスムーズなご案内を心がけておりますので、ご質問等がございましたら何なりとお申し付けください。 物件概要
| 物件名 |
| 築年月 |
|
|---|---|---|---|
| 所在地 | |||
| 交通 | |||
| 総戸数 |
| 総階数 |
|
| 構造 |
| ||
地図
物件までの道のりは、「拡大地図を表示」をクリックしてナビ機能をご利用ください。
部屋設備












建物設備

TVモニターホン

エレベーター

オートロック

バイク置場

フロントサービス

宅配ボックス

敷地内ゴミ置場

駐車場平置き

駐車場機械式

駐輪場
グランドガーラ西麻布の現在募集中のお部屋
- No rooms found for this property.























