
| 賃料 | 予想金額:82,000〜102,000円程度 | 管理費 | 予想金額:8,000〜12,000円程度 |
| 礼金/敷金 | 非公開(アーカイブ) | 平米数 | 23.64㎡ |
| 初期費用概算(参考) | 目安:470,500〜570,500 円 | みなし賃料(月額・参考) | 100,927〜120,927 円 |
| 備考 | 本ページは過去募集のアーカイブです。表示の金額は周辺相場・過去募集を踏まえた参考レンジであり、実際の契約金額・条件ではありません。 | ||
※上記みなし賃料(月額)は仲介手数料割引・無料&キャッシュバックを加味した高級賃貸バイブル限定の金額です。一般的なみなし賃料とは異なります。
【建物ページ】グランドガーラ西麻布の詳細・最新空室はこちら▶▶選ばれる理由
仲介手数料無料・キャンペーン情報(毎月15名様限定)
〇仲介手数料割引キャンペーン
グランドガーラ西麻布 106の口コミ・レビュー
グランドガーラ西麻布 106。これはただのアドレスではなく、東京の魅力が凝縮された場所で、あなたの新しい物語が始まる舞台です。エレガントな外観が西麻布の街並みに溶け込み、その存在はまるで静謐なオーラをまとった貴族のよう。これから、グランドガーラ西麻布 106が語りかけてくる日常の素晴らしさをお感じいただきたいと思います。
この特別な空間は、専有面積23.64㎡の中に、あなたの生活の豊かさが詰まっ…グランドガーラ西麻布 106。これはただのアドレスではなく、東京の魅力が凝縮された場所で、あなたの新しい物語が始まる舞台です。エレガントな外観が西麻布の街並みに溶け込み、その存在はまるで静謐なオーラをまとった貴族のよう。これから、グランドガーラ西麻布 106が語りかけてくる日常の素晴らしさをお感じいただきたいと思います。
この特別な空間は、専有面積23.64㎡の中に、あなたの生活の豊かさが詰まっています。北向きの窓から差し込む光は、朝の光を優しく浴び、まるで夢の中にいるかのように心を和ませます。リビングに足を踏み入れると、6.5帖の広々とした洋室があなたを包み込み、膨らみのあるソファやお気に入りのアート作品が、あなたの個性を引き立てる空間へと変貌を遂げます。壁は語り、家具は響き、静かな時間が流れ始めるのです。
また、グランドガーラ西麻布 106は、生活の利便性も兼ね備えています。エレベーターやオートロック、さらにはフロントサービスが、毎日の暮らしを一層優雅に演出します。自宅にいるかのような安心感を与えてくれるのです。宅配ボックスに届いた大切な贈り物を受け取る瞬間、あなたの心はどれほど嬉しくなるでしょうか。日常の些細な出来事も、まるで映画の一場面のように美しく輝きます。
周辺には西麻布ならではの文化と歴史があります。六本木駅から徒歩8分の距離に広がるアートギャラリーや洗練されたレストラン。毎日が新しい発見の連続で、五感を刺激する体験が待っています。都会の喧騒を忘れさせてくれる静けさと、文化が息づく街の魅力を存分に味わってください。
あなたが迎える朝、カーテンを開けると、窓の外には美しい景色が広がります。目に映るのは、古き良き日本の面影が残る伝統的な街並みや、モダンなビル群。その全てが、あなたの心の中にストーリーを紡ぐきっかけとなることでしょう。生活を豊かに彩る香り、街の音、風の感触が、グランドガーラ西麻布 106での日々をより一層特別なものにしてくれます。
さあ、グランドガーラ西麻布 106に身を委ねて、あなた自身の物語を創り上げてください。ここはあなたの心の拠り所であり、永遠に続くアートの舞台です。すべての瞬間が、人生のひとコマとして輝き続けることでしょう。あなたを待つこの空間で、素晴らしい生活が始まることを心から願っています。
この特別な空間は、専有面積23.64㎡の中に、あなたの生活の豊かさが詰まっ…グランドガーラ西麻布 106。これはただのアドレスではなく、東京の魅力が凝縮された場所で、あなたの新しい物語が始まる舞台です。エレガントな外観が西麻布の街並みに溶け込み、その存在はまるで静謐なオーラをまとった貴族のよう。これから、グランドガーラ西麻布 106が語りかけてくる日常の素晴らしさをお感じいただきたいと思います。
この特別な空間は、専有面積23.64㎡の中に、あなたの生活の豊かさが詰まっています。北向きの窓から差し込む光は、朝の光を優しく浴び、まるで夢の中にいるかのように心を和ませます。リビングに足を踏み入れると、6.5帖の広々とした洋室があなたを包み込み、膨らみのあるソファやお気に入りのアート作品が、あなたの個性を引き立てる空間へと変貌を遂げます。壁は語り、家具は響き、静かな時間が流れ始めるのです。
また、グランドガーラ西麻布 106は、生活の利便性も兼ね備えています。エレベーターやオートロック、さらにはフロントサービスが、毎日の暮らしを一層優雅に演出します。自宅にいるかのような安心感を与えてくれるのです。宅配ボックスに届いた大切な贈り物を受け取る瞬間、あなたの心はどれほど嬉しくなるでしょうか。日常の些細な出来事も、まるで映画の一場面のように美しく輝きます。
周辺には西麻布ならではの文化と歴史があります。六本木駅から徒歩8分の距離に広がるアートギャラリーや洗練されたレストラン。毎日が新しい発見の連続で、五感を刺激する体験が待っています。都会の喧騒を忘れさせてくれる静けさと、文化が息づく街の魅力を存分に味わってください。
あなたが迎える朝、カーテンを開けると、窓の外には美しい景色が広がります。目に映るのは、古き良き日本の面影が残る伝統的な街並みや、モダンなビル群。その全てが、あなたの心の中にストーリーを紡ぐきっかけとなることでしょう。生活を豊かに彩る香り、街の音、風の感触が、グランドガーラ西麻布 106での日々をより一層特別なものにしてくれます。
さあ、グランドガーラ西麻布 106に身を委ねて、あなた自身の物語を創り上げてください。ここはあなたの心の拠り所であり、永遠に続くアートの舞台です。すべての瞬間が、人生のひとコマとして輝き続けることでしょう。あなたを待つこの空間で、素晴らしい生活が始まることを心から願っています。
バイブルスコア
バイブルスコア: 49
条件のいい物件です、引っ越しが2か月以内の場合は仮申し込みを検討すべき物件です。
※バイブルスコア詳細はこちら
バイブルスコアとは独自のAI機械学習技術を利用した物件評価システムで、物件のおすすめ度を示します。最高得点は100点で、スコアが高いほど、よりおすすめの物件と評価されています。
写真
契約条件
| 賃料 | 予想金額:82,000〜102,000円程度 | 管理費 | 予想金額:8,000〜12,000円程度 |
| 礼金 | 非公開(アーカイブ) | 敷金 | 非公開(アーカイブ) |
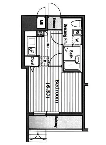
| フリーレント | なし | 平米数 | 23.64㎡ |
| 間取り | 1K | 大型収納 | |
| 契約期間 |
| 方角 | 北 |
| 更新料 | 契約形態 | 普通賃貸借契約 | |
| 取引態様 | 媒介 | 内見状況 | 入居中 |
| 入居時期 | 入居中 | SOHO・事務所 | |
| ペット | 間取り内訳 | 洋室:6.5畳 | |
| キャンペーン情報・備考 | 本情報は賃料改定交渉の資料作成、収益物件の利回り試算、周辺エリアや最寄り駅の坪単価分析、次回募集開始時期の予測などにご活用いただけます。 | ||
※「どの不動産に頼めばいいのか分からない」「信頼できる営業マンの話を聞きたい」「一番親切な会社と契約したい」とお悩みの方におすすめなのが「高級賃貸バイブル」です。
高級賃貸バイブルは業界10年以上の熟練スタッフ群がお客様ファーストで対応します。
下記ボタンから、まずは無料でご相談下さい。
※内覧をご希望の際には、どうぞ物件のエントランス前にてお待ち合わせくださいませ。ご内覧後は、同じ場所でお別れとさせていただきます。お客様のご都合に合わせたスムーズなご案内を心がけておりますので、ご質問等がございましたら何なりとお申し付けください。 物件概要
| 物件名 |
| 築年月 |
|
|---|---|---|---|
| 所在地 | |||
| 交通 | |||
| 総戸数 |
| 総階数 |
|
| 構造 |
| ||
地図
物件までの道のりは、「拡大地図を表示」をクリックしてナビ機能をご利用ください。
部屋設備












建物設備

TVモニターホン

エレベーター

オートロック

バイク置場

フロントサービス

宅配ボックス

敷地内ゴミ置場

駐車場平置き

駐車場機械式

駐輪場
グランドガーラ西麻布の現在募集中のお部屋
- No rooms found for this property.























