
| 賃料 | 予想金額:1,720,000〜1,740,000円程度 | 管理費 | 予想金額:0〜2,000円程度 |
| 礼金/敷金 | 非公開(アーカイブ) | 平米数 | 208.05㎡ |
| 初期費用概算(参考) | 目安:9,556,500〜9,656,500 円 | みなし賃料(月額・参考) | 1,884,094〜1,904,094 円 |
| 備考 | 本ページは過去募集のアーカイブです。表示の金額は周辺相場・過去募集を踏まえた参考レンジであり、実際の契約金額・条件ではありません。 | ||
※上記みなし賃料(月額)は仲介手数料割引・無料&キャッシュバックを加味した高級賃貸バイブル限定の金額です。一般的なみなし賃料とは異なります。
【建物ページ】The Upper Houseの詳細・最新空室はこちら▶▶選ばれる理由
仲介手数料無料・キャンペーン情報(毎月15名様限定)
〇仲介手数料割引キャンペーン
The Upper House 404の口コミ・レビュー
The Upper House 404は、まるで夢の中の絵画のように、洗練された空間が広がる特別な場所です。この物件は、東京都港区元麻布3-8-50に位置し、北東の方角に向かって開かれた窓からは、朝日がやさしく差し込むことで、心地よい光に包まれた毎日が約束されています。専有面積208.05㎡の贅沢な広さは、まるで自分だけのアートスタジオのように感じられることでしょう。
エレベーターの扉が開くと、…The Upper House 404は、まるで夢の中の絵画のように、洗練された空間が広がる特別な場所です。この物件は、東京都港区元麻布3-8-50に位置し、北東の方角に向かって開かれた窓からは、朝日がやさしく差し込むことで、心地よい光に包まれた毎日が約束されています。専有面積208.05㎡の贅沢な広さは、まるで自分だけのアートスタジオのように感じられることでしょう。
エレベーターの扉が開くと、あなたを迎えるのは、24時間管理のもと整然とした美しさを保つ空間。デザイナーズのセンスが光る内装は、まるで美術館の一角にいるかのような高級感を醸し出します。足を運んだ先には、LDK37.3帖の広々としたリビングが広がり、身を委ねると心地よい解放感が体を包み込んでいくのを感じるでしょう。モダンなインテリアと自然の光が融合したその場所は、家族や友人との特別な瞬間を彩るのに最適です。静けさの中に響くサウンドは、心の平穏を届けてくれ、毎日の生活がまるで映画のワンシーンのように流れていきます。
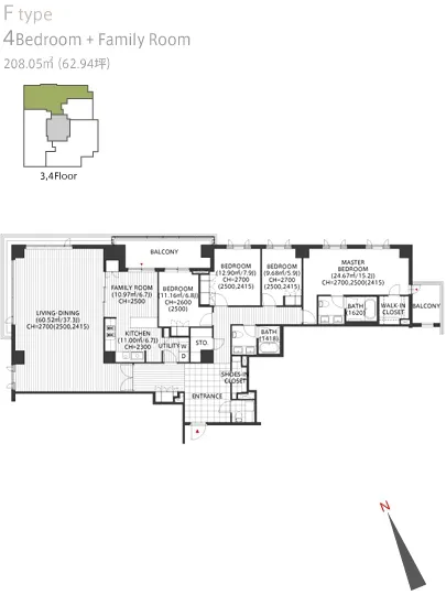
キッチン6.7帖は、料理の喜びを感じる場。その香りは、まるで新鮮なハーブとスパイスが織りなす美食のメロディーのように、あなたを魅了します。テーブルに並ぶ料理を囲んでもらうことで、家族の温もりが心に染み渡っていくことでしょう。寝室の一つ、15.2帖のベッドルームは、安らぎのオアシス。ここでは、静まり返った夜の中で、やさしい夢に抱かれ安らげるのです。その他の部屋もそれぞれの個性を持つ6.7帖、7.9帖、6.8帖、5.9帖の空間が、あなたの生活に彩りを加えます。自分を表現できる場所を持つことは、心の豊かさに繋がります。
そして、The Upper House 404の魅力は、周辺の歴史と文化にもあります。六本木駅から徒歩6分の立地は、街の華やかさと落ち着きを兼ね備えています。静寂の中にオーケストラのような生活音が聴こえ、上質なレストランやアートギャラリーへのアクセスも抜群。都心の洗練された文化を日々感じながら、生活できるという贅沢は、ただの居住空間を超えた特別な体験です。
The Upper House 404は、単なる住まいではなく、心の深い部分で感じる「家」の本質が宿る場所です。五感で感じる贅沢な生活をここで始めてみませんか?あなたの新しい物語が、ここから始まるのです。
エレベーターの扉が開くと、…The Upper House 404は、まるで夢の中の絵画のように、洗練された空間が広がる特別な場所です。この物件は、東京都港区元麻布3-8-50に位置し、北東の方角に向かって開かれた窓からは、朝日がやさしく差し込むことで、心地よい光に包まれた毎日が約束されています。専有面積208.05㎡の贅沢な広さは、まるで自分だけのアートスタジオのように感じられることでしょう。
エレベーターの扉が開くと、あなたを迎えるのは、24時間管理のもと整然とした美しさを保つ空間。デザイナーズのセンスが光る内装は、まるで美術館の一角にいるかのような高級感を醸し出します。足を運んだ先には、LDK37.3帖の広々としたリビングが広がり、身を委ねると心地よい解放感が体を包み込んでいくのを感じるでしょう。モダンなインテリアと自然の光が融合したその場所は、家族や友人との特別な瞬間を彩るのに最適です。静けさの中に響くサウンドは、心の平穏を届けてくれ、毎日の生活がまるで映画のワンシーンのように流れていきます。
キッチン6.7帖は、料理の喜びを感じる場。その香りは、まるで新鮮なハーブとスパイスが織りなす美食のメロディーのように、あなたを魅了します。テーブルに並ぶ料理を囲んでもらうことで、家族の温もりが心に染み渡っていくことでしょう。寝室の一つ、15.2帖のベッドルームは、安らぎのオアシス。ここでは、静まり返った夜の中で、やさしい夢に抱かれ安らげるのです。その他の部屋もそれぞれの個性を持つ6.7帖、7.9帖、6.8帖、5.9帖の空間が、あなたの生活に彩りを加えます。自分を表現できる場所を持つことは、心の豊かさに繋がります。
そして、The Upper House 404の魅力は、周辺の歴史と文化にもあります。六本木駅から徒歩6分の立地は、街の華やかさと落ち着きを兼ね備えています。静寂の中にオーケストラのような生活音が聴こえ、上質なレストランやアートギャラリーへのアクセスも抜群。都心の洗練された文化を日々感じながら、生活できるという贅沢は、ただの居住空間を超えた特別な体験です。
The Upper House 404は、単なる住まいではなく、心の深い部分で感じる「家」の本質が宿る場所です。五感で感じる贅沢な生活をここで始めてみませんか?あなたの新しい物語が、ここから始まるのです。
バイブルスコア
バイブルスコア: 22.1
平均的なスコアです。
※バイブルスコア詳細はこちら
バイブルスコアとは独自のAI機械学習技術を利用した物件評価システムで、物件のおすすめ度を示します。最高得点は100点で、スコアが高いほど、よりおすすめの物件と評価されています。
写真
契約条件
| 賃料 | 予想金額:1,720,000〜1,740,000円程度 | 管理費 | 予想金額:0〜2,000円程度 |
| 礼金 | 非公開(アーカイブ) | 敷金 | 非公開(アーカイブ) |
| フリーレント | なし | 平米数 | 208.05㎡ |
| 間取り | 4LDK | 大型収納 | WIC+SIC+Sto |
| 契約期間 | 方角 | 北東 | |
| 更新料 | 契約形態 | 定期借家契約 | |
| 取引態様 | 媒介 | 内見状況 | 入居中 |
| 入居時期 | 入居中 | SOHO・事務所 | |
| ペット | ペット可 | 間取り内訳 | LD=37.3J / K=6.7J / F=6.7J / BR=15.2J / BR=7.9J / BR=6.8J / BR=5.9J |
| キャンペーン情報・備考 | 本情報は賃料改定交渉の資料作成、収益物件の利回り試算、周辺エリアや最寄り駅の坪単価分析、次回募集開始時期の予測などにご活用いただけます。 | ||
※「どの不動産に頼めばいいのか分からない」「信頼できる営業マンの話を聞きたい」「一番親切な会社と契約したい」とお悩みの方におすすめなのが「高級賃貸バイブル」です。
高級賃貸バイブルは業界10年以上の熟練スタッフ群がお客様ファーストで対応します。
下記ボタンから、まずは無料でご相談下さい。
※内覧をご希望の際には、どうぞ物件のエントランス前にてお待ち合わせくださいませ。ご内覧後は、同じ場所でお別れとさせていただきます。お客様のご都合に合わせたスムーズなご案内を心がけておりますので、ご質問等がございましたら何なりとお申し付けください。 物件概要
| 物件名 |
| 築年月 |
|
|---|---|---|---|
| 所在地 | |||
| 交通 | |||
| 総戸数 |
| 総階数 |
|
| 構造 |
| ||
地図
物件までの道のりは、「拡大地図を表示」をクリックしてナビ機能をご利用ください。
部屋設備





















建物設備

24時間管理

TVモニターホン

エレベーター

オートロック

宅配ボックス

敷地内ゴミ置場

駐車場平置き

駐車場機械式

駐輪場
The Upper Houseの現在募集中のお部屋
- No rooms found for this property.





















