
| 賃料 | 予想金額:123,000〜143,000円程度 | 管理費 | 予想金額:8,000〜12,000円程度 |
| 礼金/敷金 | 非公開(アーカイブ) | 平米数 | 36.03㎡ |
| 初期費用概算(参考) | 目安:437,740〜537,740 円 | みなし賃料(月額・参考) | 140,390〜160,390 円 |
| 備考 | 本ページは過去募集のアーカイブです。表示の金額は周辺相場・過去募集を踏まえた参考レンジであり、実際の契約金額・条件ではありません。 | ||
※上記みなし賃料(月額)は仲介手数料割引・無料&キャッシュバックを加味した高級賃貸バイブル限定の金額です。一般的なみなし賃料とは異なります。
【建物ページ】パークグレイス駒込の詳細・最新空室はこちら▶▶選ばれる理由
仲介手数料無料・キャンペーン情報(毎月15名様限定)
〇引っ越しお祝い金29260円プレゼント(キャッシュバック)
〇仲介手数料無料キャンペーン
パークグレイス駒込 311の口コミ・レビュー
パークグレイス駒込 311。あなたが夢見る日常の舞台が、ここにあります。この美しい住まいは、まるで穏やかに微笑む老舗のカフェのように、優雅さと温もりを兼ね備えています。東京都豊島区駒込4-8-12に位置するこの物件は、北西の空から降り注ぐ柔らかな光によって包まれ、住む人々を癒す静謐な空間を提供します。
さあ、扉を開けてみてください。足元には、視覚と触覚を刺激する洗練されたフローリングが広がり、気…パークグレイス駒込 311。あなたが夢見る日常の舞台が、ここにあります。この美しい住まいは、まるで穏やかに微笑む老舗のカフェのように、優雅さと温もりを兼ね備えています。東京都豊島区駒込4-8-12に位置するこの物件は、北西の空から降り注ぐ柔らかな光によって包まれ、住む人々を癒す静謐な空間を提供します。
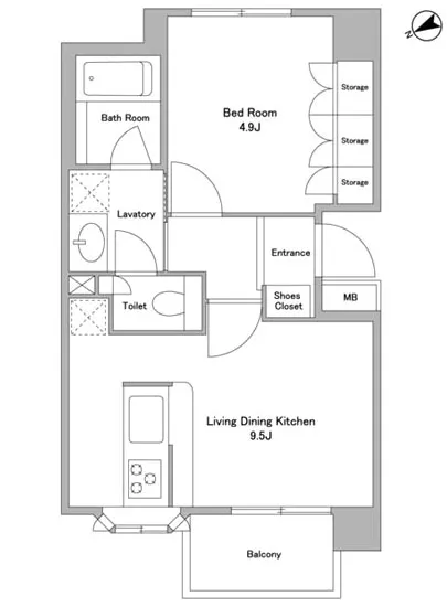
さあ、扉を開けてみてください。足元には、視覚と触覚を刺激する洗練されたフローリングが広がり、気持ちよく心地よい音を奏でます。LDKは9.5帖、4.9帖の洋室が舞台となり、まさに生活の舞台装置です。ここであなたの日常が、新しい映画のワンシーンとなることでしょう。朝の陽射しが差し込む時間には、コーヒーの香りが漂い、日が沈む頃には、柔らかなライトがそのシーンを包み込みます。毎日の食卓には、お気に入りの料理が並び、笑い声が響くことでしょう。
エレベーターに乗ると、まるで時間を遡り、過去の記憶を取り戻す旅に出るかのよう。静かな管理人が見守る中、あなたの新しい生活への扉が次々と開かれていきます。そして、オートロックの安心感があれば、どんな時も心は穏やかです。宅配ボックスが完備されているため、忙しい日々の合間にも、柔らかな笑顔で迎え入れることができます。
パークグレイス駒込 311の周辺には、歴史と文化が息づくスポットが点在しています。巣鴨駅から徒歩5分という立地から、古き良き日本の面影を感じることができます。地元の人々が愛する商店街を散策すれば、香ばしい焼きたてのお饅頭や、心温まる鍋料理の匂いが漂い、まるで異国の街を旅しているような感覚に取り込まれることでしょう。
そして、生活の隅々に散りばめられた「おもてなし」が、あなたの五感を満たします。触れたときの温かさ、口に含むスイーツの甘さ、そして何よりも、ここで生まれる新しい物語が、あなたを待っています。収納スペースも充実しておりますので、生活のアートとしての収納術を楽しみながら、心の豊かさを育むことができるはずです。
パークグレイス駒込 311は、ただの賃貸物件ではありません。あなたの人生に、ひとつの舞台を与える存在です。この空間で培われる色々な出会いやエピソードは、あなた自身の歴史の一部となり、特別な思い出として心に刻まれることでしょう。どんな時も、ここがあなたを迎え入れ、心地よい空間を提供します。さあ、新しいページを開き、パークグレイス駒込 311で、あなたの物語を紡いでみてはいかがでしょうか。
さあ、扉を開けてみてください。足元には、視覚と触覚を刺激する洗練されたフローリングが広がり、気…パークグレイス駒込 311。あなたが夢見る日常の舞台が、ここにあります。この美しい住まいは、まるで穏やかに微笑む老舗のカフェのように、優雅さと温もりを兼ね備えています。東京都豊島区駒込4-8-12に位置するこの物件は、北西の空から降り注ぐ柔らかな光によって包まれ、住む人々を癒す静謐な空間を提供します。
さあ、扉を開けてみてください。足元には、視覚と触覚を刺激する洗練されたフローリングが広がり、気持ちよく心地よい音を奏でます。LDKは9.5帖、4.9帖の洋室が舞台となり、まさに生活の舞台装置です。ここであなたの日常が、新しい映画のワンシーンとなることでしょう。朝の陽射しが差し込む時間には、コーヒーの香りが漂い、日が沈む頃には、柔らかなライトがそのシーンを包み込みます。毎日の食卓には、お気に入りの料理が並び、笑い声が響くことでしょう。
エレベーターに乗ると、まるで時間を遡り、過去の記憶を取り戻す旅に出るかのよう。静かな管理人が見守る中、あなたの新しい生活への扉が次々と開かれていきます。そして、オートロックの安心感があれば、どんな時も心は穏やかです。宅配ボックスが完備されているため、忙しい日々の合間にも、柔らかな笑顔で迎え入れることができます。
パークグレイス駒込 311の周辺には、歴史と文化が息づくスポットが点在しています。巣鴨駅から徒歩5分という立地から、古き良き日本の面影を感じることができます。地元の人々が愛する商店街を散策すれば、香ばしい焼きたてのお饅頭や、心温まる鍋料理の匂いが漂い、まるで異国の街を旅しているような感覚に取り込まれることでしょう。
そして、生活の隅々に散りばめられた「おもてなし」が、あなたの五感を満たします。触れたときの温かさ、口に含むスイーツの甘さ、そして何よりも、ここで生まれる新しい物語が、あなたを待っています。収納スペースも充実しておりますので、生活のアートとしての収納術を楽しみながら、心の豊かさを育むことができるはずです。
パークグレイス駒込 311は、ただの賃貸物件ではありません。あなたの人生に、ひとつの舞台を与える存在です。この空間で培われる色々な出会いやエピソードは、あなた自身の歴史の一部となり、特別な思い出として心に刻まれることでしょう。どんな時も、ここがあなたを迎え入れ、心地よい空間を提供します。さあ、新しいページを開き、パークグレイス駒込 311で、あなたの物語を紡いでみてはいかがでしょうか。
バイブルスコア
バイブルスコア: 29.7
平均的なスコアです。
※バイブルスコア詳細はこちら
バイブルスコアとは独自のAI機械学習技術を利用した物件評価システムで、物件のおすすめ度を示します。最高得点は100点で、スコアが高いほど、よりおすすめの物件と評価されています。
写真
契約条件
| 賃料 | 予想金額:123,000〜143,000円程度 | 管理費 | 予想金額:8,000〜12,000円程度 |
| 礼金 | 非公開(アーカイブ) | 敷金 | 非公開(アーカイブ) |
| フリーレント | なし | 平米数 | 36.03㎡ |
| 間取り | 1LDK | 大型収納 | |
| 契約期間 |
| 方角 | 北西 |
| 更新料 | 契約形態 | 普通賃貸借契約 | |
| 取引態様 | 媒介 | 内見状況 | 入居中 |
| 入居時期 | 入居中 | SOHO・事務所 | |
| ペット | ペット可 | 間取り内訳 | LDK=9.5J / BR=4.9J |
| キャンペーン情報・備考 | 本情報は賃料改定交渉の資料作成、収益物件の利回り試算、周辺エリアや最寄り駅の坪単価分析、次回募集開始時期の予測などにご活用いただけます。 | ||
※「どの不動産に頼めばいいのか分からない」「信頼できる営業マンの話を聞きたい」「一番親切な会社と契約したい」とお悩みの方におすすめなのが「高級賃貸バイブル」です。
高級賃貸バイブルは業界10年以上の熟練スタッフ群がお客様ファーストで対応します。
下記ボタンから、まずは無料でご相談下さい。
※内覧をご希望の際には、どうぞ物件のエントランス前にてお待ち合わせくださいませ。ご内覧後は、同じ場所でお別れとさせていただきます。お客様のご都合に合わせたスムーズなご案内を心がけておりますので、ご質問等がございましたら何なりとお申し付けください。 物件概要
| 物件名 |
| 築年月 |
|
|---|---|---|---|
| 所在地 | |||
| 交通 | |||
| 総戸数 |
| 総階数 |
|
| 構造 |
| ||
地図
物件までの道のりは、「拡大地図を表示」をクリックしてナビ機能をご利用ください。
部屋設備

















建物設備

TVモニターホン

エレベーター

オートロック

バイク置場

宅配ボックス

敷地内ゴミ置場

管理人

駐車場平置き

駐車場機械式

駐輪場
パークグレイス駒込の現在募集中のお部屋
- パークグレイス駒込 109 - 間取り: 1LDK - 賃料: 14万円




















