
| 賃料 | 予想金額:216,000〜236,000円程度 | 管理費 | 予想金額:10,000〜14,000円程度 |
| 礼金/敷金 | 非公開(アーカイブ) | 平米数 | 56.52㎡ |
| 初期費用概算(参考) | 目安:453,500〜553,500 円 | みなし賃料(月額・参考) | 233,781〜253,781 円 |
| 備考 | 本ページは過去募集のアーカイブです。表示の金額は周辺相場・過去募集を踏まえた参考レンジであり、実際の契約金額・条件ではありません。 | ||
※上記みなし賃料(月額)は仲介手数料割引・無料&キャッシュバックを加味した高級賃貸バイブル限定の金額です。一般的なみなし賃料とは異なります。
【建物ページ】パークグレイス駒込の詳細・最新空室はこちら▶▶選ばれる理由
仲介手数料無料・キャンペーン情報(毎月15名様限定)
〇引っ越しお祝い金116000円プレゼント(キャッシュバック)
〇仲介手数料無料キャンペーン
パークグレイス駒込 205の口コミ・レビュー
パークグレイス駒込 205。この名は、まるで静かな湖面に浮かぶ白い帆船のように、豊島区の中心で優雅に佇んでいます。専有面積56.52㎡の広さは、あなたの心の内に秘めた夢を具体化するためのキャンバスとなるでしょう。205号室は南西向きという絶妙な方角から、陽の光が優しく差し込むため、朝の光で目覚める瞬間が、心地よい贅沢としてあなたを包み込むことでしょう。
この空間に足を踏み入れると、まず感じるのは…パークグレイス駒込 205。この名は、まるで静かな湖面に浮かぶ白い帆船のように、豊島区の中心で優雅に佇んでいます。専有面積56.52㎡の広さは、あなたの心の内に秘めた夢を具体化するためのキャンバスとなるでしょう。205号室は南西向きという絶妙な方角から、陽の光が優しく差し込むため、朝の光で目覚める瞬間が、心地よい贅沢としてあなたを包み込むことでしょう。
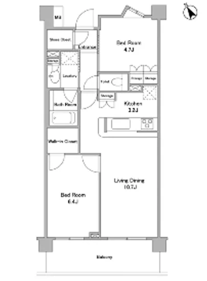
この空間に足を踏み入れると、まず感じるのは、あたたかな木の香り。リビングダイニングは10.7帖を誇り、ダイニングテーブルを囲んで家族や友人と共に過ごす時間が、まるで映画のワンシーンのように心に輝きを与えてくれます。キッチンは3.2帖、シェフのように料理を楽しむための理想的な場所で、食材の香ばしい香りが漂い、爽やかなオリーブオイルの音色が心に響くことでしょう。
また、6.4帖と4.7帖の2つのベッドルームは、まるで心の安らぎをもたらすバルコニーのように、あなたを包み込む温もりを持っています。大切な人との深い会話や、静かな読書の時間を楽しむための至福の場となるでしょう。夜の静けさの中、ゆったりとした空間があなたの心を癒し、夢の世界へと導いてくれることでしょう。
周辺には歴史と文化の香りが漂っています。都営地下鉄三田線 巣鴨駅まで徒歩5分という立地は、足を運ぶのも楽しい、便利さが魅力の一つです。巣鴨地蔵通り商店街での買い物、そしてその先には、豊かな自然に囲まれた公園や静かな神社も点在しています。まるで時代を超える古き良き日本の風情が、あなたの生活に新たな彩りを加えてくれることでしょう。
パークグレイス駒込 205は、ただの住まいではありません。それは、あなたの人生に色を加え、素敵なストーリーを紡ぐ場所です。エレベーターで上がってきた瞬間、オートロックの扉が優しく開き、そこには穏やかな空気が漂います。管理人の存在が、安心感を与え、宅配ボックスに届いた小包は、あなたの日常を豊かにする小さなサプライズとなるでしょう。
生活の中で感じる小さな幸せ、特別なひとときがそこここに散りばめられています。パークグレイス駒込 205に住むことは、日々の喧騒を忘れ、心の豊かさを感じる贅沢な旅の始まりです。この場所で、あなた自身の物語を描いてみませんか。その一歩を踏み出すことで、特別な日常が待っていることでしょう。
この空間に足を踏み入れると、まず感じるのは…パークグレイス駒込 205。この名は、まるで静かな湖面に浮かぶ白い帆船のように、豊島区の中心で優雅に佇んでいます。専有面積56.52㎡の広さは、あなたの心の内に秘めた夢を具体化するためのキャンバスとなるでしょう。205号室は南西向きという絶妙な方角から、陽の光が優しく差し込むため、朝の光で目覚める瞬間が、心地よい贅沢としてあなたを包み込むことでしょう。
この空間に足を踏み入れると、まず感じるのは、あたたかな木の香り。リビングダイニングは10.7帖を誇り、ダイニングテーブルを囲んで家族や友人と共に過ごす時間が、まるで映画のワンシーンのように心に輝きを与えてくれます。キッチンは3.2帖、シェフのように料理を楽しむための理想的な場所で、食材の香ばしい香りが漂い、爽やかなオリーブオイルの音色が心に響くことでしょう。
また、6.4帖と4.7帖の2つのベッドルームは、まるで心の安らぎをもたらすバルコニーのように、あなたを包み込む温もりを持っています。大切な人との深い会話や、静かな読書の時間を楽しむための至福の場となるでしょう。夜の静けさの中、ゆったりとした空間があなたの心を癒し、夢の世界へと導いてくれることでしょう。
周辺には歴史と文化の香りが漂っています。都営地下鉄三田線 巣鴨駅まで徒歩5分という立地は、足を運ぶのも楽しい、便利さが魅力の一つです。巣鴨地蔵通り商店街での買い物、そしてその先には、豊かな自然に囲まれた公園や静かな神社も点在しています。まるで時代を超える古き良き日本の風情が、あなたの生活に新たな彩りを加えてくれることでしょう。
パークグレイス駒込 205は、ただの住まいではありません。それは、あなたの人生に色を加え、素敵なストーリーを紡ぐ場所です。エレベーターで上がってきた瞬間、オートロックの扉が優しく開き、そこには穏やかな空気が漂います。管理人の存在が、安心感を与え、宅配ボックスに届いた小包は、あなたの日常を豊かにする小さなサプライズとなるでしょう。
生活の中で感じる小さな幸せ、特別なひとときがそこここに散りばめられています。パークグレイス駒込 205に住むことは、日々の喧騒を忘れ、心の豊かさを感じる贅沢な旅の始まりです。この場所で、あなた自身の物語を描いてみませんか。その一歩を踏み出すことで、特別な日常が待っていることでしょう。
バイブルスコア
バイブルスコア: 45.7
条件のいい物件です、引っ越しが2か月以内の場合は仮申し込みを検討すべき物件です。
※バイブルスコア詳細はこちら
バイブルスコアとは独自のAI機械学習技術を利用した物件評価システムで、物件のおすすめ度を示します。最高得点は100点で、スコアが高いほど、よりおすすめの物件と評価されています。
写真
契約条件
| 賃料 | 予想金額:216,000〜236,000円程度 | 管理費 | 予想金額:10,000〜14,000円程度 |
| 礼金 | 非公開(アーカイブ) | 敷金 | 非公開(アーカイブ) |
| フリーレント | なし | 平米数 | 56.52㎡ |
| 間取り | 2LDK+WIC+SIC | 大型収納 | SIC・WIC |
| 契約期間 | 2年 | 方角 | 南西 |
| 更新料 | 1ヶ月 | 契約形態 | 普通賃貸借契約 |
| 取引態様 | 媒介 | 内見状況 | 入居中 |
| 入居時期 | 入居中 | SOHO・事務所 | 不可 |
| ペット | 相談 | 間取り内訳 | LDK13.9帖 洋室6.4帖 洋室4.7帖 |
| キャンペーン情報・備考 | 本情報は賃料改定交渉の資料作成、収益物件の利回り試算、周辺エリアや最寄り駅の坪単価分析、次回募集開始時期の予測などにご活用いただけます。 | ||
※「どの不動産に頼めばいいのか分からない」「信頼できる営業マンの話を聞きたい」「一番親切な会社と契約したい」とお悩みの方におすすめなのが「高級賃貸バイブル」です。
高級賃貸バイブルは業界10年以上の熟練スタッフ群がお客様ファーストで対応します。
下記ボタンから、まずは無料でご相談下さい。
※内覧をご希望の際には、どうぞ物件のエントランス前にてお待ち合わせくださいませ。ご内覧後は、同じ場所でお別れとさせていただきます。お客様のご都合に合わせたスムーズなご案内を心がけておりますので、ご質問等がございましたら何なりとお申し付けください。 物件概要
| 物件名 |
| 築年月 |
|
|---|---|---|---|
| 所在地 | |||
| 交通 | |||
| 総戸数 |
| 総階数 |
|
| 構造 |
| ||
地図
物件までの道のりは、「拡大地図を表示」をクリックしてナビ機能をご利用ください。
部屋設備














建物設備

TVモニターホン

エレベーター

オートロック

バイク置場

宅配ボックス

敷地内ゴミ置場

管理人

駐車場平置き

駐車場機械式

駐輪場
パークグレイス駒込の現在募集中のお部屋
- パークグレイス駒込 109 - 間取り: 1LDK - 賃料: 14万円




















