
| 賃料 | 予想金額:195,000〜215,000円程度 | 管理費 | 予想金額:10,000〜14,000円程度 |
| 礼金/敷金 | 非公開(アーカイブ) | 平米数 | 56.73㎡ |
| 初期費用概算(参考) | 目安:777,000〜877,000 円 | みなし賃料(月額・参考) | 219,958〜239,958 円 |
| 備考 | 本ページは過去募集のアーカイブです。表示の金額は周辺相場・過去募集を踏まえた参考レンジであり、実際の契約金額・条件ではありません。 | ||
※上記みなし賃料(月額)は仲介手数料割引・無料&キャッシュバックを加味した高級賃貸バイブル限定の金額です。一般的なみなし賃料とは異なります。
【建物ページ】パークグレイス駒込の詳細・最新空室はこちら▶▶選ばれる理由
仲介手数料無料・キャンペーン情報(毎月15名様限定)
〇仲介手数料割引キャンペーン
パークグレイス駒込 503の口コミ・レビュー
パークグレイス駒込 503。この響きは、まるで洗練されたオーケストラの一小節が耳に心地よく響くようです。あなたの新しい生活の舞台がここにあることを、心からお伝えしたいと思います。503という数字が持つ特別な意味は、あなたがこの場所で新たな歴史を築くことを暗示しています。
東京都豊島区駒込4-8-12という、ひっそりとした静けさに包まれたこの地。南西の角に佇むパークグレイス駒込 503は、日差しを…パークグレイス駒込 503。この響きは、まるで洗練されたオーケストラの一小節が耳に心地よく響くようです。あなたの新しい生活の舞台がここにあることを、心からお伝えしたいと思います。503という数字が持つ特別な意味は、あなたがこの場所で新たな歴史を築くことを暗示しています。
東京都豊島区駒込4-8-12という、ひっそりとした静けさに包まれたこの地。南西の角に佇むパークグレイス駒込 503は、日差しを優しく取り込み、まるで人々を迎え入れる太陽のようです。歩みを進めると、エレガントなエントランスがあなたを迎え、オートロックのシステムがその静謐な世界を守ります。その瞬間、あなたはこの空間の一部となり、優雅なる生活へと誘われるのです。
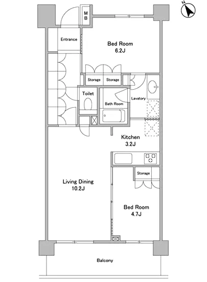
さあ、いよいよあなたの新しい住まいに足を踏み入れましょう。広がる56.73㎡の空間は、洗練されたデザインと機能美が融合した心地よい場所です。LDKは10.2帖、開放感あふれる部屋で、朝の光がカーテン越しに差し込み、心地よい温もりであなたを包みます。静かな朝食のひととき、コーヒーの香りが漂い、湯気が立ち昇る中で、自然と笑顔がこぼれることでしょう。
また、洋室はそれぞれ6.2帖と4.7帖。広々とした空間が、家族との語らいを促し、暖かい時間を生み出します。その日は、小さな子供たちが遊ぶ声が聞こえ、日常の忙しさを忘れさせてくれるかもしれません。お好きな本に囲まれて、読書にふける贅沢な瞬間もここでは実現します。
パークグレイス駒込 503には、生活を便利にする設備も完備されています。TVモニターホン越しに訪問者の顔が映る安心感、宅配ボックスの存在が、あなたの生活をより豊かにします。ほかにも、バイク置場や駐車場、駐輪場が整い、移動手段においても快適さを約束します。管理人が常駐することで、あなたの居住空間がより安全で快適な場所となるのです。
周辺の豊かな歴史や文化も、この場所の魅力をさらに引き立てます。都営地下鉄三田線の巣鴨駅まで徒歩5分というアクセスの良さ。散策を楽しみながら、隣接する文京区の歴史ある神社や、歴史的な街並みを感じることができるのです。地元の人々が愛する商店街での買い物は、五感を刺激し、旬の食材や手作りの品を楽しむ愉悦のひとときとなることでしょう。
パークグレイス駒込 503は、あなたの心と体を満たす場所として、まさに相応しい選択です。新しい物語の始まりを、ここで感じてみてください。映画のワンシーンのように、日々の営みが色鮮やかに展開されることでしょう。あなたの新しい生活が、心豊かなものとなりますように。
東京都豊島区駒込4-8-12という、ひっそりとした静けさに包まれたこの地。南西の角に佇むパークグレイス駒込 503は、日差しを…パークグレイス駒込 503。この響きは、まるで洗練されたオーケストラの一小節が耳に心地よく響くようです。あなたの新しい生活の舞台がここにあることを、心からお伝えしたいと思います。503という数字が持つ特別な意味は、あなたがこの場所で新たな歴史を築くことを暗示しています。
東京都豊島区駒込4-8-12という、ひっそりとした静けさに包まれたこの地。南西の角に佇むパークグレイス駒込 503は、日差しを優しく取り込み、まるで人々を迎え入れる太陽のようです。歩みを進めると、エレガントなエントランスがあなたを迎え、オートロックのシステムがその静謐な世界を守ります。その瞬間、あなたはこの空間の一部となり、優雅なる生活へと誘われるのです。
さあ、いよいよあなたの新しい住まいに足を踏み入れましょう。広がる56.73㎡の空間は、洗練されたデザインと機能美が融合した心地よい場所です。LDKは10.2帖、開放感あふれる部屋で、朝の光がカーテン越しに差し込み、心地よい温もりであなたを包みます。静かな朝食のひととき、コーヒーの香りが漂い、湯気が立ち昇る中で、自然と笑顔がこぼれることでしょう。
また、洋室はそれぞれ6.2帖と4.7帖。広々とした空間が、家族との語らいを促し、暖かい時間を生み出します。その日は、小さな子供たちが遊ぶ声が聞こえ、日常の忙しさを忘れさせてくれるかもしれません。お好きな本に囲まれて、読書にふける贅沢な瞬間もここでは実現します。
パークグレイス駒込 503には、生活を便利にする設備も完備されています。TVモニターホン越しに訪問者の顔が映る安心感、宅配ボックスの存在が、あなたの生活をより豊かにします。ほかにも、バイク置場や駐車場、駐輪場が整い、移動手段においても快適さを約束します。管理人が常駐することで、あなたの居住空間がより安全で快適な場所となるのです。
周辺の豊かな歴史や文化も、この場所の魅力をさらに引き立てます。都営地下鉄三田線の巣鴨駅まで徒歩5分というアクセスの良さ。散策を楽しみながら、隣接する文京区の歴史ある神社や、歴史的な街並みを感じることができるのです。地元の人々が愛する商店街での買い物は、五感を刺激し、旬の食材や手作りの品を楽しむ愉悦のひとときとなることでしょう。
パークグレイス駒込 503は、あなたの心と体を満たす場所として、まさに相応しい選択です。新しい物語の始まりを、ここで感じてみてください。映画のワンシーンのように、日々の営みが色鮮やかに展開されることでしょう。あなたの新しい生活が、心豊かなものとなりますように。
バイブルスコア
バイブルスコア: 30.2
平均的なスコアです。
※バイブルスコア詳細はこちら
バイブルスコアとは独自のAI機械学習技術を利用した物件評価システムで、物件のおすすめ度を示します。最高得点は100点で、スコアが高いほど、よりおすすめの物件と評価されています。
写真
契約条件
| 賃料 | 予想金額:195,000〜215,000円程度 | 管理費 | 予想金額:10,000〜14,000円程度 |
| 礼金 | 非公開(アーカイブ) | 敷金 | 非公開(アーカイブ) |
| フリーレント | なし | 平米数 | 56.73㎡ |
| 間取り | 2LDK | 大型収納 | |
| 契約期間 |
| 方角 | 南西 |
| 更新料 | 契約形態 | 普通賃貸借契約 | |
| 取引態様 | 媒介 | 内見状況 | 入居中 |
| 入居時期 | 入居中 | SOHO・事務所 | |
| ペット | ペット可 | 間取り内訳 | 洋:6.2 洋:4.7 LD:10.2 K:3.2 |
| キャンペーン情報・備考 | 本情報は賃料改定交渉の資料作成、収益物件の利回り試算、周辺エリアや最寄り駅の坪単価分析、次回募集開始時期の予測などにご活用いただけます。 | ||
※「どの不動産に頼めばいいのか分からない」「信頼できる営業マンの話を聞きたい」「一番親切な会社と契約したい」とお悩みの方におすすめなのが「高級賃貸バイブル」です。
高級賃貸バイブルは業界10年以上の熟練スタッフ群がお客様ファーストで対応します。
下記ボタンから、まずは無料でご相談下さい。
※内覧をご希望の際には、どうぞ物件のエントランス前にてお待ち合わせくださいませ。ご内覧後は、同じ場所でお別れとさせていただきます。お客様のご都合に合わせたスムーズなご案内を心がけておりますので、ご質問等がございましたら何なりとお申し付けください。 物件概要
| 物件名 |
| 築年月 |
|
|---|---|---|---|
| 所在地 | |||
| 交通 | |||
| 総戸数 |
| 総階数 |
|
| 構造 |
| ||
地図
物件までの道のりは、「拡大地図を表示」をクリックしてナビ機能をご利用ください。
部屋設備
















建物設備

TVモニターホン

エレベーター

オートロック

バイク置場

宅配ボックス

敷地内ゴミ置場

管理人

駐車場平置き

駐車場機械式

駐輪場
パークグレイス駒込の現在募集中のお部屋
- パークグレイス駒込 109 - 間取り: 1LDK - 賃料: 14万円




















