
| 賃料 | 予想金額:124,000〜144,000円程度 | 管理費 | 予想金額:7,000〜11,000円程度 |
| 礼金/敷金 | 非公開(アーカイブ) | 平米数 | 26.95㎡ |
| 初期費用概算(参考) | 目安:256,000〜356,000 円 | みなし賃料(月額・参考) | 136,583〜156,583 円 |
| 備考 | 本ページは過去募集のアーカイブです。表示の金額は周辺相場・過去募集を踏まえた参考レンジであり、実際の契約金額・条件ではありません。 | ||
※上記みなし賃料(月額)は仲介手数料割引・無料&キャッシュバックを加味した高級賃貸バイブル限定の金額です。一般的なみなし賃料とは異なります。
【建物ページ】ジ・オーブ・ルミナスの詳細・最新空室はこちら▶▶選ばれる理由
仲介手数料無料・キャンペーン情報(毎月15名様限定)
〇仲介手数料割引キャンペーン
ジ・オーブ・ルミナス 1104の口コミ・レビュー
「ジ・オーブ・ルミナス 1104」。この名を耳にした瞬間、まるで心の奥深くにひっそりと灯る明かりのような魅力が、あなたの心に宿ることでしょう。東京都中央区銀座7-10-5、忙しさに包まれた街の喧騒をしばし忘れ、南東を向いたこの地に立つあなたは、まるで都会のオアシスを発見した探検家のようです。
この高級賃貸物件は、持つ者に特別な体験を提供します。エレベーターで1104階に到着すれば、目の前には広が…「ジ・オーブ・ルミナス 1104」。この名を耳にした瞬間、まるで心の奥深くにひっそりと灯る明かりのような魅力が、あなたの心に宿ることでしょう。東京都中央区銀座7-10-5、忙しさに包まれた街の喧騒をしばし忘れ、南東を向いたこの地に立つあなたは、まるで都会のオアシスを発見した探検家のようです。
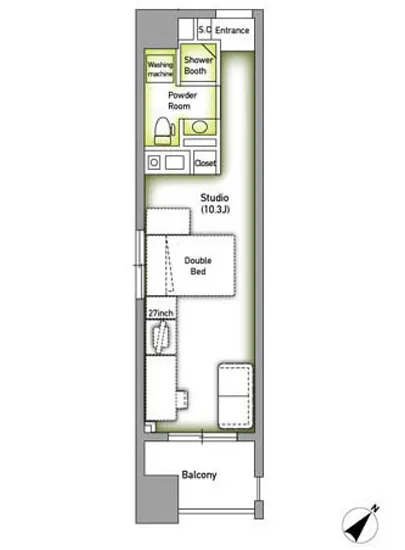
この高級賃貸物件は、持つ者に特別な体験を提供します。エレベーターで1104階に到着すれば、目の前には広がる26.95㎡の心地よい空間が広がっています。一歩踏み入ると、洋室10.3帖の中にはあなたの新しい物語が待っているようです。光が柔らかく差し込み、まるで映画のワンシーンのように、あなたの生活を舞台に変えてくれます。
ここジ・オーブ・ルミナス 1104は、ただの住まいではありません。それはあなたの人生を彩るキャンバス。日々の朝は、窓からの穏やかな光に包まれて始まります。新鮮な空気を感じながら、朝食の香ばしいトーストが焼ける音が耳に心地よく響き渡るでしょう。初めて入ったときの高揚感とともに、あなたの食卓を彩る料理の香りが漂い、五感が刺激されていくのです。
そして、この場所の魅力を語る上で欠かせないのが、住まいを取り巻く歴史や文化。その周辺には、銀座の優雅な街並みが広がり、歴史あるショップやアートギャラリーが点在しています。散策するたびに、過去の芸術家たちの息遣いや、今現在も生き続ける文化の香りを感じることができるでしょう。映画のワンシーンのように、あなたの目の前には新たなドラマが待ち受けています。
さらに、ジ・オーブ・ルミナス 1104が提供する設備は、あなたの生活をより一層快適にするために洗練されています。オートロックや宅配ボックス、管理人による細やかなサポートは、まるであなたを大切に包み込むように、安心感を提供してくれるでしょう。これらは、あなたが自分だけの時間を心ゆくまで楽しむための大切な要素となるのです。
まさに、ここジ・オーブ・ルミナス 1104は、ライフスタイルを豊かにする洗練された場所。あなたの毎日は、この特別な空間で高まることでしょう。優雅に流れる時間の中で、新たな物語を紡いでいく、その瞬間が訪れるのを楽しみにしていてください。夢のような生活が、ここ銀座の中心で待っているのです。あなたの新しい人生のワンシーンは、今ここから始まります。
この高級賃貸物件は、持つ者に特別な体験を提供します。エレベーターで1104階に到着すれば、目の前には広が…「ジ・オーブ・ルミナス 1104」。この名を耳にした瞬間、まるで心の奥深くにひっそりと灯る明かりのような魅力が、あなたの心に宿ることでしょう。東京都中央区銀座7-10-5、忙しさに包まれた街の喧騒をしばし忘れ、南東を向いたこの地に立つあなたは、まるで都会のオアシスを発見した探検家のようです。
この高級賃貸物件は、持つ者に特別な体験を提供します。エレベーターで1104階に到着すれば、目の前には広がる26.95㎡の心地よい空間が広がっています。一歩踏み入ると、洋室10.3帖の中にはあなたの新しい物語が待っているようです。光が柔らかく差し込み、まるで映画のワンシーンのように、あなたの生活を舞台に変えてくれます。
ここジ・オーブ・ルミナス 1104は、ただの住まいではありません。それはあなたの人生を彩るキャンバス。日々の朝は、窓からの穏やかな光に包まれて始まります。新鮮な空気を感じながら、朝食の香ばしいトーストが焼ける音が耳に心地よく響き渡るでしょう。初めて入ったときの高揚感とともに、あなたの食卓を彩る料理の香りが漂い、五感が刺激されていくのです。
そして、この場所の魅力を語る上で欠かせないのが、住まいを取り巻く歴史や文化。その周辺には、銀座の優雅な街並みが広がり、歴史あるショップやアートギャラリーが点在しています。散策するたびに、過去の芸術家たちの息遣いや、今現在も生き続ける文化の香りを感じることができるでしょう。映画のワンシーンのように、あなたの目の前には新たなドラマが待ち受けています。
さらに、ジ・オーブ・ルミナス 1104が提供する設備は、あなたの生活をより一層快適にするために洗練されています。オートロックや宅配ボックス、管理人による細やかなサポートは、まるであなたを大切に包み込むように、安心感を提供してくれるでしょう。これらは、あなたが自分だけの時間を心ゆくまで楽しむための大切な要素となるのです。
まさに、ここジ・オーブ・ルミナス 1104は、ライフスタイルを豊かにする洗練された場所。あなたの毎日は、この特別な空間で高まることでしょう。優雅に流れる時間の中で、新たな物語を紡いでいく、その瞬間が訪れるのを楽しみにしていてください。夢のような生活が、ここ銀座の中心で待っているのです。あなたの新しい人生のワンシーンは、今ここから始まります。
バイブルスコア
バイブルスコア: 73.5
かなり条件の良い物件です、即仮押さえをおすすめする物件です!
このお部屋は、現在ご入居中のため空室情報はございません。ただし、将来的に募集が開始される際、バイブルスコアにおいて非常に高い評価が期待されます。特にご興味をお持ちの方は、今のうちにブックマークやお気に入りに登録していただくと、募集開始のお知らせをすぐに受け取ることができます。是非ともご検討くださいませ。
※バイブルスコア詳細はこちら
バイブルスコアとは独自のAI機械学習技術を利用した物件評価システムで、物件のおすすめ度を示します。最高得点は100点で、スコアが高いほど、よりおすすめの物件と評価されています。
写真
契約条件
| 賃料 | 予想金額:124,000〜144,000円程度 | 管理費 | 予想金額:7,000〜11,000円程度 |
| 礼金 | 非公開(アーカイブ) | 敷金 | 非公開(アーカイブ) |
| フリーレント | なし | 平米数 | 26.95㎡ |
| 間取り | 1R | 大型収納 | |
| 契約期間 | 方角 | 南東 | |
| 更新料 | 契約形態 | 定期借家契約 | |
| 取引態様 | 媒介 | 内見状況 | 入居中 |
| 入居時期 | 入居中 | SOHO・事務所 | 事務所(SOHO)可 |
| ペット | 間取り内訳 | 洋:10.3 | |
| キャンペーン情報・備考 | 本情報は賃料改定交渉の資料作成、収益物件の利回り試算、周辺エリアや最寄り駅の坪単価分析、次回募集開始時期の予測などにご活用いただけます。 | ||
※「どの不動産に頼めばいいのか分からない」「信頼できる営業マンの話を聞きたい」「一番親切な会社と契約したい」とお悩みの方におすすめなのが「高級賃貸バイブル」です。
高級賃貸バイブルは業界10年以上の熟練スタッフ群がお客様ファーストで対応します。
下記ボタンから、まずは無料でご相談下さい。
※内覧をご希望の際には、どうぞ物件のエントランス前にてお待ち合わせくださいませ。ご内覧後は、同じ場所でお別れとさせていただきます。お客様のご都合に合わせたスムーズなご案内を心がけておりますので、ご質問等がございましたら何なりとお申し付けください。 物件概要
| 物件名 |
| 築年月 |
|
|---|---|---|---|
| 所在地 | |||
| 交通 | |||
| 総戸数 |
| 総階数 |
|
| 構造 |
| ||
地図
物件までの道のりは、「拡大地図を表示」をクリックしてナビ機能をご利用ください。
部屋設備












建物設備

TVモニターホン

エレベーター

オートロック

宅配ボックス

敷地内ゴミ置場

管理人
ジ・オーブ・ルミナスの現在募集中のお部屋
- No rooms found for this property.












