
| 賃料 | 予想金額:120,000〜140,000円程度 | 管理費 | 予想金額:8,000〜12,000円程度 |
| 礼金/敷金 | 非公開(アーカイブ) | 平米数 | 25.62㎡ |
| 初期費用概算(参考) | 目安:381,500〜481,500 円 | みなし賃料(月額・参考) | 136,281〜156,281 円 |
| 備考 | 本ページは過去募集のアーカイブです。表示の金額は周辺相場・過去募集を踏まえた参考レンジであり、実際の契約金額・条件ではありません。 | ||
※上記みなし賃料(月額)は仲介手数料割引・無料&キャッシュバックを加味した高級賃貸バイブル限定の金額です。一般的なみなし賃料とは異なります。
【建物ページ】ジ・オーブ・ルミナスの詳細・最新空室はこちら▶▶選ばれる理由
仲介手数料無料・キャンペーン情報(毎月15名様限定)
〇仲介手数料割引キャンペーン
ジ・オーブ・ルミナス 606の口コミ・レビュー
ジ・オーブ・ルミナス 606。まるで一つの美しい宝石のように、あなたを優雅な世界へと誘います。東京都中央区銀座7-10-5に位置するこの特別な空間は、洗練されたデザインと心地よさを併せ持ち、あなたの生活をまるで映画のワンシーンのように彩ります。北西を向いた窓からは、日が沈む瞬間の黄金色の光が差し込み、夕暮れの美しさが心の隅々にまで浸透していくことでしょう。
この606号室は、広さ25.62㎡の1…ジ・オーブ・ルミナス 606。まるで一つの美しい宝石のように、あなたを優雅な世界へと誘います。東京都中央区銀座7-10-5に位置するこの特別な空間は、洗練されたデザインと心地よさを併せ持ち、あなたの生活をまるで映画のワンシーンのように彩ります。北西を向いた窓からは、日が沈む瞬間の黄金色の光が差し込み、夕暮れの美しさが心の隅々にまで浸透していくことでしょう。
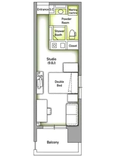
この606号室は、広さ25.62㎡の1Rという贅沢さを誇り、9.8帖の洋室は思わず深呼吸したくなるような開放感が漂います。どこか懐かしさを感じさせる木の温もり、柔らかなインテリアが息づき、あなたの日々の生活を特別なものに変えてくれるはずです。まるであなたを抱きしめるかのように、心地よい空間が広がります。
エレベーターを上がり、オートロックを通過すると、まるで別世界に足を踏み入れたかのような感覚に包まれます。宅配ボックスや敷地内ゴミ置場など、現代の便利さを感じさせる設備も完備されており、あなたのライフスタイルがストレスフリーであることを約束します。管理人の存在は、あなたの生活に安心感を添え、日々の小さなご縁を育んでくれることでしょう。
銀座駅から徒歩4分という絶好の立地にあることも、この物件の大きな魅力です。銀座という名の響きは、ただの地名に留まらず、文化と歴史が絡み合った美の象徴。朝の通勤時には、周囲の喧騒の中に自分だけの静かな時間を見つけ、夕方にはショッピングや食事を楽しむ姿が目に浮かびます。また、近隣にはアートギャラリーや高級ブランドが立ち並び、まるであなた自身が美術館の一部であるかのような錯覚に陥ることでしょう。
生活の中にアートを取り入れることは、感性を磨くことです。ジ・オーブ・ルミナス 606での生活は、ただの暮らしではなく、あなた自身の物語を編んでいく旅そのもの。毎朝目覚めた瞬間、アロマが漂うキッチンで丁寧に淹れたコーヒーの香りとともに、あなたの新たな毎日が始まります。窓を開け放つと、都会の喧騒と共に漂う甘い香りが、一日の始まりを祝福しているかのようです。
この空間に住むことは、思い描く未来を手に入れること。ジ・オーブ・ルミナス 606は、あなたの生活を一層輝かせる場所であり、まるで星が瞬く夜空の下であなたを見守るように、静かに寄り添ってくれることでしょう。今こそ、あなたの心の奥に秘めた夢を現実に変える時です。この特別な空間が、あなたの生活をリズミカルに、ダイナミックに踊らせてくれることを願っています。あなたの日常は、ここから始まるのです。
この606号室は、広さ25.62㎡の1…ジ・オーブ・ルミナス 606。まるで一つの美しい宝石のように、あなたを優雅な世界へと誘います。東京都中央区銀座7-10-5に位置するこの特別な空間は、洗練されたデザインと心地よさを併せ持ち、あなたの生活をまるで映画のワンシーンのように彩ります。北西を向いた窓からは、日が沈む瞬間の黄金色の光が差し込み、夕暮れの美しさが心の隅々にまで浸透していくことでしょう。
この606号室は、広さ25.62㎡の1Rという贅沢さを誇り、9.8帖の洋室は思わず深呼吸したくなるような開放感が漂います。どこか懐かしさを感じさせる木の温もり、柔らかなインテリアが息づき、あなたの日々の生活を特別なものに変えてくれるはずです。まるであなたを抱きしめるかのように、心地よい空間が広がります。
エレベーターを上がり、オートロックを通過すると、まるで別世界に足を踏み入れたかのような感覚に包まれます。宅配ボックスや敷地内ゴミ置場など、現代の便利さを感じさせる設備も完備されており、あなたのライフスタイルがストレスフリーであることを約束します。管理人の存在は、あなたの生活に安心感を添え、日々の小さなご縁を育んでくれることでしょう。
銀座駅から徒歩4分という絶好の立地にあることも、この物件の大きな魅力です。銀座という名の響きは、ただの地名に留まらず、文化と歴史が絡み合った美の象徴。朝の通勤時には、周囲の喧騒の中に自分だけの静かな時間を見つけ、夕方にはショッピングや食事を楽しむ姿が目に浮かびます。また、近隣にはアートギャラリーや高級ブランドが立ち並び、まるであなた自身が美術館の一部であるかのような錯覚に陥ることでしょう。
生活の中にアートを取り入れることは、感性を磨くことです。ジ・オーブ・ルミナス 606での生活は、ただの暮らしではなく、あなた自身の物語を編んでいく旅そのもの。毎朝目覚めた瞬間、アロマが漂うキッチンで丁寧に淹れたコーヒーの香りとともに、あなたの新たな毎日が始まります。窓を開け放つと、都会の喧騒と共に漂う甘い香りが、一日の始まりを祝福しているかのようです。
この空間に住むことは、思い描く未来を手に入れること。ジ・オーブ・ルミナス 606は、あなたの生活を一層輝かせる場所であり、まるで星が瞬く夜空の下であなたを見守るように、静かに寄り添ってくれることでしょう。今こそ、あなたの心の奥に秘めた夢を現実に変える時です。この特別な空間が、あなたの生活をリズミカルに、ダイナミックに踊らせてくれることを願っています。あなたの日常は、ここから始まるのです。
バイブルスコア
バイブルスコア: 72.3
かなり条件の良い物件です、即仮押さえをおすすめする物件です!
このお部屋は、現在ご入居中のため空室情報はございません。ただし、将来的に募集が開始される際、バイブルスコアにおいて非常に高い評価が期待されます。特にご興味をお持ちの方は、今のうちにブックマークやお気に入りに登録していただくと、募集開始のお知らせをすぐに受け取ることができます。是非ともご検討くださいませ。
※バイブルスコア詳細はこちら
バイブルスコアとは独自のAI機械学習技術を利用した物件評価システムで、物件のおすすめ度を示します。最高得点は100点で、スコアが高いほど、よりおすすめの物件と評価されています。
写真
契約条件
| 賃料 | 予想金額:120,000〜140,000円程度 | 管理費 | 予想金額:8,000〜12,000円程度 |
| 礼金 | 非公開(アーカイブ) | 敷金 | 非公開(アーカイブ) |
| フリーレント | なし | 平米数 | 25.62㎡ |
| 間取り | 1R | 大型収納 | |
| 契約期間 | 方角 | 北西 | |
| 更新料 | 契約形態 | 定期借家契約 | |
| 取引態様 | 媒介 | 内見状況 | 入居中 |
| 入居時期 | 入居中 | SOHO・事務所 | 事務所(SOHO)可 |
| ペット | 間取り内訳 | 洋:9.8 | |
| キャンペーン情報・備考 | 本情報は賃料改定交渉の資料作成、収益物件の利回り試算、周辺エリアや最寄り駅の坪単価分析、次回募集開始時期の予測などにご活用いただけます。 | ||
※「どの不動産に頼めばいいのか分からない」「信頼できる営業マンの話を聞きたい」「一番親切な会社と契約したい」とお悩みの方におすすめなのが「高級賃貸バイブル」です。
高級賃貸バイブルは業界10年以上の熟練スタッフ群がお客様ファーストで対応します。
下記ボタンから、まずは無料でご相談下さい。
※内覧をご希望の際には、どうぞ物件のエントランス前にてお待ち合わせくださいませ。ご内覧後は、同じ場所でお別れとさせていただきます。お客様のご都合に合わせたスムーズなご案内を心がけておりますので、ご質問等がございましたら何なりとお申し付けください。 物件概要
| 物件名 |
| 築年月 |
|
|---|---|---|---|
| 所在地 | |||
| 交通 | |||
| 総戸数 |
| 総階数 |
|
| 構造 |
| ||
地図
物件までの道のりは、「拡大地図を表示」をクリックしてナビ機能をご利用ください。
部屋設備











建物設備

TVモニターホン

エレベーター

オートロック

宅配ボックス

敷地内ゴミ置場

管理人
ジ・オーブ・ルミナスの現在募集中のお部屋
- No rooms found for this property.












