
| 賃料 | 予想金額:210,000〜230,000円程度 | 管理費 | 予想金額:8,000〜12,000円程度 |
| 礼金/敷金 | 非公開(アーカイブ) | 平米数 | 53.6㎡ |
| 初期費用概算(参考) | 目安:386,500〜486,500 円 | みなし賃料(月額・参考) | 229,094〜249,094 円 |
| 備考 | 本ページは過去募集のアーカイブです。表示の金額は周辺相場・過去募集を踏まえた参考レンジであり、実際の契約金額・条件ではありません。 | ||
※上記みなし賃料(月額)は仲介手数料割引・無料&キャッシュバックを加味した高級賃貸バイブル限定の金額です。一般的なみなし賃料とは異なります。
【建物ページ】エピック東日本橋レジデンスの詳細・最新空室はこちら▶▶選ばれる理由
仲介手数料無料・キャンペーン情報(毎月15名様限定)
〇フリーレント1か月キャンペーン
エピック東日本橋レジデンス 601の口コミ・レビュー
エピック東日本橋レジデンス 601。これはただの物件名ではありません。あなたの未来の生活が待ち受ける舞台、その名はエピック東日本橋レジデンス 601です。東京都中央区東日本橋という歴史の息吹を感じる地に佇むこの邸宅は、まるで時を超えた絵画の一部のように、優雅さと気品溢れる表情を見せています。北東を向いた窓から差し込む朝の光は、あなたの目覚めを優しく包み込み、穏やかな一日の始まりを告げます。
エピ…エピック東日本橋レジデンス 601。これはただの物件名ではありません。あなたの未来の生活が待ち受ける舞台、その名はエピック東日本橋レジデンス 601です。東京都中央区東日本橋という歴史の息吹を感じる地に佇むこの邸宅は、まるで時を超えた絵画の一部のように、優雅さと気品溢れる表情を見せています。北東を向いた窓から差し込む朝の光は、あなたの目覚めを優しく包み込み、穏やかな一日の始まりを告げます。
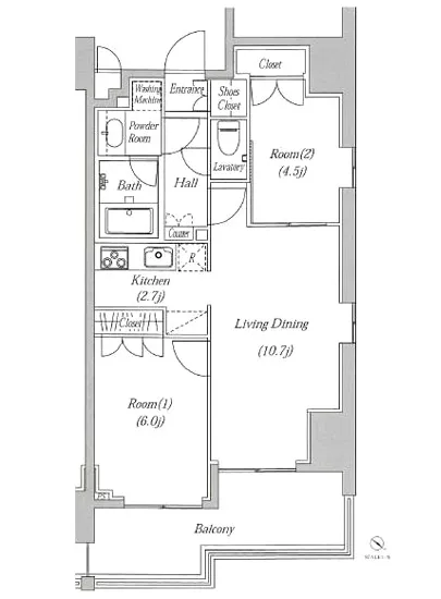
エピック東日本橋レジデンス 601の中に足を踏み入れると、広がる53.6㎡の空間が、心地よい安らぎを与えます。LDK10.7帖の広々としたリビングは、あなたの大切な人と過ごす時間を、大きなキャンバスのように彩ります。そこには、会話が弾み、美味しい料理の香りが漂い、特別な瞬間が刻まれていくことでしょう。キッチンの2.7帖は、家事をする喜びにあふれ、忙しい日常の中でも、あなたの料理の腕前が活きる場所です。隣接する洋室6帖や4.5帖の空間は、ひとときの静寂を得たり、趣味に没頭したりするための隠れ家のように機能します。自分だけの時間を大切にするあなたにとって、これらの部屋は心のオアシスとなることでしょう。
このエピック東日本橋レジデンス 601は、ただの住まいではありません。それは、あなたの人生のストーリーを織り成す舞台なのです。朝の爽やかな風とともに、都営地下鉄浅草線東日本橋駅から徒歩2分という好立地が、あなたの心を遊びに誘います。街の喧騒を離れ、静かなひと時を過ごすための完璧な拠点です。
整然としたエレベーターで上昇するその瞬間、あなたはまるで特別な世界に招待されているかのような高揚感に包まれることでしょう。オートロックの扉が開くと、あなたを守る感覚が背中を押し、その居心地の良さを再確認させてくれます。宅配ボックスや駐輪場、バイク置場が生活をサポートし、まるであなたのために設計されたかのように機能します。
周囲には、文化と歴史の息吹が息づいています。古き良き時代を感じる街並みの中で、アートギャラリーやカフェが点在し、日常生活の中に小さな刺激を与えてくれるのです。エピック東日本橋レジデンス 601での生活は、それ自体が一つのアート作品のように、あなたの感性を豊かに育んでくれる存在となるでしょう。
ここエピック東日本橋レジデンス 601で、新たな物語の主人公になってみませんか。あなたの感情が、色鮮やかな音楽のように響き、心温まる瞬間が、まるで映画の一場面のように流れ込んでくるのです。日々の生活が、あなた自身の特別なエピソードで飾られていくことでしょう。この場所での未来が、何よりの宝物となることを、心から願っています。
エピ…エピック東日本橋レジデンス 601。これはただの物件名ではありません。あなたの未来の生活が待ち受ける舞台、その名はエピック東日本橋レジデンス 601です。東京都中央区東日本橋という歴史の息吹を感じる地に佇むこの邸宅は、まるで時を超えた絵画の一部のように、優雅さと気品溢れる表情を見せています。北東を向いた窓から差し込む朝の光は、あなたの目覚めを優しく包み込み、穏やかな一日の始まりを告げます。
エピック東日本橋レジデンス 601の中に足を踏み入れると、広がる53.6㎡の空間が、心地よい安らぎを与えます。LDK10.7帖の広々としたリビングは、あなたの大切な人と過ごす時間を、大きなキャンバスのように彩ります。そこには、会話が弾み、美味しい料理の香りが漂い、特別な瞬間が刻まれていくことでしょう。キッチンの2.7帖は、家事をする喜びにあふれ、忙しい日常の中でも、あなたの料理の腕前が活きる場所です。隣接する洋室6帖や4.5帖の空間は、ひとときの静寂を得たり、趣味に没頭したりするための隠れ家のように機能します。自分だけの時間を大切にするあなたにとって、これらの部屋は心のオアシスとなることでしょう。
このエピック東日本橋レジデンス 601は、ただの住まいではありません。それは、あなたの人生のストーリーを織り成す舞台なのです。朝の爽やかな風とともに、都営地下鉄浅草線東日本橋駅から徒歩2分という好立地が、あなたの心を遊びに誘います。街の喧騒を離れ、静かなひと時を過ごすための完璧な拠点です。
整然としたエレベーターで上昇するその瞬間、あなたはまるで特別な世界に招待されているかのような高揚感に包まれることでしょう。オートロックの扉が開くと、あなたを守る感覚が背中を押し、その居心地の良さを再確認させてくれます。宅配ボックスや駐輪場、バイク置場が生活をサポートし、まるであなたのために設計されたかのように機能します。
周囲には、文化と歴史の息吹が息づいています。古き良き時代を感じる街並みの中で、アートギャラリーやカフェが点在し、日常生活の中に小さな刺激を与えてくれるのです。エピック東日本橋レジデンス 601での生活は、それ自体が一つのアート作品のように、あなたの感性を豊かに育んでくれる存在となるでしょう。
ここエピック東日本橋レジデンス 601で、新たな物語の主人公になってみませんか。あなたの感情が、色鮮やかな音楽のように響き、心温まる瞬間が、まるで映画の一場面のように流れ込んでくるのです。日々の生活が、あなた自身の特別なエピソードで飾られていくことでしょう。この場所での未来が、何よりの宝物となることを、心から願っています。
バイブルスコア
バイブルスコア: 12.8
高級な物件でない場合は割高な物件です。。
※バイブルスコア詳細はこちら
バイブルスコアとは独自のAI機械学習技術を利用した物件評価システムで、物件のおすすめ度を示します。最高得点は100点で、スコアが高いほど、よりおすすめの物件と評価されています。
写真
契約条件
| 賃料 | 予想金額:210,000〜230,000円程度 | 管理費 | 予想金額:8,000〜12,000円程度 |
| 礼金 | 非公開(アーカイブ) | 敷金 | 非公開(アーカイブ) |
| フリーレント | 1ヶ月 | 平米数 | 53.6㎡ |
| 間取り | 2LDK | 大型収納 | |
| 契約期間 |
| 方角 | 北東 |
| 更新料 | 契約形態 | 普通賃貸借契約 | |
| 取引態様 | 媒介 | 内見状況 | 入居中 |
| 入居時期 | 入居中 | SOHO・事務所 | |
| ペット | 間取り内訳 | 洋:6 洋:4.5 LD:10.7 K:2.7 | |
| キャンペーン情報・備考 | 本情報は賃料改定交渉の資料作成、収益物件の利回り試算、周辺エリアや最寄り駅の坪単価分析、次回募集開始時期の予測などにご活用いただけます。 | ||
※「どの不動産に頼めばいいのか分からない」「信頼できる営業マンの話を聞きたい」「一番親切な会社と契約したい」とお悩みの方におすすめなのが「高級賃貸バイブル」です。
高級賃貸バイブルは業界10年以上の熟練スタッフ群がお客様ファーストで対応します。
下記ボタンから、まずは無料でご相談下さい。
※内覧をご希望の際には、どうぞ物件のエントランス前にてお待ち合わせくださいませ。ご内覧後は、同じ場所でお別れとさせていただきます。お客様のご都合に合わせたスムーズなご案内を心がけておりますので、ご質問等がございましたら何なりとお申し付けください。 物件概要
| 物件名 |
| 築年月 |
|
|---|---|---|---|
| 所在地 | |||
| 交通 | |||
| 総戸数 |
| 総階数 |
|
| 構造 |
| ||
地図
物件までの道のりは、「拡大地図を表示」をクリックしてナビ機能をご利用ください。
部屋設備















建物設備

TVモニターホン

エレベーター

オートロック

バイク置場

宅配ボックス

敷地内ゴミ置場

管理人

駐輪場
エピック東日本橋レジデンスの現在募集中のお部屋
- No rooms found for this property.

























