
| 賃料 | 予想金額:940,000〜960,000円程度 | 管理費 | 予想金額:0〜2,000円程度 |
| 礼金/敷金 | 非公開(アーカイブ) | 平米数 | 138.81㎡ |
| 初期費用概算(参考) | 目安:5,109,500〜5,209,500 円 | みなし賃料(月額・参考) | 1,027,698〜1,047,698 円 |
| 備考 | 本ページは過去募集のアーカイブです。表示の金額は周辺相場・過去募集を踏まえた参考レンジであり、実際の契約金額・条件ではありません。 | ||
※上記みなし賃料(月額)は仲介手数料割引・無料&キャッシュバックを加味した高級賃貸バイブル限定の金額です。一般的なみなし賃料とは異なります。
【建物ページ】赤坂溜池タワーレジデンスの詳細・最新空室はこちら▶▶選ばれる理由
仲介手数料無料・キャンペーン情報(毎月15名様限定)
〇引っ越しお祝い金190000円プレゼント(キャッシュバック)
赤坂溜池タワーレジデンス 1701の口コミ・レビュー
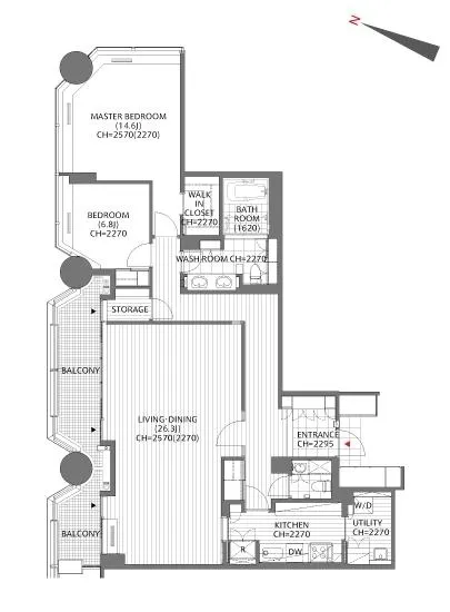
赤坂溜池タワーレジデンス 1701。あなたの新しい住まいが、まるで優雅な舞台のように、忙しい都会の喧騒を背に静かに佇んでいます。この物件は、東京の心臓部、赤坂に位置し、138.81㎡の広さを持つ2LDKの設計は、まさにあなたの新しい生活の舞台装置となることでしょう。
玄関を開けた瞬間、ふわりと漂うシックな香りが、あなたを迎えてくれます。これは、大切に選ばれた素材と洗練されたインテリアが奏でる調和…赤坂溜池タワーレジデンス 1701。あなたの新しい住まいが、まるで優雅な舞台のように、忙しい都会の喧騒を背に静かに佇んでいます。この物件は、東京の心臓部、赤坂に位置し、138.81㎡の広さを持つ2LDKの設計は、まさにあなたの新しい生活の舞台装置となることでしょう。
玄関を開けた瞬間、ふわりと漂うシックな香りが、あなたを迎えてくれます。これは、大切に選ばれた素材と洗練されたインテリアが奏でる調和の象徴です。24時間管理されたこのマンションは、まるであなたのための専属の用心棒。安全で安心な暮らしを約束してくれます。エレベーターをひらひらと上がると、優雅な空間が広がります。
赤坂溜池タワーレジデンス 1701のLDK26.3帖は、陽だまりに満ちたクリスタルのように輝き、あなたの大切な人々との時間を彩ります。大きな窓から入る爽やかな風は、日々のストレスを洗い流し、心を穏やかに整えてくれるでしょう。ここでの朝食は、香ばしいトーストと新鮮なフルーツを用意し、贅沢に時間を楽しむことができるのです。朝の光が食卓を照らし、何気ない瞬間が特別な思い出になることでしょう。
そして、洋室14.6帖、6.8帖はそれぞれの用途に合わせて、プライベート空間と趣味の世界を演出します。夢を描く場所、読書に没頭する隠れ家、あるいはお気に入りのアートが並ぶギャラリーに。ここでは、あなたのセンスと個性が輝きを放つのです。夜になれば、星空を眺めながら、静かな音楽に包まれ、心をリフレッシュさせることもできるでしょう。
さらに、フィットネスルームやフロントサービスは、まるで親しい友人のようにあなたの日常をサポートしてくれます。朝の目覚めにエネルギーを与え、夜のリラックスタイムに寄り添う。タワーならではの眺望は、あなたの日々に新たなインスピレーションを掻き立てることでしょう。窓を開けると、都会の喧騒が心地いいハーモニーとなり、心を満たしてくれます。
赤坂溜池タワーレジデンス 1701。この場所では、生活の隅々に美しさが息づいています。周辺には、歴史的な建物や文化的なスポットが点在し、毎日の散策がまるで映画のワンシーンのように演出されます。赤坂の街並みを歩けば、時折聞こえてくるジャズの旋律が、あなたの心を踊らせることでしょう。
あなたの新しい生活が、赤坂溜池タワーレジデンス 1701で始まることを心から楽しみにしています。この特別な空間が、あなたと共に歩む日々の中で、いつまでも色鮮やかな思い出を紡いでくれることを願っております。さあ、この暮らしの舞台に立ち、新たなストーリーを描いてみませんか。
玄関を開けた瞬間、ふわりと漂うシックな香りが、あなたを迎えてくれます。これは、大切に選ばれた素材と洗練されたインテリアが奏でる調和…赤坂溜池タワーレジデンス 1701。あなたの新しい住まいが、まるで優雅な舞台のように、忙しい都会の喧騒を背に静かに佇んでいます。この物件は、東京の心臓部、赤坂に位置し、138.81㎡の広さを持つ2LDKの設計は、まさにあなたの新しい生活の舞台装置となることでしょう。
玄関を開けた瞬間、ふわりと漂うシックな香りが、あなたを迎えてくれます。これは、大切に選ばれた素材と洗練されたインテリアが奏でる調和の象徴です。24時間管理されたこのマンションは、まるであなたのための専属の用心棒。安全で安心な暮らしを約束してくれます。エレベーターをひらひらと上がると、優雅な空間が広がります。
赤坂溜池タワーレジデンス 1701のLDK26.3帖は、陽だまりに満ちたクリスタルのように輝き、あなたの大切な人々との時間を彩ります。大きな窓から入る爽やかな風は、日々のストレスを洗い流し、心を穏やかに整えてくれるでしょう。ここでの朝食は、香ばしいトーストと新鮮なフルーツを用意し、贅沢に時間を楽しむことができるのです。朝の光が食卓を照らし、何気ない瞬間が特別な思い出になることでしょう。
そして、洋室14.6帖、6.8帖はそれぞれの用途に合わせて、プライベート空間と趣味の世界を演出します。夢を描く場所、読書に没頭する隠れ家、あるいはお気に入りのアートが並ぶギャラリーに。ここでは、あなたのセンスと個性が輝きを放つのです。夜になれば、星空を眺めながら、静かな音楽に包まれ、心をリフレッシュさせることもできるでしょう。
さらに、フィットネスルームやフロントサービスは、まるで親しい友人のようにあなたの日常をサポートしてくれます。朝の目覚めにエネルギーを与え、夜のリラックスタイムに寄り添う。タワーならではの眺望は、あなたの日々に新たなインスピレーションを掻き立てることでしょう。窓を開けると、都会の喧騒が心地いいハーモニーとなり、心を満たしてくれます。
赤坂溜池タワーレジデンス 1701。この場所では、生活の隅々に美しさが息づいています。周辺には、歴史的な建物や文化的なスポットが点在し、毎日の散策がまるで映画のワンシーンのように演出されます。赤坂の街並みを歩けば、時折聞こえてくるジャズの旋律が、あなたの心を踊らせることでしょう。
あなたの新しい生活が、赤坂溜池タワーレジデンス 1701で始まることを心から楽しみにしています。この特別な空間が、あなたと共に歩む日々の中で、いつまでも色鮮やかな思い出を紡いでくれることを願っております。さあ、この暮らしの舞台に立ち、新たなストーリーを描いてみませんか。
バイブルスコア
バイブルスコア: 98.0
レア物件です、すぐ仮押さえしましょう!
このお部屋は、現在ご入居中のため空室情報はございません。ただし、将来的に募集が開始される際、バイブルスコアにおいて非常に高い評価が期待されます。特にご興味をお持ちの方は、今のうちにブックマークやお気に入りに登録していただくと、募集開始のお知らせをすぐに受け取ることができます。是非ともご検討くださいませ。
※バイブルスコア詳細はこちら
バイブルスコアとは独自のAI機械学習技術を利用した物件評価システムで、物件のおすすめ度を示します。最高得点は100点で、スコアが高いほど、よりおすすめの物件と評価されています。
写真
契約条件
| 賃料 | 予想金額:940,000〜960,000円程度 | 管理費 | 予想金額:0〜2,000円程度 |
| 礼金 | 非公開(アーカイブ) | 敷金 | 非公開(アーカイブ) |
| フリーレント | なし | 平米数 | 138.81㎡ |
| 間取り | 2LDK | 大型収納 | WIC+S |
| 契約期間 | 備考を参照 | 方角 | 北西 |
| 更新料 | 備考を参照 | 契約形態 | 定期借家契約 |
| 取引態様 | 媒介 | 内見状況 | 入居中 |
| 入居時期 | 入居中 | SOHO・事務所 | |
| ペット | ペット可 | 間取り内訳 | 洋:14.6 洋:6.8 LD:26.3 |
| キャンペーン情報・備考 | 本情報は賃料改定交渉の資料作成、収益物件の利回り試算、周辺エリアや最寄り駅の坪単価分析、次回募集開始時期の予測などにご活用いただけます。 | ||
※「どの不動産に頼めばいいのか分からない」「信頼できる営業マンの話を聞きたい」「一番親切な会社と契約したい」とお悩みの方におすすめなのが「高級賃貸バイブル」です。
高級賃貸バイブルは業界10年以上の熟練スタッフ群がお客様ファーストで対応します。
下記ボタンから、まずは無料でご相談下さい。
※内覧をご希望の際には、どうぞ物件のエントランス前にてお待ち合わせくださいませ。ご内覧後は、同じ場所でお別れとさせていただきます。お客様のご都合に合わせたスムーズなご案内を心がけておりますので、ご質問等がございましたら何なりとお申し付けください。 物件概要
| 物件名 |
| 築年月 |
|
|---|---|---|---|
| 所在地 | |||
| 交通 | |||
| 総戸数 |
| 総階数 |
|
| 構造 |
| ||
地図
物件までの道のりは、「拡大地図を表示」をクリックしてナビ機能をご利用ください。
部屋設備



















建物設備

24時間管理

TVモニターホン

エレベーター

オートロック

フィットネス

フロントサービス

敷地内ゴミ置場

駐車場平置き

駐車場機械式

駐輪場
赤坂溜池タワーレジデンスの現在募集中のお部屋
- No rooms found for this property.




















