
| 賃料 | 予想金額:192,000〜212,000円程度 | 管理費 | 予想金額:13,000〜17,000円程度 |
| 礼金/敷金 | 非公開(アーカイブ) | 平米数 | 48.05㎡ |
| 初期費用概算(参考) | 目安:0〜-113,200 円 | みなし賃料(月額・参考) | 203,600〜223,600 円 |
| 備考 | 本ページは過去募集のアーカイブです。表示の金額は周辺相場・過去募集を踏まえた参考レンジであり、実際の契約金額・条件ではありません。 | ||
※上記みなし賃料(月額)は仲介手数料割引・無料&キャッシュバックを加味した高級賃貸バイブル限定の金額です。一般的なみなし賃料とは異なります。
【建物ページ】ルクレ南青山の詳細・最新空室はこちら▶▶選ばれる理由
仲介手数料無料・キャンペーン情報(毎月15名様限定)
〇引っ越しお祝い金323200円プレゼント(キャッシュバック)
〇フリーレント1か月キャンペーン
〇仲介手数料無料キャンペーン
ルクレ南青山 201の口コミ・レビュー
ルクレ南青山 201は、まるで都会の喧騒から静かに離れた隠れ家のように、あなたの新たな生活を迎え入れる準備が整っています。東京都港区南青山4-5-19に位置するこの美しい物件は、南西の優しい陽射しを浴びることで、日々を温かく包み込みます。そんな特別な空間で、あなたは一つの物語を紡ぐのです。
この家は、洗練されたデザインと機能性が見事に融合した1LDKの間取りを持ち、洋室は4.1帖、リビング・ダイ…ルクレ南青山 201は、まるで都会の喧騒から静かに離れた隠れ家のように、あなたの新たな生活を迎え入れる準備が整っています。東京都港区南青山4-5-19に位置するこの美しい物件は、南西の優しい陽射しを浴びることで、日々を温かく包み込みます。そんな特別な空間で、あなたは一つの物語を紡ぐのです。
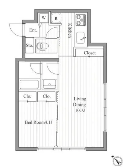
この家は、洗練されたデザインと機能性が見事に融合した1LDKの間取りを持ち、洋室は4.1帖、リビング・ダイニング・キッチン(LDK)は10.7帖の広さを誇ります。48.05㎡の面積は、まるで大切な宝物のように、心地よい居場所を提供します。足を踏み入れた瞬間、柔らかなウッドフロアが優しくあなたを迎え入れ、静謐な空間が心を落ち着かせてくれることでしょう。
ルクレ南青山 201は、まるで親しい友人のように住む人々に語りかけます。「私の中で、素敵な朝を迎えましょう。カーテンを開けると、南西の窓から光が舞い込む。新鮮なコーヒーの香りが漂い、あなたの一日を始める準備ができる。」料理を楽しむキッチンでは、食材が豊かに並び、もしかしたら友人たちを招待して笑い声が響くことでしょう。料理の香ばしい匂いが流れ込む中、陽射しが差し込むリビングは、友情と幸福に満ち溢れる空間へと変わります。
また、ルクレ南青山 201は、オートロックや宅配ボックスなど、現代に必要不可欠な設備も揃い、安心と便利さを提供します。あなたの人生に寄り添うこの家は、ただの収納スペースではなく、思い出を刻む舞台でもあります。デザイナーズの特徴が感じられる洗練された雰囲気が、日々の暮らしを特別なものにしてくれるのです。
周囲には、芸術の香りが漂う文化的な施設も点在しています。外苑前駅まで徒歩9分の距離には、セーニャアートギャラリーなど、アートに触れる機会が豊富です。心に響く作品に出会った際には、ルクレ南青山 201の窓を開け、風を感じながらその美を深く噛みしめることでしょう。生活と芸術が交差するこの場所で、日々の暮らしがより豊かになり、新たなインスピレーションが生まれるのです。
ルクレ南青山 201での生活は、いわば一つの映画のワンシーン。暮らしの中で出会うさまざまな瞬間が、あなたを新たな冒険へと誘います。ここは、あなたの物語が始まる場所なのです。さあ、ルクレ南青山 201の扉を開き、心躍る新たな日々を迎え入れてください。
この家は、洗練されたデザインと機能性が見事に融合した1LDKの間取りを持ち、洋室は4.1帖、リビング・ダイ…ルクレ南青山 201は、まるで都会の喧騒から静かに離れた隠れ家のように、あなたの新たな生活を迎え入れる準備が整っています。東京都港区南青山4-5-19に位置するこの美しい物件は、南西の優しい陽射しを浴びることで、日々を温かく包み込みます。そんな特別な空間で、あなたは一つの物語を紡ぐのです。
この家は、洗練されたデザインと機能性が見事に融合した1LDKの間取りを持ち、洋室は4.1帖、リビング・ダイニング・キッチン(LDK)は10.7帖の広さを誇ります。48.05㎡の面積は、まるで大切な宝物のように、心地よい居場所を提供します。足を踏み入れた瞬間、柔らかなウッドフロアが優しくあなたを迎え入れ、静謐な空間が心を落ち着かせてくれることでしょう。
ルクレ南青山 201は、まるで親しい友人のように住む人々に語りかけます。「私の中で、素敵な朝を迎えましょう。カーテンを開けると、南西の窓から光が舞い込む。新鮮なコーヒーの香りが漂い、あなたの一日を始める準備ができる。」料理を楽しむキッチンでは、食材が豊かに並び、もしかしたら友人たちを招待して笑い声が響くことでしょう。料理の香ばしい匂いが流れ込む中、陽射しが差し込むリビングは、友情と幸福に満ち溢れる空間へと変わります。
また、ルクレ南青山 201は、オートロックや宅配ボックスなど、現代に必要不可欠な設備も揃い、安心と便利さを提供します。あなたの人生に寄り添うこの家は、ただの収納スペースではなく、思い出を刻む舞台でもあります。デザイナーズの特徴が感じられる洗練された雰囲気が、日々の暮らしを特別なものにしてくれるのです。
周囲には、芸術の香りが漂う文化的な施設も点在しています。外苑前駅まで徒歩9分の距離には、セーニャアートギャラリーなど、アートに触れる機会が豊富です。心に響く作品に出会った際には、ルクレ南青山 201の窓を開け、風を感じながらその美を深く噛みしめることでしょう。生活と芸術が交差するこの場所で、日々の暮らしがより豊かになり、新たなインスピレーションが生まれるのです。
ルクレ南青山 201での生活は、いわば一つの映画のワンシーン。暮らしの中で出会うさまざまな瞬間が、あなたを新たな冒険へと誘います。ここは、あなたの物語が始まる場所なのです。さあ、ルクレ南青山 201の扉を開き、心躍る新たな日々を迎え入れてください。
バイブルスコア
バイブルスコア: 35.0
平均的なスコアです。
※バイブルスコア詳細はこちら
バイブルスコアとは独自のAI機械学習技術を利用した物件評価システムで、物件のおすすめ度を示します。最高得点は100点で、スコアが高いほど、よりおすすめの物件と評価されています。
写真
契約条件
| 賃料 | 予想金額:192,000〜212,000円程度 | 管理費 | 予想金額:13,000〜17,000円程度 |
| 礼金 | 非公開(アーカイブ) | 敷金 | 非公開(アーカイブ) |
| フリーレント | 1.0ヶ月 | 平米数 | 48.05㎡ |
| 間取り | 1LDK | 大型収納 | |
| 契約期間 |
| 方角 | 南西 |
| 更新料 | 契約形態 | 普通賃貸借契約 | |
| 取引態様 | 媒介 | 内見状況 | 入居中 |
| 入居時期 | 入居中 | SOHO・事務所 | |
| ペット | 間取り内訳 | 洋:4.1 LDK:10.7 | |
| キャンペーン情報・備考 | 本情報は賃料改定交渉の資料作成、収益物件の利回り試算、周辺エリアや最寄り駅の坪単価分析、次回募集開始時期の予測などにご活用いただけます。 | ||
※「どの不動産に頼めばいいのか分からない」「信頼できる営業マンの話を聞きたい」「一番親切な会社と契約したい」とお悩みの方におすすめなのが「高級賃貸バイブル」です。
高級賃貸バイブルは業界10年以上の熟練スタッフ群がお客様ファーストで対応します。
下記ボタンから、まずは無料でご相談下さい。
※内覧をご希望の際には、どうぞ物件のエントランス前にてお待ち合わせくださいませ。ご内覧後は、同じ場所でお別れとさせていただきます。お客様のご都合に合わせたスムーズなご案内を心がけておりますので、ご質問等がございましたら何なりとお申し付けください。 物件概要
| 物件名 |
| 築年月 |
|
|---|---|---|---|
| 所在地 | |||
| 交通 | |||
| 総戸数 |
| 総階数 |
|
| 構造 |
| ||
地図
物件までの道のりは、「拡大地図を表示」をクリックしてナビ機能をご利用ください。
部屋設備















建物設備

TVモニターホン

オートロック

宅配ボックス

敷地内ゴミ置場

駐輪場
ルクレ南青山の現在募集中のお部屋
- No rooms found for this property.


