
| 賃料 | 予想金額:220,000〜240,000円程度 | 管理費 | 予想金額:7,000〜11,000円程度 |
| 礼金/敷金 | 非公開(アーカイブ) | 平米数 | 52.56㎡ |
| 初期費用概算(参考) | 目安:529,000〜629,000 円 | みなし賃料(月額・参考) | 241,063〜261,063 円 |
| 備考 | 本ページは過去募集のアーカイブです。表示の金額は周辺相場・過去募集を踏まえた参考レンジであり、実際の契約金額・条件ではありません。 | ||
※上記みなし賃料(月額)は仲介手数料割引・無料&キャッシュバックを加味した高級賃貸バイブル限定の金額です。一般的なみなし賃料とは異なります。
【建物ページ】エルスタンザ中目黒の詳細・最新空室はこちら▶▶選ばれる理由
仲介手数料無料・キャンペーン情報(毎月15名様限定)
〇引っ越しお祝い金46000円プレゼント(キャッシュバック)
〇フリーレント1か月キャンペーン
〇仲介手数料無料キャンペーン
エルスタンザ中目黒 301の口コミ・レビュー
エルスタンザ中目黒 301。この名前を耳にした瞬間、心の奥底から繊細な期待が芽生えます。まるで一つの芸術作品のように、あなたを包み込むこの物件は、ただの住まいではなく、生活そのものを彩る舞台なのです。301という番号は、あなたが新たな物語を始める入口となる特別な場所。南向きの窓から注ぎ込む陽光は、優しく柔らかな光のカーテンのように、あなたの心を解きほぐしてくれるでしょう。
このエルスタンザ中目黒…エルスタンザ中目黒 301。この名前を耳にした瞬間、心の奥底から繊細な期待が芽生えます。まるで一つの芸術作品のように、あなたを包み込むこの物件は、ただの住まいではなく、生活そのものを彩る舞台なのです。301という番号は、あなたが新たな物語を始める入口となる特別な場所。南向きの窓から注ぎ込む陽光は、優しく柔らかな光のカーテンのように、あなたの心を解きほぐしてくれるでしょう。
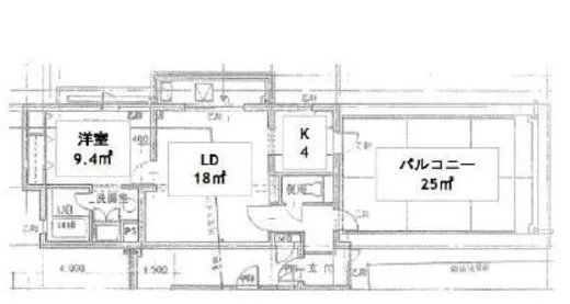
このエルスタンザ中目黒 301には、52.56㎡の広がりがあり、その配置はまるで熟練のアーティストが描いた一枚の絵画のようにバランスが取れています。LDKは、まるであなたの個室ギャラリー。11.6帖の贅沢な空間に身を置けば、豊かな発想が溢れ、日常の喧騒から解放されることでしょう。洋室の4.5帖は、安らぎと静寂のオアシスとして、あなたの疲れを癒してくれます。
鮮やかな陽射しに照らされ、まるで新鮮な果実を彷彿とさせるリビングは、あなたが料理をする姿を優雅に演出します。食材の香ばしい香りが漂い、カフェのような心地良い雰囲気が、自然と集う人々の笑顔を引き出します。ここで過ごす時間は、あなたの人生の主役となる瞬間を紡ぐのです。
エルスタンザ中目黒 301は、ただのマンションではありません。まるで親しい友人が、あなたの帰りを待ちわびているかのように、この空間はあなたを迎え入れます。高級感漂うエントランスは、洗練されたデザインが秀逸で、通るたびに心を躍らせることでしょう。オートロックやTVモニターホンといった設備も備わっており、安全で快適な暮らしをサポートします。それはまるで、あなたを守る守護天使のような存在。
周辺の環境もまた、エルスタンザ中目黒 301の魅力の一つです。東京急行電鉄東急東横線の祐天寺駅から徒歩11分の距離には、洗練されたカフェやおしゃれなショップ、緑あふれる公園が点在しています。街の歴史を感じる風情ある景観の中で、あなたの日常がさらに豊かになること間違いありません。
このエルスタンザ中目黒 301での生活は、まるで映画のワンシーンのように美しく、あなたの感性を刺激します。目を閉じて、心の中の物語を描いてみてください。愛する人と共に笑い合うひととき、静かな夜に星空を眺める瞬間、そして自分自身のための特別な時間を創り出すことができるのです。
エルスタンザ中目黒 301で、あなただけの特別な日常を紡いでみませんか。ここには、ただの住宅を超えた、豊かな生活が待っています。あなたを優しく包み込むこの空間で、新しい物語の幕を開けてください。
このエルスタンザ中目黒…エルスタンザ中目黒 301。この名前を耳にした瞬間、心の奥底から繊細な期待が芽生えます。まるで一つの芸術作品のように、あなたを包み込むこの物件は、ただの住まいではなく、生活そのものを彩る舞台なのです。301という番号は、あなたが新たな物語を始める入口となる特別な場所。南向きの窓から注ぎ込む陽光は、優しく柔らかな光のカーテンのように、あなたの心を解きほぐしてくれるでしょう。
このエルスタンザ中目黒 301には、52.56㎡の広がりがあり、その配置はまるで熟練のアーティストが描いた一枚の絵画のようにバランスが取れています。LDKは、まるであなたの個室ギャラリー。11.6帖の贅沢な空間に身を置けば、豊かな発想が溢れ、日常の喧騒から解放されることでしょう。洋室の4.5帖は、安らぎと静寂のオアシスとして、あなたの疲れを癒してくれます。
鮮やかな陽射しに照らされ、まるで新鮮な果実を彷彿とさせるリビングは、あなたが料理をする姿を優雅に演出します。食材の香ばしい香りが漂い、カフェのような心地良い雰囲気が、自然と集う人々の笑顔を引き出します。ここで過ごす時間は、あなたの人生の主役となる瞬間を紡ぐのです。
エルスタンザ中目黒 301は、ただのマンションではありません。まるで親しい友人が、あなたの帰りを待ちわびているかのように、この空間はあなたを迎え入れます。高級感漂うエントランスは、洗練されたデザインが秀逸で、通るたびに心を躍らせることでしょう。オートロックやTVモニターホンといった設備も備わっており、安全で快適な暮らしをサポートします。それはまるで、あなたを守る守護天使のような存在。
周辺の環境もまた、エルスタンザ中目黒 301の魅力の一つです。東京急行電鉄東急東横線の祐天寺駅から徒歩11分の距離には、洗練されたカフェやおしゃれなショップ、緑あふれる公園が点在しています。街の歴史を感じる風情ある景観の中で、あなたの日常がさらに豊かになること間違いありません。
このエルスタンザ中目黒 301での生活は、まるで映画のワンシーンのように美しく、あなたの感性を刺激します。目を閉じて、心の中の物語を描いてみてください。愛する人と共に笑い合うひととき、静かな夜に星空を眺める瞬間、そして自分自身のための特別な時間を創り出すことができるのです。
エルスタンザ中目黒 301で、あなただけの特別な日常を紡いでみませんか。ここには、ただの住宅を超えた、豊かな生活が待っています。あなたを優しく包み込むこの空間で、新しい物語の幕を開けてください。
バイブルスコア
バイブルスコア: 40.8
条件のいい物件です、引っ越しが2か月以内の場合は仮申し込みを検討すべき物件です。
※バイブルスコア詳細はこちら
バイブルスコアとは独自のAI機械学習技術を利用した物件評価システムで、物件のおすすめ度を示します。最高得点は100点で、スコアが高いほど、よりおすすめの物件と評価されています。
写真
現在写真が登録されていません契約条件
| 賃料 | 予想金額:220,000〜240,000円程度 | 管理費 | 予想金額:7,000〜11,000円程度 |
| 礼金 | 非公開(アーカイブ) | 敷金 | 非公開(アーカイブ) |
| フリーレント | 1ヶ月 | 平米数 | 52.56㎡ |
| 間取り | 1LDK | 大型収納 | なし |
| 契約期間 | 2年 | 方角 | 南 |
| 更新料 | 1ヶ月 | 契約形態 | 普通賃貸借契約 |
| 取引態様 | 媒介 | 内見状況 | 入居中 |
| 入居時期 | 入居中 | SOHO・事務所 | 不可 |
| ペット | 不可 | 間取り内訳 | LDK 洋室 |
| キャンペーン情報・備考 | 本情報は賃料改定交渉の資料作成、収益物件の利回り試算、周辺エリアや最寄り駅の坪単価分析、次回募集開始時期の予測などにご活用いただけます。 | ||
※「どの不動産に頼めばいいのか分からない」「信頼できる営業マンの話を聞きたい」「一番親切な会社と契約したい」とお悩みの方におすすめなのが「高級賃貸バイブル」です。
高級賃貸バイブルは業界10年以上の熟練スタッフ群がお客様ファーストで対応します。
下記ボタンから、まずは無料でご相談下さい。
※内覧をご希望の際には、どうぞ物件のエントランス前にてお待ち合わせくださいませ。ご内覧後は、同じ場所でお別れとさせていただきます。お客様のご都合に合わせたスムーズなご案内を心がけておりますので、ご質問等がございましたら何なりとお申し付けください。 物件概要
| 物件名 |
| 築年月 |
|
|---|---|---|---|
| 所在地 | |||
| 交通 | |||
| 総戸数 |
| 総階数 |
|
| 構造 |
| ||
地図
物件までの道のりは、「拡大地図を表示」をクリックしてナビ機能をご利用ください。
部屋設備









建物設備

TVモニターホン

オートロック

駐輪場
エルスタンザ中目黒の現在募集中のお部屋
- No rooms found for this property.
