
| 賃料 | 予想金額:145,000〜165,000円程度 | 管理費 | 予想金額:8,000〜12,000円程度 |
| 礼金/敷金 | 非公開(アーカイブ) | 平米数 | 36.7㎡ |
| 初期費用概算(参考) | 目安:509,900〜609,900 円 | みなし賃料(月額・参考) | 163,435〜183,435 円 |
| 備考 | 本ページは過去募集のアーカイブです。表示の金額は周辺相場・過去募集を踏まえた参考レンジであり、実際の契約金額・条件ではありません。 | ||
※上記みなし賃料(月額)は仲介手数料割引・無料&キャッシュバックを加味した高級賃貸バイブル限定の金額です。一般的なみなし賃料とは異なります。
【建物ページ】レジディア神楽坂2の詳細・最新空室はこちら▶▶選ばれる理由
仲介手数料無料・キャンペーン情報(毎月15名様限定)
〇引っ越しお祝い金34100円プレゼント(キャッシュバック)
〇仲介手数料無料キャンペーン
レジディア神楽坂2 303の口コミ・レビュー
レジディア神楽坂2 303。これは、ただの物件名ではなく、心の底から安らぎを求めるすべての方々へ贈る、特別な空間への招待状です。この303号室は、まるで優雅な舞台背景のように、あなたの日常を彩る舞台となることでしょう。36.7㎡というスペースは、洗練されたデザインと機能性が見事に調和し、あなたを包み込む温もりを持っています。
この素敵な空間へ足を踏み入れた瞬間、目の前に広がるのは、豊かなテクスチ…レジディア神楽坂2 303。これは、ただの物件名ではなく、心の底から安らぎを求めるすべての方々へ贈る、特別な空間への招待状です。この303号室は、まるで優雅な舞台背景のように、あなたの日常を彩る舞台となることでしょう。36.7㎡というスペースは、洗練されたデザインと機能性が見事に調和し、あなたを包み込む温もりを持っています。
この素敵な空間へ足を踏み入れた瞬間、目の前に広がるのは、豊かなテクスチャーに触れられた、スタイリッシュなリビングダイニングキッチン(LDK:10帖)。その広がりの中に、あなたの物語が紡がれていくことを想像してください。明るく差し込む東の光が、あなたの心をふんわりと温め、静かな北の風音が、まるで優しいささやきのように寄り添います。
レジディア神楽坂2 303は、ただ居住するための場所ではなく、生活の舞台です。美食を楽しむ夕べや、友人たちとの語らいの場として、キッチンでの料理に情熱を注ぎ、贅沢なひとときを演出できます。モニターホンが、安心とともに、あなたの日常を見守り、朝の香ばしいコーヒーの香りが、心を豊かにすることでしょう。
一歩外に出れば、神楽坂の静謐な街並みが広がります。歴史ある神社や独特な風情を持つ小道が、あなたの散歩を特別なものにしてくれます。この場所は、単なる居住地ではなく、あなたの感性を刺激するアートのような存在となります。美術館やギャラリー、喫茶店、そして数々の文化的スポットが、日常の一部に調和し、あなたの生活を豊かにすることでしょう。
さらに、レジディア神楽坂2 303には、エレガントなデザイナーズの風格が漂っています。オートロックや宅配ボックス、駐輪場といった便利な設備は、現代の生活を快適にし、管理人が見守る安心感が、心地よい日々を約束します。都会の喧騒から逃れ、ここで自分自身と向き合う、そんな瞬間を大切にしてください。
この303号室は、あなたを迎えるために存在しています。新たな生活の舞台で、愛と感動に包まれた毎日を送ることができるのです。さあ、あなたの新しい物語を、レジディア神楽坂2 303から始めてみてはいかがでしょうか。あなたの心の中に、新たな風景が広がります。
この素敵な空間へ足を踏み入れた瞬間、目の前に広がるのは、豊かなテクスチ…レジディア神楽坂2 303。これは、ただの物件名ではなく、心の底から安らぎを求めるすべての方々へ贈る、特別な空間への招待状です。この303号室は、まるで優雅な舞台背景のように、あなたの日常を彩る舞台となることでしょう。36.7㎡というスペースは、洗練されたデザインと機能性が見事に調和し、あなたを包み込む温もりを持っています。
この素敵な空間へ足を踏み入れた瞬間、目の前に広がるのは、豊かなテクスチャーに触れられた、スタイリッシュなリビングダイニングキッチン(LDK:10帖)。その広がりの中に、あなたの物語が紡がれていくことを想像してください。明るく差し込む東の光が、あなたの心をふんわりと温め、静かな北の風音が、まるで優しいささやきのように寄り添います。
レジディア神楽坂2 303は、ただ居住するための場所ではなく、生活の舞台です。美食を楽しむ夕べや、友人たちとの語らいの場として、キッチンでの料理に情熱を注ぎ、贅沢なひとときを演出できます。モニターホンが、安心とともに、あなたの日常を見守り、朝の香ばしいコーヒーの香りが、心を豊かにすることでしょう。
一歩外に出れば、神楽坂の静謐な街並みが広がります。歴史ある神社や独特な風情を持つ小道が、あなたの散歩を特別なものにしてくれます。この場所は、単なる居住地ではなく、あなたの感性を刺激するアートのような存在となります。美術館やギャラリー、喫茶店、そして数々の文化的スポットが、日常の一部に調和し、あなたの生活を豊かにすることでしょう。
さらに、レジディア神楽坂2 303には、エレガントなデザイナーズの風格が漂っています。オートロックや宅配ボックス、駐輪場といった便利な設備は、現代の生活を快適にし、管理人が見守る安心感が、心地よい日々を約束します。都会の喧騒から逃れ、ここで自分自身と向き合う、そんな瞬間を大切にしてください。
この303号室は、あなたを迎えるために存在しています。新たな生活の舞台で、愛と感動に包まれた毎日を送ることができるのです。さあ、あなたの新しい物語を、レジディア神楽坂2 303から始めてみてはいかがでしょうか。あなたの心の中に、新たな風景が広がります。
バイブルスコア
バイブルスコア: 28.1
平均的なスコアです。
※バイブルスコア詳細はこちら
バイブルスコアとは独自のAI機械学習技術を利用した物件評価システムで、物件のおすすめ度を示します。最高得点は100点で、スコアが高いほど、よりおすすめの物件と評価されています。
写真
契約条件
| 賃料 | 予想金額:145,000〜165,000円程度 | 管理費 | 予想金額:8,000〜12,000円程度 |
| 礼金 | 非公開(アーカイブ) | 敷金 | 非公開(アーカイブ) |
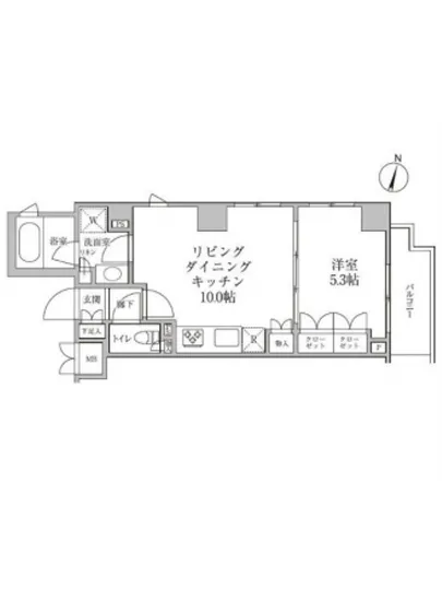
| フリーレント | なし | 平米数 | 36.7㎡ |
| 間取り | 1LDK | 大型収納 | |
| 契約期間 |
| 方角 | 東 / 北 |
| 更新料 | 契約形態 | 普通賃貸借契約 | |
| 取引態様 | 媒介 | 内見状況 | 入居中 |
| 入居時期 | 入居中 | SOHO・事務所 | |
| ペット | 間取り内訳 | 洋:5.3 LDK:10 | |
| キャンペーン情報・備考 | 本情報は賃料改定交渉の資料作成、収益物件の利回り試算、周辺エリアや最寄り駅の坪単価分析、次回募集開始時期の予測などにご活用いただけます。 | ||
※「どの不動産に頼めばいいのか分からない」「信頼できる営業マンの話を聞きたい」「一番親切な会社と契約したい」とお悩みの方におすすめなのが「高級賃貸バイブル」です。
高級賃貸バイブルは業界10年以上の熟練スタッフ群がお客様ファーストで対応します。
下記ボタンから、まずは無料でご相談下さい。
※内覧をご希望の際には、どうぞ物件のエントランス前にてお待ち合わせくださいませ。ご内覧後は、同じ場所でお別れとさせていただきます。お客様のご都合に合わせたスムーズなご案内を心がけておりますので、ご質問等がございましたら何なりとお申し付けください。 物件概要
| 物件名 |
| 築年月 |
|
|---|---|---|---|
| 所在地 | |||
| 交通 | |||
| 総戸数 |
| 総階数 |
|
| 構造 |
| ||
地図
物件までの道のりは、「拡大地図を表示」をクリックしてナビ機能をご利用ください。
部屋設備














建物設備

TVモニターホン

エレベーター

オートロック

バイク置場

宅配ボックス

敷地内ゴミ置場

管理人

駐輪場
レジディア神楽坂2の現在募集中のお部屋
- レジディア神楽坂Ⅱ 303 - 間取り: 1LDK - 賃料: 17.8万円









