
| 賃料 | 予想金額:270,000〜290,000円程度 | 管理費 | 予想金額:13,000〜17,000円程度 |
| 礼金/敷金 | 非公開(アーカイブ) | 平米数 | 59.55㎡ |
| 初期費用概算(参考) | 目安:959,000〜1,059,000 円 | みなし賃料(月額・参考) | 300,188〜320,188 円 |
| 備考 | 本ページは過去募集のアーカイブです。表示の金額は周辺相場・過去募集を踏まえた参考レンジであり、実際の契約金額・条件ではありません。 | ||
※上記みなし賃料(月額)は仲介手数料割引・無料&キャッシュバックを加味した高級賃貸バイブル限定の金額です。一般的なみなし賃料とは異なります。
【建物ページ】レジディア広尾南の詳細・最新空室はこちら▶▶選ばれる理由
仲介手数料無料・キャンペーン情報(毎月15名様限定)
〇引っ越しお祝い金30000円プレゼント(キャッシュバック)
〇仲介手数料無料キャンペーン
レジディア広尾南 1001の口コミ・レビュー
レジディア広尾南 1001は、まるで宝石のように煌めく新しい暮らしの舞台です。東京都渋谷区恵比寿2-38-1という恵まれた地に、あなたを心待ちにしています。ここは南東を向き、日差しが心地よく滑り込む居住空間が広がっています。その温かな光があなたの日常を照らし、穏やかな幸せの始まりを予感させてくれることでしょう。
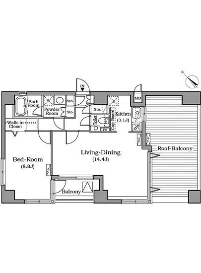
この高級賃貸物件は、1LDKという贅沢な間取りを誇り、そのサイズは59.55㎡。リビ…レジディア広尾南 1001は、まるで宝石のように煌めく新しい暮らしの舞台です。東京都渋谷区恵比寿2-38-1という恵まれた地に、あなたを心待ちにしています。ここは南東を向き、日差しが心地よく滑り込む居住空間が広がっています。その温かな光があなたの日常を照らし、穏やかな幸せの始まりを予感させてくれることでしょう。
この高級賃貸物件は、1LDKという贅沢な間取りを誇り、そのサイズは59.55㎡。リビングダイニングは、14.4帖というゆとりのスペースがあり、あなたの大切な時間を心地よく演出します。料理をしながら心地よい音楽を流し、家族や友人とともに食卓を囲むシーンが、目に浮かびます。キッチンは3.1帖の広さで、料理の腕を振るう楽しみを倍増させてくれることでしょう。そして、8.8帖の寝室は、まるで柔らかな雲に包まれているかのような安らぎを与えてくれます。心ゆくまでリラックスし、夢の世界へと導いてくれそうです。
レジディア広尾南 1001に住むことは、まるで自分だけの映画の主人公になるような体験です。朝日が燦々と降り注ぐ中、窓を開け、澄んだ空気の中に漂うコーヒーの香りを吸い込む。あなたの身の回りには、優雅で洗練されたデザインがさりげなく息づき、生活空間がまるでアートの一部のように感じられます。TVモニターホンやエレベーター、オートロックのセキュリティが安心をもたらし、贅沢な生活が手の届くところにあるのです。
また、広尾駅からは徒歩わずか9分。周辺の文化や歴史に触れながら、街並みを散策するのも素敵な日課となるでしょう。恵比寿の喧騒を少し離れたこの場所から見る街の景色は、まさに心踊るような冒険の始まりを告げています。バイク置場や駐輪場、宅配ボックスが完備されているため、ライフスタイルに合わせた便利さを実感しつつ、毎日が新たな物語の一ページになるのです。
レジディア広尾南 1001はただの住まいではありません。それは、人々の心を捉え、日々の生活に彩りを加える豊かな舞台であり、そこでの生活は貴族のような贅沢さをもたらします。あなたの大切な時間を、この美しい空間で紡ぎ出してみませんか。心が求める美と快適さが揃うこの場所で、素晴らしい日々があなたを待っています。あなたにしか感じられない魅力が、ここには確かに存在しています。
この高級賃貸物件は、1LDKという贅沢な間取りを誇り、そのサイズは59.55㎡。リビ…レジディア広尾南 1001は、まるで宝石のように煌めく新しい暮らしの舞台です。東京都渋谷区恵比寿2-38-1という恵まれた地に、あなたを心待ちにしています。ここは南東を向き、日差しが心地よく滑り込む居住空間が広がっています。その温かな光があなたの日常を照らし、穏やかな幸せの始まりを予感させてくれることでしょう。
この高級賃貸物件は、1LDKという贅沢な間取りを誇り、そのサイズは59.55㎡。リビングダイニングは、14.4帖というゆとりのスペースがあり、あなたの大切な時間を心地よく演出します。料理をしながら心地よい音楽を流し、家族や友人とともに食卓を囲むシーンが、目に浮かびます。キッチンは3.1帖の広さで、料理の腕を振るう楽しみを倍増させてくれることでしょう。そして、8.8帖の寝室は、まるで柔らかな雲に包まれているかのような安らぎを与えてくれます。心ゆくまでリラックスし、夢の世界へと導いてくれそうです。
レジディア広尾南 1001に住むことは、まるで自分だけの映画の主人公になるような体験です。朝日が燦々と降り注ぐ中、窓を開け、澄んだ空気の中に漂うコーヒーの香りを吸い込む。あなたの身の回りには、優雅で洗練されたデザインがさりげなく息づき、生活空間がまるでアートの一部のように感じられます。TVモニターホンやエレベーター、オートロックのセキュリティが安心をもたらし、贅沢な生活が手の届くところにあるのです。
また、広尾駅からは徒歩わずか9分。周辺の文化や歴史に触れながら、街並みを散策するのも素敵な日課となるでしょう。恵比寿の喧騒を少し離れたこの場所から見る街の景色は、まさに心踊るような冒険の始まりを告げています。バイク置場や駐輪場、宅配ボックスが完備されているため、ライフスタイルに合わせた便利さを実感しつつ、毎日が新たな物語の一ページになるのです。
レジディア広尾南 1001はただの住まいではありません。それは、人々の心を捉え、日々の生活に彩りを加える豊かな舞台であり、そこでの生活は貴族のような贅沢さをもたらします。あなたの大切な時間を、この美しい空間で紡ぎ出してみませんか。心が求める美と快適さが揃うこの場所で、素晴らしい日々があなたを待っています。あなたにしか感じられない魅力が、ここには確かに存在しています。
バイブルスコア
バイブルスコア: 16.2
高級な物件でない場合は割高な物件です。。
※バイブルスコア詳細はこちら
バイブルスコアとは独自のAI機械学習技術を利用した物件評価システムで、物件のおすすめ度を示します。最高得点は100点で、スコアが高いほど、よりおすすめの物件と評価されています。
写真
現在写真が登録されていません契約条件
| 賃料 | 予想金額:270,000〜290,000円程度 | 管理費 | 予想金額:13,000〜17,000円程度 |
| 礼金 | 非公開(アーカイブ) | 敷金 | 非公開(アーカイブ) |
| フリーレント | なし | 平米数 | 59.55㎡ |
| 間取り | 1LDK | 大型収納 | WIC |
| 契約期間 |
| 方角 | 南東 |
| 更新料 | 契約形態 | 普通賃貸借契約 | |
| 取引態様 | 媒介 | 内見状況 | 入居中 |
| 入居時期 | 入居中 | SOHO・事務所 | |
| ペット | ペット可 | 間取り内訳 | LD=14.4J / K=3.1J / BR=8.8J |
| キャンペーン情報・備考 | 本情報は賃料改定交渉の資料作成、収益物件の利回り試算、周辺エリアや最寄り駅の坪単価分析、次回募集開始時期の予測などにご活用いただけます。 | ||
※「どの不動産に頼めばいいのか分からない」「信頼できる営業マンの話を聞きたい」「一番親切な会社と契約したい」とお悩みの方におすすめなのが「高級賃貸バイブル」です。
高級賃貸バイブルは業界10年以上の熟練スタッフ群がお客様ファーストで対応します。
下記ボタンから、まずは無料でご相談下さい。
※内覧をご希望の際には、どうぞ物件のエントランス前にてお待ち合わせくださいませ。ご内覧後は、同じ場所でお別れとさせていただきます。お客様のご都合に合わせたスムーズなご案内を心がけておりますので、ご質問等がございましたら何なりとお申し付けください。 物件概要
| 物件名 |
| 築年月 |
|
|---|---|---|---|
| 所在地 | |||
| 交通 | |||
| 総戸数 |
| 総階数 |
|
| 構造 |
| ||
地図
物件までの道のりは、「拡大地図を表示」をクリックしてナビ機能をご利用ください。
部屋設備


















建物設備

TVモニターホン

エレベーター

オートロック

バイク置場

宅配ボックス

敷地内ゴミ置場

駐車場平置き

駐輪場
レジディア広尾南の現在募集中のお部屋
- レジディア広尾南 303 - 間取り: 1LDK - 賃料: 20.3万円
