
| 賃料 | 予想金額:184,000〜204,000円程度 | 管理費 | 予想金額:18,000〜22,000円程度 |
| 礼金/敷金 | 非公開(アーカイブ) | 平米数 | 37.22㎡ |
| 初期費用概算(参考) | 目安:168,500〜268,500 円 | みなし賃料(月額・参考) | 208,552〜228,552 円 |
| 備考 | 本ページは過去募集のアーカイブです。表示の金額は周辺相場・過去募集を踏まえた参考レンジであり、実際の契約金額・条件ではありません。 | ||
※上記みなし賃料(月額)は仲介手数料割引・無料&キャッシュバックを加味した高級賃貸バイブル限定の金額です。一般的なみなし賃料とは異なります。
【建物ページ】ミリアレジデンス新宿御苑2の詳細・最新空室はこちら▶▶選ばれる理由
仲介手数料無料・キャンペーン情報(毎月15名様限定)
〇フリーレント3か月キャンペーン
ミリアレジデンス新宿御苑2 202の口コミ・レビュー
ミリアレジデンス新宿御苑2 202。あなたが求めていたのは、ただの住まいではありません。ここは、色とりどりの夢が香る舞台であり、洗練された生活のキャンバスです。37.22㎡の空間に息づくのは、あなたの人生を彩る幸福の断片です。たった5分の距離にある東京メトロ丸ノ内線新宿御苑前駅から、あなたは新たな冒険の扉を開くことができます。
ここ、ミリアレジデンス新宿御苑2 202では、朝の光が西の窓から柔ら…ミリアレジデンス新宿御苑2 202。あなたが求めていたのは、ただの住まいではありません。ここは、色とりどりの夢が香る舞台であり、洗練された生活のキャンバスです。37.22㎡の空間に息づくのは、あなたの人生を彩る幸福の断片です。たった5分の距離にある東京メトロ丸ノ内線新宿御苑前駅から、あなたは新たな冒険の扉を開くことができます。
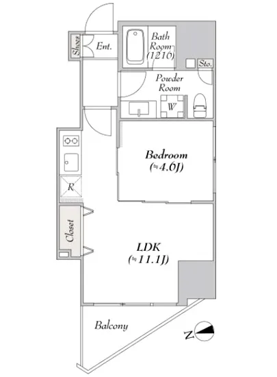
ここ、ミリアレジデンス新宿御苑2 202では、朝の光が西の窓から柔らかく差し込み、あなたの目を優しく覚まします。目を開けば、日々の繁忙から解放される瞬間が待っています。LDK11.1帖の広さが、あなたの心を解き放ち、創造力をかき立てる居住空間を提供します。洋室4.6帖は、静謐なプライベートゾーン。自分自身を見つめ直し、穏やかな時間を過ごすための特等席です。
この物件は、まるで親しい友人のようにあなたに寄り添い、必要なときに必要な安心感を与えてくれるオートロックや宅配ボックスも完備しています。エレベーターでの上昇感は、まるで夢のようにあなたを運び、毎日の出入りを特別なものにします。お部屋の中では、TVモニターホンが訪問者を見守り、安心感を持って新しい出会いを迎え入れることができます。
新宿御苑という名の文化と歴史が息づく場所に位置し、季節の移ろいを感じることができるこの地に、新たな生活のストーリーを描いてください。春の桜が咲き誇り、夏の緑が生い茂る様子は、まるで映画のワンシーンのように色鮮やかにあなたの心を魅了します。秋には紅葉が舞い散り、冬には雪化粧の景色があなたを訪れることでしょう。その時々の自然の美しさに包まれて、あなたの日常は、どの瞬間も特別な風景になります。
ミリアレジデンス新宿御苑2 202は、ただの高級賃貸物件ではありません。ここは、あなたが主人公となり、あらゆる感覚を満たす生活を日々楽しむ舞台です。騒音の喧騒を離れ、落ち着いた環境で心身をリフレッシュし、ゆったりとした時間を味わっていただけます。自宅で過ごす毎日は、コーヒーの香りが漂うリビングでの静かな朝食だったり、友人を招いての楽しいディナーだったり、無限の可能性を秘めています。
お部屋の隅々が、あなたの創造性を刺激するインスピレーションの源となります。生活の中で感じる甘い空気、心地よい風、目に飛び込む色彩。すべてがあなたの毎日を特別なものにし、個性を際立たせます。ミリアレジデンス新宿御苑2 202での生活は、まるで一流のアーティストが描く絵画のように、忘れられない思い出を紡いでいくことでしょう。
ここで、あなたの新しい章を始めてみませんか。ミリアレジデンス新宿御苑2 202は、あなたを待っています。
ここ、ミリアレジデンス新宿御苑2 202では、朝の光が西の窓から柔ら…ミリアレジデンス新宿御苑2 202。あなたが求めていたのは、ただの住まいではありません。ここは、色とりどりの夢が香る舞台であり、洗練された生活のキャンバスです。37.22㎡の空間に息づくのは、あなたの人生を彩る幸福の断片です。たった5分の距離にある東京メトロ丸ノ内線新宿御苑前駅から、あなたは新たな冒険の扉を開くことができます。
ここ、ミリアレジデンス新宿御苑2 202では、朝の光が西の窓から柔らかく差し込み、あなたの目を優しく覚まします。目を開けば、日々の繁忙から解放される瞬間が待っています。LDK11.1帖の広さが、あなたの心を解き放ち、創造力をかき立てる居住空間を提供します。洋室4.6帖は、静謐なプライベートゾーン。自分自身を見つめ直し、穏やかな時間を過ごすための特等席です。
この物件は、まるで親しい友人のようにあなたに寄り添い、必要なときに必要な安心感を与えてくれるオートロックや宅配ボックスも完備しています。エレベーターでの上昇感は、まるで夢のようにあなたを運び、毎日の出入りを特別なものにします。お部屋の中では、TVモニターホンが訪問者を見守り、安心感を持って新しい出会いを迎え入れることができます。
新宿御苑という名の文化と歴史が息づく場所に位置し、季節の移ろいを感じることができるこの地に、新たな生活のストーリーを描いてください。春の桜が咲き誇り、夏の緑が生い茂る様子は、まるで映画のワンシーンのように色鮮やかにあなたの心を魅了します。秋には紅葉が舞い散り、冬には雪化粧の景色があなたを訪れることでしょう。その時々の自然の美しさに包まれて、あなたの日常は、どの瞬間も特別な風景になります。
ミリアレジデンス新宿御苑2 202は、ただの高級賃貸物件ではありません。ここは、あなたが主人公となり、あらゆる感覚を満たす生活を日々楽しむ舞台です。騒音の喧騒を離れ、落ち着いた環境で心身をリフレッシュし、ゆったりとした時間を味わっていただけます。自宅で過ごす毎日は、コーヒーの香りが漂うリビングでの静かな朝食だったり、友人を招いての楽しいディナーだったり、無限の可能性を秘めています。
お部屋の隅々が、あなたの創造性を刺激するインスピレーションの源となります。生活の中で感じる甘い空気、心地よい風、目に飛び込む色彩。すべてがあなたの毎日を特別なものにし、個性を際立たせます。ミリアレジデンス新宿御苑2 202での生活は、まるで一流のアーティストが描く絵画のように、忘れられない思い出を紡いでいくことでしょう。
ここで、あなたの新しい章を始めてみませんか。ミリアレジデンス新宿御苑2 202は、あなたを待っています。
バイブルスコア
バイブルスコア: 25.0
平均的なスコアです。
※バイブルスコア詳細はこちら
バイブルスコアとは独自のAI機械学習技術を利用した物件評価システムで、物件のおすすめ度を示します。最高得点は100点で、スコアが高いほど、よりおすすめの物件と評価されています。
写真
現在写真が登録されていません契約条件
| 賃料 | 予想金額:184,000〜204,000円程度 | 管理費 | 予想金額:18,000〜22,000円程度 |
| 礼金 | 非公開(アーカイブ) | 敷金 | 非公開(アーカイブ) |
| フリーレント | 3.0ヶ月 | 平米数 | 37.22㎡ |
| 間取り | 1LDK | 大型収納 | |
| 契約期間 |
| 方角 | 西 |
| 更新料 | 契約形態 | 普通賃貸借契約 | |
| 取引態様 | 媒介 | 内見状況 | 入居中 |
| 入居時期 | 入居中 | SOHO・事務所 | |
| ペット | ペット可 | 間取り内訳 | 洋:4.6 LDK:11.1 |
| キャンペーン情報・備考 | 本情報は賃料改定交渉の資料作成、収益物件の利回り試算、周辺エリアや最寄り駅の坪単価分析、次回募集開始時期の予測などにご活用いただけます。 | ||
※「どの不動産に頼めばいいのか分からない」「信頼できる営業マンの話を聞きたい」「一番親切な会社と契約したい」とお悩みの方におすすめなのが「高級賃貸バイブル」です。
高級賃貸バイブルは業界10年以上の熟練スタッフ群がお客様ファーストで対応します。
下記ボタンから、まずは無料でご相談下さい。
※内覧をご希望の際には、どうぞ物件のエントランス前にてお待ち合わせくださいませ。ご内覧後は、同じ場所でお別れとさせていただきます。お客様のご都合に合わせたスムーズなご案内を心がけておりますので、ご質問等がございましたら何なりとお申し付けください。 物件概要
| 物件名 |
| 築年月 |
|
|---|---|---|---|
| 所在地 | |||
| 交通 | |||
| 総戸数 |
| 総階数 |
|
| 構造 |
| ||
地図
物件までの道のりは、「拡大地図を表示」をクリックしてナビ機能をご利用ください。
部屋設備













建物設備

TVモニターホン

エレベーター

オートロック

宅配ボックス

敷地内ゴミ置場

管理人
ミリアレジデンス新宿御苑2の現在募集中のお部屋
- ミリアレジデンス新宿御苑Ⅱ (MYRIA RESIDENCE Shinjyuku GyoenⅡ) 1101 - 間取り: 1LDK - 賃料: 43万円
