
| 賃料 | 予想金額:186,000〜206,000円程度 | 管理費 | 予想金額:18,000〜22,000円程度 |
| 礼金/敷金 | 非公開(アーカイブ) | 平米数 | 37.22㎡ |
| 初期費用概算(参考) | 目安:169,500〜269,500 円 | みなし賃料(月額・参考) | 210,573〜230,573 円 |
| 備考 | 本ページは過去募集のアーカイブです。表示の金額は周辺相場・過去募集を踏まえた参考レンジであり、実際の契約金額・条件ではありません。 | ||
※上記みなし賃料(月額)は仲介手数料割引・無料&キャッシュバックを加味した高級賃貸バイブル限定の金額です。一般的なみなし賃料とは異なります。
【建物ページ】ミリアレジデンス新宿御苑2の詳細・最新空室はこちら▶▶選ばれる理由
仲介手数料無料・キャンペーン情報(毎月15名様限定)
〇フリーレント3か月キャンペーン
ミリアレジデンス新宿御苑2 402の口コミ・レビュー
ミリアレジデンス新宿御苑2 402。これは単なる住まいではありません。この美しい空間は、あなたを特別な物語の主人公にするために存在しています。東京都新宿区四谷4-30、静かな西の方角に佇むこの物件は、あなたの生活を豊かにするための舞台装置なのです。
402号室の扉を開けた瞬間、そこには新たな日常が待っています。洗練されたデザインが生み出す空間は、まるでアートギャラリーのような美しさ。11.1帖の…ミリアレジデンス新宿御苑2 402。これは単なる住まいではありません。この美しい空間は、あなたを特別な物語の主人公にするために存在しています。東京都新宿区四谷4-30、静かな西の方角に佇むこの物件は、あなたの生活を豊かにするための舞台装置なのです。
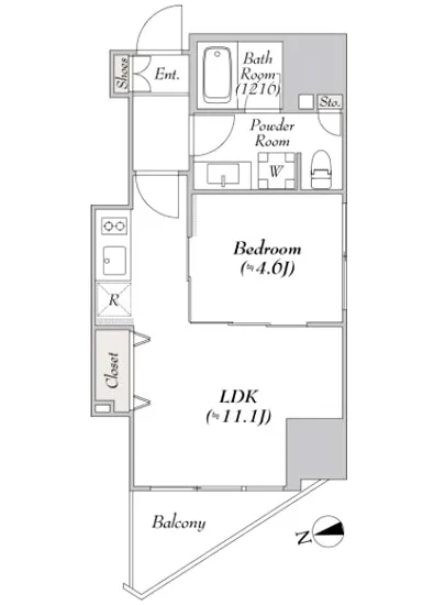
402号室の扉を開けた瞬間、そこには新たな日常が待っています。洗練されたデザインが生み出す空間は、まるでアートギャラリーのような美しさ。11.1帖のLDKは、まるで広大な海のように開放的で、光がくるくると踊りながら入ってきます。毎日朝日を浴びるその瞬間、あなたは自然の美とともに新しい一日を迎えられることでしょう。そして、4.6帖の洋室は、プライベートな隠れ家のような存在。ここでは、心を落ち着ける時間が流れ、夢を描くことができる静謐な空間が広がります。
この住まいでの生活は、まるで映画のワンシーンのようです。朝、コーヒーの香りが漂う中、リビングの大きな窓から見える風景に目を細める。外の静けさを感じながら、耳には人々のざわめきが微かに届き、心が洗われるようです。あたたかな陽射しが肌を包み込み、穏やかな午後には、心地よい風がカーテンを揺らし、優雅な音楽を運んできます。それは生活の中の小さな幸せ。美味しいティータイムに、友人を招いての語らい、洗練されたライティングが生むロマンティックな雰囲気、すべてがあなたの生活を彩るでしょう。
周囲には桜の名所、新宿御苑が広がり、季節ごとに変わる美しい景色が毎日を特別にしてくれます。春には花びらが舞い散り、夏には緑が輝き、秋には貸し切ったかのような紅葉に包まれ、冬には幻想的な雪景色があなたを迎え入れます。まるで四季折々の映画を観ているかのような、そんな特権をこのミリアレジデンス新宿御苑2 402で手に入れることができるのです。
さらに、宅配ボックスやエレベーター、オートロックといった高機能設備が、あなたの日常をサポートしてくれます。これらは単なる便利さを提供するだけでなく、こだわりの詰まったデザインと相まって、心地よい空間を生み出す役割を果たしています。管理人の温かい存在も、まるで古い友人のように優しくサポートし、ここでの生活に一層の安心感を与えてくれることでしょう。
ミリアレジデンス新宿御苑2 402は、ただの居住空間ではなく、あなたの人生が豊かになるための舞台です。特別な瞬間を積み重ねながら、毎日を新たな映画の一コマとして楽しんでいける場所。それが、この素晴らしい物件の持つ力なのです。あなたもこの物語に参加し、心に残る日々を過ごしてみませんか。
402号室の扉を開けた瞬間、そこには新たな日常が待っています。洗練されたデザインが生み出す空間は、まるでアートギャラリーのような美しさ。11.1帖の…ミリアレジデンス新宿御苑2 402。これは単なる住まいではありません。この美しい空間は、あなたを特別な物語の主人公にするために存在しています。東京都新宿区四谷4-30、静かな西の方角に佇むこの物件は、あなたの生活を豊かにするための舞台装置なのです。
402号室の扉を開けた瞬間、そこには新たな日常が待っています。洗練されたデザインが生み出す空間は、まるでアートギャラリーのような美しさ。11.1帖のLDKは、まるで広大な海のように開放的で、光がくるくると踊りながら入ってきます。毎日朝日を浴びるその瞬間、あなたは自然の美とともに新しい一日を迎えられることでしょう。そして、4.6帖の洋室は、プライベートな隠れ家のような存在。ここでは、心を落ち着ける時間が流れ、夢を描くことができる静謐な空間が広がります。
この住まいでの生活は、まるで映画のワンシーンのようです。朝、コーヒーの香りが漂う中、リビングの大きな窓から見える風景に目を細める。外の静けさを感じながら、耳には人々のざわめきが微かに届き、心が洗われるようです。あたたかな陽射しが肌を包み込み、穏やかな午後には、心地よい風がカーテンを揺らし、優雅な音楽を運んできます。それは生活の中の小さな幸せ。美味しいティータイムに、友人を招いての語らい、洗練されたライティングが生むロマンティックな雰囲気、すべてがあなたの生活を彩るでしょう。
周囲には桜の名所、新宿御苑が広がり、季節ごとに変わる美しい景色が毎日を特別にしてくれます。春には花びらが舞い散り、夏には緑が輝き、秋には貸し切ったかのような紅葉に包まれ、冬には幻想的な雪景色があなたを迎え入れます。まるで四季折々の映画を観ているかのような、そんな特権をこのミリアレジデンス新宿御苑2 402で手に入れることができるのです。
さらに、宅配ボックスやエレベーター、オートロックといった高機能設備が、あなたの日常をサポートしてくれます。これらは単なる便利さを提供するだけでなく、こだわりの詰まったデザインと相まって、心地よい空間を生み出す役割を果たしています。管理人の温かい存在も、まるで古い友人のように優しくサポートし、ここでの生活に一層の安心感を与えてくれることでしょう。
ミリアレジデンス新宿御苑2 402は、ただの居住空間ではなく、あなたの人生が豊かになるための舞台です。特別な瞬間を積み重ねながら、毎日を新たな映画の一コマとして楽しんでいける場所。それが、この素晴らしい物件の持つ力なのです。あなたもこの物語に参加し、心に残る日々を過ごしてみませんか。
バイブルスコア
バイブルスコア: 23.9
平均的なスコアです。
※バイブルスコア詳細はこちら
バイブルスコアとは独自のAI機械学習技術を利用した物件評価システムで、物件のおすすめ度を示します。最高得点は100点で、スコアが高いほど、よりおすすめの物件と評価されています。
写真
現在写真が登録されていません契約条件
| 賃料 | 予想金額:186,000〜206,000円程度 | 管理費 | 予想金額:18,000〜22,000円程度 |
| 礼金 | 非公開(アーカイブ) | 敷金 | 非公開(アーカイブ) |
| フリーレント | 3.0ヶ月 | 平米数 | 37.22㎡ |
| 間取り | 1LDK | 大型収納 | |
| 契約期間 |
| 方角 | 西 |
| 更新料 | 契約形態 | 普通賃貸借契約 | |
| 取引態様 | 媒介 | 内見状況 | 入居中 |
| 入居時期 | 入居中 | SOHO・事務所 | |
| ペット | ペット可 | 間取り内訳 | 洋:4.6 LDK:11.1 |
| キャンペーン情報・備考 | 本情報は賃料改定交渉の資料作成、収益物件の利回り試算、周辺エリアや最寄り駅の坪単価分析、次回募集開始時期の予測などにご活用いただけます。 | ||
※「どの不動産に頼めばいいのか分からない」「信頼できる営業マンの話を聞きたい」「一番親切な会社と契約したい」とお悩みの方におすすめなのが「高級賃貸バイブル」です。
高級賃貸バイブルは業界10年以上の熟練スタッフ群がお客様ファーストで対応します。
下記ボタンから、まずは無料でご相談下さい。
※内覧をご希望の際には、どうぞ物件のエントランス前にてお待ち合わせくださいませ。ご内覧後は、同じ場所でお別れとさせていただきます。お客様のご都合に合わせたスムーズなご案内を心がけておりますので、ご質問等がございましたら何なりとお申し付けください。 物件概要
| 物件名 |
| 築年月 |
|
|---|---|---|---|
| 所在地 | |||
| 交通 | |||
| 総戸数 |
| 総階数 |
|
| 構造 |
| ||
地図
物件までの道のりは、「拡大地図を表示」をクリックしてナビ機能をご利用ください。
部屋設備













建物設備

TVモニターホン

エレベーター

オートロック

宅配ボックス

敷地内ゴミ置場

管理人
ミリアレジデンス新宿御苑2の現在募集中のお部屋
- ミリアレジデンス新宿御苑Ⅱ (MYRIA RESIDENCE Shinjyuku GyoenⅡ) 1101 - 間取り: 1LDK - 賃料: 43万円
