
| 賃料 | 予想金額:119,000〜139,000円程度 | 管理費 | 予想金額:8,000〜12,000円程度 |
| 礼金/敷金 | 非公開(アーカイブ) | 平米数 | 35.04㎡ |
| 初期費用概算(参考) | 目安:379,000〜479,000 円 | みなし賃料(月額・参考) | 135,250〜155,250 円 |
| 備考 | 本ページは過去募集のアーカイブです。表示の金額は周辺相場・過去募集を踏まえた参考レンジであり、実際の契約金額・条件ではありません。 | ||
※上記みなし賃料(月額)は仲介手数料割引・無料&キャッシュバックを加味した高級賃貸バイブル限定の金額です。一般的なみなし賃料とは異なります。
【建物ページ】メイクスデザイン西麻布の詳細・最新空室はこちら▶▶選ばれる理由
仲介手数料無料・キャンペーン情報(毎月15名様限定)
〇仲介手数料割引キャンペーン
メイクスデザイン西麻布 301の口コミ・レビュー
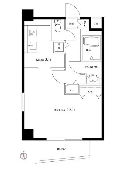
メイクスデザイン西麻布 301。ここは、ただの住まいではなく、あなたの新しい人生の舞台となるべき特別な場所です。優雅な南向きの陽射しが、毎朝あなたを優しく迎え入れ、起きぬけの身を包み込みます。広がる35.04㎡の空間は、あなたの生活に自由という翼を与えます。まるで贅沢なキャンバス、その上に思い描くライフスタイルを描くことができるのです。
扉を開けると、洋室10.4帖の部屋が広がっています。その広…メイクスデザイン西麻布 301。ここは、ただの住まいではなく、あなたの新しい人生の舞台となるべき特別な場所です。優雅な南向きの陽射しが、毎朝あなたを優しく迎え入れ、起きぬけの身を包み込みます。広がる35.04㎡の空間は、あなたの生活に自由という翼を与えます。まるで贅沢なキャンバス、その上に思い描くライフスタイルを描くことができるのです。
扉を開けると、洋室10.4帖の部屋が広がっています。その広さは、あなたの心と生活を自由に表現するための舞台。ここで、友人と共に笑い合い、静かな読書や自分の趣味に没頭する瞬間が、どれだけ素晴らしいかを想像してみてください。心地よい風が窓から入り込み、隣のカフェの香ばしいコーヒーの香りが流れ込みます。目を閉じると、リビングで寛ぎながら、優しい音楽が耳に響き、まるで映画のワンシーンの中にいるような心地よさを感じることでしょう。
メイクスデザイン西麻布 301の魅力は、単なる設備の充実に留まりません。オートロックの安心感は、まるで貴族の城の扉のごとくあなたを守ります。TVモニターホン越しに訪問者を見ることで、安心とともに、少しのワクワク感も味わえます。宅配ボックスは、まるで友からの手紙が届くような、新しいサプライズを日々の生活にプラスしてくれる存在です。駐輪場を使えば、ここから少し足を延ばして広尾までの道を自転車で爽快に駆け抜けることもできるのです。
歴史と文化が織りなす西麻布の街。周囲にはアートギャラリーや洗練されたカフェが点在し、散策するたびに新しい発見が待っています。夕方、陽が沈む頃、あなたはこの街の美しさに魅了され、その風情に思わず足を止めることでしょう。まるで西麻布があなたを優しく迎え入れ、心の奥深くにそのエッセンスを刻み込むかのようです。
そして、毎日の生活に小さな贅沢を取り込むことを楽しむことができる、そんな空間がメイクスデザイン西麻布 301です。自分だけの隠れ家であり、また、誰かとともに過ごす特別な場所でもあるのです。ここでの生活は、心を満たし、感性を豊かにするための絶好の舞台です。あなた自身が物語の主人公となり、毎日が新しいチャプターとして楽しむことができるのです。さあ、メイクスデザイン西麻布 301で新たな生活を始めましょう。あなたの物語がここから始まります。
扉を開けると、洋室10.4帖の部屋が広がっています。その広…メイクスデザイン西麻布 301。ここは、ただの住まいではなく、あなたの新しい人生の舞台となるべき特別な場所です。優雅な南向きの陽射しが、毎朝あなたを優しく迎え入れ、起きぬけの身を包み込みます。広がる35.04㎡の空間は、あなたの生活に自由という翼を与えます。まるで贅沢なキャンバス、その上に思い描くライフスタイルを描くことができるのです。
扉を開けると、洋室10.4帖の部屋が広がっています。その広さは、あなたの心と生活を自由に表現するための舞台。ここで、友人と共に笑い合い、静かな読書や自分の趣味に没頭する瞬間が、どれだけ素晴らしいかを想像してみてください。心地よい風が窓から入り込み、隣のカフェの香ばしいコーヒーの香りが流れ込みます。目を閉じると、リビングで寛ぎながら、優しい音楽が耳に響き、まるで映画のワンシーンの中にいるような心地よさを感じることでしょう。
メイクスデザイン西麻布 301の魅力は、単なる設備の充実に留まりません。オートロックの安心感は、まるで貴族の城の扉のごとくあなたを守ります。TVモニターホン越しに訪問者を見ることで、安心とともに、少しのワクワク感も味わえます。宅配ボックスは、まるで友からの手紙が届くような、新しいサプライズを日々の生活にプラスしてくれる存在です。駐輪場を使えば、ここから少し足を延ばして広尾までの道を自転車で爽快に駆け抜けることもできるのです。
歴史と文化が織りなす西麻布の街。周囲にはアートギャラリーや洗練されたカフェが点在し、散策するたびに新しい発見が待っています。夕方、陽が沈む頃、あなたはこの街の美しさに魅了され、その風情に思わず足を止めることでしょう。まるで西麻布があなたを優しく迎え入れ、心の奥深くにそのエッセンスを刻み込むかのようです。
そして、毎日の生活に小さな贅沢を取り込むことを楽しむことができる、そんな空間がメイクスデザイン西麻布 301です。自分だけの隠れ家であり、また、誰かとともに過ごす特別な場所でもあるのです。ここでの生活は、心を満たし、感性を豊かにするための絶好の舞台です。あなた自身が物語の主人公となり、毎日が新しいチャプターとして楽しむことができるのです。さあ、メイクスデザイン西麻布 301で新たな生活を始めましょう。あなたの物語がここから始まります。
バイブルスコア
バイブルスコア: 44.5
条件のいい物件です、引っ越しが2か月以内の場合は仮申し込みを検討すべき物件です。
※バイブルスコア詳細はこちら
バイブルスコアとは独自のAI機械学習技術を利用した物件評価システムで、物件のおすすめ度を示します。最高得点は100点で、スコアが高いほど、よりおすすめの物件と評価されています。
写真
契約条件
| 賃料 | 予想金額:119,000〜139,000円程度 | 管理費 | 予想金額:8,000〜12,000円程度 |
| 礼金 | 非公開(アーカイブ) | 敷金 | 非公開(アーカイブ) |
| フリーレント | なし | 平米数 | 35.04㎡ |
| 間取り | 1K | 大型収納 | |
| 契約期間 |
| 方角 | 南 |
| 更新料 | 契約形態 | 普通賃貸借契約 | |
| 取引態様 | 媒介 | 内見状況 | 入居中 |
| 入居時期 | 入居中 | SOHO・事務所 | |
| ペット | 間取り内訳 | 洋室10.4帖 | |
| キャンペーン情報・備考 | 本情報は賃料改定交渉の資料作成、収益物件の利回り試算、周辺エリアや最寄り駅の坪単価分析、次回募集開始時期の予測などにご活用いただけます。 | ||
※「どの不動産に頼めばいいのか分からない」「信頼できる営業マンの話を聞きたい」「一番親切な会社と契約したい」とお悩みの方におすすめなのが「高級賃貸バイブル」です。
高級賃貸バイブルは業界10年以上の熟練スタッフ群がお客様ファーストで対応します。
下記ボタンから、まずは無料でご相談下さい。
※内覧をご希望の際には、どうぞ物件のエントランス前にてお待ち合わせくださいませ。ご内覧後は、同じ場所でお別れとさせていただきます。お客様のご都合に合わせたスムーズなご案内を心がけておりますので、ご質問等がございましたら何なりとお申し付けください。 物件概要
| 物件名 |
| 築年月 |
|
|---|---|---|---|
| 所在地 | |||
| 交通 | |||
| 総戸数 |
| 総階数 |
|
| 構造 |
| ||
地図
物件までの道のりは、「拡大地図を表示」をクリックしてナビ機能をご利用ください。
部屋設備












建物設備

TVモニターホン

エレベーター

オートロック

宅配ボックス

敷地内ゴミ置場

駐輪場
メイクスデザイン西麻布の現在募集中のお部屋
- No rooms found for this property.























