
| 賃料 | 予想金額:105,000〜125,000円程度 | 管理費 | 予想金額:8,000〜12,000円程度 |
| 礼金/敷金 | 非公開(アーカイブ) | 平米数 | 26.58㎡ |
| 初期費用概算(参考) | 目安:0〜-96,300 円 | みなし賃料(月額・参考) | 111,952〜131,952 円 |
| 備考 | 本ページは過去募集のアーカイブです。表示の金額は周辺相場・過去募集を踏まえた参考レンジであり、実際の契約金額・条件ではありません。 | ||
※上記みなし賃料(月額)は仲介手数料割引・無料&キャッシュバックを加味した高級賃貸バイブル限定の金額です。一般的なみなし賃料とは異なります。
【建物ページ】クオリタス蒲田の詳細・最新空室はこちら▶▶選ばれる理由
仲介手数料無料・キャンペーン情報(毎月15名様限定)
〇引っ越しお祝い金255300円プレゼント(キャッシュバック)
〇フリーレント2か月キャンペーン
〇仲介手数料無料キャンペーン
クオリタス蒲田 801の口コミ・レビュー
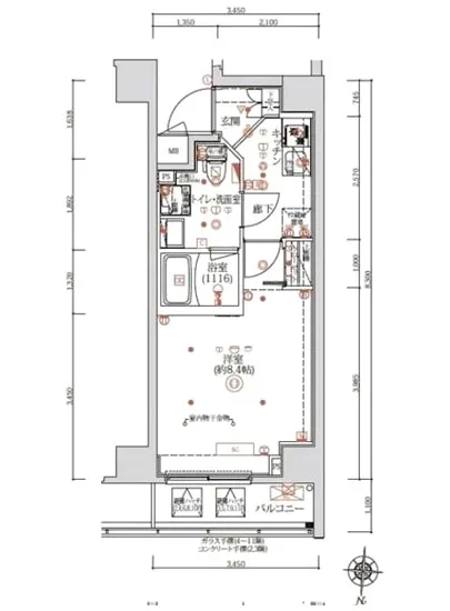
クオリタス蒲田 801。それは、都心の喧騒からほんの少し離れた場所に、洗練された美しさと心地よい安らぎを提供する隠れ家のような空間です。この上品な物件は、801という特別な場所から、夢見るような都市生活をあなたに約束します。専有面積は26.58㎡、心地よい1Kの間取りには、8.4帖の優雅な洋室が広がり、あなたの日常を豊かに彩ります。
クオリタス蒲田 801に足を踏み入れると、まず目に飛び込んでく…クオリタス蒲田 801。それは、都心の喧騒からほんの少し離れた場所に、洗練された美しさと心地よい安らぎを提供する隠れ家のような空間です。この上品な物件は、801という特別な場所から、夢見るような都市生活をあなたに約束します。専有面積は26.58㎡、心地よい1Kの間取りには、8.4帖の優雅な洋室が広がり、あなたの日常を豊かに彩ります。
クオリタス蒲田 801に足を踏み入れると、まず目に飛び込んでくるのは高級感漂うエントランスです。オートロックシステムがあなたを守り、まるでこの場所が選ばれた人だけの秘密の庭であるかのように感じさせます。エレベーターに乗り込むと、静かな音を奏でながら上昇し、心に期待が膨らみます。この一瞬一瞬が、まるで映画のワンシーンの中にいるかのようです。
部屋の中に入ると、ふんわりとした心地よい空気が優しく包み込みます。柔らかな光が窓から注ぎ込み、8.4帖の洋室を温かく照らします。落ち着いたトーンの内装は、静かなヒーリングをもたらし、まるで自然と調和しているかのようです。柔らかなカーテンが風に揺らぐ様子は、まるで優雅に舞う舞踏のよう。壁にかけたアートが静かに語りかけてきます。日々の生活が小さな芸術品で満たされていることを、思い出させてくれます。
静寂の中に耳を澄ませると、周囲の生活音がほんのりと心地よく響きます。ほんの少し距離を置いた通りの喧騒が、まるで夕暮れ時の街の雄大な交響曲のように、あなたの心に調和をもたらします。廊下を歩くたび、靴の音が心地よいリズムとなり、日々のストーリーを紡いでいくのです。
そして、クオリタス蒲田 801の魅力はその周辺にも広がっています。東京急行電鉄東急池上線の蒲田駅までわずか徒歩2分。あなたの足元には、文化と歴史が息づく街が待っています。かつて多くの文人や芸術家が集ったこの地は、今もなおその歴史を感じられるスポットが点在しています。地元のカフェでは、香ばしいコーヒーの香りが漂い、新たな出会いやインスピレーションに満ちています。市場の賑わいの中で、熟れた果物や新鮮な魚介類があなたの味覚を刺激し、その全てが日常に新しい彩りを添えてくれます。
クオリタス蒲田 801では、毎日が新たな発見と冒険に満ちています。この場所であなたの新しい物語が始まる時、きっとその一瞬一瞬が特別なものになることでしょう。日常の中に潜む真実の美しさを享受し、心豊かな生活をあなた自身の手で創り上げてください。クオリタス蒲田 801は、ただの住まいではなく、あなたの人生の舞台なのです。
クオリタス蒲田 801に足を踏み入れると、まず目に飛び込んでく…クオリタス蒲田 801。それは、都心の喧騒からほんの少し離れた場所に、洗練された美しさと心地よい安らぎを提供する隠れ家のような空間です。この上品な物件は、801という特別な場所から、夢見るような都市生活をあなたに約束します。専有面積は26.58㎡、心地よい1Kの間取りには、8.4帖の優雅な洋室が広がり、あなたの日常を豊かに彩ります。
クオリタス蒲田 801に足を踏み入れると、まず目に飛び込んでくるのは高級感漂うエントランスです。オートロックシステムがあなたを守り、まるでこの場所が選ばれた人だけの秘密の庭であるかのように感じさせます。エレベーターに乗り込むと、静かな音を奏でながら上昇し、心に期待が膨らみます。この一瞬一瞬が、まるで映画のワンシーンの中にいるかのようです。
部屋の中に入ると、ふんわりとした心地よい空気が優しく包み込みます。柔らかな光が窓から注ぎ込み、8.4帖の洋室を温かく照らします。落ち着いたトーンの内装は、静かなヒーリングをもたらし、まるで自然と調和しているかのようです。柔らかなカーテンが風に揺らぐ様子は、まるで優雅に舞う舞踏のよう。壁にかけたアートが静かに語りかけてきます。日々の生活が小さな芸術品で満たされていることを、思い出させてくれます。
静寂の中に耳を澄ませると、周囲の生活音がほんのりと心地よく響きます。ほんの少し距離を置いた通りの喧騒が、まるで夕暮れ時の街の雄大な交響曲のように、あなたの心に調和をもたらします。廊下を歩くたび、靴の音が心地よいリズムとなり、日々のストーリーを紡いでいくのです。
そして、クオリタス蒲田 801の魅力はその周辺にも広がっています。東京急行電鉄東急池上線の蒲田駅までわずか徒歩2分。あなたの足元には、文化と歴史が息づく街が待っています。かつて多くの文人や芸術家が集ったこの地は、今もなおその歴史を感じられるスポットが点在しています。地元のカフェでは、香ばしいコーヒーの香りが漂い、新たな出会いやインスピレーションに満ちています。市場の賑わいの中で、熟れた果物や新鮮な魚介類があなたの味覚を刺激し、その全てが日常に新しい彩りを添えてくれます。
クオリタス蒲田 801では、毎日が新たな発見と冒険に満ちています。この場所であなたの新しい物語が始まる時、きっとその一瞬一瞬が特別なものになることでしょう。日常の中に潜む真実の美しさを享受し、心豊かな生活をあなた自身の手で創り上げてください。クオリタス蒲田 801は、ただの住まいではなく、あなたの人生の舞台なのです。
バイブルスコア
バイブルスコア: 26.5
平均的なスコアです。
※バイブルスコア詳細はこちら
バイブルスコアとは独自のAI機械学習技術を利用した物件評価システムで、物件のおすすめ度を示します。最高得点は100点で、スコアが高いほど、よりおすすめの物件と評価されています。
写真
契約条件
| 賃料 | 予想金額:105,000〜125,000円程度 | 管理費 | 予想金額:8,000〜12,000円程度 |
| 礼金 | 非公開(アーカイブ) | 敷金 | 非公開(アーカイブ) |
| フリーレント | 2.0ヶ月 | 平米数 | 26.58㎡ |
| 間取り | 1K | 大型収納 | |
| 契約期間 |
| 方角 | 北 |
| 更新料 | 契約形態 | 普通賃貸借契約 | |
| 取引態様 | 媒介 | 内見状況 | 入居中 |
| 入居時期 | 入居中 | SOHO・事務所 | |
| ペット | ペット可 | 間取り内訳 | 洋:8.4 |
| キャンペーン情報・備考 | 本情報は賃料改定交渉の資料作成、収益物件の利回り試算、周辺エリアや最寄り駅の坪単価分析、次回募集開始時期の予測などにご活用いただけます。 | ||
※「どの不動産に頼めばいいのか分からない」「信頼できる営業マンの話を聞きたい」「一番親切な会社と契約したい」とお悩みの方におすすめなのが「高級賃貸バイブル」です。
高級賃貸バイブルは業界10年以上の熟練スタッフ群がお客様ファーストで対応します。
下記ボタンから、まずは無料でご相談下さい。
※内覧をご希望の際には、どうぞ物件のエントランス前にてお待ち合わせくださいませ。ご内覧後は、同じ場所でお別れとさせていただきます。お客様のご都合に合わせたスムーズなご案内を心がけておりますので、ご質問等がございましたら何なりとお申し付けください。 物件概要
| 物件名 |
| 築年月 |
|
|---|---|---|---|
| 所在地 | |||
| 交通 | |||
| 総戸数 |
| 総階数 |
|
| 構造 |
| ||
地図
物件までの道のりは、「拡大地図を表示」をクリックしてナビ機能をご利用ください。
部屋設備














建物設備

TVモニターホン

エレベーター

オートロック

宅配ボックス

敷地内ゴミ置場

管理人

駐車場平置き

駐輪場
クオリタス蒲田の現在募集中のお部屋
- No rooms found for this property.








