
| 賃料 | 予想金額:108,000〜128,000円程度 | 管理費 | 予想金額:8,000〜12,000円程度 |
| 礼金/敷金 | 非公開(アーカイブ) | 平米数 | 26.58㎡ |
| 初期費用概算(参考) | 目安:0〜-101,460 円 | みなし賃料(月額・参考) | 114,845〜134,845 円 |
| 備考 | 本ページは過去募集のアーカイブです。表示の金額は周辺相場・過去募集を踏まえた参考レンジであり、実際の契約金額・条件ではありません。 | ||
※上記みなし賃料(月額)は仲介手数料割引・無料&キャッシュバックを加味した高級賃貸バイブル限定の金額です。一般的なみなし賃料とは異なります。
【建物ページ】クオリタス蒲田の詳細・最新空室はこちら▶▶選ばれる理由
仲介手数料無料・キャンペーン情報(毎月15名様限定)
〇引っ越しお祝い金261960円プレゼント(キャッシュバック)
〇フリーレント2か月キャンペーン
〇仲介手数料無料キャンペーン
クオリタス蒲田 901の口コミ・レビュー
クオリタス蒲田 901は、その名の通り、あなたの心を潤してくれる特別な住まいです。東京都大田区西蒲田8-24-5、この地は生活の便利さと、ほのかに漂うおしゃれな雰囲気が共存する場所。北側を望むこの部屋は、朝の陽光が窓から優しく差し込み、目覚めの瞬間から心を和ませてくれることでしょう。
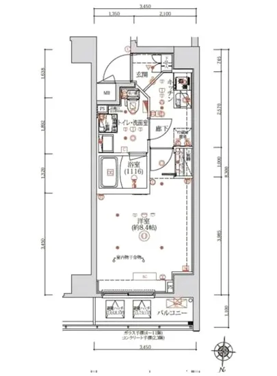
クオリタス蒲田 901の中に足を踏み入れると、そこには26.58㎡の空間が広がります。スタイリッシュな1Kの間取…クオリタス蒲田 901は、その名の通り、あなたの心を潤してくれる特別な住まいです。東京都大田区西蒲田8-24-5、この地は生活の便利さと、ほのかに漂うおしゃれな雰囲気が共存する場所。北側を望むこの部屋は、朝の陽光が窓から優しく差し込み、目覚めの瞬間から心を和ませてくれることでしょう。
クオリタス蒲田 901の中に足を踏み入れると、そこには26.58㎡の空間が広がります。スタイリッシュな1Kの間取りは、8.4帖の洋室があなたの生活の舞台となります。ここで過ごす毎日が、まるで映画のシーンのように感じられることでしょう。お気に入りのカフェで選んだ一杯の香り高いコーヒーを手に、心地よいソファに身を沈める。窓から見える穏やかな北の風景が、心の奥底に安らぎをもたらします。
この物件は、ただの住まいではありません。クオリタス蒲田 901は、あなたとともに成長し、時には一緒に涙を流し、また時には喜びを分かち合う大切な存在となるのです。朝の忙しい準備の時間も、昼のひと時のゆったりしたリズムも、すべてがこの空間によって彩られます。エレベーターの開く音が、日々の始まりを告げ、オートロックがあなたのプライバシーをしっかりと守ってくれる安心感を提供します。
そして、心躍るのは、宅配ボックスの存在。忙しいあなたにとって、買ったものがそのまま待っているのは、まるで「おかえりなさい」と言われているかのような心地よさです。また、敷地内のゴミ置場は、生活の小さなストレスを解消してくれる頼もしいパートナーです。
さらにこの物件は、東京急行電鉄東急池上線 蒲田駅から徒歩2分という抜群の立地。周辺には、歴史ある文化が息づく街並みと、アートが溢れるスポットも点在しています。仕事の帰りに、美術館やギャラリーに立ち寄り、心に響くアートに触れることができるのです。この環境こそが、あなたの感性を育み、日々の生活を豊かに彩ります。
クオリタス蒲田 901での生活は、ただの居住空間を超え、人生の宝物のような瞬間を育む舞台です。毎晩ベランダからの夕焼けを見つめながら、明日への期待に胸を膨らませるあなた自身が、まさにこの場所の主人公となるのです。さあ、この特別な空間で、あなたの物語を紡ぎ始めましょう。クオリタス蒲田 901が、あなたを新たな冒険へと誘います。
クオリタス蒲田 901の中に足を踏み入れると、そこには26.58㎡の空間が広がります。スタイリッシュな1Kの間取…クオリタス蒲田 901は、その名の通り、あなたの心を潤してくれる特別な住まいです。東京都大田区西蒲田8-24-5、この地は生活の便利さと、ほのかに漂うおしゃれな雰囲気が共存する場所。北側を望むこの部屋は、朝の陽光が窓から優しく差し込み、目覚めの瞬間から心を和ませてくれることでしょう。
クオリタス蒲田 901の中に足を踏み入れると、そこには26.58㎡の空間が広がります。スタイリッシュな1Kの間取りは、8.4帖の洋室があなたの生活の舞台となります。ここで過ごす毎日が、まるで映画のシーンのように感じられることでしょう。お気に入りのカフェで選んだ一杯の香り高いコーヒーを手に、心地よいソファに身を沈める。窓から見える穏やかな北の風景が、心の奥底に安らぎをもたらします。
この物件は、ただの住まいではありません。クオリタス蒲田 901は、あなたとともに成長し、時には一緒に涙を流し、また時には喜びを分かち合う大切な存在となるのです。朝の忙しい準備の時間も、昼のひと時のゆったりしたリズムも、すべてがこの空間によって彩られます。エレベーターの開く音が、日々の始まりを告げ、オートロックがあなたのプライバシーをしっかりと守ってくれる安心感を提供します。
そして、心躍るのは、宅配ボックスの存在。忙しいあなたにとって、買ったものがそのまま待っているのは、まるで「おかえりなさい」と言われているかのような心地よさです。また、敷地内のゴミ置場は、生活の小さなストレスを解消してくれる頼もしいパートナーです。
さらにこの物件は、東京急行電鉄東急池上線 蒲田駅から徒歩2分という抜群の立地。周辺には、歴史ある文化が息づく街並みと、アートが溢れるスポットも点在しています。仕事の帰りに、美術館やギャラリーに立ち寄り、心に響くアートに触れることができるのです。この環境こそが、あなたの感性を育み、日々の生活を豊かに彩ります。
クオリタス蒲田 901での生活は、ただの居住空間を超え、人生の宝物のような瞬間を育む舞台です。毎晩ベランダからの夕焼けを見つめながら、明日への期待に胸を膨らませるあなた自身が、まさにこの場所の主人公となるのです。さあ、この特別な空間で、あなたの物語を紡ぎ始めましょう。クオリタス蒲田 901が、あなたを新たな冒険へと誘います。
バイブルスコア
バイブルスコア: 23.1
平均的なスコアです。
※バイブルスコア詳細はこちら
バイブルスコアとは独自のAI機械学習技術を利用した物件評価システムで、物件のおすすめ度を示します。最高得点は100点で、スコアが高いほど、よりおすすめの物件と評価されています。
写真
契約条件
| 賃料 | 予想金額:108,000〜128,000円程度 | 管理費 | 予想金額:8,000〜12,000円程度 |
| 礼金 | 非公開(アーカイブ) | 敷金 | 非公開(アーカイブ) |
| フリーレント | 2.0ヶ月 | 平米数 | 26.58㎡ |
| 間取り | 1K | 大型収納 | |
| 契約期間 |
| 方角 | 北 |
| 更新料 | 契約形態 | 普通賃貸借契約 | |
| 取引態様 | 媒介 | 内見状況 | 入居中 |
| 入居時期 | 入居中 | SOHO・事務所 | |
| ペット | ペット可 | 間取り内訳 | 洋:8.4 |
| キャンペーン情報・備考 | 本情報は賃料改定交渉の資料作成、収益物件の利回り試算、周辺エリアや最寄り駅の坪単価分析、次回募集開始時期の予測などにご活用いただけます。 | ||
※「どの不動産に頼めばいいのか分からない」「信頼できる営業マンの話を聞きたい」「一番親切な会社と契約したい」とお悩みの方におすすめなのが「高級賃貸バイブル」です。
高級賃貸バイブルは業界10年以上の熟練スタッフ群がお客様ファーストで対応します。
下記ボタンから、まずは無料でご相談下さい。
※内覧をご希望の際には、どうぞ物件のエントランス前にてお待ち合わせくださいませ。ご内覧後は、同じ場所でお別れとさせていただきます。お客様のご都合に合わせたスムーズなご案内を心がけておりますので、ご質問等がございましたら何なりとお申し付けください。 物件概要
| 物件名 |
| 築年月 |
|
|---|---|---|---|
| 所在地 | |||
| 交通 | |||
| 総戸数 |
| 総階数 |
|
| 構造 |
| ||
地図
物件までの道のりは、「拡大地図を表示」をクリックしてナビ機能をご利用ください。
部屋設備














建物設備

TVモニターホン

エレベーター

オートロック

宅配ボックス

敷地内ゴミ置場

管理人

駐車場平置き

駐輪場
クオリタス蒲田の現在募集中のお部屋
- No rooms found for this property.








