
| 賃料 | 予想金額:1,250,000〜1,270,000円程度 | 管理費 | 予想金額:0〜2,000円程度 |
| 礼金/敷金 | 非公開(アーカイブ) | 平米数 | 195.28㎡ |
| 初期費用概算(参考) | 目安:6,971,500〜7,071,500 円 | みなし賃料(月額・参考) | 1,370,031〜1,390,031 円 |
| 備考 | 本ページは過去募集のアーカイブです。表示の金額は周辺相場・過去募集を踏まえた参考レンジであり、実際の契約金額・条件ではありません。 | ||
※上記みなし賃料(月額)は仲介手数料割引・無料&キャッシュバックを加味した高級賃貸バイブル限定の金額です。一般的なみなし賃料とは異なります。
【建物ページ】アークタワーズイーストの詳細・最新空室はこちら▶▶選ばれる理由
仲介手数料無料・キャンペーン情報(毎月15名様限定)
〇仲介手数料割引キャンペーン
アークタワーズイースト 2308の口コミ・レビュー
アークタワーズイースト 2308。これは、ただの住所ではありません。この美しい名前の背後には、東京のエネルギーと洗練が溶け込み、特別な生活が待っていることを物語っています。南西を向くその窓からは、まるで一枚の絵画のように広がる都会の風景が、四季折々の色合いで心を打つことでしょう。
195.28㎡のこのお住まいは、まるで天空の城から手を伸ばしているかのように、あなたに特別な瞬間を与えてくれます。2…アークタワーズイースト 2308。これは、ただの住所ではありません。この美しい名前の背後には、東京のエネルギーと洗練が溶け込み、特別な生活が待っていることを物語っています。南西を向くその窓からは、まるで一枚の絵画のように広がる都会の風景が、四季折々の色合いで心を打つことでしょう。
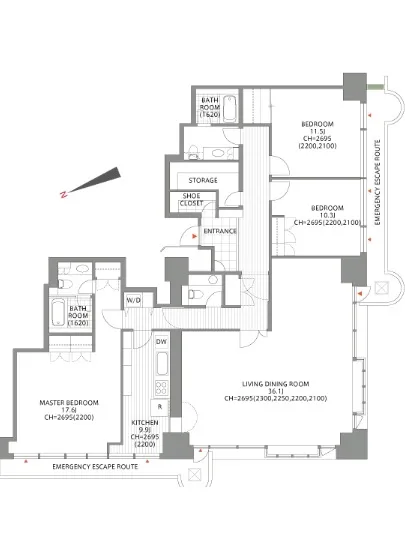
195.28㎡のこのお住まいは、まるで天空の城から手を伸ばしているかのように、あなたに特別な瞬間を与えてくれます。2LDKという間取りは、まるでアートのように空間を使いこなし、LD:36.1帖の広がりは、友人を招いての華やかなパーティーや、家族との静かな夕食を楽しむための理想的な舞台となります。キッチンK:9.9帖は、料理を愛するあなたのための個性的なアトリエ。香ばしいハーブの香りが漂う中、グルメを追求するあなたをサポートします。寝室のBR:17.6帖は、心安らぐ夢の空間。静かに広がるその空間に身を委ねることで、優雅な眠りが待っているのです。また、BR:11.5帖・BR:10.3帖も、ゲストや家族がくつろぎ、心温まるひとときを過ごすための素敵な場所となるでしょう。
アークタワーズイースト 2308では、24時間管理された安心の環境があなたの生活を支えます。エレガントなエレベーターでの移動は、まるで高級ホテルのような洗練された感覚を思い起こさせ、オートロックの安全性が心の平穏を保証します。フロントサービスやラウンジでの寛ぎ、フィットネスやプールでのアクティブな時間は、生活を豊かにするための素晴らしいスパイスとなります。さらに、宅配ボックスや駐車場の利便性も、日常の煩わしさを優雅に解消します。
この建物は、ただの住まい以上の存在です。ここでの生活は、まるで映画のワンシーンのように、豊かな感情を呼び起こします。窓の外では、夕暮れの空が赤紫に染まり、やがて星々が瞬く宇宙が広がります。あなたの心に沁み込むその美しさは、日々の忙しさを忘れさせ、心の奥底に温かな余韻を残します。
アークタワーズイースト 2308は、六本木の魅力を享受するための魔法の扉です。さまざまな文化や芸術が共存するこの地域で、日常は特別であり、毎日が新たな発見で満ちています。美術館やギャラリーに足を運ぶも良し、周囲の喧騒を離れた静かな時間を楽しむも良し。まるで一つの作品のように、あなたの生活はこの場所で咲き誇ります。
この特別な空間にあなた自身を迎え入れる準備が整ったとき、アークタワーズイースト 2308は、あなたを待っています。あなたの物語がここから始まるのです。
195.28㎡のこのお住まいは、まるで天空の城から手を伸ばしているかのように、あなたに特別な瞬間を与えてくれます。2…アークタワーズイースト 2308。これは、ただの住所ではありません。この美しい名前の背後には、東京のエネルギーと洗練が溶け込み、特別な生活が待っていることを物語っています。南西を向くその窓からは、まるで一枚の絵画のように広がる都会の風景が、四季折々の色合いで心を打つことでしょう。
195.28㎡のこのお住まいは、まるで天空の城から手を伸ばしているかのように、あなたに特別な瞬間を与えてくれます。2LDKという間取りは、まるでアートのように空間を使いこなし、LD:36.1帖の広がりは、友人を招いての華やかなパーティーや、家族との静かな夕食を楽しむための理想的な舞台となります。キッチンK:9.9帖は、料理を愛するあなたのための個性的なアトリエ。香ばしいハーブの香りが漂う中、グルメを追求するあなたをサポートします。寝室のBR:17.6帖は、心安らぐ夢の空間。静かに広がるその空間に身を委ねることで、優雅な眠りが待っているのです。また、BR:11.5帖・BR:10.3帖も、ゲストや家族がくつろぎ、心温まるひとときを過ごすための素敵な場所となるでしょう。
アークタワーズイースト 2308では、24時間管理された安心の環境があなたの生活を支えます。エレガントなエレベーターでの移動は、まるで高級ホテルのような洗練された感覚を思い起こさせ、オートロックの安全性が心の平穏を保証します。フロントサービスやラウンジでの寛ぎ、フィットネスやプールでのアクティブな時間は、生活を豊かにするための素晴らしいスパイスとなります。さらに、宅配ボックスや駐車場の利便性も、日常の煩わしさを優雅に解消します。
この建物は、ただの住まい以上の存在です。ここでの生活は、まるで映画のワンシーンのように、豊かな感情を呼び起こします。窓の外では、夕暮れの空が赤紫に染まり、やがて星々が瞬く宇宙が広がります。あなたの心に沁み込むその美しさは、日々の忙しさを忘れさせ、心の奥底に温かな余韻を残します。
アークタワーズイースト 2308は、六本木の魅力を享受するための魔法の扉です。さまざまな文化や芸術が共存するこの地域で、日常は特別であり、毎日が新たな発見で満ちています。美術館やギャラリーに足を運ぶも良し、周囲の喧騒を離れた静かな時間を楽しむも良し。まるで一つの作品のように、あなたの生活はこの場所で咲き誇ります。
この特別な空間にあなた自身を迎え入れる準備が整ったとき、アークタワーズイースト 2308は、あなたを待っています。あなたの物語がここから始まるのです。
バイブルスコア
バイブルスコア: 35.4
平均的なスコアです。
※バイブルスコア詳細はこちら
バイブルスコアとは独自のAI機械学習技術を利用した物件評価システムで、物件のおすすめ度を示します。最高得点は100点で、スコアが高いほど、よりおすすめの物件と評価されています。
写真
契約条件
| 賃料 | 予想金額:1,250,000〜1,270,000円程度 | 管理費 | 予想金額:0〜2,000円程度 |
| 礼金 | 非公開(アーカイブ) | 敷金 | 非公開(アーカイブ) |
| フリーレント | なし | 平米数 | 195.28㎡ |
| 間取り | 2LDK | 大型収納 | SIC+Sto |
| 契約期間 | 方角 | 南 西 | |
| 更新料 | 契約形態 | 定期借家契約 | |
| 取引態様 | 媒介 | 内見状況 | 入居中 |
| 入居時期 | 入居中 | SOHO・事務所 | |
| ペット | ペット可 | 間取り内訳 | LD:36.1 K:9.9 BR:17.6 BR:11.5 BR:10.3 |
| キャンペーン情報・備考 | 本情報は賃料改定交渉の資料作成、収益物件の利回り試算、周辺エリアや最寄り駅の坪単価分析、次回募集開始時期の予測などにご活用いただけます。 | ||
※「どの不動産に頼めばいいのか分からない」「信頼できる営業マンの話を聞きたい」「一番親切な会社と契約したい」とお悩みの方におすすめなのが「高級賃貸バイブル」です。
高級賃貸バイブルは業界10年以上の熟練スタッフ群がお客様ファーストで対応します。
下記ボタンから、まずは無料でご相談下さい。
※内覧をご希望の際には、どうぞ物件のエントランス前にてお待ち合わせくださいませ。ご内覧後は、同じ場所でお別れとさせていただきます。お客様のご都合に合わせたスムーズなご案内を心がけておりますので、ご質問等がございましたら何なりとお申し付けください。 物件概要
| 物件名 |
| 築年月 |
|
|---|---|---|---|
| 所在地 | |||
| 交通 | |||
| 総戸数 |
| 総階数 |
|
| 構造 |
| ||
地図
物件までの道のりは、「拡大地図を表示」をクリックしてナビ機能をご利用ください。
部屋設備
















建物設備

24時間管理

TVモニターホン

エレベーター

オートロック

フィットネス

フロントサービス

プール

ラウンジ

宅配ボックス

敷地内ゴミ置場

駐車場平置き

駐車場機械式

駐輪場
アークタワーズイーストの現在募集中のお部屋
- No rooms found for this property.








