
| 賃料 | 予想金額:460,000〜480,000円程度 | 管理費 | 予想金額:0〜2,000円程度 |
| 礼金/敷金 | 非公開(アーカイブ) | 平米数 | 64.48㎡ |
| 初期費用概算(参考) | 目安:2,626,500〜2,726,500 円 | みなし賃料(月額・参考) | 505,969〜525,969 円 |
| 備考 | 本ページは過去募集のアーカイブです。表示の金額は周辺相場・過去募集を踏まえた参考レンジであり、実際の契約金額・条件ではありません。 | ||
※上記みなし賃料(月額)は仲介手数料割引・無料&キャッシュバックを加味した高級賃貸バイブル限定の金額です。一般的なみなし賃料とは異なります。
【建物ページ】アークタワーズイーストの詳細・最新空室はこちら▶▶選ばれる理由
仲介手数料無料・キャンペーン情報(毎月15名様限定)
〇仲介手数料割引キャンペーン
アークタワーズイースト 2009の口コミ・レビュー
アークタワーズイースト 2009が、あなたに語りかけます。ここはただの住まいではなく、都会の喧騒を忘れさせる夢の舞台なのです。南向きに広がる窓からは、温かい陽射しが心地よく差し込み、日々の生活を優雅に彩ります。6348㎡の広がりを持つこの住空間は、まるであなたのライフスタイルを映し出すキャンバスのようです。
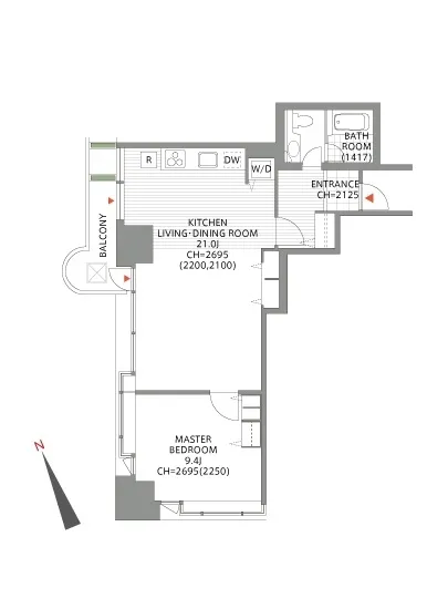
一歩足を踏み入れれば、21.0帖のLDKがあなたを迎え入れます。大きな窓からは、六本木の…アークタワーズイースト 2009が、あなたに語りかけます。ここはただの住まいではなく、都会の喧騒を忘れさせる夢の舞台なのです。南向きに広がる窓からは、温かい陽射しが心地よく差し込み、日々の生活を優雅に彩ります。6348㎡の広がりを持つこの住空間は、まるであなたのライフスタイルを映し出すキャンバスのようです。
一歩足を踏み入れれば、21.0帖のLDKがあなたを迎え入れます。大きな窓からは、六本木の街並みが一望でき、その美しさに思わず息を呑むことでしょう。心を奪われる風景は、まるで映画のワンシーンのように、あなたの毎日を特別なものにしてくれます。風がそよぐ音、街のざわめき、そして光のダンスが、ここでの生活のバックグラウンドミュージックとなるのです。
9.4帖の洋室は、まるで隠れ家のように穏やかな時間を提供します。柔らかな質感のカーペットに足を踏み入れれば、豊かな安らぎが広がり、心も体も解きほぐされることでしょう。ゆっくりとした時間の中で、お気に入りの本を手に取り、香り高いコーヒーを一口。まさに、この場所があなたの居場所であることを実感します。
アークタワーズイースト 2009は、四季折々の美しさを感じさせてくれる立地にも恵まれています。周辺には文化やアートが息づくエリアが広がり、どこに行くにも刺激的な体験が待っています。アートギャラリーを訪れたり、歴史ある神社に足を運んだりすることで、都会の中にある自然の息遣いや日本文化の奥深さに触れることができるのです。
この物件の魅力は、ただここに住むことにとどまりません。24時間管理された安心のセキュリティは、まさに心の平穏をもたらし、フロントサービスやフィットネス設備が、あなたのライフスタイルをより豊かに彩ります。また、プールやラウンジでのひとときは、友人との語らいの場としても最適であり、特別な時間を共有する場所となるでしょう。
アークタワーズイースト 2009は、日常の中に非日常をもたらす素晴らしい場所です。もし高級な賃貸物件をお探しでしたら、ここでの生活はまるで映画の中にいるかのような、感動的な瞬間を提供してくれることでしょう。あなたの人生を豊かにするための新たな舞台が、ここに待っています。さあ、アークタワーズイースト 2009で、新しい物語を紡いでみませんか。
一歩足を踏み入れれば、21.0帖のLDKがあなたを迎え入れます。大きな窓からは、六本木の…アークタワーズイースト 2009が、あなたに語りかけます。ここはただの住まいではなく、都会の喧騒を忘れさせる夢の舞台なのです。南向きに広がる窓からは、温かい陽射しが心地よく差し込み、日々の生活を優雅に彩ります。6348㎡の広がりを持つこの住空間は、まるであなたのライフスタイルを映し出すキャンバスのようです。
一歩足を踏み入れれば、21.0帖のLDKがあなたを迎え入れます。大きな窓からは、六本木の街並みが一望でき、その美しさに思わず息を呑むことでしょう。心を奪われる風景は、まるで映画のワンシーンのように、あなたの毎日を特別なものにしてくれます。風がそよぐ音、街のざわめき、そして光のダンスが、ここでの生活のバックグラウンドミュージックとなるのです。
9.4帖の洋室は、まるで隠れ家のように穏やかな時間を提供します。柔らかな質感のカーペットに足を踏み入れれば、豊かな安らぎが広がり、心も体も解きほぐされることでしょう。ゆっくりとした時間の中で、お気に入りの本を手に取り、香り高いコーヒーを一口。まさに、この場所があなたの居場所であることを実感します。
アークタワーズイースト 2009は、四季折々の美しさを感じさせてくれる立地にも恵まれています。周辺には文化やアートが息づくエリアが広がり、どこに行くにも刺激的な体験が待っています。アートギャラリーを訪れたり、歴史ある神社に足を運んだりすることで、都会の中にある自然の息遣いや日本文化の奥深さに触れることができるのです。
この物件の魅力は、ただここに住むことにとどまりません。24時間管理された安心のセキュリティは、まさに心の平穏をもたらし、フロントサービスやフィットネス設備が、あなたのライフスタイルをより豊かに彩ります。また、プールやラウンジでのひとときは、友人との語らいの場としても最適であり、特別な時間を共有する場所となるでしょう。
アークタワーズイースト 2009は、日常の中に非日常をもたらす素晴らしい場所です。もし高級な賃貸物件をお探しでしたら、ここでの生活はまるで映画の中にいるかのような、感動的な瞬間を提供してくれることでしょう。あなたの人生を豊かにするための新たな舞台が、ここに待っています。さあ、アークタワーズイースト 2009で、新しい物語を紡いでみませんか。
バイブルスコア
バイブルスコア: 28.5
平均的なスコアです。
※バイブルスコア詳細はこちら
バイブルスコアとは独自のAI機械学習技術を利用した物件評価システムで、物件のおすすめ度を示します。最高得点は100点で、スコアが高いほど、よりおすすめの物件と評価されています。
写真
契約条件
| 賃料 | 予想金額:460,000〜480,000円程度 | 管理費 | 予想金額:0〜2,000円程度 |
| 礼金 | 非公開(アーカイブ) | 敷金 | 非公開(アーカイブ) |
| フリーレント | なし | 平米数 | 64.48㎡ |
| 間取り | 1LDK | 大型収納 | |
| 契約期間 | 方角 | 南 | |
| 更新料 | 契約形態 | 定期借家契約 | |
| 取引態様 | 媒介 | 内見状況 | 入居中 |
| 入居時期 | 入居中 | SOHO・事務所 | |
| ペット | ペット可 | 間取り内訳 | 洋:9.4 LDK:21.0 |
| キャンペーン情報・備考 | 本情報は賃料改定交渉の資料作成、収益物件の利回り試算、周辺エリアや最寄り駅の坪単価分析、次回募集開始時期の予測などにご活用いただけます。 | ||
※「どの不動産に頼めばいいのか分からない」「信頼できる営業マンの話を聞きたい」「一番親切な会社と契約したい」とお悩みの方におすすめなのが「高級賃貸バイブル」です。
高級賃貸バイブルは業界10年以上の熟練スタッフ群がお客様ファーストで対応します。
下記ボタンから、まずは無料でご相談下さい。
※内覧をご希望の際には、どうぞ物件のエントランス前にてお待ち合わせくださいませ。ご内覧後は、同じ場所でお別れとさせていただきます。お客様のご都合に合わせたスムーズなご案内を心がけておりますので、ご質問等がございましたら何なりとお申し付けください。 物件概要
| 物件名 |
| 築年月 |
|
|---|---|---|---|
| 所在地 | |||
| 交通 | |||
| 総戸数 |
| 総階数 |
|
| 構造 |
| ||
地図
物件までの道のりは、「拡大地図を表示」をクリックしてナビ機能をご利用ください。
部屋設備












建物設備

24時間管理

TVモニターホン

エレベーター

オートロック

フィットネス

フロントサービス

プール

ラウンジ

宅配ボックス

敷地内ゴミ置場

駐車場平置き

駐車場機械式

駐輪場
アークタワーズイーストの現在募集中のお部屋
- No rooms found for this property.








