
| 賃料 | 予想金額:185,000〜205,000円程度 | 管理費 | 予想金額:18,000〜22,000円程度 |
| 礼金/敷金 | 非公開(アーカイブ) | 平米数 | 44.77㎡ |
| 初期費用概算(参考) | 目安:582,000〜682,000 円 | みなし賃料(月額・参考) | 214,104〜234,104 円 |
| 備考 | 本ページは過去募集のアーカイブです。表示の金額は周辺相場・過去募集を踏まえた参考レンジであり、実際の契約金額・条件ではありません。 | ||
※上記みなし賃料(月額)は仲介手数料割引・無料&キャッシュバックを加味した高級賃貸バイブル限定の金額です。一般的なみなし賃料とは異なります。
【建物ページ】アルテシモアルドの詳細・最新空室はこちら▶▶選ばれる理由
仲介手数料無料・キャンペーン情報(毎月15名様限定)
〇引っ越しお祝い金117000円プレゼント(キャッシュバック)
〇仲介手数料無料キャンペーン
アルテシモアルド 1205の口コミ・レビュー
アルテシモアルド 1205。それはただの住まいではなく、あなたの人生の舞台となる場所です。新宿の賑やかな街に身を委ね、南向きの大窓からは、朝日がまるでそっとあなたを起こすかのように、温かく優しく差し込みます。この一瞬一瞬が、贅沢な時間の流れを感じさせ、煌びやかな都会の生活が始まるのです。
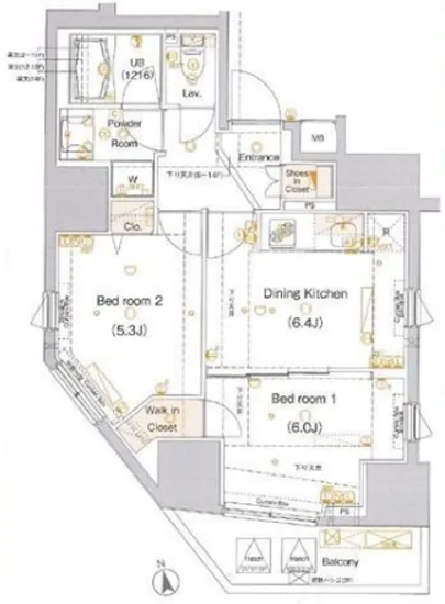
アルテシモアルド 1205の間取り、2DKという名は、まるで詩の中のリズムのように整然としており、洋室6帖と…アルテシモアルド 1205。それはただの住まいではなく、あなたの人生の舞台となる場所です。新宿の賑やかな街に身を委ね、南向きの大窓からは、朝日がまるでそっとあなたを起こすかのように、温かく優しく差し込みます。この一瞬一瞬が、贅沢な時間の流れを感じさせ、煌びやかな都会の生活が始まるのです。
アルテシモアルド 1205の間取り、2DKという名は、まるで詩の中のリズムのように整然としており、洋室6帖と洋室5.3帖、そしてダイニングキッチン6.4帖が、生活のシンフォニーを奏でます。訪れる人々が温かみを感じるこの空間は、まるで大切な友人を自宅に招くときの心の準備をしているかのように、あなたを包み込むのです。思い出づくりのための美味しい料理や、深い会話がよそおう空気の中で、心地よさと幸福感が満ちていきます。
あなたは、見えない音楽が流れるように、このアルテシモアルド 1205での日常を楽しむことができるでしょう。隣の洋室から微かに聞こえる笑い声、そして道を行き交う人々の喧騒が、まるで一つの大きなオーケストラのように調和を奏でます。これが、毎日を豊かに彩る瞬間です。
新宿の歴史と文化の息吹を感じるこの地で、あなたの新しい生活が始まります。大久保駅から徒歩わずか3分という立地は、まるで移りゆく時の流れを感じさせるかのように、利便性と共に日常に潤いをもたらします。街を歩けば、アートにあふれたギャラリーや情緒溢れるカフェがあなたを待っています。この特別な場所に住むことで、あなたは日常の中に非日常を見出すことができるでしょう。
贅を尽くした設備も、アルテシモアルド 1205の魅力の一つです。24時間管理され、オートロックがあなたのプライバシーを守ります。安心して暮らすことができるこの空間には、宅配ボックスや駐車場、駐輪場が揃い、心の余裕を与えてくれるでしょう。また、デザイナーズという名の通り、洗練されたデザインは、まるでアートギャラリーの一部のように感じられ、毎日目にするその美しさが、あなたの心を豊かにしてくれます。
アルテシモアルド 1205に住むことは、まるで映画のワンシーンに足を踏み入れるかのようです。静けさの中に温もりを感じ、生活の中に夢を織り交ぜることができる場所。あなたは、ここで新しい人生の物語を描いていくのです。日々の生活がアートで満たされ、あなた自身がその主人公になる瞬間を、ぜひ体感してみてください。この場所が、あなたの心の拠り所となり、未来への希望を抱かせることを、私は願っています。
アルテシモアルド 1205の間取り、2DKという名は、まるで詩の中のリズムのように整然としており、洋室6帖と…アルテシモアルド 1205。それはただの住まいではなく、あなたの人生の舞台となる場所です。新宿の賑やかな街に身を委ね、南向きの大窓からは、朝日がまるでそっとあなたを起こすかのように、温かく優しく差し込みます。この一瞬一瞬が、贅沢な時間の流れを感じさせ、煌びやかな都会の生活が始まるのです。
アルテシモアルド 1205の間取り、2DKという名は、まるで詩の中のリズムのように整然としており、洋室6帖と洋室5.3帖、そしてダイニングキッチン6.4帖が、生活のシンフォニーを奏でます。訪れる人々が温かみを感じるこの空間は、まるで大切な友人を自宅に招くときの心の準備をしているかのように、あなたを包み込むのです。思い出づくりのための美味しい料理や、深い会話がよそおう空気の中で、心地よさと幸福感が満ちていきます。
あなたは、見えない音楽が流れるように、このアルテシモアルド 1205での日常を楽しむことができるでしょう。隣の洋室から微かに聞こえる笑い声、そして道を行き交う人々の喧騒が、まるで一つの大きなオーケストラのように調和を奏でます。これが、毎日を豊かに彩る瞬間です。
新宿の歴史と文化の息吹を感じるこの地で、あなたの新しい生活が始まります。大久保駅から徒歩わずか3分という立地は、まるで移りゆく時の流れを感じさせるかのように、利便性と共に日常に潤いをもたらします。街を歩けば、アートにあふれたギャラリーや情緒溢れるカフェがあなたを待っています。この特別な場所に住むことで、あなたは日常の中に非日常を見出すことができるでしょう。
贅を尽くした設備も、アルテシモアルド 1205の魅力の一つです。24時間管理され、オートロックがあなたのプライバシーを守ります。安心して暮らすことができるこの空間には、宅配ボックスや駐車場、駐輪場が揃い、心の余裕を与えてくれるでしょう。また、デザイナーズという名の通り、洗練されたデザインは、まるでアートギャラリーの一部のように感じられ、毎日目にするその美しさが、あなたの心を豊かにしてくれます。
アルテシモアルド 1205に住むことは、まるで映画のワンシーンに足を踏み入れるかのようです。静けさの中に温もりを感じ、生活の中に夢を織り交ぜることができる場所。あなたは、ここで新しい人生の物語を描いていくのです。日々の生活がアートで満たされ、あなた自身がその主人公になる瞬間を、ぜひ体感してみてください。この場所が、あなたの心の拠り所となり、未来への希望を抱かせることを、私は願っています。
バイブルスコア
バイブルスコア: 45.7
条件のいい物件です、引っ越しが2か月以内の場合は仮申し込みを検討すべき物件です。
※バイブルスコア詳細はこちら
バイブルスコアとは独自のAI機械学習技術を利用した物件評価システムで、物件のおすすめ度を示します。最高得点は100点で、スコアが高いほど、よりおすすめの物件と評価されています。
写真
現在写真が登録されていません契約条件
| 賃料 | 予想金額:185,000〜205,000円程度 | 管理費 | 予想金額:18,000〜22,000円程度 |
| 礼金 | 非公開(アーカイブ) | 敷金 | 非公開(アーカイブ) |
| フリーレント | なし | 平米数 | 44.77㎡ |
| 間取り | 2DK | 大型収納 | WIC+SIC |
| 契約期間 | 2年 | 方角 | 南 |
| 更新料 | 1ヶ月 | 契約形態 | 普通賃貸借契約 |
| 取引態様 | 媒介 | 内見状況 | 入居中 |
| 入居時期 | 入居中 | SOHO・事務所 | 不可 |
| ペット | ペット可 | 間取り内訳 | 洋:6 洋:5.3 DK:6.4 |
| キャンペーン情報・備考 | 本情報は賃料改定交渉の資料作成、収益物件の利回り試算、周辺エリアや最寄り駅の坪単価分析、次回募集開始時期の予測などにご活用いただけます。 | ||
※「どの不動産に頼めばいいのか分からない」「信頼できる営業マンの話を聞きたい」「一番親切な会社と契約したい」とお悩みの方におすすめなのが「高級賃貸バイブル」です。
高級賃貸バイブルは業界10年以上の熟練スタッフ群がお客様ファーストで対応します。
下記ボタンから、まずは無料でご相談下さい。
※内覧をご希望の際には、どうぞ物件のエントランス前にてお待ち合わせくださいませ。ご内覧後は、同じ場所でお別れとさせていただきます。お客様のご都合に合わせたスムーズなご案内を心がけておりますので、ご質問等がございましたら何なりとお申し付けください。 物件概要
| 物件名 |
| 築年月 |
|
|---|---|---|---|
| 所在地 | |||
| 交通 | |||
| 総戸数 |
| 総階数 |
|
| 構造 |
| ||
地図
物件までの道のりは、「拡大地図を表示」をクリックしてナビ機能をご利用ください。
部屋設備

















建物設備

24時間管理

TVモニターホン

エレベーター

オートロック

バイク置場

宅配ボックス

敷地内ゴミ置場

管理人

駐車場平置き

駐車場機械式

駐輪場
アルテシモアルドの現在募集中のお部屋
- No rooms found for this property.
