
| 賃料 | 予想金額:266,000〜286,000円程度 | 管理費 | 予想金額:8,000〜12,000円程度 |
| 礼金/敷金 | 非公開(アーカイブ) | 平米数 | 47.25㎡ |
| 初期費用概算(参考) | 目安:937,500〜1,037,500 円 | みなし賃料(月額・参考) | 290,823〜310,823 円 |
| 備考 | 本ページは過去募集のアーカイブです。表示の金額は周辺相場・過去募集を踏まえた参考レンジであり、実際の契約金額・条件ではありません。 | ||
※上記みなし賃料(月額)は仲介手数料割引・無料&キャッシュバックを加味した高級賃貸バイブル限定の金額です。一般的なみなし賃料とは異なります。
【建物ページ】グランドゥールプレミアム代々木大山の詳細・最新空室はこちら▶▶選ばれる理由
仲介手数料無料・キャンペーン情報(毎月15名様限定)
〇引っ越しお祝い金30000円プレゼント(キャッシュバック)
〇仲介手数料無料キャンペーン
グランドゥールプレミアム代々木大山 305の口コミ・レビュー
グランドゥールプレミアム代々木大山 305は、まるで優雅な舞踏会の一員のように、あなたを優しく迎え入れる特別な住まいです。この美しい物件は、東京都渋谷区大山町4-1という恵まれた場所に位置し、南向きの陽だまりが住空間に温かい光を注ぎます。その明るさは、まるで朝焼けのように新しい一日の始まりを告げ、あなたの心に希望の種をまくのです。
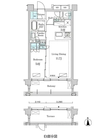
305号室は、47.25㎡のスペースに息吹を与え、独特の魅力にあ…グランドゥールプレミアム代々木大山 305は、まるで優雅な舞踏会の一員のように、あなたを優しく迎え入れる特別な住まいです。この美しい物件は、東京都渋谷区大山町4-1という恵まれた場所に位置し、南向きの陽だまりが住空間に温かい光を注ぎます。その明るさは、まるで朝焼けのように新しい一日の始まりを告げ、あなたの心に希望の種をまくのです。
305号室は、47.25㎡のスペースに息吹を与え、独特の魅力にあふれた1LDKの間取りを誇ります。11.7帖のLDは、広々とした空間が温もりを醸し出し、優雅なソファに腰を下ろし、静かな音楽が流れる中で本を読む幸福な時間をお約束いたします。5帖の洋室は、まるで穏やかな海の音を聞くかのような安らぎを与え、あなたの疲れた心と体を優しく抱きしめてくれます。そして、3帖のキッチンでは、食材の香りが立ち上がる中、料理を楽しむ姿が目に浮かびます。新鮮な香草やスパイスの香りは、あなたの五感を刺激し、まるで異国の料理を楽しむ旅に出ているかのような気分にさせるでしょう。
グランドゥールプレミアム代々木大山 305の特徴は、ただの居住空間ではありません。エレベーターで優雅に移動し、オートロックで守られた安心感の中、ラウンジでのんびりと過ごす贅沢さも体験できます。宅配ボックスや駐輪場の便利さは、まるで生活のパートナーのようにあなたを支え、日々の忙しさを美しく彩ります。低層に位置するこの物件は、周囲の景観とも一体となり、まるで街の一部として息づいています。
周辺には歴史の香りが漂い、文化的な魅力が満載です。小田急電鉄小田原線の東北沢駅まで徒歩6分という至便さは、まるで時空を超えた旅の出発点。渋谷の喧騒から少し離れたこのエリアは、静けさと活気が共存し、心地良い生活を約束します。毎日の暮らしの中で、地域のアートや文化を感じることができるのは、贅沢な特権です。
さあ、グランドゥールプレミアム代々木大山 305へようこそ。この場所での毎日は、あなたの人生を美しい映画のワンシーンに変えることでしょう。物件は、あなたに語りかけ、一緒に新しい物語を紡ぐ準備ができています。ここでの生活が、あなた自身のアートとなるのは間違いありません。そして、あなたが持つ夢や願いが、この特別な空間でより輝くことを心から願っています。
305号室は、47.25㎡のスペースに息吹を与え、独特の魅力にあ…グランドゥールプレミアム代々木大山 305は、まるで優雅な舞踏会の一員のように、あなたを優しく迎え入れる特別な住まいです。この美しい物件は、東京都渋谷区大山町4-1という恵まれた場所に位置し、南向きの陽だまりが住空間に温かい光を注ぎます。その明るさは、まるで朝焼けのように新しい一日の始まりを告げ、あなたの心に希望の種をまくのです。
305号室は、47.25㎡のスペースに息吹を与え、独特の魅力にあふれた1LDKの間取りを誇ります。11.7帖のLDは、広々とした空間が温もりを醸し出し、優雅なソファに腰を下ろし、静かな音楽が流れる中で本を読む幸福な時間をお約束いたします。5帖の洋室は、まるで穏やかな海の音を聞くかのような安らぎを与え、あなたの疲れた心と体を優しく抱きしめてくれます。そして、3帖のキッチンでは、食材の香りが立ち上がる中、料理を楽しむ姿が目に浮かびます。新鮮な香草やスパイスの香りは、あなたの五感を刺激し、まるで異国の料理を楽しむ旅に出ているかのような気分にさせるでしょう。
グランドゥールプレミアム代々木大山 305の特徴は、ただの居住空間ではありません。エレベーターで優雅に移動し、オートロックで守られた安心感の中、ラウンジでのんびりと過ごす贅沢さも体験できます。宅配ボックスや駐輪場の便利さは、まるで生活のパートナーのようにあなたを支え、日々の忙しさを美しく彩ります。低層に位置するこの物件は、周囲の景観とも一体となり、まるで街の一部として息づいています。
周辺には歴史の香りが漂い、文化的な魅力が満載です。小田急電鉄小田原線の東北沢駅まで徒歩6分という至便さは、まるで時空を超えた旅の出発点。渋谷の喧騒から少し離れたこのエリアは、静けさと活気が共存し、心地良い生活を約束します。毎日の暮らしの中で、地域のアートや文化を感じることができるのは、贅沢な特権です。
さあ、グランドゥールプレミアム代々木大山 305へようこそ。この場所での毎日は、あなたの人生を美しい映画のワンシーンに変えることでしょう。物件は、あなたに語りかけ、一緒に新しい物語を紡ぐ準備ができています。ここでの生活が、あなた自身のアートとなるのは間違いありません。そして、あなたが持つ夢や願いが、この特別な空間でより輝くことを心から願っています。
バイブルスコア
バイブルスコア: 27.3
平均的なスコアです。
※バイブルスコア詳細はこちら
バイブルスコアとは独自のAI機械学習技術を利用した物件評価システムで、物件のおすすめ度を示します。最高得点は100点で、スコアが高いほど、よりおすすめの物件と評価されています。
写真
現在写真が登録されていません契約条件
| 賃料 | 予想金額:266,000〜286,000円程度 | 管理費 | 予想金額:8,000〜12,000円程度 |
| 礼金 | 非公開(アーカイブ) | 敷金 | 非公開(アーカイブ) |
| フリーレント | なし | 平米数 | 47.25㎡ |
| 間取り | 1LDK | 大型収納 | SIC |
| 契約期間 |
| 方角 | 南 |
| 更新料 | 契約形態 | 普通賃貸借契約 | |
| 取引態様 | 媒介 | 内見状況 | 入居中 |
| 入居時期 | 入居中 | SOHO・事務所 | |
| ペット | ペット可 | 間取り内訳 | 洋:5 LD:11.7 K:3 |
| キャンペーン情報・備考 | 本情報は賃料改定交渉の資料作成、収益物件の利回り試算、周辺エリアや最寄り駅の坪単価分析、次回募集開始時期の予測などにご活用いただけます。 | ||
※「どの不動産に頼めばいいのか分からない」「信頼できる営業マンの話を聞きたい」「一番親切な会社と契約したい」とお悩みの方におすすめなのが「高級賃貸バイブル」です。
高級賃貸バイブルは業界10年以上の熟練スタッフ群がお客様ファーストで対応します。
下記ボタンから、まずは無料でご相談下さい。
※内覧をご希望の際には、どうぞ物件のエントランス前にてお待ち合わせくださいませ。ご内覧後は、同じ場所でお別れとさせていただきます。お客様のご都合に合わせたスムーズなご案内を心がけておりますので、ご質問等がございましたら何なりとお申し付けください。 物件概要
| 物件名 |
| 築年月 |
|
|---|---|---|---|
| 所在地 | |||
| 交通 | |||
| 総戸数 |
| 総階数 |
|
| 構造 |
| ||
地図
物件までの道のりは、「拡大地図を表示」をクリックしてナビ機能をご利用ください。
部屋設備



















建物設備

TVモニターホン

エレベーター

オートロック

バイク置場

ラウンジ

宅配ボックス

敷地内ゴミ置場

管理人

駐車場平置き

駐輪場
グランドゥールプレミアム代々木大山の現在募集中のお部屋
- グランドゥールプレミアム代々木大山 302 - 間取り: 1LDK+WIC+SIC - 賃料: 35万円
- グランドゥールプレミアム代々木大山 103 - 間取り: 1LDK+WIC+SIC - 賃料: 35.5万円
