
| 賃料 | 予想金額:287,000〜307,000円程度 | 管理費 | 予想金額:8,000〜12,000円程度 |
| 礼金/敷金 | 非公開(アーカイブ) | 平米数 | 51.86㎡ |
| 初期費用概算(参考) | 目安:969,126〜1,069,126 円 | みなし賃料(月額・参考) | 312,044〜332,044 円 |
| 備考 | 本ページは過去募集のアーカイブです。表示の金額は周辺相場・過去募集を踏まえた参考レンジであり、実際の契約金額・条件ではありません。 | ||
※上記みなし賃料(月額)は仲介手数料割引・無料&キャッシュバックを加味した高級賃貸バイブル限定の金額です。一般的なみなし賃料とは異なります。
【建物ページ】グランドゥールプレミアム代々木大山の詳細・最新空室はこちら▶▶選ばれる理由
仲介手数料無料・キャンペーン情報(毎月15名様限定)
〇引っ越しお祝い金71874円プレゼント(キャッシュバック)
〇仲介手数料無料キャンペーン
グランドゥールプレミアム代々木大山 210の口コミ・レビュー
グランドゥールプレミアム代々木大山 210。この美しい名前を耳にした瞬間、心の奥深くに特別な響きが届くことでしょう。まるで心地よい潮の香りが漂うように、あなたをきっと新たな人生の舞台へと導いてくれることでしょう。東京都渋谷区大山町4-1に佇むこの物件は、まさに静謐なオアシス。北を向いたその姿は、穏やかな光に包まれ、ちょっとした優雅さを漂わせています。
グランドゥールプレミアム代々木大山 210は…グランドゥールプレミアム代々木大山 210。この美しい名前を耳にした瞬間、心の奥深くに特別な響きが届くことでしょう。まるで心地よい潮の香りが漂うように、あなたをきっと新たな人生の舞台へと導いてくれることでしょう。東京都渋谷区大山町4-1に佇むこの物件は、まさに静謐なオアシス。北を向いたその姿は、穏やかな光に包まれ、ちょっとした優雅さを漂わせています。
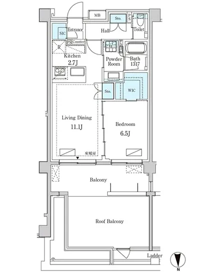
グランドゥールプレミアム代々木大山 210は、贅沢な1LDKの間取りを誇り、洋室は6.5帖、リビングダイニングは11.1帖、キッチンは2.7帖という、生活を豊かにするための十分な広さを提供しています。この空間は、あなたの大切な瞬間を優しく包み込み、暮らしの中にある小さな幸せを見つけられる場所です。例えば、朝日が差し込む中、淹れたてのコーヒーの香りが部屋いっぱいに広がる瞬間、あなたの心も身体も目覚めてゆくのです。
その洗練された住空間は、まるで芸術作品のよう。デザイン性と機能性が見事に融合し、エレガントなインテリアが心を豊かに満たしてくれます。TVモニターホンやオートロック、さらにエレベーターまで備わり、あらゆるシーンで安心感を提供します。また、バイク置場や駐車場平置きが完備されているため、アクティブな生活を送るあなたにも最適な空間です。
グランドゥールプレミアム代々木大山 210は、ただの住まいではなく、あなたの人生の舞台。ラウンジに身を委ね、心安らぐひとときを過ごせば、まるで映画のワンシーンにいるかのような気分を感じるでしょう。友人たちとの会話が弾む中、優雅な時間が流れ、思い出が豊かに積み重なります。
また、周囲には渋谷区の歴史と文化が息づいています。小田急電鉄小田原線 東北沢駅から徒歩6分の距離にあり、アクセスの利便性も抜群。渋谷の喧騒から一歩離れたこの地は、心を休める場所として完璧な選択肢と言えます。近くにはアートギャラリーやカフェが点在し、芸術に浸るひとときを楽しむことができます。街を歩けば、古き良き日本の面影と現代アートが交差し、まるで夢の中にいるかのような感覚に包まれるのです。
グランドゥールプレミアム代々木大山 210での生活は、五感を刺激する色とりどりの経験となることでしょう。香ばしいコーヒーの香りに包まれ、窓から差し込む優しい光に心を癒され、親しい人々との温かい会話に感謝し、美味しい料理を楽しむ。全てがあなたの生活を彩り、一瞬一瞬が特別なものとなるのです。
さあ、あなた自身の物語を、グランドゥールプレミアム代々木大山 210で紡いでみませんか?ここには、あなたを待ちながら、日々の暮らしを美しく彩るその場所があるのです。
グランドゥールプレミアム代々木大山 210は…グランドゥールプレミアム代々木大山 210。この美しい名前を耳にした瞬間、心の奥深くに特別な響きが届くことでしょう。まるで心地よい潮の香りが漂うように、あなたをきっと新たな人生の舞台へと導いてくれることでしょう。東京都渋谷区大山町4-1に佇むこの物件は、まさに静謐なオアシス。北を向いたその姿は、穏やかな光に包まれ、ちょっとした優雅さを漂わせています。
グランドゥールプレミアム代々木大山 210は、贅沢な1LDKの間取りを誇り、洋室は6.5帖、リビングダイニングは11.1帖、キッチンは2.7帖という、生活を豊かにするための十分な広さを提供しています。この空間は、あなたの大切な瞬間を優しく包み込み、暮らしの中にある小さな幸せを見つけられる場所です。例えば、朝日が差し込む中、淹れたてのコーヒーの香りが部屋いっぱいに広がる瞬間、あなたの心も身体も目覚めてゆくのです。
その洗練された住空間は、まるで芸術作品のよう。デザイン性と機能性が見事に融合し、エレガントなインテリアが心を豊かに満たしてくれます。TVモニターホンやオートロック、さらにエレベーターまで備わり、あらゆるシーンで安心感を提供します。また、バイク置場や駐車場平置きが完備されているため、アクティブな生活を送るあなたにも最適な空間です。
グランドゥールプレミアム代々木大山 210は、ただの住まいではなく、あなたの人生の舞台。ラウンジに身を委ね、心安らぐひとときを過ごせば、まるで映画のワンシーンにいるかのような気分を感じるでしょう。友人たちとの会話が弾む中、優雅な時間が流れ、思い出が豊かに積み重なります。
また、周囲には渋谷区の歴史と文化が息づいています。小田急電鉄小田原線 東北沢駅から徒歩6分の距離にあり、アクセスの利便性も抜群。渋谷の喧騒から一歩離れたこの地は、心を休める場所として完璧な選択肢と言えます。近くにはアートギャラリーやカフェが点在し、芸術に浸るひとときを楽しむことができます。街を歩けば、古き良き日本の面影と現代アートが交差し、まるで夢の中にいるかのような感覚に包まれるのです。
グランドゥールプレミアム代々木大山 210での生活は、五感を刺激する色とりどりの経験となることでしょう。香ばしいコーヒーの香りに包まれ、窓から差し込む優しい光に心を癒され、親しい人々との温かい会話に感謝し、美味しい料理を楽しむ。全てがあなたの生活を彩り、一瞬一瞬が特別なものとなるのです。
さあ、あなた自身の物語を、グランドゥールプレミアム代々木大山 210で紡いでみませんか?ここには、あなたを待ちながら、日々の暮らしを美しく彩るその場所があるのです。
バイブルスコア
バイブルスコア: 29.3
平均的なスコアです。
※バイブルスコア詳細はこちら
バイブルスコアとは独自のAI機械学習技術を利用した物件評価システムで、物件のおすすめ度を示します。最高得点は100点で、スコアが高いほど、よりおすすめの物件と評価されています。
写真
現在写真が登録されていません契約条件
| 賃料 | 予想金額:287,000〜307,000円程度 | 管理費 | 予想金額:8,000〜12,000円程度 |
| 礼金 | 非公開(アーカイブ) | 敷金 | 非公開(アーカイブ) |
| フリーレント | なし | 平米数 | 51.86㎡ |
| 間取り | 1LDK | 大型収納 | WIC+SIC |
| 契約期間 |
| 方角 | 北 |
| 更新料 | 契約形態 | 普通賃貸借契約 | |
| 取引態様 | 媒介 | 内見状況 | 入居中 |
| 入居時期 | 入居中 | SOHO・事務所 | |
| ペット | ペット可 | 間取り内訳 | 洋:6.5 LD:11.1 K:2.7 |
| キャンペーン情報・備考 | 本情報は賃料改定交渉の資料作成、収益物件の利回り試算、周辺エリアや最寄り駅の坪単価分析、次回募集開始時期の予測などにご活用いただけます。 | ||
※「どの不動産に頼めばいいのか分からない」「信頼できる営業マンの話を聞きたい」「一番親切な会社と契約したい」とお悩みの方におすすめなのが「高級賃貸バイブル」です。
高級賃貸バイブルは業界10年以上の熟練スタッフ群がお客様ファーストで対応します。
下記ボタンから、まずは無料でご相談下さい。
※内覧をご希望の際には、どうぞ物件のエントランス前にてお待ち合わせくださいませ。ご内覧後は、同じ場所でお別れとさせていただきます。お客様のご都合に合わせたスムーズなご案内を心がけておりますので、ご質問等がございましたら何なりとお申し付けください。 物件概要
| 物件名 |
| 築年月 |
|
|---|---|---|---|
| 所在地 | |||
| 交通 | |||
| 総戸数 |
| 総階数 |
|
| 構造 |
| ||
地図
物件までの道のりは、「拡大地図を表示」をクリックしてナビ機能をご利用ください。
部屋設備




















建物設備

TVモニターホン

エレベーター

オートロック

バイク置場

ラウンジ

宅配ボックス

敷地内ゴミ置場

管理人

駐車場平置き

駐輪場
グランドゥールプレミアム代々木大山の現在募集中のお部屋
- グランドゥールプレミアム代々木大山 302 - 間取り: 1LDK+WIC+SIC - 賃料: 35万円
- グランドゥールプレミアム代々木大山 103 - 間取り: 1LDK+WIC+SIC - 賃料: 35.5万円
