
| 賃料 | 予想金額:293,000〜313,000円程度 | 管理費 | 予想金額:8,000〜12,000円程度 |
| 礼金/敷金 | 非公開(アーカイブ) | 平米数 | 53.58㎡ |
| 初期費用概算(参考) | 目安:1,012,000〜1,112,000 円 | みなし賃料(月額・参考) | 318,813〜338,813 円 |
| 備考 | 本ページは過去募集のアーカイブです。表示の金額は周辺相場・過去募集を踏まえた参考レンジであり、実際の契約金額・条件ではありません。 | ||
※上記みなし賃料(月額)は仲介手数料割引・無料&キャッシュバックを加味した高級賃貸バイブル限定の金額です。一般的なみなし賃料とは異なります。
【建物ページ】グランドゥールプレミアム代々木大山の詳細・最新空室はこちら▶▶選ばれる理由
仲介手数料無料・キャンペーン情報(毎月15名様限定)
〇引っ越しお祝い金50000円プレゼント(キャッシュバック)
〇仲介手数料無料キャンペーン
グランドゥールプレミアム代々木大山 104の口コミ・レビュー
グランドゥールプレミアム代々木大山 104。ここは、都会の喧騒を忘れさせる静謐さと、生活のクオリティを追求するために誕生した美しい空間です。企業の喧噪から解き放たれ、アートが息づく渋谷区大山町に立つこの物件は、まさにあなたの新たなホームとなるべくデザインされています。
南向きに広がる窓から、柔らかな日差しが差し込みます。暖かな光があなたを包み込み、目覚めた瞬間から、心地よい朝の香りが漂います。コ…グランドゥールプレミアム代々木大山 104。ここは、都会の喧騒を忘れさせる静謐さと、生活のクオリティを追求するために誕生した美しい空間です。企業の喧噪から解き放たれ、アートが息づく渋谷区大山町に立つこの物件は、まさにあなたの新たなホームとなるべくデザインされています。
南向きに広がる窓から、柔らかな日差しが差し込みます。暖かな光があなたを包み込み、目覚めた瞬間から、心地よい朝の香りが漂います。コーヒーの香ばしさがキッチンから街へと漂い、あなたの心を満たすことでしょう。料理をする手が自然と軽やかになり、まるで映画の主人公になったかのように、毎日の食卓が特別なシーンに彩られます。
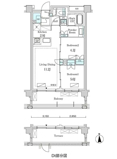
このグランドゥールプレミアム代々木大山 104は、5帖の洋室と4.3帖の洋室、そして11.2帖のリビングダイニング、それに2.9帖のキッチンを持つ2LDKのレイアウトを誇り、53.58㎡という広さは、生活の豊かさを感じさせます。家族や友人とともに集い、笑い声が響くリビングは、まさに温かな家族の物語を紡ぐ舞台です。毎日が映画の一幕として、心に残る瞬間が生まれます。
また、グランドゥールプレミアム代々木大山 104には、オートロックやバイク置場、宅配ボックスといった現代生活を支える設備が整っています。ラウンジでほんのひとときを過ごすのも、特別な時間。友人と共に語らう瞬間や、静かな読書に浸る時間が、あなたの日常に華を添えます。管理人のいる安心感は、まるで家族のようにその存在を感じさせ、いつでも寄り添っているかのようです。
さらに、この渋谷区大山町の周辺には、文化と歴史が息づいています。近くにある公園や美術館、古き良き街並みを散策することで、あなたの感性は研ぎ澄まされ、新たなインスピレーションを得ることでしょう。都会の中にありながら、心豊かな生活を送るための要素がここには満ちています。
グランドゥールプレミアム代々木大山 104での生活は、ただの住まいではなく、まるで一篇の詩のようです。毎日が新しい物語の始まりであり、あなた自身がその物語の主人公となる瞬間を、是非この地で感じていただきたいと思います。あなたの心に寄り添い、日常を特別なものに変えてくれる場所として、グランドゥールプレミアム代々木大山 104は、ここに存在しています。ようこそ、新たな人生の幕開けへ。
南向きに広がる窓から、柔らかな日差しが差し込みます。暖かな光があなたを包み込み、目覚めた瞬間から、心地よい朝の香りが漂います。コ…グランドゥールプレミアム代々木大山 104。ここは、都会の喧騒を忘れさせる静謐さと、生活のクオリティを追求するために誕生した美しい空間です。企業の喧噪から解き放たれ、アートが息づく渋谷区大山町に立つこの物件は、まさにあなたの新たなホームとなるべくデザインされています。
南向きに広がる窓から、柔らかな日差しが差し込みます。暖かな光があなたを包み込み、目覚めた瞬間から、心地よい朝の香りが漂います。コーヒーの香ばしさがキッチンから街へと漂い、あなたの心を満たすことでしょう。料理をする手が自然と軽やかになり、まるで映画の主人公になったかのように、毎日の食卓が特別なシーンに彩られます。
このグランドゥールプレミアム代々木大山 104は、5帖の洋室と4.3帖の洋室、そして11.2帖のリビングダイニング、それに2.9帖のキッチンを持つ2LDKのレイアウトを誇り、53.58㎡という広さは、生活の豊かさを感じさせます。家族や友人とともに集い、笑い声が響くリビングは、まさに温かな家族の物語を紡ぐ舞台です。毎日が映画の一幕として、心に残る瞬間が生まれます。
また、グランドゥールプレミアム代々木大山 104には、オートロックやバイク置場、宅配ボックスといった現代生活を支える設備が整っています。ラウンジでほんのひとときを過ごすのも、特別な時間。友人と共に語らう瞬間や、静かな読書に浸る時間が、あなたの日常に華を添えます。管理人のいる安心感は、まるで家族のようにその存在を感じさせ、いつでも寄り添っているかのようです。
さらに、この渋谷区大山町の周辺には、文化と歴史が息づいています。近くにある公園や美術館、古き良き街並みを散策することで、あなたの感性は研ぎ澄まされ、新たなインスピレーションを得ることでしょう。都会の中にありながら、心豊かな生活を送るための要素がここには満ちています。
グランドゥールプレミアム代々木大山 104での生活は、ただの住まいではなく、まるで一篇の詩のようです。毎日が新しい物語の始まりであり、あなた自身がその物語の主人公となる瞬間を、是非この地で感じていただきたいと思います。あなたの心に寄り添い、日常を特別なものに変えてくれる場所として、グランドゥールプレミアム代々木大山 104は、ここに存在しています。ようこそ、新たな人生の幕開けへ。
バイブルスコア
バイブルスコア: 42.2
条件のいい物件です、引っ越しが2か月以内の場合は仮申し込みを検討すべき物件です。
※バイブルスコア詳細はこちら
バイブルスコアとは独自のAI機械学習技術を利用した物件評価システムで、物件のおすすめ度を示します。最高得点は100点で、スコアが高いほど、よりおすすめの物件と評価されています。
写真
現在写真が登録されていません契約条件
| 賃料 | 予想金額:293,000〜313,000円程度 | 管理費 | 予想金額:8,000〜12,000円程度 |
| 礼金 | 非公開(アーカイブ) | 敷金 | 非公開(アーカイブ) |
| フリーレント | なし | 平米数 | 53.58㎡ |
| 間取り | 2LDK | 大型収納 | SIC |
| 契約期間 | 2年 | 方角 | 南 |
| 更新料 | 1ヶ月 | 契約形態 | 普通賃貸借契約 |
| 取引態様 | 媒介 | 内見状況 | 入居中 |
| 入居時期 | 入居中 | SOHO・事務所 | |
| ペット | ペット可 | 間取り内訳 | 洋:5 洋:4.3 LD:11.2 K:2.9 |
| キャンペーン情報・備考 | 本情報は賃料改定交渉の資料作成、収益物件の利回り試算、周辺エリアや最寄り駅の坪単価分析、次回募集開始時期の予測などにご活用いただけます。 | ||
※「どの不動産に頼めばいいのか分からない」「信頼できる営業マンの話を聞きたい」「一番親切な会社と契約したい」とお悩みの方におすすめなのが「高級賃貸バイブル」です。
高級賃貸バイブルは業界10年以上の熟練スタッフ群がお客様ファーストで対応します。
下記ボタンから、まずは無料でご相談下さい。
※内覧をご希望の際には、どうぞ物件のエントランス前にてお待ち合わせくださいませ。ご内覧後は、同じ場所でお別れとさせていただきます。お客様のご都合に合わせたスムーズなご案内を心がけておりますので、ご質問等がございましたら何なりとお申し付けください。 物件概要
| 物件名 |
| 築年月 |
|
|---|---|---|---|
| 所在地 | |||
| 交通 | |||
| 総戸数 |
| 総階数 |
|
| 構造 |
| ||
地図
物件までの道のりは、「拡大地図を表示」をクリックしてナビ機能をご利用ください。
部屋設備



















建物設備

TVモニターホン

エレベーター

オートロック

バイク置場

ラウンジ

宅配ボックス

敷地内ゴミ置場

管理人

駐車場平置き

駐輪場
グランドゥールプレミアム代々木大山の現在募集中のお部屋
- グランドゥールプレミアム代々木大山 302 - 間取り: 1LDK+WIC+SIC - 賃料: 35万円
- グランドゥールプレミアム代々木大山 103 - 間取り: 1LDK+WIC+SIC - 賃料: 35.5万円
