
| 賃料 | 予想金額:404,000〜424,000円程度 | 管理費 | 予想金額:13,000〜17,000円程度 |
| 礼金/敷金 | 非公開(アーカイブ) | 平米数 | 70.05㎡ |
| 初期費用概算(参考) | 目安:1,333,800〜1,433,800 円 | みなし賃料(月額・参考) | 439,204〜459,204 円 |
| 備考 | 本ページは過去募集のアーカイブです。表示の金額は周辺相場・過去募集を踏まえた参考レンジであり、実際の契約金額・条件ではありません。 | ||
※上記みなし賃料(月額)は仲介手数料割引・無料&キャッシュバックを加味した高級賃貸バイブル限定の金額です。一般的なみなし賃料とは異なります。
【建物ページ】グランドゥールプレミアム代々木大山の詳細・最新空室はこちら▶▶選ばれる理由
仲介手数料無料・キャンペーン情報(毎月15名様限定)
〇引っ越しお祝い金124200円プレゼント(キャッシュバック)
〇仲介手数料無料キャンペーン
グランドゥールプレミアム代々木大山 106の口コミ・レビュー
グランドゥールプレミアム代々木大山 106の広さは70.05㎡。これはまるで、あなたの個性やライフスタイルを映し出すキャンバスのようです。リビングダイニングは11帖、その広大な空間は、友人たちと共に笑顔で過ごす時間や、家族との穏やかなひとときを育んでくれるでしょう。そこには、心地よい風が通り抜け、たまに聞こえる鳥のさえずりや、近くの公園から漂ってくる緑の香りが、日常のストレスを洗い流してくれます。
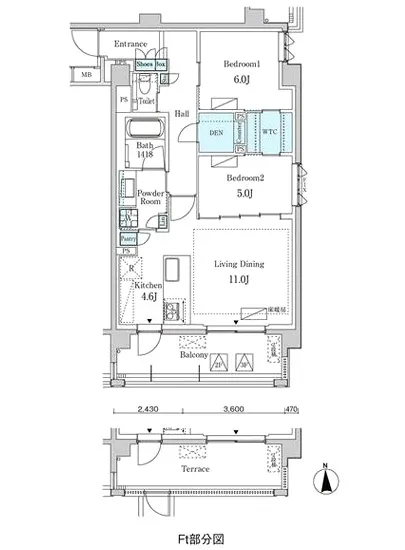
さらに、グランドゥールプレミアム代々木大山 106は、シャープでスタイリッシュな2LDKという間取りが魅力的です。6帖の洋室は、自分だけの静かな隠れ家として思い思いの時間を過ごせる空間を提供します。5帖の洋室もまた、ゲストを迎え入れる温かい場所になり、色とりどりのアートや書籍が並んでいる様子が目に浮かびます。4.6帖のキッチンでは、あなたの料理の腕前を存分に振る舞えます。香ばしい香りのする家庭料理が、家族を笑顔にし、心を一つにしてくれるでしょう。
この高級賃貸物件、グランドゥールプレミアム代々木大山 106には、エレベーター、オートロック、宅配ボックスなど、現代の生活を快適に、そして安全に支える設備が完備されております。それに加えて、管理人が常駐し、あなたの安心感を高めてくれます。敷地内のゴミ置場や駐輪場も整っており、生活の小さなストレスから解放されることができます。
また、文化と芸術に彩られたこの地域は、渋谷の潮流に触れつつ、静寂を保った魅力を秘めています。周囲には、古き良き日本を感じさせる風情ある街並みや、美術館、ギャラリーが点在し、まるで日々がアートを享受する旅のようです。小田急電鉄小田原線の東北沢駅から徒歩6分という立地も、忙しい都市生活を容易に楽しむための贅沢なエッセンスです。
グランドゥールプレミアム代々木大山 106は、単なる居住空間ではありません。ここは、あなたが心の底から安らぎ、生活の喜びを味わうための特別な場所です。新たな物語の幕開けを、ぜひこの物件で感じてください。この地で素晴らしい日々が待っています。
バイブルスコア
バイブルスコア: 52.8
条件のいい物件です、引っ越しが2か月以内の場合は仮申し込みを検討すべき物件です。
このお部屋は、現在ご入居中のため空室情報はございません。ただし、将来的に募集が開始される際、バイブルスコアにおいて非常に高い評価が期待されます。特にご興味をお持ちの方は、今のうちにブックマークやお気に入りに登録していただくと、募集開始のお知らせをすぐに受け取ることができます。是非ともご検討くださいませ。
※バイブルスコア詳細はこちら
バイブルスコアとは独自のAI機械学習技術を利用した物件評価システムで、物件のおすすめ度を示します。最高得点は100点で、スコアが高いほど、よりおすすめの物件と評価されています。
写真
現在写真が登録されていません契約条件
| 賃料 | 予想金額:404,000〜424,000円程度 | 管理費 | 予想金額:13,000〜17,000円程度 |
| 礼金 | 非公開(アーカイブ) | 敷金 | 非公開(アーカイブ) |
| フリーレント | なし | 平米数 | 70.05㎡ |
| 間取り | 2LDK | 大型収納 | WIC+DEN |
| 契約期間 | 2年 | 方角 | 南 |
| 更新料 | 1ヶ月 | 契約形態 | 普通賃貸借契約 |
| 取引態様 | 媒介 | 内見状況 | 入居中 |
| 入居時期 | 入居中 | SOHO・事務所 | 不可 |
| ペット | ペット可 | 間取り内訳 | 洋:6 洋:5 LD:11 K:4.6 |
| キャンペーン情報・備考 | 本情報は賃料改定交渉の資料作成、収益物件の利回り試算、周辺エリアや最寄り駅の坪単価分析、次回募集開始時期の予測などにご活用いただけます。 | ||
※「どの不動産に頼めばいいのか分からない」「信頼できる営業マンの話を聞きたい」「一番親切な会社と契約したい」とお悩みの方におすすめなのが「高級賃貸バイブル」です。
高級賃貸バイブルは業界10年以上の熟練スタッフ群がお客様ファーストで対応します。
下記ボタンから、まずは無料でご相談下さい。
※内覧をご希望の際には、どうぞ物件のエントランス前にてお待ち合わせくださいませ。ご内覧後は、同じ場所でお別れとさせていただきます。お客様のご都合に合わせたスムーズなご案内を心がけておりますので、ご質問等がございましたら何なりとお申し付けください。 物件概要
| 物件名 |
| 築年月 |
|
|---|---|---|---|
| 所在地 | |||
| 交通 | |||
| 総戸数 |
| 総階数 |
|
| 構造 |
| ||
地図
物件までの道のりは、「拡大地図を表示」をクリックしてナビ機能をご利用ください。
部屋設備




















建物設備

TVモニターホン

エレベーター

オートロック

バイク置場

ラウンジ

宅配ボックス

敷地内ゴミ置場

管理人

駐車場平置き

駐輪場
グランドゥールプレミアム代々木大山の現在募集中のお部屋
- グランドゥールプレミアム代々木大山 103 - 間取り: 1LDK+WIC+SIC - 賃料: 35.5万円
- グランドゥールプレミアム代々木大山 302 - 間取り: 1LDK+WIC+SIC - 賃料: 35万円
