
| 賃料 | 予想金額:129,000〜149,000円程度 | 管理費 | 予想金額:8,000〜12,000円程度 |
| 礼金/敷金 | 非公開(アーカイブ) | 平米数 | 28.44㎡ |
| 初期費用概算(参考) | 目安:543,000〜643,000 円 | みなし賃料(月額・参考) | 148,458〜168,458 円 |
| 備考 | 本ページは過去募集のアーカイブです。表示の金額は周辺相場・過去募集を踏まえた参考レンジであり、実際の契約金額・条件ではありません。 | ||
※上記みなし賃料(月額)は仲介手数料割引・無料&キャッシュバックを加味した高級賃貸バイブル限定の金額です。一般的なみなし賃料とは異なります。
【建物ページ】クラッシィハウス大手町の詳細・最新空室はこちら▶▶選ばれる理由
仲介手数料無料・キャンペーン情報(毎月15名様限定)
〇仲介手数料割引キャンペーン
クラッシィハウス大手町 304の口コミ・レビュー
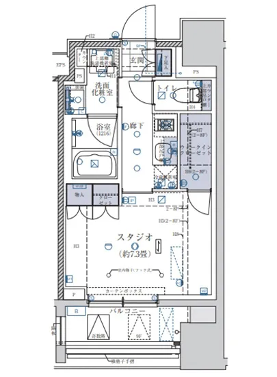
クラッシィハウス大手町 304は、まるで夢の中で出会ったかのような洗練された空間が広がる高級賃貸物件です。都心の喧噪を背に、閑静な大人の隠れ家として、あなたを待ち受けています。この美しい住まいは、優雅に広がる28.44㎡のスペースに、生活の喜びを散りばめた心地よい1K(BR=7.3J)として設計されています。
ドアを開けた瞬間、心地よい日の光が西向きの窓から差し込み、優雅な光のカーテンがあなたを…クラッシィハウス大手町 304は、まるで夢の中で出会ったかのような洗練された空間が広がる高級賃貸物件です。都心の喧噪を背に、閑静な大人の隠れ家として、あなたを待ち受けています。この美しい住まいは、優雅に広がる28.44㎡のスペースに、生活の喜びを散りばめた心地よい1K(BR=7.3J)として設計されています。
ドアを開けた瞬間、心地よい日の光が西向きの窓から差し込み、優雅な光のカーテンがあなたを包み込むことでしょう。まるで朝の光が新しい物語を語りかけるかのように、毎日の生活が特別な瞬間に変わります。そして、あなたの足元には高品質なフローリングが広がり、素足で感じるその感触は、まるで柔らかな綿のような心地よさを提供します。
クラッシィハウス大手町 304の設備は、まるで思いやり溢れる友人のように、あなたの生活を豊かにサポートします。TVモニターホンがあなたを守り、エレベーターが快適な移動を提供し、オートロックが安心感を与えてくれます。さらに、宅配ボックスがあなたの大切な荷物を守り、バイク置場や駐輪場も完備されているため、多様なライフスタイルに応じた利便性が魅力です。このマンションはまるで、あなたの生活を美しく彩るためのアトリエのようです。
周辺には歴史が香る街並みが広がり、古き良き日本の文化に触れることができるため、散策するたびに新たな発見が待っています。東京メトロ丸ノ内線の大手町駅までの徒歩4分の距離は、まるで毎朝、都会の喧騒から清らかな静寂へ旅立つかのようです。お気に入りのカフェで香ばしいコーヒーの香りに包まれ、朝の光を浴びながら朝食を楽しむ様子は、まるで映画のワンシーンのように心に刻まれることでしょう。
クラッシィハウス大手町 304は、あなたの生活にやすらぎと刺激をもたらす特別な場所です。ここから始まる新しい物語は、あなたの人生にとっての真の宝物となるでしょう。まるで、静かな海に浮かぶ一隻の美しいヨットのように、あなたを穏やかでありながら刺激的な日々へと導いてくれることでしょう。さあ、この高級賃貸物件で、新たな人生の章をスタートさせてみませんか。あなたを待っているのは、ただの住まいではなく、心が満たされる特別な空間です。
ドアを開けた瞬間、心地よい日の光が西向きの窓から差し込み、優雅な光のカーテンがあなたを…クラッシィハウス大手町 304は、まるで夢の中で出会ったかのような洗練された空間が広がる高級賃貸物件です。都心の喧噪を背に、閑静な大人の隠れ家として、あなたを待ち受けています。この美しい住まいは、優雅に広がる28.44㎡のスペースに、生活の喜びを散りばめた心地よい1K(BR=7.3J)として設計されています。
ドアを開けた瞬間、心地よい日の光が西向きの窓から差し込み、優雅な光のカーテンがあなたを包み込むことでしょう。まるで朝の光が新しい物語を語りかけるかのように、毎日の生活が特別な瞬間に変わります。そして、あなたの足元には高品質なフローリングが広がり、素足で感じるその感触は、まるで柔らかな綿のような心地よさを提供します。
クラッシィハウス大手町 304の設備は、まるで思いやり溢れる友人のように、あなたの生活を豊かにサポートします。TVモニターホンがあなたを守り、エレベーターが快適な移動を提供し、オートロックが安心感を与えてくれます。さらに、宅配ボックスがあなたの大切な荷物を守り、バイク置場や駐輪場も完備されているため、多様なライフスタイルに応じた利便性が魅力です。このマンションはまるで、あなたの生活を美しく彩るためのアトリエのようです。
周辺には歴史が香る街並みが広がり、古き良き日本の文化に触れることができるため、散策するたびに新たな発見が待っています。東京メトロ丸ノ内線の大手町駅までの徒歩4分の距離は、まるで毎朝、都会の喧騒から清らかな静寂へ旅立つかのようです。お気に入りのカフェで香ばしいコーヒーの香りに包まれ、朝の光を浴びながら朝食を楽しむ様子は、まるで映画のワンシーンのように心に刻まれることでしょう。
クラッシィハウス大手町 304は、あなたの生活にやすらぎと刺激をもたらす特別な場所です。ここから始まる新しい物語は、あなたの人生にとっての真の宝物となるでしょう。まるで、静かな海に浮かぶ一隻の美しいヨットのように、あなたを穏やかでありながら刺激的な日々へと導いてくれることでしょう。さあ、この高級賃貸物件で、新たな人生の章をスタートさせてみませんか。あなたを待っているのは、ただの住まいではなく、心が満たされる特別な空間です。
バイブルスコア
バイブルスコア: 45.5
条件のいい物件です、引っ越しが2か月以内の場合は仮申し込みを検討すべき物件です。
※バイブルスコア詳細はこちら
バイブルスコアとは独自のAI機械学習技術を利用した物件評価システムで、物件のおすすめ度を示します。最高得点は100点で、スコアが高いほど、よりおすすめの物件と評価されています。
写真
契約条件
| 賃料 | 予想金額:129,000〜149,000円程度 | 管理費 | 予想金額:8,000〜12,000円程度 |
| 礼金 | 非公開(アーカイブ) | 敷金 | 非公開(アーカイブ) |
| フリーレント | なし | 平米数 | 28.44㎡ |
| 間取り | 1K | 大型収納 | WIC |
| 契約期間 |
| 方角 | 西 |
| 更新料 | 契約形態 | 普通賃貸借契約 | |
| 取引態様 | 媒介 | 内見状況 | 入居中 |
| 入居時期 | 入居中 | SOHO・事務所 | |
| ペット | 間取り内訳 | BR=7.3J | |
| キャンペーン情報・備考 | 本情報は賃料改定交渉の資料作成、収益物件の利回り試算、周辺エリアや最寄り駅の坪単価分析、次回募集開始時期の予測などにご活用いただけます。 | ||
※「どの不動産に頼めばいいのか分からない」「信頼できる営業マンの話を聞きたい」「一番親切な会社と契約したい」とお悩みの方におすすめなのが「高級賃貸バイブル」です。
高級賃貸バイブルは業界10年以上の熟練スタッフ群がお客様ファーストで対応します。
下記ボタンから、まずは無料でご相談下さい。
※内覧をご希望の際には、どうぞ物件のエントランス前にてお待ち合わせくださいませ。ご内覧後は、同じ場所でお別れとさせていただきます。お客様のご都合に合わせたスムーズなご案内を心がけておりますので、ご質問等がございましたら何なりとお申し付けください。 物件概要
| 物件名 |
| 築年月 |
|
|---|---|---|---|
| 所在地 | |||
| 交通 | |||
| 総戸数 |
| 総階数 |
|
| 構造 |
| ||
地図
物件までの道のりは、「拡大地図を表示」をクリックしてナビ機能をご利用ください。
部屋設備












建物設備

TVモニターホン

エレベーター

オートロック

バイク置場

宅配ボックス

敷地内ゴミ置場

管理人

駐車場機械式

駐輪場
クラッシィハウス大手町の現在募集中のお部屋
- クラッシィハウス大手町 9階 28.44㎡ - 間取り: 1K+WIC - 賃料: 18.5万円
















