
| 賃料 | 予想金額:98,000〜118,000円程度 | 管理費 | 予想金額:8,000〜12,000円程度 |
| 礼金/敷金 | 非公開(アーカイブ) | 平米数 | 25.32㎡ |
| 初期費用概算(参考) | 目安:218,500〜318,500 円 | みなし賃料(月額・参考) | 113,594〜133,594 円 |
| 備考 | 本ページは過去募集のアーカイブです。表示の金額は周辺相場・過去募集を踏まえた参考レンジであり、実際の契約金額・条件ではありません。 | ||
※上記みなし賃料(月額)は仲介手数料割引・無料&キャッシュバックを加味した高級賃貸バイブル限定の金額です。一般的なみなし賃料とは異なります。
【建物ページ】ザ・パークハビオ月島フロントの詳細・最新空室はこちら▶▶選ばれる理由
仲介手数料無料・キャンペーン情報(毎月15名様限定)
〇フリーレント1か月キャンペーン
ザ・パークハビオ月島フロント 208の口コミ・レビュー
ザ・パークハビオ月島フロント 208は、東京都中央区佃3-6-5に位置する特別な住空間です。まるで心をこめてデザインされた一幅の絵画のように、ここに身を置くことで新たなライフスタイルが始まるのです。この物件は、あなたの生活を豊かに彩る舞台となることでしょう。
208という数字は、ただの階数ではありません。それは、あなたがこれから過ごす毎日の温もりと、心躍る瞬間を象徴しています。北東の窓から差し込…ザ・パークハビオ月島フロント 208は、東京都中央区佃3-6-5に位置する特別な住空間です。まるで心をこめてデザインされた一幅の絵画のように、ここに身を置くことで新たなライフスタイルが始まるのです。この物件は、あなたの生活を豊かに彩る舞台となることでしょう。
208という数字は、ただの階数ではありません。それは、あなたがこれから過ごす毎日の温もりと、心躍る瞬間を象徴しています。北東の窓から差し込む柔らかな朝日が、日の出と共にあなたの部屋を優しく照らし出し、日常が新しい物語の始まりを告げます。専有面積25.32㎡の空間は、まるでオーケストラのように調和の取れたデザインで、あなたの創造力を刺激します。リラックスできる洋室8.8帖は、デザイナーの手により、そのすべてが考慮されています。静けさの中に響く生活音は、まるで心地よいメロディのように響き、あなたに安らぎを与えてくれることでしょう。
ザ・パークハビオ月島フロントは、モダンな暮らしを追求する方にこそふさわしい場所です。TVモニターホンやオートロックシステム、エレベーターなどの設備は、まるであなたを守る騎士のように安心感を提供します。また、フロントサービスや宅配ボックス、駐輪場など、あなたのライフスタイルをより豊かにするためのサポートも整っています。まるで、贅沢なホテルのようなサービスが、あなたの日常に寄り添うことでしょう。
周辺には、歴史と文化が息づく佃の街が広がります。月島駅からわずか徒歩1分の距離にあり、ここからあなたは都会の喧騒から一瞬の静寂へと移行することができます。古き良き町並みと、現代の洗練が交差するこの場所は、まるで映画のワンシーンのような心温まる瞬間を提供してくれます。四季折々の移ろいに合わせた風景は、あなたの感性を豊かにし、心の栄養となることでしょう。
一日の終わりに、ザ・パークハビオ月島フロントであなたの好きな飲み物を手に取り、静かに外を眺めるとします。そこに広がるのは、月島の魅力的な夜景。ほんのりと漂う焼きたてのたこ焼きの香りが、食欲をそそります。何気ない日常が、一瞬の特別な体験に変わるのです。
だからこそ、ザ・パークハビオ月島フロント 208は、ただの住まいではありません。あなたの人生の新たな章が、ここから始まるのです。自分らしいスタイルを持ち、魅力的な日々を送りませんか。この特別な場所で、心も体も満たされるライフスタイルを実現していただけることを、心から願っております。あなたの新しい"家"が、待っています。
208という数字は、ただの階数ではありません。それは、あなたがこれから過ごす毎日の温もりと、心躍る瞬間を象徴しています。北東の窓から差し込…ザ・パークハビオ月島フロント 208は、東京都中央区佃3-6-5に位置する特別な住空間です。まるで心をこめてデザインされた一幅の絵画のように、ここに身を置くことで新たなライフスタイルが始まるのです。この物件は、あなたの生活を豊かに彩る舞台となることでしょう。
208という数字は、ただの階数ではありません。それは、あなたがこれから過ごす毎日の温もりと、心躍る瞬間を象徴しています。北東の窓から差し込む柔らかな朝日が、日の出と共にあなたの部屋を優しく照らし出し、日常が新しい物語の始まりを告げます。専有面積25.32㎡の空間は、まるでオーケストラのように調和の取れたデザインで、あなたの創造力を刺激します。リラックスできる洋室8.8帖は、デザイナーの手により、そのすべてが考慮されています。静けさの中に響く生活音は、まるで心地よいメロディのように響き、あなたに安らぎを与えてくれることでしょう。
ザ・パークハビオ月島フロントは、モダンな暮らしを追求する方にこそふさわしい場所です。TVモニターホンやオートロックシステム、エレベーターなどの設備は、まるであなたを守る騎士のように安心感を提供します。また、フロントサービスや宅配ボックス、駐輪場など、あなたのライフスタイルをより豊かにするためのサポートも整っています。まるで、贅沢なホテルのようなサービスが、あなたの日常に寄り添うことでしょう。
周辺には、歴史と文化が息づく佃の街が広がります。月島駅からわずか徒歩1分の距離にあり、ここからあなたは都会の喧騒から一瞬の静寂へと移行することができます。古き良き町並みと、現代の洗練が交差するこの場所は、まるで映画のワンシーンのような心温まる瞬間を提供してくれます。四季折々の移ろいに合わせた風景は、あなたの感性を豊かにし、心の栄養となることでしょう。
一日の終わりに、ザ・パークハビオ月島フロントであなたの好きな飲み物を手に取り、静かに外を眺めるとします。そこに広がるのは、月島の魅力的な夜景。ほんのりと漂う焼きたてのたこ焼きの香りが、食欲をそそります。何気ない日常が、一瞬の特別な体験に変わるのです。
だからこそ、ザ・パークハビオ月島フロント 208は、ただの住まいではありません。あなたの人生の新たな章が、ここから始まるのです。自分らしいスタイルを持ち、魅力的な日々を送りませんか。この特別な場所で、心も体も満たされるライフスタイルを実現していただけることを、心から願っております。あなたの新しい"家"が、待っています。
バイブルスコア
バイブルスコア: 36.4
平均的なスコアです。
※バイブルスコア詳細はこちら
バイブルスコアとは独自のAI機械学習技術を利用した物件評価システムで、物件のおすすめ度を示します。最高得点は100点で、スコアが高いほど、よりおすすめの物件と評価されています。
写真
契約条件
| 賃料 | 予想金額:98,000〜118,000円程度 | 管理費 | 予想金額:8,000〜12,000円程度 |
| 礼金 | 非公開(アーカイブ) | 敷金 | 非公開(アーカイブ) |
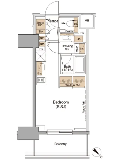
| フリーレント | 1ヶ月 | 平米数 | 25.32㎡ |
| 間取り | 1R | 大型収納 | WIC |
| 契約期間 |
| 方角 | 北東 |
| 更新料 | 契約形態 | 普通賃貸借契約 | |
| 取引態様 | 媒介 | 内見状況 | 入居中 |
| 入居時期 | 入居中 | SOHO・事務所 | 事務所(SOHO)可 |
| ペット | ペット可 | 間取り内訳 | 洋:8.8 |
| キャンペーン情報・備考 | 本情報は賃料改定交渉の資料作成、収益物件の利回り試算、周辺エリアや最寄り駅の坪単価分析、次回募集開始時期の予測などにご活用いただけます。 | ||
※「どの不動産に頼めばいいのか分からない」「信頼できる営業マンの話を聞きたい」「一番親切な会社と契約したい」とお悩みの方におすすめなのが「高級賃貸バイブル」です。
高級賃貸バイブルは業界10年以上の熟練スタッフ群がお客様ファーストで対応します。
下記ボタンから、まずは無料でご相談下さい。
※内覧をご希望の際には、どうぞ物件のエントランス前にてお待ち合わせくださいませ。ご内覧後は、同じ場所でお別れとさせていただきます。お客様のご都合に合わせたスムーズなご案内を心がけておりますので、ご質問等がございましたら何なりとお申し付けください。 物件概要
| 物件名 |
| 築年月 |
|
|---|---|---|---|
| 所在地 | |||
| 交通 | |||
| 総戸数 |
| 総階数 |
|
| 構造 |
| ||
地図
物件までの道のりは、「拡大地図を表示」をクリックしてナビ機能をご利用ください。
部屋設備
















建物設備

TVモニターホン

エレベーター

オートロック

バイク置場

フロントサービス

宅配ボックス

敷地内ゴミ置場

管理人

駐車場平置き

駐車場機械式

駐輪場
ザ・パークハビオ月島フロントの現在募集中のお部屋
- No rooms found for this property.
























