
| 賃料 | 予想金額:135,000〜155,000円程度 | 管理費 | 予想金額:4,000〜8,000円程度 |
| 礼金/敷金 | 非公開(アーカイブ) | 平米数 | 31.96㎡ |
| 初期費用概算(参考) | 目安:474,000〜574,000 円 | みなし賃料(月額・参考) | 148,896〜168,896 円 |
| 備考 | 本ページは過去募集のアーカイブです。表示の金額は周辺相場・過去募集を踏まえた参考レンジであり、実際の契約金額・条件ではありません。 | ||
※上記みなし賃料(月額)は仲介手数料割引・無料&キャッシュバックを加味した高級賃貸バイブル限定の金額です。一般的なみなし賃料とは異なります。
【建物ページ】パークハビオ京橋の詳細・最新空室はこちら▶▶選ばれる理由
仲介手数料無料・キャンペーン情報(毎月15名様限定)
〇引っ越しお祝い金29000円プレゼント(キャッシュバック)
〇仲介手数料無料キャンペーン
パークハビオ京橋 1208の口コミ・レビュー
パークハビオ京橋 1208。あなたにとっての新たな生活の舞台は、ここから始まります。1208という数字は、まるで特別なコードのように響き、あなたの人生を彩る物語の扉を開く鍵となるでしょう。この物件は、東京都中央区八丁堀3-7-4にあって、北西の方角から朝の光が優しく差し込む場所に位置しています。
想像してください。目覚めた朝、目の前に広がるのは、広々とした洋室10.6帖の空間です。その広がりは、…パークハビオ京橋 1208。あなたにとっての新たな生活の舞台は、ここから始まります。1208という数字は、まるで特別なコードのように響き、あなたの人生を彩る物語の扉を開く鍵となるでしょう。この物件は、東京都中央区八丁堀3-7-4にあって、北西の方角から朝の光が優しく差し込む場所に位置しています。
想像してください。目覚めた朝、目の前に広がるのは、広々とした洋室10.6帖の空間です。その広がりは、まるで心を解き放つようにあなたを包み込み、静けさの中に潜む小さな発見が待っています。窓の外には、都会の喧騒を感じつつも、自分だけの安らぎの時間を持つことができる、優雅な風景が広がっています。朝の光は、金色に輝き、あなたの一日のスタートを華やかに彩ります。
パークハビオ京橋 1208は、ただの住まいではありません。ここは、生活を楽しむためのキャンバスです。次に、洋室6.8帖には、あなたの個性を映すことができる空間が待っています。柔らかな光が差し込むこの部屋で、読書や趣味に没頭する時間は、まるで心の栄養を与えてくれるようです。そして、24時間管理の安心感の中で、リラックスした時間を存分に楽しむことができます。
このマンションは、デザイナーズの魅力を携え、あなたに洗練されたライフスタイルを提案します。オートロックとエレベーターでの快適なアクセス、さらには宅配ボックスや駐輪場などの便利な設備も完備されています。まるで、あなたの生活が映画のシーンのように、スムーズに流れていく様子が目に浮かびます。
周囲には、東京メトロ日比谷線八丁堀駅が徒歩わずか3分という近さがあり、都市の利便性を感じることができます。さらには、八丁堀の歴史ある街並みや文化、芸術に触れながら、訪れた場所で心に響くインスピレーションを受けることができるのです。どこか懐かしくも新しい街に足を踏み入れ、あなたの心の奥深くに響く美しいメロディーが流れていくでしょう。
一歩、パークハビオ京橋 1208に足を踏み入れた瞬間、五感が刺激される感覚に包まれます。嗅覚には、心地よい空気が満ち、目には洗練されたデザインが映り、耳には静かな都市の音が響きます。この場所での生活は、まるで特別なレシピをもったシェフが手掛けた、心温まる料理のよう。あなたは、ここで新たな味わい深い生活を見つけることができるのです。
全ての瞬間が大切で、心に残る思い出として刻まれることでしょう。パークハビオ京橋 1208で、あなた自身の物語を紡いでいく準備は整いました。さあ、新たな生活の第一歩を踏み出しましょう。
想像してください。目覚めた朝、目の前に広がるのは、広々とした洋室10.6帖の空間です。その広がりは、…パークハビオ京橋 1208。あなたにとっての新たな生活の舞台は、ここから始まります。1208という数字は、まるで特別なコードのように響き、あなたの人生を彩る物語の扉を開く鍵となるでしょう。この物件は、東京都中央区八丁堀3-7-4にあって、北西の方角から朝の光が優しく差し込む場所に位置しています。
想像してください。目覚めた朝、目の前に広がるのは、広々とした洋室10.6帖の空間です。その広がりは、まるで心を解き放つようにあなたを包み込み、静けさの中に潜む小さな発見が待っています。窓の外には、都会の喧騒を感じつつも、自分だけの安らぎの時間を持つことができる、優雅な風景が広がっています。朝の光は、金色に輝き、あなたの一日のスタートを華やかに彩ります。
パークハビオ京橋 1208は、ただの住まいではありません。ここは、生活を楽しむためのキャンバスです。次に、洋室6.8帖には、あなたの個性を映すことができる空間が待っています。柔らかな光が差し込むこの部屋で、読書や趣味に没頭する時間は、まるで心の栄養を与えてくれるようです。そして、24時間管理の安心感の中で、リラックスした時間を存分に楽しむことができます。
このマンションは、デザイナーズの魅力を携え、あなたに洗練されたライフスタイルを提案します。オートロックとエレベーターでの快適なアクセス、さらには宅配ボックスや駐輪場などの便利な設備も完備されています。まるで、あなたの生活が映画のシーンのように、スムーズに流れていく様子が目に浮かびます。
周囲には、東京メトロ日比谷線八丁堀駅が徒歩わずか3分という近さがあり、都市の利便性を感じることができます。さらには、八丁堀の歴史ある街並みや文化、芸術に触れながら、訪れた場所で心に響くインスピレーションを受けることができるのです。どこか懐かしくも新しい街に足を踏み入れ、あなたの心の奥深くに響く美しいメロディーが流れていくでしょう。
一歩、パークハビオ京橋 1208に足を踏み入れた瞬間、五感が刺激される感覚に包まれます。嗅覚には、心地よい空気が満ち、目には洗練されたデザインが映り、耳には静かな都市の音が響きます。この場所での生活は、まるで特別なレシピをもったシェフが手掛けた、心温まる料理のよう。あなたは、ここで新たな味わい深い生活を見つけることができるのです。
全ての瞬間が大切で、心に残る思い出として刻まれることでしょう。パークハビオ京橋 1208で、あなた自身の物語を紡いでいく準備は整いました。さあ、新たな生活の第一歩を踏み出しましょう。
バイブルスコア
バイブルスコア: 40.3
条件のいい物件です、引っ越しが2か月以内の場合は仮申し込みを検討すべき物件です。
※バイブルスコア詳細はこちら
バイブルスコアとは独自のAI機械学習技術を利用した物件評価システムで、物件のおすすめ度を示します。最高得点は100点で、スコアが高いほど、よりおすすめの物件と評価されています。
写真
契約条件
| 賃料 | 予想金額:135,000〜155,000円程度 | 管理費 | 予想金額:4,000〜8,000円程度 |
| 礼金 | 非公開(アーカイブ) | 敷金 | 非公開(アーカイブ) |
| フリーレント | なし | 平米数 | 31.96㎡ |
| 間取り | 1R | 大型収納 | なし |
| 契約期間 | 2年 | 方角 | 北西 |
| 更新料 | 1ヶ月 | 契約形態 | 普通賃貸借契約 |
| 取引態様 | 媒介 | 内見状況 | 入居中 |
| 入居時期 | 入居中 | SOHO・事務所 | 可 |
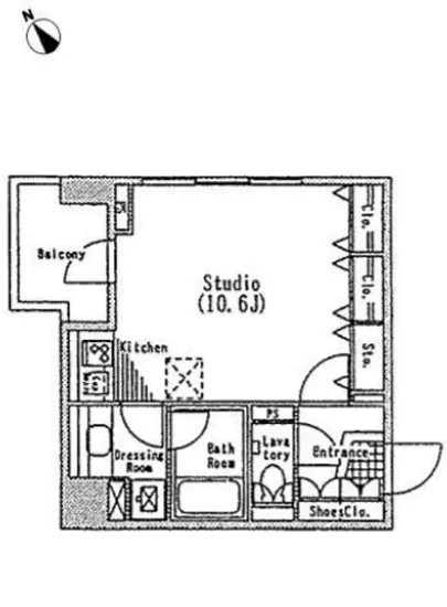
| ペット | 不可 | 間取り内訳 | 洋室10.6帖 洋室6.8帖 |
| キャンペーン情報・備考 | 本情報は賃料改定交渉の資料作成、収益物件の利回り試算、周辺エリアや最寄り駅の坪単価分析、次回募集開始時期の予測などにご活用いただけます。 | ||
※「どの不動産に頼めばいいのか分からない」「信頼できる営業マンの話を聞きたい」「一番親切な会社と契約したい」とお悩みの方におすすめなのが「高級賃貸バイブル」です。
高級賃貸バイブルは業界10年以上の熟練スタッフ群がお客様ファーストで対応します。
下記ボタンから、まずは無料でご相談下さい。
※内覧をご希望の際には、どうぞ物件のエントランス前にてお待ち合わせくださいませ。ご内覧後は、同じ場所でお別れとさせていただきます。お客様のご都合に合わせたスムーズなご案内を心がけておりますので、ご質問等がございましたら何なりとお申し付けください。 物件概要
| 物件名 |
| 築年月 |
|
|---|---|---|---|
| 所在地 | |||
| 交通 | |||
| 総戸数 |
| 総階数 |
|
| 構造 |
| ||
地図
物件までの道のりは、「拡大地図を表示」をクリックしてナビ機能をご利用ください。
部屋設備










建物設備

24時間管理

TVモニターホン

エレベーター

オートロック

宅配ボックス

敷地内ゴミ置場

管理人

駐車場平置き

駐車場機械式

駐輪場
パークハビオ京橋の現在募集中のお部屋
- No rooms found for this property.




























