
| 賃料 | 予想金額:331,000〜351,000円程度 | 管理費 | 予想金額:8,000〜12,000円程度 |
| 礼金/敷金 | 非公開(アーカイブ) | 平米数 | 78.75㎡ |
| 初期費用概算(参考) | 目安:444,800〜544,800 円 | みなし賃料(月額・参考) | 344,204〜364,204 円 |
| 備考 | 本ページは過去募集のアーカイブです。表示の金額は周辺相場・過去募集を踏まえた参考レンジであり、実際の契約金額・条件ではありません。 | ||
※上記みなし賃料(月額)は仲介手数料割引・無料&キャッシュバックを加味した高級賃貸バイブル限定の金額です。一般的なみなし賃料とは異なります。
【建物ページ】ルネパルティーレ汐留の詳細・最新空室はこちら▶▶選ばれる理由
仲介手数料無料・キャンペーン情報(毎月15名様限定)
〇引っ越しお祝い金68200円プレゼント(キャッシュバック)
〇仲介手数料無料キャンペーン
ルネパルティーレ汐留 1104の口コミ・レビュー
「ルネパルティーレ汐留 1104」に新たな生活の舞台をお届けいたします。この特別な空間は、東京都港区東新橋2-18-3に位置し、あなたの心に深く染み込むことでしょう。1104という番号は、まるで新たな物語の始まりを告げる合図のように響きます。78.75㎡の広さを持つこの住まいは、日常の中にある非日常を求めるあなたにぴったりな空間です。
さあ、扉を開いてみてください。心地よいエントランスが、あなた…「ルネパルティーレ汐留 1104」に新たな生活の舞台をお届けいたします。この特別な空間は、東京都港区東新橋2-18-3に位置し、あなたの心に深く染み込むことでしょう。1104という番号は、まるで新たな物語の始まりを告げる合図のように響きます。78.75㎡の広さを持つこの住まいは、日常の中にある非日常を求めるあなたにぴったりな空間です。
さあ、扉を開いてみてください。心地よいエントランスが、あなたを暖かく邂逅の世界へと誘います。東に向かって広がる窓から差し込む柔らかな朝日の光が、室内を優しく包み込む様子は、本当に詩的です。22.4帖の広々としたリビングダイニングは、あなたの大切な人々との時間を分かち合うための舞台。ソファに座りながら、香ばしいコーヒーの香りとともに、心地よい会話が流れる瞬間を想像してみてください。その声は、壁を越え、空間全体に優雅な音楽のように広がります。
あなたの料理の腕を存分に発揮できる5.4帖のキッチン、そこはまるで美食の魔法がかけられた場所。色とりどりの食材が並ぶ光景は、まるで美術館の一角に立ち尽くしているかのようです。調理中、スパイスの香りや食材の焼ける音が、あなたの五感を刺激し、料理を通じて愛情を表現する楽しみをもたらします。8.5帖の寝室は、静謐な夜の中であなたを優しく抱きしめるような安らぎを提供し、夢の中で新たな旅へと誘います。
「ルネパルティーレ汐留 1104」は、ただの住まいではありません。それは、あなたの人生の物語を紡ぐための舞台であり、文化と歴史が交錯する都市の一部であるのです。周辺には、洗練された飲食店やアートギャラリーが点在し、街の息吹を感じながら、まるで映画のワンシーンのような毎日を体感できます。東京メトロ銀座線の新橋駅まで徒歩8分の距離は、都会の喧騒から一歩離れ、ゆったりとした時間の流れを感じるための絶妙なバランスをもたらします。
この住まいは、オートロックや宅配ボックスといった先進の設備を備え、安心と利便性を両立させています。そして、駐輪場や敷地内ゴミ置場も整っており、忙しい毎日をサポートします。ゆっくりと流れる時間の中で、ルネパルティーレ汐留 1104はあなたの心に寄り添い、暮らしの質を向上させることでしょう。
この場所での日々は、まるで美しい旋律のように心を満たし、記憶に刻まれることでしょう。そして、あなたの人生の新たな1ページが、ここ「ルネパルティーレ汐留 1104」で始まることを、私は心から楽しみにしています。
さあ、扉を開いてみてください。心地よいエントランスが、あなた…「ルネパルティーレ汐留 1104」に新たな生活の舞台をお届けいたします。この特別な空間は、東京都港区東新橋2-18-3に位置し、あなたの心に深く染み込むことでしょう。1104という番号は、まるで新たな物語の始まりを告げる合図のように響きます。78.75㎡の広さを持つこの住まいは、日常の中にある非日常を求めるあなたにぴったりな空間です。
さあ、扉を開いてみてください。心地よいエントランスが、あなたを暖かく邂逅の世界へと誘います。東に向かって広がる窓から差し込む柔らかな朝日の光が、室内を優しく包み込む様子は、本当に詩的です。22.4帖の広々としたリビングダイニングは、あなたの大切な人々との時間を分かち合うための舞台。ソファに座りながら、香ばしいコーヒーの香りとともに、心地よい会話が流れる瞬間を想像してみてください。その声は、壁を越え、空間全体に優雅な音楽のように広がります。
あなたの料理の腕を存分に発揮できる5.4帖のキッチン、そこはまるで美食の魔法がかけられた場所。色とりどりの食材が並ぶ光景は、まるで美術館の一角に立ち尽くしているかのようです。調理中、スパイスの香りや食材の焼ける音が、あなたの五感を刺激し、料理を通じて愛情を表現する楽しみをもたらします。8.5帖の寝室は、静謐な夜の中であなたを優しく抱きしめるような安らぎを提供し、夢の中で新たな旅へと誘います。
「ルネパルティーレ汐留 1104」は、ただの住まいではありません。それは、あなたの人生の物語を紡ぐための舞台であり、文化と歴史が交錯する都市の一部であるのです。周辺には、洗練された飲食店やアートギャラリーが点在し、街の息吹を感じながら、まるで映画のワンシーンのような毎日を体感できます。東京メトロ銀座線の新橋駅まで徒歩8分の距離は、都会の喧騒から一歩離れ、ゆったりとした時間の流れを感じるための絶妙なバランスをもたらします。
この住まいは、オートロックや宅配ボックスといった先進の設備を備え、安心と利便性を両立させています。そして、駐輪場や敷地内ゴミ置場も整っており、忙しい毎日をサポートします。ゆっくりと流れる時間の中で、ルネパルティーレ汐留 1104はあなたの心に寄り添い、暮らしの質を向上させることでしょう。
この場所での日々は、まるで美しい旋律のように心を満たし、記憶に刻まれることでしょう。そして、あなたの人生の新たな1ページが、ここ「ルネパルティーレ汐留 1104」で始まることを、私は心から楽しみにしています。
バイブルスコア
バイブルスコア: 97.0
レア物件です、すぐ仮押さえしましょう!
このお部屋は、現在ご入居中のため空室情報はございません。ただし、将来的に募集が開始される際、バイブルスコアにおいて非常に高い評価が期待されます。特にご興味をお持ちの方は、今のうちにブックマークやお気に入りに登録していただくと、募集開始のお知らせをすぐに受け取ることができます。是非ともご検討くださいませ。
※バイブルスコア詳細はこちら
バイブルスコアとは独自のAI機械学習技術を利用した物件評価システムで、物件のおすすめ度を示します。最高得点は100点で、スコアが高いほど、よりおすすめの物件と評価されています。
写真
契約条件
| 賃料 | 予想金額:331,000〜351,000円程度 | 管理費 | 予想金額:8,000〜12,000円程度 |
| 礼金 | 非公開(アーカイブ) | 敷金 | 非公開(アーカイブ) |
| フリーレント | なし | 平米数 | 78.75㎡ |
| 間取り | 1LDK | 大型収納 | |
| 契約期間 | 2年 | 方角 | 東 |
| 更新料 | 1ヶ月 | 契約形態 | 普通賃貸借契約 |
| 取引態様 | 媒介 | 内見状況 | 入居中 |
| 入居時期 | 入居中 | SOHO・事務所 | |
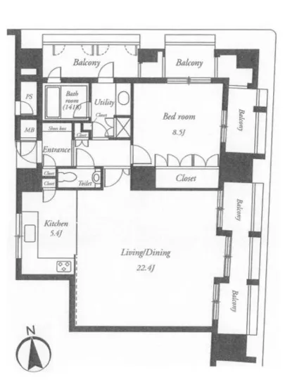
| ペット | 間取り内訳 | LD=22.4J / K=5.4J / BR=8.5J | |
| キャンペーン情報・備考 | 本情報は賃料改定交渉の資料作成、収益物件の利回り試算、周辺エリアや最寄り駅の坪単価分析、次回募集開始時期の予測などにご活用いただけます。 | ||
※「どの不動産に頼めばいいのか分からない」「信頼できる営業マンの話を聞きたい」「一番親切な会社と契約したい」とお悩みの方におすすめなのが「高級賃貸バイブル」です。
高級賃貸バイブルは業界10年以上の熟練スタッフ群がお客様ファーストで対応します。
下記ボタンから、まずは無料でご相談下さい。
※内覧をご希望の際には、どうぞ物件のエントランス前にてお待ち合わせくださいませ。ご内覧後は、同じ場所でお別れとさせていただきます。お客様のご都合に合わせたスムーズなご案内を心がけておりますので、ご質問等がございましたら何なりとお申し付けください。 物件概要
| 物件名 |
| 築年月 |
|
|---|---|---|---|
| 所在地 | |||
| 交通 | |||
| 総戸数 |
| 総階数 |
|
| 構造 |
| ||
地図
物件までの道のりは、「拡大地図を表示」をクリックしてナビ機能をご利用ください。
部屋設備















建物設備

TVモニターホン

エレベーター

オートロック

宅配ボックス

敷地内ゴミ置場

駐輪場
ルネパルティーレ汐留の現在募集中のお部屋
- ルネパルティーレ汐留 10階 54.15㎡ - 間取り: 1LDK - 賃料: 25万円
- ルネパルティーレ汐留 10階 57.34㎡ - 間取り: 1LDK - 賃料: 29.8万円





















