
| 賃料 | 予想金額:173,000〜193,000円程度 | 管理費 | 予想金額:10,000〜14,000円程度 |
| 礼金/敷金 | 非公開(アーカイブ) | 平米数 | 40.02㎡ |
| 初期費用概算(参考) | 目安:700,000〜800,000 円 | みなし賃料(月額・参考) | 196,813〜216,813 円 |
| 備考 | 本ページは過去募集のアーカイブです。表示の金額は周辺相場・過去募集を踏まえた参考レンジであり、実際の契約金額・条件ではありません。 | ||
※上記みなし賃料(月額)は仲介手数料割引・無料&キャッシュバックを加味した高級賃貸バイブル限定の金額です。一般的なみなし賃料とは異なります。
【建物ページ】パークハビオ上野3丁目の詳細・最新空室はこちら▶▶選ばれる理由
仲介手数料無料・キャンペーン情報(毎月15名様限定)
〇仲介手数料割引キャンペーン
パークハビオ上野3丁目 1102の口コミ・レビュー
パークハビオ上野3丁目 1102は、まるで時を超えた美術品のように、あなたを心地良い生活へと導く存在です。東京都台東区上野3-13-7に位置し、東向きの窓から差し込む朝日が、毎朝新たなスタートを告げます。ここでの生活は、まさに映画の一場面を切り取ったかのような、特別な体験となることでしょう。
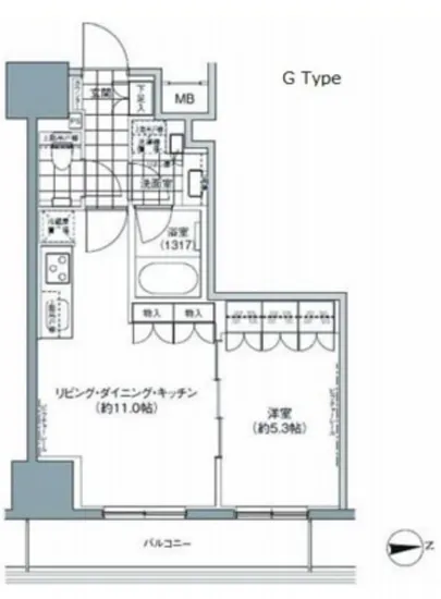
この高級賃貸物件は、間取りが1LDKで、広々とした洋室は5.3帖、そして心安らぐLDKは11帖というリズ…パークハビオ上野3丁目 1102は、まるで時を超えた美術品のように、あなたを心地良い生活へと導く存在です。東京都台東区上野3-13-7に位置し、東向きの窓から差し込む朝日が、毎朝新たなスタートを告げます。ここでの生活は、まさに映画の一場面を切り取ったかのような、特別な体験となることでしょう。
この高級賃貸物件は、間取りが1LDKで、広々とした洋室は5.3帖、そして心安らぐLDKは11帖というリズムで配置されています。40.02㎡という広さは、暮らしの中に自由な想像を広げるスペースを提供します。静寂の中で心を解放し、包み込むような空間が、あなたの創造力を育んでくれることでしょう。この部屋が、あなた自身の物語の舞台となることは間違いありません。
パークハビオ上野3丁目 1102には、24時間管理体制が整い、安心して生活を楽しむことができます。TVモニターホンやオートロックシステムが備わり、まるで私たちの生活に寄り添うかのように、あなたの安全を守ります。また、エレベーターで優雅に移動し、デザイナーズの洗練された雰囲気の中で、毎日をスタイリッシュに彩ることが可能です。
想像してみてください。朝食の温かい香りが漂うキッチンで、自分のためだけの特別な一皿を用意する瞬間。その香ばしいパンの香り、フレッシュな野菜を切る時の清々しい音、そして柔らかな光が差し込む中で感じる、心地よい空気感。窓の外では、街の喧騒が遠くに聞こえ、静かな安らぎを与えてくれます。
そして、この素晴らしいパークハビオ上野3丁目 1102は、芸術と文化が息づく周辺環境にも恵まれています。JR山手線御徒町駅から徒歩3分というアクセスの良さは、あなたの探索心を刺激し、都内の名所や隠れたアートスポットへの扉を開きます。上野恩賜公園の緑に触れたり、東京国立博物館で歴史の重みを感じたり、日々の生活に新しい発見を取り入れることができるのです。
偶然の出会いが待ち受けるこの場所で、あなたの人生が豊かに彩られていく様子を想像してみてください。パークハビオ上野3丁目 1102は、ただの住まいではなく、あなた自身が主人公となる物語の舞台。それは、心を震わせるような特別な感覚を与えてくれる、高級賃貸物件です。日々の暮らしの中で、ぜひこの場所があなたに与える感動を、存分に味わっていただきたいと願っております。あなたの新しい「おうち」で、素晴らしい冒険が始まりますように。
この高級賃貸物件は、間取りが1LDKで、広々とした洋室は5.3帖、そして心安らぐLDKは11帖というリズ…パークハビオ上野3丁目 1102は、まるで時を超えた美術品のように、あなたを心地良い生活へと導く存在です。東京都台東区上野3-13-7に位置し、東向きの窓から差し込む朝日が、毎朝新たなスタートを告げます。ここでの生活は、まさに映画の一場面を切り取ったかのような、特別な体験となることでしょう。
この高級賃貸物件は、間取りが1LDKで、広々とした洋室は5.3帖、そして心安らぐLDKは11帖というリズムで配置されています。40.02㎡という広さは、暮らしの中に自由な想像を広げるスペースを提供します。静寂の中で心を解放し、包み込むような空間が、あなたの創造力を育んでくれることでしょう。この部屋が、あなた自身の物語の舞台となることは間違いありません。
パークハビオ上野3丁目 1102には、24時間管理体制が整い、安心して生活を楽しむことができます。TVモニターホンやオートロックシステムが備わり、まるで私たちの生活に寄り添うかのように、あなたの安全を守ります。また、エレベーターで優雅に移動し、デザイナーズの洗練された雰囲気の中で、毎日をスタイリッシュに彩ることが可能です。
想像してみてください。朝食の温かい香りが漂うキッチンで、自分のためだけの特別な一皿を用意する瞬間。その香ばしいパンの香り、フレッシュな野菜を切る時の清々しい音、そして柔らかな光が差し込む中で感じる、心地よい空気感。窓の外では、街の喧騒が遠くに聞こえ、静かな安らぎを与えてくれます。
そして、この素晴らしいパークハビオ上野3丁目 1102は、芸術と文化が息づく周辺環境にも恵まれています。JR山手線御徒町駅から徒歩3分というアクセスの良さは、あなたの探索心を刺激し、都内の名所や隠れたアートスポットへの扉を開きます。上野恩賜公園の緑に触れたり、東京国立博物館で歴史の重みを感じたり、日々の生活に新しい発見を取り入れることができるのです。
偶然の出会いが待ち受けるこの場所で、あなたの人生が豊かに彩られていく様子を想像してみてください。パークハビオ上野3丁目 1102は、ただの住まいではなく、あなた自身が主人公となる物語の舞台。それは、心を震わせるような特別な感覚を与えてくれる、高級賃貸物件です。日々の暮らしの中で、ぜひこの場所があなたに与える感動を、存分に味わっていただきたいと願っております。あなたの新しい「おうち」で、素晴らしい冒険が始まりますように。
バイブルスコア
バイブルスコア: 16
高級な物件でない場合は割高な物件です。。
※バイブルスコア詳細はこちら
バイブルスコアとは独自のAI機械学習技術を利用した物件評価システムで、物件のおすすめ度を示します。最高得点は100点で、スコアが高いほど、よりおすすめの物件と評価されています。
写真
契約条件
| 賃料 | 予想金額:173,000〜193,000円程度 | 管理費 | 予想金額:10,000〜14,000円程度 |
| 礼金 | 非公開(アーカイブ) | 敷金 | 非公開(アーカイブ) |
| フリーレント | なし | 平米数 | 40.02㎡ |
| 間取り | 1LDK | 大型収納 | |
| 契約期間 |
| 方角 | 東 |
| 更新料 | 契約形態 | 普通賃貸借契約 | |
| 取引態様 | 媒介 | 内見状況 | 入居中 |
| 入居時期 | 入居中 | SOHO・事務所 | 事務所(SOHO)可 |
| ペット | ペット可 | 間取り内訳 | 洋:5.3 LDK:11 |
| キャンペーン情報・備考 | 本情報は賃料改定交渉の資料作成、収益物件の利回り試算、周辺エリアや最寄り駅の坪単価分析、次回募集開始時期の予測などにご活用いただけます。 | ||
※「どの不動産に頼めばいいのか分からない」「信頼できる営業マンの話を聞きたい」「一番親切な会社と契約したい」とお悩みの方におすすめなのが「高級賃貸バイブル」です。
高級賃貸バイブルは業界10年以上の熟練スタッフ群がお客様ファーストで対応します。
下記ボタンから、まずは無料でご相談下さい。
※内覧をご希望の際には、どうぞ物件のエントランス前にてお待ち合わせくださいませ。ご内覧後は、同じ場所でお別れとさせていただきます。お客様のご都合に合わせたスムーズなご案内を心がけておりますので、ご質問等がございましたら何なりとお申し付けください。 物件概要
| 物件名 |
| 築年月 |
|
|---|---|---|---|
| 所在地 | |||
| 交通 | |||
| 総戸数 |
| 総階数 |
|
| 構造 |
| ||
地図
物件までの道のりは、「拡大地図を表示」をクリックしてナビ機能をご利用ください。
部屋設備














建物設備

24時間管理

TVモニターホン

エレベーター

オートロック

バイク置場

宅配ボックス

敷地内ゴミ置場

管理人

駐車場平置き

駐車場機械式

駐輪場
パークハビオ上野3丁目の現在募集中のお部屋
- パークハビオ上野3丁目 1102 - 間取り: 1LDK - 賃料: 22.3万円
















