
| 賃料 | 予想金額:154,000〜174,000円程度 | 管理費 | 予想金額:8,000〜12,000円程度 |
| 礼金/敷金 | 非公開(アーカイブ) | 平米数 | 41.02㎡ |
| 初期費用概算(参考) | 目安:630,500〜730,500 円 | みなし賃料(月額・参考) | 174,760〜194,760 円 |
| 備考 | 本ページは過去募集のアーカイブです。表示の金額は周辺相場・過去募集を踏まえた参考レンジであり、実際の契約金額・条件ではありません。 | ||
※上記みなし賃料(月額)は仲介手数料割引・無料&キャッシュバックを加味した高級賃貸バイブル限定の金額です。一般的なみなし賃料とは異なります。
【建物ページ】レクシード両国駅前の詳細・最新空室はこちら▶▶選ばれる理由
仲介手数料無料・キャンペーン情報(毎月15名様限定)
〇仲介手数料割引キャンペーン
レクシード両国駅前 502の口コミ・レビュー
レクシード両国駅前 502。これはただの住所ではありません。まるで現代のオアシスが息づく空間、あなたの新たな生活が待ち受ける舞台なのです。502号室は、都営地下鉄大江戸線 両国駅から徒歩たったの3分という至便の地に位置し、南向きの窓から降り注ぐ柔らかな光は、日々の疲れを癒す温もりを与えてくれます。
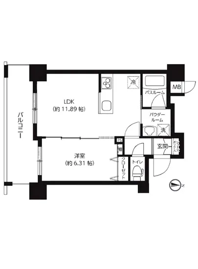
この物件に足を踏み入れると、まず目に飛び込んでくるのは、11.89帖の広々としたリビングダイニング…レクシード両国駅前 502。これはただの住所ではありません。まるで現代のオアシスが息づく空間、あなたの新たな生活が待ち受ける舞台なのです。502号室は、都営地下鉄大江戸線 両国駅から徒歩たったの3分という至便の地に位置し、南向きの窓から降り注ぐ柔らかな光は、日々の疲れを癒す温もりを与えてくれます。
この物件に足を踏み入れると、まず目に飛び込んでくるのは、11.89帖の広々としたリビングダイニングキッチン。ここでは、まるで映画のワンシーンのように、あなたの大切な人たちと共にテーブルを囲み、賑やかな会話が弾むことでしょう。食材の香ばしい香りが漂い、湯気の立ち上る料理に囲まれながら、味覚の冒険が始まります。キッチンに立つその瞬間、まるでシェフにでもなったかのように、自慢の料理を披露し、笑顔が咲く空間を生み出せるのです。
続いて、やや控えめながらも存在感を放つ6.31帖の洋室へ。ここは、静寂と安らぎが待つ場所。朝日が差し込む窓際には、あなたの夢を育む小さな書斎として、あるいは深い眠りを誘うベッドルームとしての役割を果たします。柔らかい布団に身を委ね、穏やかな夜の闇に包まれながら、心地よい眠りを得ることができるでしょう。夢の中では、好奇心が満ちた冒険が待っていることでしょう。
レクシード両国駅前 502は、ただの住まいではありません。恵まれた設備が、生活をより豊かに彩ります。TVモニターホンが安心感を提供し、エレベーターが日常の移動をスムーズにし、オートロックがプライバシーを守る。これらの機能は、あなたがこの場所で心からリラックスできるためのサポート役なのです。また、駐輪場や駐車場の完備は、あなたのアクティブなライフスタイルを後押しします。バイク置場の存在は、まるで自由を求める鳥が翼を広げるような爽快感を与えてくれます。
周辺の歴史や文化とも深いつながりを持つこのエリア。墨田区両国は、江戸時代から続く相撲文化の発信地であり、街を歩けばその歴史的な息吹を感じることができます。江戸の情緒に浸りながら、伝統と現代が交錯するこの街で、あなたの新しいストーリーが始まるのです。
レクシード両国駅前 502。この特別な空間は、あなたの人生をより豊かにするためのキャンバス。五感を刺激する瞬間が、日常の中に溶け込み、生活がより一層輝きを増していくことでしょう。あなたという主役の物語が、ここで紡がれていくことを心から楽しみにしています。
この物件に足を踏み入れると、まず目に飛び込んでくるのは、11.89帖の広々としたリビングダイニング…レクシード両国駅前 502。これはただの住所ではありません。まるで現代のオアシスが息づく空間、あなたの新たな生活が待ち受ける舞台なのです。502号室は、都営地下鉄大江戸線 両国駅から徒歩たったの3分という至便の地に位置し、南向きの窓から降り注ぐ柔らかな光は、日々の疲れを癒す温もりを与えてくれます。
この物件に足を踏み入れると、まず目に飛び込んでくるのは、11.89帖の広々としたリビングダイニングキッチン。ここでは、まるで映画のワンシーンのように、あなたの大切な人たちと共にテーブルを囲み、賑やかな会話が弾むことでしょう。食材の香ばしい香りが漂い、湯気の立ち上る料理に囲まれながら、味覚の冒険が始まります。キッチンに立つその瞬間、まるでシェフにでもなったかのように、自慢の料理を披露し、笑顔が咲く空間を生み出せるのです。
続いて、やや控えめながらも存在感を放つ6.31帖の洋室へ。ここは、静寂と安らぎが待つ場所。朝日が差し込む窓際には、あなたの夢を育む小さな書斎として、あるいは深い眠りを誘うベッドルームとしての役割を果たします。柔らかい布団に身を委ね、穏やかな夜の闇に包まれながら、心地よい眠りを得ることができるでしょう。夢の中では、好奇心が満ちた冒険が待っていることでしょう。
レクシード両国駅前 502は、ただの住まいではありません。恵まれた設備が、生活をより豊かに彩ります。TVモニターホンが安心感を提供し、エレベーターが日常の移動をスムーズにし、オートロックがプライバシーを守る。これらの機能は、あなたがこの場所で心からリラックスできるためのサポート役なのです。また、駐輪場や駐車場の完備は、あなたのアクティブなライフスタイルを後押しします。バイク置場の存在は、まるで自由を求める鳥が翼を広げるような爽快感を与えてくれます。
周辺の歴史や文化とも深いつながりを持つこのエリア。墨田区両国は、江戸時代から続く相撲文化の発信地であり、街を歩けばその歴史的な息吹を感じることができます。江戸の情緒に浸りながら、伝統と現代が交錯するこの街で、あなたの新しいストーリーが始まるのです。
レクシード両国駅前 502。この特別な空間は、あなたの人生をより豊かにするためのキャンバス。五感を刺激する瞬間が、日常の中に溶け込み、生活がより一層輝きを増していくことでしょう。あなたという主役の物語が、ここで紡がれていくことを心から楽しみにしています。
バイブルスコア
バイブルスコア: 24.6
平均的なスコアです。
※バイブルスコア詳細はこちら
バイブルスコアとは独自のAI機械学習技術を利用した物件評価システムで、物件のおすすめ度を示します。最高得点は100点で、スコアが高いほど、よりおすすめの物件と評価されています。
写真
契約条件
| 賃料 | 予想金額:154,000〜174,000円程度 | 管理費 | 予想金額:8,000〜12,000円程度 |
| 礼金 | 非公開(アーカイブ) | 敷金 | 非公開(アーカイブ) |
| フリーレント | なし | 平米数 | 41.02㎡ |
| 間取り | 1LDK | 大型収納 | |
| 契約期間 |
| 方角 | 南 |
| 更新料 | 契約形態 | 普通賃貸借契約 | |
| 取引態様 | 媒介 | 内見状況 | 入居中 |
| 入居時期 | 入居中 | SOHO・事務所 | |
| ペット | ペット可 | 間取り内訳 | 洋:6.31 LDK:11.89 |
| キャンペーン情報・備考 | 本情報は賃料改定交渉の資料作成、収益物件の利回り試算、周辺エリアや最寄り駅の坪単価分析、次回募集開始時期の予測などにご活用いただけます。 | ||
※「どの不動産に頼めばいいのか分からない」「信頼できる営業マンの話を聞きたい」「一番親切な会社と契約したい」とお悩みの方におすすめなのが「高級賃貸バイブル」です。
高級賃貸バイブルは業界10年以上の熟練スタッフ群がお客様ファーストで対応します。
下記ボタンから、まずは無料でご相談下さい。
※内覧をご希望の際には、どうぞ物件のエントランス前にてお待ち合わせくださいませ。ご内覧後は、同じ場所でお別れとさせていただきます。お客様のご都合に合わせたスムーズなご案内を心がけておりますので、ご質問等がございましたら何なりとお申し付けください。 物件概要
| 物件名 |
| 築年月 |
|
|---|---|---|---|
| 所在地 | |||
| 交通 | |||
| 総戸数 |
| 総階数 |
|
| 構造 |
| ||
地図
物件までの道のりは、「拡大地図を表示」をクリックしてナビ機能をご利用ください。
部屋設備













建物設備

TVモニターホン

エレベーター

オートロック

バイク置場

宅配ボックス

敷地内ゴミ置場

管理人

駐車場平置き

駐車場機械式

駐輪場
レクシード両国駅前の現在募集中のお部屋
- レクシード両国駅前 401 - 間取り: 1LDK - 賃料: 17.2万円
- レクシード両国駅前 1001 - 間取り: 1LDK - 賃料: 17.8万円




