
| 賃料 | 予想金額:215,000〜235,000円程度 | 管理費 | 予想金額:2,500〜6,500円程度 |
| 礼金/敷金 | 非公開(アーカイブ) | 平米数 | 56.42㎡ |
| 初期費用概算(参考) | 目安:835,750〜935,750 円 | みなし賃料(月額・参考) | 233,266〜253,266 円 |
| 備考 | 本ページは過去募集のアーカイブです。表示の金額は周辺相場・過去募集を踏まえた参考レンジであり、実際の契約金額・条件ではありません。 | ||
※上記みなし賃料(月額)は仲介手数料割引・無料&キャッシュバックを加味した高級賃貸バイブル限定の金額です。一般的なみなし賃料とは異なります。
【建物ページ】アクティ目黒駅前の詳細・最新空室はこちら▶▶選ばれる理由
仲介手数料無料・キャンペーン情報(毎月15名様限定)
〇仲介手数料割引キャンペーン
アクティ目黒駅前 1-701の口コミ・レビュー
アクティ目黒駅前 1-701。あなたの新たな生活の舞台は、まるで映画の一シーンのように、煌く都市の中で静かに息づいています。この高級賃貸物件は、品川区上大崎という恵まれた立地に位置し、東へと向かう窓からは朝日が差し込む様子が想像できる美しい景色が広がります。専有面積56.42㎡の中で、心地よい空間があなたを包み込み、静かな洗練を感じることができます。
アクティ目黒駅前 1-701に一歩足を踏み入…アクティ目黒駅前 1-701。あなたの新たな生活の舞台は、まるで映画の一シーンのように、煌く都市の中で静かに息づいています。この高級賃貸物件は、品川区上大崎という恵まれた立地に位置し、東へと向かう窓からは朝日が差し込む様子が想像できる美しい景色が広がります。専有面積56.42㎡の中で、心地よい空間があなたを包み込み、静かな洗練を感じることができます。
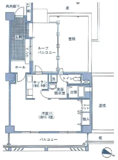
アクティ目黒駅前 1-701に一歩足を踏み入れると、24時間管理の安心感が広がり、あなたの生活をしっかりと支えてくれます。エレガントなエレベーターで7階まで上がると、まるで特別な秘密の場所に招かれたような気分になるでしょう。この魅力的な住まいは、あなたの心の拠り所となり、居心地の良い洋室15.8帖の広がりが、無限の可能性を秘めています。窓からの柔らかな光が差し込み、心地よい風が流れ込む空間で、思考が広がり、アイデアが芽生える瞬間に出会えることでしょう。
この物件の魅力は、ただの居住空間にとどまりません。目黒駅へは徒歩わずか3分、その周辺には多くの美術館や文化施設が点在し、まるで芸術作品のような街並みがあなたを迎えてくれます。地元のアーティストたちが作り出す独創的な空間や、歴史の息吹を感じる古き良きカフェで、五感を刺激する体験ができるのです。コーヒーの香りが漂う朝、そこで一杯のエスプレッソを味わいながら、アクティ目黒駅前 1-701での生活がいかに豊かであるかを実感するでしょう。
また、アクティ目黒駅前 1-701では、便利な設備があなたの生活をサポートします。オートロックや宅配ボックスが完備され、暮らしの安全性が保たれる中で、煩わしい日常から解放される快適さを味わえます。駐車場や駐輪場も完備されており、都市の喧騒を忘れさせてくれる環境が、あなたの心を潤してくれます。
アクティ目黒駅前 1-701での生活は、まるで詩の一節のように、日々の瞬間が美しさに満ちた物語として描かれることでしょう。静けさの中に音楽が流れ、香り高い食材がキッチンに集まる頃、あなたはこの特別な家の中で、心からの幸せを見つけることになるのです。この場所が、あなたの人生の新たな章の始まりであることを、きっと心で感じることでしょう。アクティ目黒駅前 1-701、その魅力は無限大です。人々が交差する都市の中で、ただひとつの特別な場所が、あなたを待っています。
アクティ目黒駅前 1-701に一歩足を踏み入…アクティ目黒駅前 1-701。あなたの新たな生活の舞台は、まるで映画の一シーンのように、煌く都市の中で静かに息づいています。この高級賃貸物件は、品川区上大崎という恵まれた立地に位置し、東へと向かう窓からは朝日が差し込む様子が想像できる美しい景色が広がります。専有面積56.42㎡の中で、心地よい空間があなたを包み込み、静かな洗練を感じることができます。
アクティ目黒駅前 1-701に一歩足を踏み入れると、24時間管理の安心感が広がり、あなたの生活をしっかりと支えてくれます。エレガントなエレベーターで7階まで上がると、まるで特別な秘密の場所に招かれたような気分になるでしょう。この魅力的な住まいは、あなたの心の拠り所となり、居心地の良い洋室15.8帖の広がりが、無限の可能性を秘めています。窓からの柔らかな光が差し込み、心地よい風が流れ込む空間で、思考が広がり、アイデアが芽生える瞬間に出会えることでしょう。
この物件の魅力は、ただの居住空間にとどまりません。目黒駅へは徒歩わずか3分、その周辺には多くの美術館や文化施設が点在し、まるで芸術作品のような街並みがあなたを迎えてくれます。地元のアーティストたちが作り出す独創的な空間や、歴史の息吹を感じる古き良きカフェで、五感を刺激する体験ができるのです。コーヒーの香りが漂う朝、そこで一杯のエスプレッソを味わいながら、アクティ目黒駅前 1-701での生活がいかに豊かであるかを実感するでしょう。
また、アクティ目黒駅前 1-701では、便利な設備があなたの生活をサポートします。オートロックや宅配ボックスが完備され、暮らしの安全性が保たれる中で、煩わしい日常から解放される快適さを味わえます。駐車場や駐輪場も完備されており、都市の喧騒を忘れさせてくれる環境が、あなたの心を潤してくれます。
アクティ目黒駅前 1-701での生活は、まるで詩の一節のように、日々の瞬間が美しさに満ちた物語として描かれることでしょう。静けさの中に音楽が流れ、香り高い食材がキッチンに集まる頃、あなたはこの特別な家の中で、心からの幸せを見つけることになるのです。この場所が、あなたの人生の新たな章の始まりであることを、きっと心で感じることでしょう。アクティ目黒駅前 1-701、その魅力は無限大です。人々が交差する都市の中で、ただひとつの特別な場所が、あなたを待っています。
バイブルスコア
バイブルスコア: 24.6
平均的なスコアです。
※バイブルスコア詳細はこちら
バイブルスコアとは独自のAI機械学習技術を利用した物件評価システムで、物件のおすすめ度を示します。最高得点は100点で、スコアが高いほど、よりおすすめの物件と評価されています。
写真
現在写真が登録されていません契約条件
| 賃料 | 予想金額:215,000〜235,000円程度 | 管理費 | 予想金額:2,500〜6,500円程度 |
| 礼金 | 非公開(アーカイブ) | 敷金 | 非公開(アーカイブ) |
| フリーレント | なし | 平米数 | 56.42㎡ |
| 間取り | 1K | 大型収納 | |
| 契約期間 |
| 方角 | 東 |
| 更新料 | 契約形態 | 普通賃貸借契約 | |
| 取引態様 | 媒介 | 内見状況 | 入居中 |
| 入居時期 | 入居中 | SOHO・事務所 | |
| ペット | 間取り内訳 | 洋15.8 K:2.9 | |
| キャンペーン情報・備考 | 本情報は賃料改定交渉の資料作成、収益物件の利回り試算、周辺エリアや最寄り駅の坪単価分析、次回募集開始時期の予測などにご活用いただけます。 | ||
※「どの不動産に頼めばいいのか分からない」「信頼できる営業マンの話を聞きたい」「一番親切な会社と契約したい」とお悩みの方におすすめなのが「高級賃貸バイブル」です。
高級賃貸バイブルは業界10年以上の熟練スタッフ群がお客様ファーストで対応します。
下記ボタンから、まずは無料でご相談下さい。
※内覧をご希望の際には、どうぞ物件のエントランス前にてお待ち合わせくださいませ。ご内覧後は、同じ場所でお別れとさせていただきます。お客様のご都合に合わせたスムーズなご案内を心がけておりますので、ご質問等がございましたら何なりとお申し付けください。 物件概要
| 物件名 |
| 築年月 |
|
|---|---|---|---|
| 所在地 | |||
| 交通 | |||
| 総戸数 |
| 総階数 |
|
| 構造 |
| ||
地図
物件までの道のりは、「拡大地図を表示」をクリックしてナビ機能をご利用ください。
部屋設備













建物設備

24時間管理

TVモニターホン

エレベーター

オートロック

宅配ボックス

敷地内ゴミ置場

管理人

駐車場平置き

駐輪場
アクティ目黒駅前の現在募集中のお部屋
- アクティ目黒駅前 1号棟 909 - 間取り: 3LDK - 賃料: 36.1万円
- アクティ目黒駅前 1号棟 606 - 間取り: 1LDK - 賃料: 24.7万円
- アクティ目黒駅前 1号棟 310 - 間取り: 1LDK - 賃料: 21.2万円
