
| 賃料 | 予想金額:255,000〜275,000円程度 | 管理費 | 予想金額:2,500〜6,500円程度 |
| 礼金/敷金 | 非公開(アーカイブ) | 平米数 | 64.92㎡ |
| 初期費用概算(参考) | 目安:975,750〜1,075,750 円 | みなし賃料(月額・参考) | 275,349〜295,349 円 |
| 備考 | 本ページは過去募集のアーカイブです。表示の金額は周辺相場・過去募集を踏まえた参考レンジであり、実際の契約金額・条件ではありません。 | ||
※上記みなし賃料(月額)は仲介手数料割引・無料&キャッシュバックを加味した高級賃貸バイブル限定の金額です。一般的なみなし賃料とは異なります。
【建物ページ】アクティ目黒駅前の詳細・最新空室はこちら▶▶選ばれる理由
仲介手数料無料・キャンペーン情報(毎月15名様限定)
〇仲介手数料割引キャンペーン
アクティ目黒駅前 1-712の口コミ・レビュー
「アクティ目黒駅前 1-712」。この物件の名を口にするたび、まるで優雅なメロディーが心に響き渡るかのようです。東京都品川区上大崎に位置するこの住まいは、まるで都会の喧騒から一歩離れた秘密のオアシスのように感じられます。朝陽が差し込む東向きの窓は、新しい日々の始まりを告げる金色の光のカーテンを引き寄せ、生命の温もりを届けてくれます。
アクティ目黒駅前 1-712には、64.92㎡の広さに2LDK…「アクティ目黒駅前 1-712」。この物件の名を口にするたび、まるで優雅なメロディーが心に響き渡るかのようです。東京都品川区上大崎に位置するこの住まいは、まるで都会の喧騒から一歩離れた秘密のオアシスのように感じられます。朝陽が差し込む東向きの窓は、新しい日々の始まりを告げる金色の光のカーテンを引き寄せ、生命の温もりを届けてくれます。
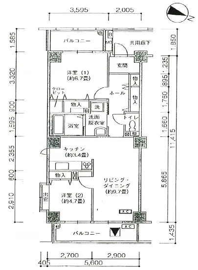
アクティ目黒駅前 1-712には、64.92㎡の広さに2LDKの贅沢な間取りが広がっており、LDは9.7帖、Kは3.4帖、さらに2つの寝室はそれぞれ6.7帖と4.7帖。言うなれば、ここは生活の舞台、演じるのはあなた自身ということです。想像してみてください、朝食をどうぞ。香ばしいトーストの香りがキッチンから漂い、少しほろ苦いコーヒーの湯気があなたを包み込む。ファミリーや友人とともに、笑い声が響くリビングの空間は、まさに映画のワンシーンのようではありませんか。
アクティ目黒駅前 1-712は、快適な生活をサポートするための設備が整っています。24時間管理され、オートロックで大切なプライバシーも守られています。また、TVモニターホンがあることで、訪れる者をしっかりと見届けることができ、安心感は倍増。エレベーターも完備され、宅配ボックスを使えば、忙しい日常においても荷物の受け取りをスマートに行えます。これら全てが、あなたの生活をより豊かにするための一部です。
そして、この物件はただの住まいにとどまらず、周辺の歴史や文化、芸術と深く結びついています。目黒駅から徒歩わずか3分の距離に、このアクティ目黒駅前 1-712が存在することで、あなたは洗練された文化の中心地に身を置くことができるのです。目黒川の美しい流れを眺めたり、近隣の美術館で感動的な作品に触れたり、または洒落たカフェで素敵な一時を過ごしたり。ここには、あなたの五感を刺激する魅力が詰まっています。
アクティ目黒駅前 1-712は、まるであなたの生活のパートナーであり、心の支えとなる存在です。日々の喧騒の中で、静かにあなたを見守り、洗練されたライフスタイルを提供してくれます。これからどんな物語が繰り広げられるのか、今から胸が高鳴る思いです。あなたの新しい生活は、アクティ目黒駅前 1-712から始まります。さあ、生活の幕開けを共に楽しみましょう。
アクティ目黒駅前 1-712には、64.92㎡の広さに2LDK…「アクティ目黒駅前 1-712」。この物件の名を口にするたび、まるで優雅なメロディーが心に響き渡るかのようです。東京都品川区上大崎に位置するこの住まいは、まるで都会の喧騒から一歩離れた秘密のオアシスのように感じられます。朝陽が差し込む東向きの窓は、新しい日々の始まりを告げる金色の光のカーテンを引き寄せ、生命の温もりを届けてくれます。
アクティ目黒駅前 1-712には、64.92㎡の広さに2LDKの贅沢な間取りが広がっており、LDは9.7帖、Kは3.4帖、さらに2つの寝室はそれぞれ6.7帖と4.7帖。言うなれば、ここは生活の舞台、演じるのはあなた自身ということです。想像してみてください、朝食をどうぞ。香ばしいトーストの香りがキッチンから漂い、少しほろ苦いコーヒーの湯気があなたを包み込む。ファミリーや友人とともに、笑い声が響くリビングの空間は、まさに映画のワンシーンのようではありませんか。
アクティ目黒駅前 1-712は、快適な生活をサポートするための設備が整っています。24時間管理され、オートロックで大切なプライバシーも守られています。また、TVモニターホンがあることで、訪れる者をしっかりと見届けることができ、安心感は倍増。エレベーターも完備され、宅配ボックスを使えば、忙しい日常においても荷物の受け取りをスマートに行えます。これら全てが、あなたの生活をより豊かにするための一部です。
そして、この物件はただの住まいにとどまらず、周辺の歴史や文化、芸術と深く結びついています。目黒駅から徒歩わずか3分の距離に、このアクティ目黒駅前 1-712が存在することで、あなたは洗練された文化の中心地に身を置くことができるのです。目黒川の美しい流れを眺めたり、近隣の美術館で感動的な作品に触れたり、または洒落たカフェで素敵な一時を過ごしたり。ここには、あなたの五感を刺激する魅力が詰まっています。
アクティ目黒駅前 1-712は、まるであなたの生活のパートナーであり、心の支えとなる存在です。日々の喧騒の中で、静かにあなたを見守り、洗練されたライフスタイルを提供してくれます。これからどんな物語が繰り広げられるのか、今から胸が高鳴る思いです。あなたの新しい生活は、アクティ目黒駅前 1-712から始まります。さあ、生活の幕開けを共に楽しみましょう。
バイブルスコア
バイブルスコア: 22.1
平均的なスコアです。
※バイブルスコア詳細はこちら
バイブルスコアとは独自のAI機械学習技術を利用した物件評価システムで、物件のおすすめ度を示します。最高得点は100点で、スコアが高いほど、よりおすすめの物件と評価されています。
写真
現在写真が登録されていません契約条件
| 賃料 | 予想金額:255,000〜275,000円程度 | 管理費 | 予想金額:2,500〜6,500円程度 |
| 礼金 | 非公開(アーカイブ) | 敷金 | 非公開(アーカイブ) |
| フリーレント | なし | 平米数 | 64.92㎡ |
| 間取り | 2LDK | 大型収納 | |
| 契約期間 |
| 方角 | 東 |
| 更新料 | 契約形態 | 普通賃貸借契約 | |
| 取引態様 | 媒介 | 内見状況 | 入居中 |
| 入居時期 | 入居中 | SOHO・事務所 | |
| ペット | 間取り内訳 | LD=9.7J / K=3.4J / BR=6.7J / BR=4.7J | |
| キャンペーン情報・備考 | 本情報は賃料改定交渉の資料作成、収益物件の利回り試算、周辺エリアや最寄り駅の坪単価分析、次回募集開始時期の予測などにご活用いただけます。 | ||
※「どの不動産に頼めばいいのか分からない」「信頼できる営業マンの話を聞きたい」「一番親切な会社と契約したい」とお悩みの方におすすめなのが「高級賃貸バイブル」です。
高級賃貸バイブルは業界10年以上の熟練スタッフ群がお客様ファーストで対応します。
下記ボタンから、まずは無料でご相談下さい。
※内覧をご希望の際には、どうぞ物件のエントランス前にてお待ち合わせくださいませ。ご内覧後は、同じ場所でお別れとさせていただきます。お客様のご都合に合わせたスムーズなご案内を心がけておりますので、ご質問等がございましたら何なりとお申し付けください。 物件概要
| 物件名 |
| 築年月 |
|
|---|---|---|---|
| 所在地 | |||
| 交通 | |||
| 総戸数 |
| 総階数 |
|
| 構造 |
| ||
地図
物件までの道のりは、「拡大地図を表示」をクリックしてナビ機能をご利用ください。
部屋設備















建物設備

24時間管理

TVモニターホン

エレベーター

オートロック

宅配ボックス

敷地内ゴミ置場

管理人

駐車場平置き

駐輪場
アクティ目黒駅前の現在募集中のお部屋
- アクティ目黒駅前 1号棟 909 - 間取り: 3LDK - 賃料: 36.1万円
- アクティ目黒駅前 1号棟 606 - 間取り: 1LDK - 賃料: 24.7万円
- アクティ目黒駅前 1号棟 310 - 間取り: 1LDK - 賃料: 21.2万円
