
| 賃料 | 予想金額:96,000〜116,000円程度 | 管理費 | 予想金額:6,000〜10,000円程度 |
| 礼金/敷金 | 非公開(アーカイブ) | 平米数 | 25.15㎡ |
| 初期費用概算(参考) | 目安:348,300〜448,300 円 | みなし賃料(月額・参考) | 110,090〜130,090 円 |
| 備考 | 本ページは過去募集のアーカイブです。表示の金額は周辺相場・過去募集を踏まえた参考レンジであり、実際の契約金額・条件ではありません。 | ||
※上記みなし賃料(月額)は仲介手数料割引・無料&キャッシュバックを加味した高級賃貸バイブル限定の金額です。一般的なみなし賃料とは異なります。
【建物ページ】ルオーレ東品川の詳細・最新空室はこちら▶▶選ばれる理由
仲介手数料無料・キャンペーン情報(毎月15名様限定)
〇引っ越しお祝い金21200円プレゼント(キャッシュバック)
〇仲介手数料無料キャンペーン
ルオーレ東品川 404の口コミ・レビュー
ルオーレ東品川 404。南東の陽光が優しく差し込むこの特別な空間に、あなたの新しい物語が始まります。25.15㎡の広さは、まるで作家がそのペンを走らせるように、あなたのライフスタイルを自由に表現するキャンヴァスです。さあ、一歩足を踏み入れると、心地よい空気に包まれ、思わず深呼吸をしたくなることでしょう。
玄関を開けると、柔らかな光が優雅にダンスするように広がります。天井が高く、開放感に満ちたこの…ルオーレ東品川 404。南東の陽光が優しく差し込むこの特別な空間に、あなたの新しい物語が始まります。25.15㎡の広さは、まるで作家がそのペンを走らせるように、あなたのライフスタイルを自由に表現するキャンヴァスです。さあ、一歩足を踏み入れると、心地よい空気に包まれ、思わず深呼吸をしたくなることでしょう。
玄関を開けると、柔らかな光が優雅にダンスするように広がります。天井が高く、開放感に満ちたこの空間は、あなたを大切に迎え入れる友人のようです。優しい木の温もりを感じつつ、長く優雅な廊下を進むと、7.5帖の洋室が目に飛び込んできます。そこには、明るい日差しが心地よく差し込み、まるで春の花々が咲き誇るようなあたたかさに満ちています。窓辺にはお気に入りのグリーンを置き、日々の暮らしに彩りを加えてみてください。
ルオーレ東品川 404の魅力はその立地にもあります。京急本線 北品川駅からわずか6分の距離に位置し、忙しい日常の中でも、わずかな時間で都会の喧騒を離れることができます。周囲には歴史が息づく品川の街並みが広がり、古き良き日本の文化を感じることができる場所が多数存在します。散歩がてら訪れることができるアートギャラリーや quaint cafeでは、新たな発見と出会うことができ、毎日が鮮やかな彩りに満ち溢れます。
この高級賃貸物件は、ただの住まいではありません。住む人々の生活をより豊かにするためのシンフォニーのような存在です。オートロックのセキュリティはあなたを護り、管理人はいつもそばにいて、安心を提供する頼もしい存在となるでしょう。宅配ボックスの便利さは、忙しい現代の生活に優雅さを添え、日常の小さなストレスを軽減してくれます。
ルオーレ東品川 404を住まいと呼ぶことで、あなたの人生の舞台は一層魅力的になるでしょう。心の豊かさを感じながら、五感を刺激する生活が待っています。朝の新鮮な空気の中で、窓を開けてコーヒーの香りを楽しむ時、彼方から聞こえてくる鳥のさえずりに耳を傾け、ゆったりとした時間の流れを味わってみてください。あなたの新しい日常が、この特別な場所で織り成されるのです。
ルオーレ東品川 404は、あなたにとっての理想の住まいであり、心を癒す特別な場所となることでしょう。さあ、この素晴らしい空間で新しい物語を始めてみませんか。あなたの人生のページを、この特別な家で彩り豊かに書き進めていってください。
玄関を開けると、柔らかな光が優雅にダンスするように広がります。天井が高く、開放感に満ちたこの…ルオーレ東品川 404。南東の陽光が優しく差し込むこの特別な空間に、あなたの新しい物語が始まります。25.15㎡の広さは、まるで作家がそのペンを走らせるように、あなたのライフスタイルを自由に表現するキャンヴァスです。さあ、一歩足を踏み入れると、心地よい空気に包まれ、思わず深呼吸をしたくなることでしょう。
玄関を開けると、柔らかな光が優雅にダンスするように広がります。天井が高く、開放感に満ちたこの空間は、あなたを大切に迎え入れる友人のようです。優しい木の温もりを感じつつ、長く優雅な廊下を進むと、7.5帖の洋室が目に飛び込んできます。そこには、明るい日差しが心地よく差し込み、まるで春の花々が咲き誇るようなあたたかさに満ちています。窓辺にはお気に入りのグリーンを置き、日々の暮らしに彩りを加えてみてください。
ルオーレ東品川 404の魅力はその立地にもあります。京急本線 北品川駅からわずか6分の距離に位置し、忙しい日常の中でも、わずかな時間で都会の喧騒を離れることができます。周囲には歴史が息づく品川の街並みが広がり、古き良き日本の文化を感じることができる場所が多数存在します。散歩がてら訪れることができるアートギャラリーや quaint cafeでは、新たな発見と出会うことができ、毎日が鮮やかな彩りに満ち溢れます。
この高級賃貸物件は、ただの住まいではありません。住む人々の生活をより豊かにするためのシンフォニーのような存在です。オートロックのセキュリティはあなたを護り、管理人はいつもそばにいて、安心を提供する頼もしい存在となるでしょう。宅配ボックスの便利さは、忙しい現代の生活に優雅さを添え、日常の小さなストレスを軽減してくれます。
ルオーレ東品川 404を住まいと呼ぶことで、あなたの人生の舞台は一層魅力的になるでしょう。心の豊かさを感じながら、五感を刺激する生活が待っています。朝の新鮮な空気の中で、窓を開けてコーヒーの香りを楽しむ時、彼方から聞こえてくる鳥のさえずりに耳を傾け、ゆったりとした時間の流れを味わってみてください。あなたの新しい日常が、この特別な場所で織り成されるのです。
ルオーレ東品川 404は、あなたにとっての理想の住まいであり、心を癒す特別な場所となることでしょう。さあ、この素晴らしい空間で新しい物語を始めてみませんか。あなたの人生のページを、この特別な家で彩り豊かに書き進めていってください。
バイブルスコア
バイブルスコア: 96.6
レア物件です、すぐ仮押さえしましょう!
このお部屋は、現在ご入居中のため空室情報はございません。ただし、将来的に募集が開始される際、バイブルスコアにおいて非常に高い評価が期待されます。特にご興味をお持ちの方は、今のうちにブックマークやお気に入りに登録していただくと、募集開始のお知らせをすぐに受け取ることができます。是非ともご検討くださいませ。
※バイブルスコア詳細はこちら
バイブルスコアとは独自のAI機械学習技術を利用した物件評価システムで、物件のおすすめ度を示します。最高得点は100点で、スコアが高いほど、よりおすすめの物件と評価されています。
写真
現在写真が登録されていません契約条件
| 賃料 | 予想金額:96,000〜116,000円程度 | 管理費 | 予想金額:6,000〜10,000円程度 |
| 礼金 | 非公開(アーカイブ) | 敷金 | 非公開(アーカイブ) |
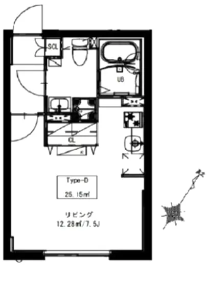
| フリーレント | なし | 平米数 | 25.15㎡ |
| 間取り | 1R | 大型収納 | |
| 契約期間 | 2年 | 方角 | 南東 |
| 更新料 | 1ヶ月 | 契約形態 | 普通賃貸借契約 |
| 取引態様 | 媒介 | 内見状況 | 入居中 |
| 入居時期 | 入居中 | SOHO・事務所 | |
| ペット | 間取り内訳 | 洋:7.5 | |
| キャンペーン情報・備考 | 本情報は賃料改定交渉の資料作成、収益物件の利回り試算、周辺エリアや最寄り駅の坪単価分析、次回募集開始時期の予測などにご活用いただけます。 | ||
※「どの不動産に頼めばいいのか分からない」「信頼できる営業マンの話を聞きたい」「一番親切な会社と契約したい」とお悩みの方におすすめなのが「高級賃貸バイブル」です。
高級賃貸バイブルは業界10年以上の熟練スタッフ群がお客様ファーストで対応します。
下記ボタンから、まずは無料でご相談下さい。
※内覧をご希望の際には、どうぞ物件のエントランス前にてお待ち合わせくださいませ。ご内覧後は、同じ場所でお別れとさせていただきます。お客様のご都合に合わせたスムーズなご案内を心がけておりますので、ご質問等がございましたら何なりとお申し付けください。 物件概要
| 物件名 |
| 築年月 |
|
|---|---|---|---|
| 所在地 | |||
| 交通 | |||
| 総戸数 |
| 総階数 |
|
| 構造 |
| ||
地図
物件までの道のりは、「拡大地図を表示」をクリックしてナビ機能をご利用ください。
部屋設備












建物設備

TVモニターホン

エレベーター

オートロック

宅配ボックス

敷地内ゴミ置場

管理人

駐輪場
ルオーレ東品川の現在募集中のお部屋
- No rooms found for this property.
