
| 賃料 | 予想金額:95,000〜115,000円程度 | 管理費 | 予想金額:6,000〜10,000円程度 |
| 礼金/敷金 | 非公開(アーカイブ) | 平米数 | 25.15㎡ |
| 初期費用概算(参考) | 目安:345,000〜445,000 円 | みなし賃料(月額・参考) | 109,042〜129,042 円 |
| 備考 | 本ページは過去募集のアーカイブです。表示の金額は周辺相場・過去募集を踏まえた参考レンジであり、実際の契約金額・条件ではありません。 | ||
※上記みなし賃料(月額)は仲介手数料割引・無料&キャッシュバックを加味した高級賃貸バイブル限定の金額です。一般的なみなし賃料とは異なります。
【建物ページ】ルオーレ東品川の詳細・最新空室はこちら▶▶選ばれる理由
仲介手数料無料・キャンペーン情報(毎月15名様限定)
〇引っ越しお祝い金21000円プレゼント(キャッシュバック)
〇仲介手数料無料キャンペーン
ルオーレ東品川 304の口コミ・レビュー
ルオーレ東品川 304。この名前を聞いた瞬間から、あなたの新しい生活が始まることをお約束いたします。ここはただの住まいではなく、まるで都会の隠れ家のような、特別な場所なのです。南東向きの窓から差し込む光は、朝の訪れを告げる美しい音楽のように、あなたの日常を優雅に彩ります。まるで一幅の絵画の中にいるかのように、陽ざしの中で微笑む瞬間を、何よりも大切にしていただきたいと思います。
この「ルオーレ東品…ルオーレ東品川 304。この名前を聞いた瞬間から、あなたの新しい生活が始まることをお約束いたします。ここはただの住まいではなく、まるで都会の隠れ家のような、特別な場所なのです。南東向きの窓から差し込む光は、朝の訪れを告げる美しい音楽のように、あなたの日常を優雅に彩ります。まるで一幅の絵画の中にいるかのように、陽ざしの中で微笑む瞬間を、何よりも大切にしていただきたいと思います。
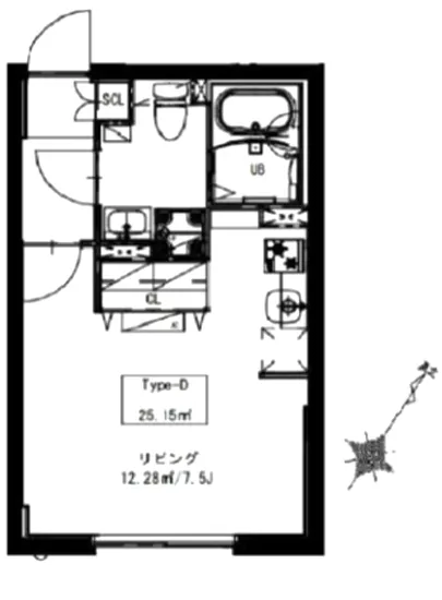
この「ルオーレ東品川 304」は、25.15㎡の空間にあなたの夢や希望を詰め込むための舞台です。間取りは1R、7.5帖の洋室はまるで、一枚のキャンバスのように自由な創造力を感じさせてくれます。このお部屋に入ると、心地よい温もりに包まれ、すぐにリラックスできることでしょう。あなたの好きな香りのお香を焚けば、その空間はまるでスパのような穏やかな時間が流れます。
近くには、京急本線の北品川駅があり、徒歩6分でアクセスできるのも魅力です。都心の喧騒から少し離れたこの場所は、忙しい日常を忘れさせてくれる静けさがあります。外に出れば、吹く風が心地よく、木々のざわめきが耳に優しいハーモニーを奏でてくれるでしょう。この環境が、あなたの五感を刺激し、心に安らぎを与えてくれるに違いありません。
さらに、ルオーレ東品川 304には、TVモニターホンやオートロック、エレベーターといった便利な設備も整っています。宅配ボックスも完備されているため、大切な荷物がいつでも安全に届くことでしょう。まさに現代の生活にぴったりの、セキュリティが強化された環境です。この場所が、あなたにとっての安心感と自由を与えてくれることをお約束いたします。
また、ルオーレ東品川 304が位置するこの地域は、品川の歴史や文化とも深いつながりを持っています。江戸時代から続く品川の街並みに身を置くことで、あなたの生活は新たな息吹を感じるでしょう。古き良き日本の風情を感じながら、周囲の歴史的な建造物や美術館を訪れることも楽しみの一つです。
ルオーレ東品川 304は、ただの物件ではなく、あなたのライフスタイルをグレードアップさせるための場所であると、心から感じるのです。ここでの毎日が、まるで映画のワンシーンのようにあなたを美しく演出してくれることでしょう。あなたの物語が始まる場所、それがルオーレ東品川 304です。日常を贅沢に楽しむための、この特別な空間をご覧になりに、ぜひお越しください。あなたの新たな生活が、待っています。
この「ルオーレ東品…ルオーレ東品川 304。この名前を聞いた瞬間から、あなたの新しい生活が始まることをお約束いたします。ここはただの住まいではなく、まるで都会の隠れ家のような、特別な場所なのです。南東向きの窓から差し込む光は、朝の訪れを告げる美しい音楽のように、あなたの日常を優雅に彩ります。まるで一幅の絵画の中にいるかのように、陽ざしの中で微笑む瞬間を、何よりも大切にしていただきたいと思います。
この「ルオーレ東品川 304」は、25.15㎡の空間にあなたの夢や希望を詰め込むための舞台です。間取りは1R、7.5帖の洋室はまるで、一枚のキャンバスのように自由な創造力を感じさせてくれます。このお部屋に入ると、心地よい温もりに包まれ、すぐにリラックスできることでしょう。あなたの好きな香りのお香を焚けば、その空間はまるでスパのような穏やかな時間が流れます。
近くには、京急本線の北品川駅があり、徒歩6分でアクセスできるのも魅力です。都心の喧騒から少し離れたこの場所は、忙しい日常を忘れさせてくれる静けさがあります。外に出れば、吹く風が心地よく、木々のざわめきが耳に優しいハーモニーを奏でてくれるでしょう。この環境が、あなたの五感を刺激し、心に安らぎを与えてくれるに違いありません。
さらに、ルオーレ東品川 304には、TVモニターホンやオートロック、エレベーターといった便利な設備も整っています。宅配ボックスも完備されているため、大切な荷物がいつでも安全に届くことでしょう。まさに現代の生活にぴったりの、セキュリティが強化された環境です。この場所が、あなたにとっての安心感と自由を与えてくれることをお約束いたします。
また、ルオーレ東品川 304が位置するこの地域は、品川の歴史や文化とも深いつながりを持っています。江戸時代から続く品川の街並みに身を置くことで、あなたの生活は新たな息吹を感じるでしょう。古き良き日本の風情を感じながら、周囲の歴史的な建造物や美術館を訪れることも楽しみの一つです。
ルオーレ東品川 304は、ただの物件ではなく、あなたのライフスタイルをグレードアップさせるための場所であると、心から感じるのです。ここでの毎日が、まるで映画のワンシーンのようにあなたを美しく演出してくれることでしょう。あなたの物語が始まる場所、それがルオーレ東品川 304です。日常を贅沢に楽しむための、この特別な空間をご覧になりに、ぜひお越しください。あなたの新たな生活が、待っています。
バイブルスコア
バイブルスコア: 97.1
レア物件です、すぐ仮押さえしましょう!
このお部屋は、現在ご入居中のため空室情報はございません。ただし、将来的に募集が開始される際、バイブルスコアにおいて非常に高い評価が期待されます。特にご興味をお持ちの方は、今のうちにブックマークやお気に入りに登録していただくと、募集開始のお知らせをすぐに受け取ることができます。是非ともご検討くださいませ。
※バイブルスコア詳細はこちら
バイブルスコアとは独自のAI機械学習技術を利用した物件評価システムで、物件のおすすめ度を示します。最高得点は100点で、スコアが高いほど、よりおすすめの物件と評価されています。
写真
現在写真が登録されていません契約条件
| 賃料 | 予想金額:95,000〜115,000円程度 | 管理費 | 予想金額:6,000〜10,000円程度 |
| 礼金 | 非公開(アーカイブ) | 敷金 | 非公開(アーカイブ) |
| フリーレント | なし | 平米数 | 25.15㎡ |
| 間取り | 1R | 大型収納 | |
| 契約期間 | 2年 | 方角 | 南東 |
| 更新料 | 1ヶ月 | 契約形態 | 普通賃貸借契約 |
| 取引態様 | 媒介 | 内見状況 | 入居中 |
| 入居時期 | 入居中 | SOHO・事務所 | |
| ペット | 間取り内訳 | 洋:7.5 | |
| キャンペーン情報・備考 | 本情報は賃料改定交渉の資料作成、収益物件の利回り試算、周辺エリアや最寄り駅の坪単価分析、次回募集開始時期の予測などにご活用いただけます。 | ||
※「どの不動産に頼めばいいのか分からない」「信頼できる営業マンの話を聞きたい」「一番親切な会社と契約したい」とお悩みの方におすすめなのが「高級賃貸バイブル」です。
高級賃貸バイブルは業界10年以上の熟練スタッフ群がお客様ファーストで対応します。
下記ボタンから、まずは無料でご相談下さい。
※内覧をご希望の際には、どうぞ物件のエントランス前にてお待ち合わせくださいませ。ご内覧後は、同じ場所でお別れとさせていただきます。お客様のご都合に合わせたスムーズなご案内を心がけておりますので、ご質問等がございましたら何なりとお申し付けください。 物件概要
| 物件名 |
| 築年月 |
|
|---|---|---|---|
| 所在地 | |||
| 交通 | |||
| 総戸数 |
| 総階数 |
|
| 構造 |
| ||
地図
物件までの道のりは、「拡大地図を表示」をクリックしてナビ機能をご利用ください。
部屋設備












建物設備

TVモニターホン

エレベーター

オートロック

宅配ボックス

敷地内ゴミ置場

管理人

駐輪場
ルオーレ東品川の現在募集中のお部屋
- No rooms found for this property.
