
| 賃料 | 予想金額:118,000〜138,000円程度 | 管理費 | 予想金額:8,000〜12,000円程度 |
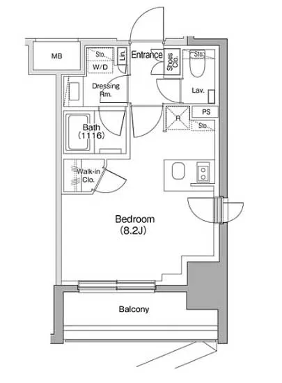
| 礼金/敷金 | 非公開(アーカイブ) | 平米数 | 26.07㎡ |
| 初期費用概算(参考) | 目安:165,340〜265,340 円 | みなし賃料(月額・参考) | 132,486〜152,486 円 |
| 備考 | 本ページは過去募集のアーカイブです。表示の金額は周辺相場・過去募集を踏まえた参考レンジであり、実際の契約金額・条件ではありません。 | ||
※上記みなし賃料(月額)は仲介手数料割引・無料&キャッシュバックを加味した高級賃貸バイブル限定の金額です。一般的なみなし賃料とは異なります。
【建物ページ】ザ・パークハビオ明大前の詳細・最新空室はこちら▶▶選ばれる理由
仲介手数料無料・キャンペーン情報(毎月15名様限定)
〇引っ越しお祝い金28160円プレゼント(キャッシュバック)
〇フリーレント1か月キャンペーン
〇仲介手数料無料キャンペーン
ザ・パークハビオ明大前 1003の口コミ・レビュー
ザ・パークハビオ明大前 1003。この場所は、ただの住まいではありません。まるで洗練された芸術作品が、どこか特別な場面に佇むように、あなたの生活の一部を優美に彩ることでしょう。専有面積26.07㎡、間取りは1R(STUDIO)のコンパクトながらも、その存在感は圧倒的です。ここは、あなたにとっての特別な舞台なのです。
早朝、カーテンを gently 開けると、差し込む陽射しがまるであなたの元気を引…ザ・パークハビオ明大前 1003。この場所は、ただの住まいではありません。まるで洗練された芸術作品が、どこか特別な場面に佇むように、あなたの生活の一部を優美に彩ることでしょう。専有面積26.07㎡、間取りは1R(STUDIO)のコンパクトながらも、その存在感は圧倒的です。ここは、あなたにとっての特別な舞台なのです。
早朝、カーテンを gently 開けると、差し込む陽射しがまるであなたの元気を引き立てるかのように、温かく迎えてくれます。大きな窓からは、緑豊かな公園や街の喧騒が見渡せ、時折聞こえる子どもたちの笑い声や風の音が、心を解きほぐしてくれます。これがザ・パークハビオ明大前 1003の特権です。ここに住まうことで、あなたの日常がまるで映画のワンシーンのように、心に残る瞬間に満ち溢れることでしょう。
この美しい空間は、デザイナーズ物件としての洗練されたデザインが施されています。優雅に流れるようなラインに、シンプルながらも高級感あふれるインテリアが調和し、まるで心地よい風に包まれるかのような感覚をもたらします。あなたが訪れるたびに、まるで新たな発見があるような、そんなワクワク感が生まれることでしょう。
そして、ザ・パークハビオ明大前 1003には、あなたの生活をより豊かにするためのさまざまな設備が整っています。TVモニターホンが設置されていることで、訪問者を安全に確認でき、エレベーターやオートロックも完備されているため、安心感をもたらします。宅配ボックスがあることで、忙しい毎日の中でも、大切な荷物を安心して受け取ることができ、時間を有効に使うことができます。
ここでは、生活のすべてが便利で快適に設計されています。休日には、バイク置場に愛車を停めて、近くの公園でのピクニックや、美味しいカフェ巡りが楽しめます。東京の喧騒を逃れ、静かなひとときを過ごすことができる、そんな贅沢な環境が整っています。
ザ・パークハビオ明大前 1003は、生活がまるで絵画のように、豊かな色彩に包まれる場所です。入居することで、あなたの日常が特別なものに変わる瞬間が待っています。歴史深い世田谷区のこの地で、あなた自身の物語を紡いでみませんか。あなたの新しい生活が、ここから始まるのです。
早朝、カーテンを gently 開けると、差し込む陽射しがまるであなたの元気を引…ザ・パークハビオ明大前 1003。この場所は、ただの住まいではありません。まるで洗練された芸術作品が、どこか特別な場面に佇むように、あなたの生活の一部を優美に彩ることでしょう。専有面積26.07㎡、間取りは1R(STUDIO)のコンパクトながらも、その存在感は圧倒的です。ここは、あなたにとっての特別な舞台なのです。
早朝、カーテンを gently 開けると、差し込む陽射しがまるであなたの元気を引き立てるかのように、温かく迎えてくれます。大きな窓からは、緑豊かな公園や街の喧騒が見渡せ、時折聞こえる子どもたちの笑い声や風の音が、心を解きほぐしてくれます。これがザ・パークハビオ明大前 1003の特権です。ここに住まうことで、あなたの日常がまるで映画のワンシーンのように、心に残る瞬間に満ち溢れることでしょう。
この美しい空間は、デザイナーズ物件としての洗練されたデザインが施されています。優雅に流れるようなラインに、シンプルながらも高級感あふれるインテリアが調和し、まるで心地よい風に包まれるかのような感覚をもたらします。あなたが訪れるたびに、まるで新たな発見があるような、そんなワクワク感が生まれることでしょう。
そして、ザ・パークハビオ明大前 1003には、あなたの生活をより豊かにするためのさまざまな設備が整っています。TVモニターホンが設置されていることで、訪問者を安全に確認でき、エレベーターやオートロックも完備されているため、安心感をもたらします。宅配ボックスがあることで、忙しい毎日の中でも、大切な荷物を安心して受け取ることができ、時間を有効に使うことができます。
ここでは、生活のすべてが便利で快適に設計されています。休日には、バイク置場に愛車を停めて、近くの公園でのピクニックや、美味しいカフェ巡りが楽しめます。東京の喧騒を逃れ、静かなひとときを過ごすことができる、そんな贅沢な環境が整っています。
ザ・パークハビオ明大前 1003は、生活がまるで絵画のように、豊かな色彩に包まれる場所です。入居することで、あなたの日常が特別なものに変わる瞬間が待っています。歴史深い世田谷区のこの地で、あなた自身の物語を紡いでみませんか。あなたの新しい生活が、ここから始まるのです。
バイブルスコア
バイブルスコア: 24.2
平均的なスコアです。
※バイブルスコア詳細はこちら
バイブルスコアとは独自のAI機械学習技術を利用した物件評価システムで、物件のおすすめ度を示します。最高得点は100点で、スコアが高いほど、よりおすすめの物件と評価されています。
写真
現在写真が登録されていません契約条件
| 賃料 | 予想金額:118,000〜138,000円程度 | 管理費 | 予想金額:8,000〜12,000円程度 |
| 礼金 | 非公開(アーカイブ) | 敷金 | 非公開(アーカイブ) |
| フリーレント | 1.0ヶ月 | 平米数 | 26.07㎡ |
| 間取り | 1R | 大型収納 | WIC |
| 契約期間 |
| 方角 | |
| 更新料 | 契約形態 | 普通賃貸借契約 | |
| 取引態様 | 媒介 | 内見状況 | 入居中 |
| 入居時期 | 入居中 | SOHO・事務所 | 事務所(SOHO)可 |
| ペット | ペット可 | 間取り内訳 | Room=8.2J |
| キャンペーン情報・備考 | 本情報は賃料改定交渉の資料作成、収益物件の利回り試算、周辺エリアや最寄り駅の坪単価分析、次回募集開始時期の予測などにご活用いただけます。 | ||
※「どの不動産に頼めばいいのか分からない」「信頼できる営業マンの話を聞きたい」「一番親切な会社と契約したい」とお悩みの方におすすめなのが「高級賃貸バイブル」です。
高級賃貸バイブルは業界10年以上の熟練スタッフ群がお客様ファーストで対応します。
下記ボタンから、まずは無料でご相談下さい。
※内覧をご希望の際には、どうぞ物件のエントランス前にてお待ち合わせくださいませ。ご内覧後は、同じ場所でお別れとさせていただきます。お客様のご都合に合わせたスムーズなご案内を心がけておりますので、ご質問等がございましたら何なりとお申し付けください。 物件概要
| 物件名 |
| 築年月 |
|
|---|---|---|---|
| 所在地 | |||
| 交通 | |||
| 総戸数 |
| 総階数 |
|
| 構造 |
| ||
地図
物件までの道のりは、「拡大地図を表示」をクリックしてナビ機能をご利用ください。
部屋設備



















建物設備

TVモニターホン

エレベーター

オートロック

バイク置場

宅配ボックス

敷地内ゴミ置場

管理人

駐車場平置き

駐輪場
ザ・パークハビオ明大前の現在募集中のお部屋
- ザ・パークハビオ明大前 1102 - 間取り: 1DK - 賃料: 15.7万円
