
| 賃料 | 予想金額:113,000〜133,000円程度 | 管理費 | 予想金額:8,000〜12,000円程度 |
| 礼金/敷金 | 非公開(アーカイブ) | 平米数 | 25.93㎡ |
| 初期費用概算(参考) | 目安:281,940〜381,940 円 | みなし賃料(月額・参考) | 127,353〜147,353 円 |
| 備考 | 本ページは過去募集のアーカイブです。表示の金額は周辺相場・過去募集を踏まえた参考レンジであり、実際の契約金額・条件ではありません。 | ||
※上記みなし賃料(月額)は仲介手数料割引・無料&キャッシュバックを加味した高級賃貸バイブル限定の金額です。一般的なみなし賃料とは異なります。
【建物ページ】ザ・パークハビオ明大前の詳細・最新空室はこちら▶▶選ばれる理由
仲介手数料無料・キャンペーン情報(毎月15名様限定)
〇引っ越しお祝い金27060円プレゼント(キャッシュバック)
〇仲介手数料無料キャンペーン
ザ・パークハビオ明大前 704の口コミ・レビュー
ザ・パークハビオ明大前 704。この一行から始まる物語は、あなたに無限の可能性を秘めた空間を提供します。世田谷区松原という歴史と文化が交差する場所に位置し、趣深い街並みの中で、明大前駅からわずか徒歩3分という恵まれた立地に佇むこの物件は、贅沢な生活の始まりを予感させます。
お部屋に足を踏み入れると、広がるのは25.93㎡の洗練された空間。まるで高級なキャンバスが目の前に広がるかのように、黒と白の…ザ・パークハビオ明大前 704。この一行から始まる物語は、あなたに無限の可能性を秘めた空間を提供します。世田谷区松原という歴史と文化が交差する場所に位置し、趣深い街並みの中で、明大前駅からわずか徒歩3分という恵まれた立地に佇むこの物件は、贅沢な生活の始まりを予感させます。
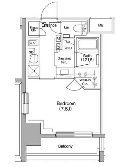
お部屋に足を踏み入れると、広がるのは25.93㎡の洗練された空間。まるで高級なキャンバスが目の前に広がるかのように、黒と白のコントラストが美しいインテリアが、あなたの感性を揺さぶります。広々としたRoomは7.6帖。シンプルでありながら、どこか特別な、まるでアートギャラリーのような佇まいです。柔らかな光が窓から注ぎ込むと、あなたの心も自然とほぐれ、まるで映画のワンシーンに迷い込んだかのような感覚に包まれます。
ザ・パークハビオ明大前 704の魅力は、そのデザイン性だけではありません。ここには、日常生活を豊かにするための様々な設備が整っています。TVモニターホンは、訪れる人々とのコミュニケーションをスムーズにし、オートロックの安心感が、あなたのプライベートをしっかりと守ります。エレベーターや宅配ボックス、駐輪場、バイク置場といった便利な設備は、まさに現代のライフスタイルを反映しており、忙しい日常の中での小さなストレスを軽減してくれます。
ある日の朝、あなたがこのお部屋で目覚めると、窓の外には緑豊かな街並みが広がっています。新鮮な空気を吸い込みつつ、香ばしいコーヒーの香りがキッチンから漂い、手作りの朝食をテーブルに置く瞬間、心に余裕が生まれます。そんな日々の中で、文化やアートへの探求も絶えないでしょう。近隣には、世田谷文学館や様々なギャラリーが点在し、芸術に触れることで感性の幅が広がります。友人を招待して、ザ・パークハビオ明大前 704の美しい空間に囲まれながら、心温まる会話を楽しむ夜もまた、格別なものになることでしょう。
夕暮れ時、照明が灯る中で過ごすひとときは、まるで映画のエンディングクレジットが流れるかのようです。全てが調和した空間、心の余裕、そして日々の生活が色鮮やかに描かれる様は、他では味わえない特別な体験です。ザ・パークハビオ明大前 704、あなたの新しい物語の舞台がここにあります。ここでの生活が、あなたの人生にどれほどの彩りを加えることでしょうか。選ばれた方にしか味わえないこの特権に、今すぐ足を運んでみてはいかがでしょうか。あなたの日常が、きっと映画の一幕のように変わることでしょう。
お部屋に足を踏み入れると、広がるのは25.93㎡の洗練された空間。まるで高級なキャンバスが目の前に広がるかのように、黒と白の…ザ・パークハビオ明大前 704。この一行から始まる物語は、あなたに無限の可能性を秘めた空間を提供します。世田谷区松原という歴史と文化が交差する場所に位置し、趣深い街並みの中で、明大前駅からわずか徒歩3分という恵まれた立地に佇むこの物件は、贅沢な生活の始まりを予感させます。
お部屋に足を踏み入れると、広がるのは25.93㎡の洗練された空間。まるで高級なキャンバスが目の前に広がるかのように、黒と白のコントラストが美しいインテリアが、あなたの感性を揺さぶります。広々としたRoomは7.6帖。シンプルでありながら、どこか特別な、まるでアートギャラリーのような佇まいです。柔らかな光が窓から注ぎ込むと、あなたの心も自然とほぐれ、まるで映画のワンシーンに迷い込んだかのような感覚に包まれます。
ザ・パークハビオ明大前 704の魅力は、そのデザイン性だけではありません。ここには、日常生活を豊かにするための様々な設備が整っています。TVモニターホンは、訪れる人々とのコミュニケーションをスムーズにし、オートロックの安心感が、あなたのプライベートをしっかりと守ります。エレベーターや宅配ボックス、駐輪場、バイク置場といった便利な設備は、まさに現代のライフスタイルを反映しており、忙しい日常の中での小さなストレスを軽減してくれます。
ある日の朝、あなたがこのお部屋で目覚めると、窓の外には緑豊かな街並みが広がっています。新鮮な空気を吸い込みつつ、香ばしいコーヒーの香りがキッチンから漂い、手作りの朝食をテーブルに置く瞬間、心に余裕が生まれます。そんな日々の中で、文化やアートへの探求も絶えないでしょう。近隣には、世田谷文学館や様々なギャラリーが点在し、芸術に触れることで感性の幅が広がります。友人を招待して、ザ・パークハビオ明大前 704の美しい空間に囲まれながら、心温まる会話を楽しむ夜もまた、格別なものになることでしょう。
夕暮れ時、照明が灯る中で過ごすひとときは、まるで映画のエンディングクレジットが流れるかのようです。全てが調和した空間、心の余裕、そして日々の生活が色鮮やかに描かれる様は、他では味わえない特別な体験です。ザ・パークハビオ明大前 704、あなたの新しい物語の舞台がここにあります。ここでの生活が、あなたの人生にどれほどの彩りを加えることでしょうか。選ばれた方にしか味わえないこの特権に、今すぐ足を運んでみてはいかがでしょうか。あなたの日常が、きっと映画の一幕のように変わることでしょう。
バイブルスコア
バイブルスコア: 30.2
平均的なスコアです。
※バイブルスコア詳細はこちら
バイブルスコアとは独自のAI機械学習技術を利用した物件評価システムで、物件のおすすめ度を示します。最高得点は100点で、スコアが高いほど、よりおすすめの物件と評価されています。
写真
現在写真が登録されていません契約条件
| 賃料 | 予想金額:113,000〜133,000円程度 | 管理費 | 予想金額:8,000〜12,000円程度 |
| 礼金 | 非公開(アーカイブ) | 敷金 | 非公開(アーカイブ) |
| フリーレント | なし | 平米数 | 25.93㎡ |
| 間取り | 1K | 大型収納 | WIC |
| 契約期間 |
| 方角 | |
| 更新料 | 契約形態 | 普通賃貸借契約 | |
| 取引態様 | 媒介 | 内見状況 | 入居中 |
| 入居時期 | 入居中 | SOHO・事務所 | 事務所(SOHO)可 |
| ペット | ペット可 | 間取り内訳 | Room=7.6J |
| キャンペーン情報・備考 | 本情報は賃料改定交渉の資料作成、収益物件の利回り試算、周辺エリアや最寄り駅の坪単価分析、次回募集開始時期の予測などにご活用いただけます。 | ||
※「どの不動産に頼めばいいのか分からない」「信頼できる営業マンの話を聞きたい」「一番親切な会社と契約したい」とお悩みの方におすすめなのが「高級賃貸バイブル」です。
高級賃貸バイブルは業界10年以上の熟練スタッフ群がお客様ファーストで対応します。
下記ボタンから、まずは無料でご相談下さい。
※内覧をご希望の際には、どうぞ物件のエントランス前にてお待ち合わせくださいませ。ご内覧後は、同じ場所でお別れとさせていただきます。お客様のご都合に合わせたスムーズなご案内を心がけておりますので、ご質問等がございましたら何なりとお申し付けください。 物件概要
| 物件名 |
| 築年月 |
|
|---|---|---|---|
| 所在地 | |||
| 交通 | |||
| 総戸数 |
| 総階数 |
|
| 構造 |
| ||
地図
物件までの道のりは、「拡大地図を表示」をクリックしてナビ機能をご利用ください。
部屋設備


















建物設備

TVモニターホン

エレベーター

オートロック

バイク置場

宅配ボックス

敷地内ゴミ置場

管理人

駐車場平置き

駐輪場
ザ・パークハビオ明大前の現在募集中のお部屋
- ザ・パークハビオ明大前 1102 - 間取り: 1DK - 賃料: 15.7万円
