
| 賃料 | 予想金額:119,000〜139,000円程度 | 管理費 | 予想金額:8,000〜12,000円程度 |
| 礼金/敷金 | 非公開(アーカイブ) | 平米数 | 25.93㎡ |
| 初期費用概算(参考) | 目安:541,000〜641,000 円 | みなし賃料(月額・参考) | 138,625〜158,625 円 |
| 備考 | 本ページは過去募集のアーカイブです。表示の金額は周辺相場・過去募集を踏まえた参考レンジであり、実際の契約金額・条件ではありません。 | ||
※上記みなし賃料(月額)は仲介手数料割引・無料&キャッシュバックを加味した高級賃貸バイブル限定の金額です。一般的なみなし賃料とは異なります。
【建物ページ】ザ・パークハビオ明大前の詳細・最新空室はこちら▶▶選ばれる理由
仲介手数料無料・キャンペーン情報(毎月15名様限定)
〇仲介手数料割引キャンペーン
ザ・パークハビオ明大前 1004の口コミ・レビュー
ザ・パークハビオ明大前 1004。ここはただの住まいではありません。この物件は、心地よい北風が香る世田谷の松原にあり、洗練されたデザインと充実した設備が融合した、まるで一篇の詩のような居所です。明大前駅から徒歩3分の距離に位置するその場所は、都会の喧騒から少しだけ離れたオアシス。生活のすべてが優雅に、滑らかに流れる瞬間を、あなたにお届けします。
扉を開けると、異世界へ踏み込む感覚が広がります。広…ザ・パークハビオ明大前 1004。ここはただの住まいではありません。この物件は、心地よい北風が香る世田谷の松原にあり、洗練されたデザインと充実した設備が融合した、まるで一篇の詩のような居所です。明大前駅から徒歩3分の距離に位置するその場所は、都会の喧騒から少しだけ離れたオアシス。生活のすべてが優雅に、滑らかに流れる瞬間を、あなたにお届けします。
扉を開けると、異世界へ踏み込む感覚が広がります。広々とした洋室7.6帖には、優しい自然光が降り注ぎ、まるで新しい一日を迎えるための舞台装置が整えられているかのようです。そこに佇むあなたは、心の奥底から湧き上がる創造性を感じることでしょう。お好きな本を手に取り、そのページをめくる音が穏やかに耳をくすぐり、心地よい静けさに包まれた空間で、想いを馳せる時間を過ごすのです。
ザ・パークハビオ明大前 1004は、デザイナーズ物件らしく、洗練された美しいラインと機能美を持っています。オートロックの安心感に包まれ、エレベーターで優雅に上がれば、あなたのプライベートな空間が広がる。バイク置場や駐輪場も完備されており、日常の移動が格段に快適になります。管理人が常駐し、敷地内ゴミ置場が整っているので、暮らしの細やかな部分も優雅にサポートしてくれることでしょう。
甘い花の香りが漂う春の日には、バルコニーでコーヒーを淹れ、周りの緑に囲まれる贅沢を楽しむ。夕暮れ時、静けさに包まれた街並みが柔らかいオレンジ色に染まる中で、あなたの心に温かい感情が満ちていきます。そんな瞬間に、あなたはこの物件、ザ・パークハビオ明大前 1004が、ただの住まいではなく、心の拠り所であることを実感するでしょう。
さらに、この地には歴史と文化が息づいています。近隣には、アートギャラリーや隠れた名店が点在し、散策するたびに新しい発見が待っていることでしょう。そのたびに、あなたの五感は刺激され、日常生活の中に小さな冒険が織り込まれていくのです。
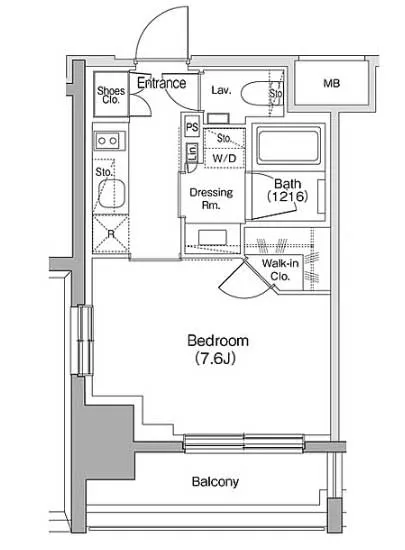
25.93㎡の専有面積は、豊かな生活の可能性を秘めた空間。心地よい家具を配置すれば、まるで映画のワンシーンのような生活が実現します。心が満たされる時、手のひらから伝わる感覚が、あなたの心を解きほぐし、甘美なひとときを提供してくれることでしょう。
このザ・パークハビオ明大前 1004で、あなたの人生の新たな章を刻んでみてはいかがでしょうか。静寂の中に華やかさを秘めたこの場所は、きっとあなたの心に響く特別な住まいとなることでしょう。夢に描いた日常が、ここには確かに存在しています。どの瞬間も特別で、何気ない暮らしが美しいストーリーに変わる、そんな素晴らしい体験を、あなたにお届けします。
扉を開けると、異世界へ踏み込む感覚が広がります。広…ザ・パークハビオ明大前 1004。ここはただの住まいではありません。この物件は、心地よい北風が香る世田谷の松原にあり、洗練されたデザインと充実した設備が融合した、まるで一篇の詩のような居所です。明大前駅から徒歩3分の距離に位置するその場所は、都会の喧騒から少しだけ離れたオアシス。生活のすべてが優雅に、滑らかに流れる瞬間を、あなたにお届けします。
扉を開けると、異世界へ踏み込む感覚が広がります。広々とした洋室7.6帖には、優しい自然光が降り注ぎ、まるで新しい一日を迎えるための舞台装置が整えられているかのようです。そこに佇むあなたは、心の奥底から湧き上がる創造性を感じることでしょう。お好きな本を手に取り、そのページをめくる音が穏やかに耳をくすぐり、心地よい静けさに包まれた空間で、想いを馳せる時間を過ごすのです。
ザ・パークハビオ明大前 1004は、デザイナーズ物件らしく、洗練された美しいラインと機能美を持っています。オートロックの安心感に包まれ、エレベーターで優雅に上がれば、あなたのプライベートな空間が広がる。バイク置場や駐輪場も完備されており、日常の移動が格段に快適になります。管理人が常駐し、敷地内ゴミ置場が整っているので、暮らしの細やかな部分も優雅にサポートしてくれることでしょう。
甘い花の香りが漂う春の日には、バルコニーでコーヒーを淹れ、周りの緑に囲まれる贅沢を楽しむ。夕暮れ時、静けさに包まれた街並みが柔らかいオレンジ色に染まる中で、あなたの心に温かい感情が満ちていきます。そんな瞬間に、あなたはこの物件、ザ・パークハビオ明大前 1004が、ただの住まいではなく、心の拠り所であることを実感するでしょう。
さらに、この地には歴史と文化が息づいています。近隣には、アートギャラリーや隠れた名店が点在し、散策するたびに新しい発見が待っていることでしょう。そのたびに、あなたの五感は刺激され、日常生活の中に小さな冒険が織り込まれていくのです。
25.93㎡の専有面積は、豊かな生活の可能性を秘めた空間。心地よい家具を配置すれば、まるで映画のワンシーンのような生活が実現します。心が満たされる時、手のひらから伝わる感覚が、あなたの心を解きほぐし、甘美なひとときを提供してくれることでしょう。
このザ・パークハビオ明大前 1004で、あなたの人生の新たな章を刻んでみてはいかがでしょうか。静寂の中に華やかさを秘めたこの場所は、きっとあなたの心に響く特別な住まいとなることでしょう。夢に描いた日常が、ここには確かに存在しています。どの瞬間も特別で、何気ない暮らしが美しいストーリーに変わる、そんな素晴らしい体験を、あなたにお届けします。
バイブルスコア
バイブルスコア: 44.3
条件のいい物件です、引っ越しが2か月以内の場合は仮申し込みを検討すべき物件です。
※バイブルスコア詳細はこちら
バイブルスコアとは独自のAI機械学習技術を利用した物件評価システムで、物件のおすすめ度を示します。最高得点は100点で、スコアが高いほど、よりおすすめの物件と評価されています。
写真
現在写真が登録されていません契約条件
| 賃料 | 予想金額:119,000〜139,000円程度 | 管理費 | 予想金額:8,000〜12,000円程度 |
| 礼金 | 非公開(アーカイブ) | 敷金 | 非公開(アーカイブ) |
| フリーレント | なし | 平米数 | 25.93㎡ |
| 間取り | 1K+WIC | 大型収納 | WIC |
| 契約期間 | 2年 | 方角 | 北 |
| 更新料 | 1ヶ月 | 契約形態 | 普通賃貸借契約 |
| 取引態様 | 媒介 | 内見状況 | 入居中 |
| 入居時期 | 入居中 | SOHO・事務所 | 可 SOHO可 敷金1ヶ月積み増し |
| ペット | 可 小型犬または猫2匹(敷金1ヶ月積み増し) | 間取り内訳 | 洋室7.6帖 |
| キャンペーン情報・備考 | 本情報は賃料改定交渉の資料作成、収益物件の利回り試算、周辺エリアや最寄り駅の坪単価分析、次回募集開始時期の予測などにご活用いただけます。 | ||
※「どの不動産に頼めばいいのか分からない」「信頼できる営業マンの話を聞きたい」「一番親切な会社と契約したい」とお悩みの方におすすめなのが「高級賃貸バイブル」です。
高級賃貸バイブルは業界10年以上の熟練スタッフ群がお客様ファーストで対応します。
下記ボタンから、まずは無料でご相談下さい。
※内覧をご希望の際には、どうぞ物件のエントランス前にてお待ち合わせくださいませ。ご内覧後は、同じ場所でお別れとさせていただきます。お客様のご都合に合わせたスムーズなご案内を心がけておりますので、ご質問等がございましたら何なりとお申し付けください。 物件概要
| 物件名 |
| 築年月 |
|
|---|---|---|---|
| 所在地 | |||
| 交通 | |||
| 総戸数 |
| 総階数 |
|
| 構造 |
| ||
地図
物件までの道のりは、「拡大地図を表示」をクリックしてナビ機能をご利用ください。
部屋設備












建物設備

TVモニターホン

エレベーター

オートロック

バイク置場

宅配ボックス

敷地内ゴミ置場

管理人

駐車場平置き

駐輪場
ザ・パークハビオ明大前の現在募集中のお部屋
- ザ・パークハビオ明大前 1102 - 間取り: 1DK - 賃料: 15.7万円
