
| 賃料 | 予想金額:145,000〜165,000円程度 | 管理費 | 予想金額:8,000〜12,000円程度 |
| 礼金/敷金 | 非公開(アーカイブ) | 平米数 | 28.86㎡ |
| 初期費用概算(参考) | 目安:354,900〜454,900 円 | みなし賃料(月額・参考) | 160,206〜180,206 円 |
| 備考 | 本ページは過去募集のアーカイブです。表示の金額は周辺相場・過去募集を踏まえた参考レンジであり、実際の契約金額・条件ではありません。 | ||
※上記みなし賃料(月額)は仲介手数料割引・無料&キャッシュバックを加味した高級賃貸バイブル限定の金額です。一般的なみなし賃料とは異なります。
【建物ページ】ザ・パークハビオ明大前の詳細・最新空室はこちら▶▶選ばれる理由
仲介手数料無料・キャンペーン情報(毎月15名様限定)
〇引っ越しお祝い金34100円プレゼント(キャッシュバック)
〇仲介手数料無料キャンペーン
ザ・パークハビオ明大前 1202の口コミ・レビュー
ザ・パークハビオ明大前 1202。あなたを待ち受けるこの高雅な空間は、まるで夢の中の一ページをめくるような、そんな感覚を与えてくれます。東京都世田谷区松原に佇むこの美しい物件は、最寄りの京王井の頭線明大前駅から徒歩わずか3分の距離にあり、まさに都会の喧騒から少し離れた静けさの中に、エレガンスを秘めています。
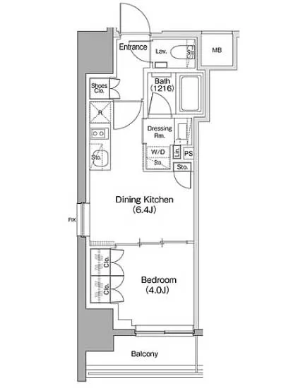
この1DK(DK=6.4帖、BR=4帖)という間取りは、あなたに穏やかな生活空間を提供し…ザ・パークハビオ明大前 1202。あなたを待ち受けるこの高雅な空間は、まるで夢の中の一ページをめくるような、そんな感覚を与えてくれます。東京都世田谷区松原に佇むこの美しい物件は、最寄りの京王井の頭線明大前駅から徒歩わずか3分の距離にあり、まさに都会の喧騒から少し離れた静けさの中に、エレガンスを秘めています。
この1DK(DK=6.4帖、BR=4帖)という間取りは、あなたに穏やかな生活空間を提供します。一歩足を踏み入れれば、柔らかな光が窓を通り抜け、ゆったりとした時の流れを感じることができるでしょう。あなたの生活の一部となるこの住まいは、まるで親しい友人のように、包み込むような安らぎを与えてくれるのです。
ザ・パークハビオ明大前 1202には、デザイナーズの魅力が随所に散りばめられています。あなたが日々を過ごすその空間は、シンプルでありながらも、どこか特別な美しさを持っています。手触りの心地よい素材感や、洗練されたデザインが融合し、五感すべてを刺激する感覚をもたらします。この空間では、毎日の料理も特別な儀式に変わります。心地良いキッチンで、香ばしい香りが漂う瞬間、一口味わうたびに喜びがふくらむことでしょう。
また、周囲には文化と歴史の香りが漂っています。明大前の街並みは、古き良き時代の面影を残しつつも、現代のアートやカフェ、ブティックが溶け込み、新たな息吹を感じさせます。ここで出会う人々や出来事は、まるで映画のワンシーンのようなドラマをはらんでいます。都会の喧騒を聞きながら、あなた自身の物語を紡いでいくことでしょう。そして、毎晩のように、星の瞬きとともにあなたの生活を見守るザ・パークハビオ明大前 1202に、感謝の気持ちを抱くのです。
さらに、敷地内には便利な設備が整っています。オートロックや管理人の存在が、安心感を提供し、また宅配ボックスや駐輪場が、忙しいあなたの日常を快適にサポートします。生活することに特別な価値を見出せるこの空間は、ただの住居で終わることはありません。あなたの心の故郷となり、人生の重要な瞬間を共に刻むパートナーとなるでしょう。
ザ・パークハビオ明大前 1202は、まるであなたの人生を豊かに彩るために存在するかのようです。その静かな佇まいには、無限の可能性が秘められています。これからの日々が、映画のように美しく、また忘れがたいものになることを、あなた自身がこの場所で実現するのです。あなたの物語は、ここから始まります。
この1DK(DK=6.4帖、BR=4帖)という間取りは、あなたに穏やかな生活空間を提供し…ザ・パークハビオ明大前 1202。あなたを待ち受けるこの高雅な空間は、まるで夢の中の一ページをめくるような、そんな感覚を与えてくれます。東京都世田谷区松原に佇むこの美しい物件は、最寄りの京王井の頭線明大前駅から徒歩わずか3分の距離にあり、まさに都会の喧騒から少し離れた静けさの中に、エレガンスを秘めています。
この1DK(DK=6.4帖、BR=4帖)という間取りは、あなたに穏やかな生活空間を提供します。一歩足を踏み入れれば、柔らかな光が窓を通り抜け、ゆったりとした時の流れを感じることができるでしょう。あなたの生活の一部となるこの住まいは、まるで親しい友人のように、包み込むような安らぎを与えてくれるのです。
ザ・パークハビオ明大前 1202には、デザイナーズの魅力が随所に散りばめられています。あなたが日々を過ごすその空間は、シンプルでありながらも、どこか特別な美しさを持っています。手触りの心地よい素材感や、洗練されたデザインが融合し、五感すべてを刺激する感覚をもたらします。この空間では、毎日の料理も特別な儀式に変わります。心地良いキッチンで、香ばしい香りが漂う瞬間、一口味わうたびに喜びがふくらむことでしょう。
また、周囲には文化と歴史の香りが漂っています。明大前の街並みは、古き良き時代の面影を残しつつも、現代のアートやカフェ、ブティックが溶け込み、新たな息吹を感じさせます。ここで出会う人々や出来事は、まるで映画のワンシーンのようなドラマをはらんでいます。都会の喧騒を聞きながら、あなた自身の物語を紡いでいくことでしょう。そして、毎晩のように、星の瞬きとともにあなたの生活を見守るザ・パークハビオ明大前 1202に、感謝の気持ちを抱くのです。
さらに、敷地内には便利な設備が整っています。オートロックや管理人の存在が、安心感を提供し、また宅配ボックスや駐輪場が、忙しいあなたの日常を快適にサポートします。生活することに特別な価値を見出せるこの空間は、ただの住居で終わることはありません。あなたの心の故郷となり、人生の重要な瞬間を共に刻むパートナーとなるでしょう。
ザ・パークハビオ明大前 1202は、まるであなたの人生を豊かに彩るために存在するかのようです。その静かな佇まいには、無限の可能性が秘められています。これからの日々が、映画のように美しく、また忘れがたいものになることを、あなた自身がこの場所で実現するのです。あなたの物語は、ここから始まります。
バイブルスコア
バイブルスコア: 14.9
高級な物件でない場合は割高な物件です。。
※バイブルスコア詳細はこちら
バイブルスコアとは独自のAI機械学習技術を利用した物件評価システムで、物件のおすすめ度を示します。最高得点は100点で、スコアが高いほど、よりおすすめの物件と評価されています。
写真
現在写真が登録されていません契約条件
| 賃料 | 予想金額:145,000〜165,000円程度 | 管理費 | 予想金額:8,000〜12,000円程度 |
| 礼金 | 非公開(アーカイブ) | 敷金 | 非公開(アーカイブ) |
| フリーレント | なし | 平米数 | 28.86㎡ |
| 間取り | 1DK | 大型収納 | |
| 契約期間 |
| 方角 | |
| 更新料 | 契約形態 | 普通賃貸借契約 | |
| 取引態様 | 媒介 | 内見状況 | 入居中 |
| 入居時期 | 入居中 | SOHO・事務所 | 事務所(SOHO)可 |
| ペット | ペット可 | 間取り内訳 | DK=6.4J / BR=4J |
| キャンペーン情報・備考 | 本情報は賃料改定交渉の資料作成、収益物件の利回り試算、周辺エリアや最寄り駅の坪単価分析、次回募集開始時期の予測などにご活用いただけます。 | ||
※「どの不動産に頼めばいいのか分からない」「信頼できる営業マンの話を聞きたい」「一番親切な会社と契約したい」とお悩みの方におすすめなのが「高級賃貸バイブル」です。
高級賃貸バイブルは業界10年以上の熟練スタッフ群がお客様ファーストで対応します。
下記ボタンから、まずは無料でご相談下さい。
※内覧をご希望の際には、どうぞ物件のエントランス前にてお待ち合わせくださいませ。ご内覧後は、同じ場所でお別れとさせていただきます。お客様のご都合に合わせたスムーズなご案内を心がけておりますので、ご質問等がございましたら何なりとお申し付けください。 物件概要
| 物件名 |
| 築年月 |
|
|---|---|---|---|
| 所在地 | |||
| 交通 | |||
| 総戸数 |
| 総階数 |
|
| 構造 |
| ||
地図
物件までの道のりは、「拡大地図を表示」をクリックしてナビ機能をご利用ください。
部屋設備

















建物設備

TVモニターホン

エレベーター

オートロック

バイク置場

宅配ボックス

敷地内ゴミ置場

管理人

駐車場平置き

駐輪場
ザ・パークハビオ明大前の現在募集中のお部屋
- ザ・パークハビオ明大前 1102 - 間取り: 1DK - 賃料: 15.7万円
