
| 賃料 | 予想金額:424,000〜444,000円程度 | 管理費 | 予想金額:0〜2,000円程度 |
| 礼金/敷金 | 非公開(アーカイブ) | 平米数 | 69.83㎡ |
| 初期費用概算(参考) | 目安:1,126,500〜1,226,500 円 | みなし賃料(月額・参考) | 448,510〜468,510 円 |
| 備考 | 本ページは過去募集のアーカイブです。表示の金額は周辺相場・過去募集を踏まえた参考レンジであり、実際の契約金額・条件ではありません。 | ||
※上記みなし賃料(月額)は仲介手数料割引・無料&キャッシュバックを加味した高級賃貸バイブル限定の金額です。一般的なみなし賃料とは異なります。
【建物ページ】プライムガーデン西麻布の詳細・最新空室はこちら▶▶選ばれる理由
仲介手数料無料・キャンペーン情報(毎月15名様限定)
〇フリーレント1か月キャンペーン
プライムガーデン西麻布 1001の口コミ・レビュー
プライムガーデン西麻布 1001。ここは、ただの住空間ではなく、まるで夢の中の世界から現実に引きずり出されたかのような、特別な場所です。南東の方角から、柔らかな陽光が差し込み、朝の光が静かに踊るようにリビングに入ります。「おかえりなさい」と優しく迎え入れてくれるのは、空間そのもの。あなたの心をほぐし、安らぎをもたらしてくれるのです。
この物件は、まるで洗練されたアート作品のように、ひとつひとつの…プライムガーデン西麻布 1001。ここは、ただの住空間ではなく、まるで夢の中の世界から現実に引きずり出されたかのような、特別な場所です。南東の方角から、柔らかな陽光が差し込み、朝の光が静かに踊るようにリビングに入ります。「おかえりなさい」と優しく迎え入れてくれるのは、空間そのもの。あなたの心をほぐし、安らぎをもたらしてくれるのです。
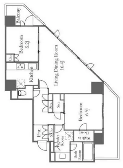
この物件は、まるで洗練されたアート作品のように、ひとつひとつのディテールに心が込められています。専有面積69.83㎡の中に広がるのは、全ての人にとっての安息地。2LDKの間取りの中で、リビングダイニングは16.4帖の広々とした空間を誇り、家族や友人と過ごすひとときを彩ります。そこで響く会話や笑い声は、まるで映画のワンシーンのように美しい音楽となって、心に残ることでしょう。
プライムガーデン西麻布 1001のキッチンには、夢見るシェフとしての自分が目を覚ます瞬間があります。調理器具の音がキッチンに響き渡り、香ばしい香りが漂う中、心躍る料理を作り上げる楽しみが待っています。6.5帖の主寝室は、まるであなたを包み込む大きな羽のように、穏やかな安らぎを与えてくれます。静かな夜に耳を澄ませば、遠くから聞こえる街のざわめきが、心の中で優しい子守唄のように響きます。
5.2帖の洋室も、あなたの想像力を刺激する無限の可能性を秘めています。書斎として、趣味の部屋として、あるいはゲストルームとして、様々なスタイルに変幻自在です。ここで過ごす時間は、いつでも特別な瞬間に変わることでしょう。
周囲に広がる歴史と文化、そして美術館のような街、西麻布。この地に住むことは、まるで芸術作品の中に身を置いているかのような感覚をもたらします。散策すると、静かな並木道や魅惑的なカフェの香りに包まれ、心が徐々に解放されていくのを感じることでしょう。乃木坂駅から徒歩9分の距離は、日常の喧騒から少し離れた静寂を約束します。
プライムガーデン西麻布 1001は、単なる住まいではなく、あなたの人生の物語を紡ぐ舞台です。ここでの生活は、日々の喜びや発見で満たされ、そのすべてが色鮮やかなキャンバスに描かれていきます。私たちが打ち出す日々の風景は、まるで人生の名作映画のように、心を打つ美しいシーンを織り成すことでしょう。さあ、あなたもこの素晴らしい物件に足を踏み入れ、特別な時間を楽しんでみませんか。
この物件は、まるで洗練されたアート作品のように、ひとつひとつの…プライムガーデン西麻布 1001。ここは、ただの住空間ではなく、まるで夢の中の世界から現実に引きずり出されたかのような、特別な場所です。南東の方角から、柔らかな陽光が差し込み、朝の光が静かに踊るようにリビングに入ります。「おかえりなさい」と優しく迎え入れてくれるのは、空間そのもの。あなたの心をほぐし、安らぎをもたらしてくれるのです。
この物件は、まるで洗練されたアート作品のように、ひとつひとつのディテールに心が込められています。専有面積69.83㎡の中に広がるのは、全ての人にとっての安息地。2LDKの間取りの中で、リビングダイニングは16.4帖の広々とした空間を誇り、家族や友人と過ごすひとときを彩ります。そこで響く会話や笑い声は、まるで映画のワンシーンのように美しい音楽となって、心に残ることでしょう。
プライムガーデン西麻布 1001のキッチンには、夢見るシェフとしての自分が目を覚ます瞬間があります。調理器具の音がキッチンに響き渡り、香ばしい香りが漂う中、心躍る料理を作り上げる楽しみが待っています。6.5帖の主寝室は、まるであなたを包み込む大きな羽のように、穏やかな安らぎを与えてくれます。静かな夜に耳を澄ませば、遠くから聞こえる街のざわめきが、心の中で優しい子守唄のように響きます。
5.2帖の洋室も、あなたの想像力を刺激する無限の可能性を秘めています。書斎として、趣味の部屋として、あるいはゲストルームとして、様々なスタイルに変幻自在です。ここで過ごす時間は、いつでも特別な瞬間に変わることでしょう。
周囲に広がる歴史と文化、そして美術館のような街、西麻布。この地に住むことは、まるで芸術作品の中に身を置いているかのような感覚をもたらします。散策すると、静かな並木道や魅惑的なカフェの香りに包まれ、心が徐々に解放されていくのを感じることでしょう。乃木坂駅から徒歩9分の距離は、日常の喧騒から少し離れた静寂を約束します。
プライムガーデン西麻布 1001は、単なる住まいではなく、あなたの人生の物語を紡ぐ舞台です。ここでの生活は、日々の喜びや発見で満たされ、そのすべてが色鮮やかなキャンバスに描かれていきます。私たちが打ち出す日々の風景は、まるで人生の名作映画のように、心を打つ美しいシーンを織り成すことでしょう。さあ、あなたもこの素晴らしい物件に足を踏み入れ、特別な時間を楽しんでみませんか。
バイブルスコア
バイブルスコア: 22.4
平均的なスコアです。
※バイブルスコア詳細はこちら
バイブルスコアとは独自のAI機械学習技術を利用した物件評価システムで、物件のおすすめ度を示します。最高得点は100点で、スコアが高いほど、よりおすすめの物件と評価されています。
写真
契約条件
| 賃料 | 予想金額:424,000〜444,000円程度 | 管理費 | 予想金額:0〜2,000円程度 |
| 礼金 | 非公開(アーカイブ) | 敷金 | 非公開(アーカイブ) |
| フリーレント | 1.0ヶ月 | 平米数 | 69.83㎡ |
| 間取り | 2LDK | 大型収納 | WIC |
| 契約期間 |
| 方角 | 南東 |
| 更新料 | 契約形態 | 普通賃貸借契約 | |
| 取引態様 | 媒介 | 内見状況 | 入居中 |
| 入居時期 | 入居中 | SOHO・事務所 | |
| ペット | ペット可 | 間取り内訳 | LD=16.4J / K / BR=6.5J / BR=5.2J |
| キャンペーン情報・備考 | 本情報は賃料改定交渉の資料作成、収益物件の利回り試算、周辺エリアや最寄り駅の坪単価分析、次回募集開始時期の予測などにご活用いただけます。 | ||
※「どの不動産に頼めばいいのか分からない」「信頼できる営業マンの話を聞きたい」「一番親切な会社と契約したい」とお悩みの方におすすめなのが「高級賃貸バイブル」です。
高級賃貸バイブルは業界10年以上の熟練スタッフ群がお客様ファーストで対応します。
下記ボタンから、まずは無料でご相談下さい。
※内覧をご希望の際には、どうぞ物件のエントランス前にてお待ち合わせくださいませ。ご内覧後は、同じ場所でお別れとさせていただきます。お客様のご都合に合わせたスムーズなご案内を心がけておりますので、ご質問等がございましたら何なりとお申し付けください。 物件概要
| 物件名 |
| 築年月 |
|
|---|---|---|---|
| 所在地 | |||
| 交通 | |||
| 総戸数 |
| 総階数 |
|
| 構造 |
| ||
地図
物件までの道のりは、「拡大地図を表示」をクリックしてナビ機能をご利用ください。
部屋設備




















建物設備

24時間管理

TVモニターホン

エレベーター

オートロック

宅配ボックス

敷地内ゴミ置場

管理人

駐車場平置き

駐車場機械式

駐輪場
プライムガーデン西麻布の現在募集中のお部屋
- No rooms found for this property.




















