
| 賃料 | 予想金額:381,000〜401,000円程度 | 管理費 | 予想金額:0〜2,000円程度 |
| 礼金/敷金 | 非公開(アーカイブ) | 平米数 | 67.26㎡ |
| 初期費用概算(参考) | 目安:1,410,000〜1,510,000 円 | みなし賃料(月額・参考) | 403,271〜423,271 円 |
| 備考 | 本ページは過去募集のアーカイブです。表示の金額は周辺相場・過去募集を踏まえた参考レンジであり、実際の契約金額・条件ではありません。 | ||
※上記みなし賃料(月額)は仲介手数料割引・無料&キャッシュバックを加味した高級賃貸バイブル限定の金額です。一般的なみなし賃料とは異なります。
【建物ページ】プライムガーデン西麻布の詳細・最新空室はこちら▶▶選ばれる理由
仲介手数料無料・キャンペーン情報(毎月15名様限定)
〇仲介手数料割引キャンペーン
プライムガーデン西麻布 504の口コミ・レビュー
プライムガーデン西麻布 504。この名は、単なる住宅を超えた、贅沢な生活の舞台であることを物語っています。東京都港区西麻布の閑静な地に佇むこの物件は、まるで洗練された芸術品のように、周囲の文化や歴史を背景に、美しいストーリーを織り成しています。
504号室のドアを開けるその瞬間、あなたはまるで映画の主人公になったかのような気分に包まれることでしょう。広々とした15.5帖のリビングダイニングは、柔…プライムガーデン西麻布 504。この名は、単なる住宅を超えた、贅沢な生活の舞台であることを物語っています。東京都港区西麻布の閑静な地に佇むこの物件は、まるで洗練された芸術品のように、周囲の文化や歴史を背景に、美しいストーリーを織り成しています。
504号室のドアを開けるその瞬間、あなたはまるで映画の主人公になったかのような気分に包まれることでしょう。広々とした15.5帖のリビングダイニングは、柔らかな自然光が差し込み、朝の目覚めを優しく迎え入れます。窓の外を見やれば、四季折々の風景があなたの心を満たし、優雅な生活のシナリオが始まるのです。特別な毎日を紡ぐための舞台であり、真のくつろぎを感じさせてくれる空間です。
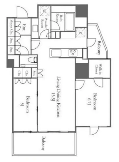
プライムガーデン西麻布の2LDKの間取りは、生活の多様性を存分に発揮してくれる設計になっています。6.7帖のベッドルームでは、夜の静けさの中、心地よい眠りに浸ることができ、目覚めた時には新しい一日への期待感があふれます。5帖のセカンドルームは、趣味の部屋や書斎としても最適で、あなたの創造性を煽る場所となることでしょう。
この物件には、24時間の管理体制が整い、あなたを常に安全に守ります。オートロックやTVモニターホンの完備は、安心で特別な暮らしをサポートし、まるで自らの城のような存在感を放っています。また、宅配ボックスや駐輪場など、生活をより豊かにしてくれる設備が揃っているため、日々の忙しさから解放され、心穏やかな生活を手に入れることができるのです。
何気ない日常生活の中にも、プライムガーデン西麻布 504の魅力は潜んでいます。朝食に香ばしいトーストと淹れたてのコーヒー。そして、リビングで本を開くと、ページをめくる音が静かな朝の空気に溶け込んでいくでしょう。友人を招いてのディナーでは、美味しい料理とともに、豊かな会話が生まれ、笑い声が響くことでしょう。この場所は、あなたの人生の大切な瞬間を彩る舞台なのです。
更に、周囲の歴史と文化は、あなたの生活に上質なエッセンスを添えてくれます。乃木坂駅まで徒歩9分という絶好の立地は、アートやエンターテインメントに溢れ、心を豊かにする体験が目の前に広がっています。美術館やギャラリー、洗練されたレストランなど、まさに高級な生活を楽しむための宝の山が待ち受けています。
プライムガーデン西麻布 504は、ただの住まいではありません。それは、あなたの人生のシーンをより美しく、豊かにする舞台なのです。ここでの生活が、一生の思い出に残る特別なストーリーとして描かれていくことを、心から願っています。あなたの新しい日常が、この場所で始まることを、心よりお待ちしております。
504号室のドアを開けるその瞬間、あなたはまるで映画の主人公になったかのような気分に包まれることでしょう。広々とした15.5帖のリビングダイニングは、柔…プライムガーデン西麻布 504。この名は、単なる住宅を超えた、贅沢な生活の舞台であることを物語っています。東京都港区西麻布の閑静な地に佇むこの物件は、まるで洗練された芸術品のように、周囲の文化や歴史を背景に、美しいストーリーを織り成しています。
504号室のドアを開けるその瞬間、あなたはまるで映画の主人公になったかのような気分に包まれることでしょう。広々とした15.5帖のリビングダイニングは、柔らかな自然光が差し込み、朝の目覚めを優しく迎え入れます。窓の外を見やれば、四季折々の風景があなたの心を満たし、優雅な生活のシナリオが始まるのです。特別な毎日を紡ぐための舞台であり、真のくつろぎを感じさせてくれる空間です。
プライムガーデン西麻布の2LDKの間取りは、生活の多様性を存分に発揮してくれる設計になっています。6.7帖のベッドルームでは、夜の静けさの中、心地よい眠りに浸ることができ、目覚めた時には新しい一日への期待感があふれます。5帖のセカンドルームは、趣味の部屋や書斎としても最適で、あなたの創造性を煽る場所となることでしょう。
この物件には、24時間の管理体制が整い、あなたを常に安全に守ります。オートロックやTVモニターホンの完備は、安心で特別な暮らしをサポートし、まるで自らの城のような存在感を放っています。また、宅配ボックスや駐輪場など、生活をより豊かにしてくれる設備が揃っているため、日々の忙しさから解放され、心穏やかな生活を手に入れることができるのです。
何気ない日常生活の中にも、プライムガーデン西麻布 504の魅力は潜んでいます。朝食に香ばしいトーストと淹れたてのコーヒー。そして、リビングで本を開くと、ページをめくる音が静かな朝の空気に溶け込んでいくでしょう。友人を招いてのディナーでは、美味しい料理とともに、豊かな会話が生まれ、笑い声が響くことでしょう。この場所は、あなたの人生の大切な瞬間を彩る舞台なのです。
更に、周囲の歴史と文化は、あなたの生活に上質なエッセンスを添えてくれます。乃木坂駅まで徒歩9分という絶好の立地は、アートやエンターテインメントに溢れ、心を豊かにする体験が目の前に広がっています。美術館やギャラリー、洗練されたレストランなど、まさに高級な生活を楽しむための宝の山が待ち受けています。
プライムガーデン西麻布 504は、ただの住まいではありません。それは、あなたの人生のシーンをより美しく、豊かにする舞台なのです。ここでの生活が、一生の思い出に残る特別なストーリーとして描かれていくことを、心から願っています。あなたの新しい日常が、この場所で始まることを、心よりお待ちしております。
バイブルスコア
バイブルスコア: 27.7
平均的なスコアです。
※バイブルスコア詳細はこちら
バイブルスコアとは独自のAI機械学習技術を利用した物件評価システムで、物件のおすすめ度を示します。最高得点は100点で、スコアが高いほど、よりおすすめの物件と評価されています。
写真
契約条件
| 賃料 | 予想金額:381,000〜401,000円程度 | 管理費 | 予想金額:0〜2,000円程度 |
| 礼金 | 非公開(アーカイブ) | 敷金 | 非公開(アーカイブ) |
| フリーレント | なし | 平米数 | 67.26㎡ |
| 間取り | 2LDK | 大型収納 | WIC |
| 契約期間 |
| 方角 | 東 |
| 更新料 | 契約形態 | 普通賃貸借契約 | |
| 取引態様 | 媒介 | 内見状況 | 入居中 |
| 入居時期 | 入居中 | SOHO・事務所 | |
| ペット | ペット可 | 間取り内訳 | LDK=15.5J / BR=6.7J / BR=5J |
| キャンペーン情報・備考 | 本情報は賃料改定交渉の資料作成、収益物件の利回り試算、周辺エリアや最寄り駅の坪単価分析、次回募集開始時期の予測などにご活用いただけます。 | ||
※「どの不動産に頼めばいいのか分からない」「信頼できる営業マンの話を聞きたい」「一番親切な会社と契約したい」とお悩みの方におすすめなのが「高級賃貸バイブル」です。
高級賃貸バイブルは業界10年以上の熟練スタッフ群がお客様ファーストで対応します。
下記ボタンから、まずは無料でご相談下さい。
※内覧をご希望の際には、どうぞ物件のエントランス前にてお待ち合わせくださいませ。ご内覧後は、同じ場所でお別れとさせていただきます。お客様のご都合に合わせたスムーズなご案内を心がけておりますので、ご質問等がございましたら何なりとお申し付けください。 物件概要
| 物件名 |
| 築年月 |
|
|---|---|---|---|
| 所在地 | |||
| 交通 | |||
| 総戸数 |
| 総階数 |
|
| 構造 |
| ||
地図
物件までの道のりは、「拡大地図を表示」をクリックしてナビ機能をご利用ください。
部屋設備



















建物設備

24時間管理

TVモニターホン

エレベーター

オートロック

宅配ボックス

敷地内ゴミ置場

管理人

駐車場平置き

駐車場機械式

駐輪場
プライムガーデン西麻布の現在募集中のお部屋
- No rooms found for this property.




















