
| 賃料 | 予想金額:450,000〜470,000円程度 | 管理費 | 予想金額:0〜2,000円程度 |
| 礼金/敷金 | 非公開(アーカイブ) | 平米数 | 69.83㎡ |
| 初期費用概算(参考) | 目安:115,300〜215,300 円 | みなし賃料(月額・参考) | 453,444〜473,444 円 |
| 備考 | 本ページは過去募集のアーカイブです。表示の金額は周辺相場・過去募集を踏まえた参考レンジであり、実際の契約金額・条件ではありません。 | ||
※上記みなし賃料(月額)は仲介手数料割引・無料&キャッシュバックを加味した高級賃貸バイブル限定の金額です。一般的なみなし賃料とは異なります。
【建物ページ】プライムガーデン西麻布の詳細・最新空室はこちら▶▶選ばれる理由
仲介手数料無料・キャンペーン情報(毎月15名様限定)
〇引っ越しお祝い金1021200円プレゼント(キャッシュバック)
〇フリーレント1か月キャンペーン
〇仲介手数料無料キャンペーン
プライムガーデン西麻布 701の口コミ・レビュー
プライムガーデン西麻布 701は、まるで都会のオアシスのように、東京の心臓部に静かに佇んでいます。この美しい物件の701号室は、あなたを新たな生活の舞台へと誘います。南東への窓から差し込む光は、朝の柔らかい日差しを浴びた新鮮なデザインを引き立て、あなたの生活に希望の色彩を添えてくれることでしょう。
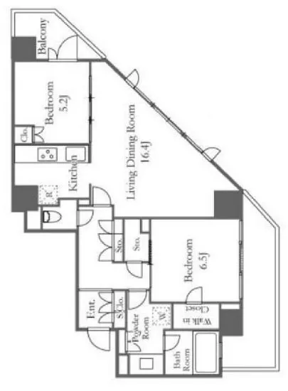
専有面積69.83㎡のこの空間は、2LDKという贅沢な間取りで、LDは16.4帖、キッチン、そして…プライムガーデン西麻布 701は、まるで都会のオアシスのように、東京の心臓部に静かに佇んでいます。この美しい物件の701号室は、あなたを新たな生活の舞台へと誘います。南東への窓から差し込む光は、朝の柔らかい日差しを浴びた新鮮なデザインを引き立て、あなたの生活に希望の色彩を添えてくれることでしょう。
専有面積69.83㎡のこの空間は、2LDKという贅沢な間取りで、LDは16.4帖、キッチン、そして2つの寝室がそれぞれ6.5帖と5.2帖です。この広さは、あなた自身の個性を表現できるキャンバスです。朝、軽やかな音楽を流しながら朝食の準備をするキッチンの香りが、優雅な生活の始まりを告げます。視覚的な美しさだけでなく、聴覚や嗅覚、触覚をも刺激する空間づくりが可能です。
プライムガーデン西麻布 701は、そのデザイナーズ性が際立ち、まるで高級ブランドのコレクションの一部のようです。エレベーターを待つ間、あなたは心の中でこの家が語りかけているのを感じるでしょう。「この空間で、あなたはどんな物語を紡ぎたいの?」と。24時間管理された安心の暮らし、オートロックでの安全性、TVモニターホンによるセキュリティ、そして宅配ボックスを完備した便利さが、あなたの日常を一層優雅にしています。
この701号室の窓から望む景色は、東京の街を包み込む美しい光景です。静かな西麻布の通りが持つ歴史や文化、そしてそこに息づくアートに触れることで、感受性が高まることでしょう。乃木坂駅から徒歩9分という距離も、あなたの新しい冒険の始まりです。毎日の通勤が、まるで特別な旅のように感じられるでしょう。
プライムガーデン西麻布 701は、ただの住まいではありません。まるで詩のような生活が織りなす場所です。「ここでの生活はあなたの人生の一部になる」と、この家はその温もりと共に語りかけてきます。お友達を招いてのホームパーティや、リラックスできる映画鑑賞のひととき、または静かに本を読む午後の時間、すべてがこの空間で実現できるのです。
時が静かに流れるこの場所で、あなたは自身の物語を描き続けることができるでしょう。プライムガーデン西麻布 701は、ただの住まいという名の舞台で、あなたの生活を豊かにするシナリオの始まりを、優しく迎え入れてくれるでしょう。あなたの新しい人生の物語が、ここから始まります。
専有面積69.83㎡のこの空間は、2LDKという贅沢な間取りで、LDは16.4帖、キッチン、そして…プライムガーデン西麻布 701は、まるで都会のオアシスのように、東京の心臓部に静かに佇んでいます。この美しい物件の701号室は、あなたを新たな生活の舞台へと誘います。南東への窓から差し込む光は、朝の柔らかい日差しを浴びた新鮮なデザインを引き立て、あなたの生活に希望の色彩を添えてくれることでしょう。
専有面積69.83㎡のこの空間は、2LDKという贅沢な間取りで、LDは16.4帖、キッチン、そして2つの寝室がそれぞれ6.5帖と5.2帖です。この広さは、あなた自身の個性を表現できるキャンバスです。朝、軽やかな音楽を流しながら朝食の準備をするキッチンの香りが、優雅な生活の始まりを告げます。視覚的な美しさだけでなく、聴覚や嗅覚、触覚をも刺激する空間づくりが可能です。
プライムガーデン西麻布 701は、そのデザイナーズ性が際立ち、まるで高級ブランドのコレクションの一部のようです。エレベーターを待つ間、あなたは心の中でこの家が語りかけているのを感じるでしょう。「この空間で、あなたはどんな物語を紡ぎたいの?」と。24時間管理された安心の暮らし、オートロックでの安全性、TVモニターホンによるセキュリティ、そして宅配ボックスを完備した便利さが、あなたの日常を一層優雅にしています。
この701号室の窓から望む景色は、東京の街を包み込む美しい光景です。静かな西麻布の通りが持つ歴史や文化、そしてそこに息づくアートに触れることで、感受性が高まることでしょう。乃木坂駅から徒歩9分という距離も、あなたの新しい冒険の始まりです。毎日の通勤が、まるで特別な旅のように感じられるでしょう。
プライムガーデン西麻布 701は、ただの住まいではありません。まるで詩のような生活が織りなす場所です。「ここでの生活はあなたの人生の一部になる」と、この家はその温もりと共に語りかけてきます。お友達を招いてのホームパーティや、リラックスできる映画鑑賞のひととき、または静かに本を読む午後の時間、すべてがこの空間で実現できるのです。
時が静かに流れるこの場所で、あなたは自身の物語を描き続けることができるでしょう。プライムガーデン西麻布 701は、ただの住まいという名の舞台で、あなたの生活を豊かにするシナリオの始まりを、優しく迎え入れてくれるでしょう。あなたの新しい人生の物語が、ここから始まります。
バイブルスコア
バイブルスコア: 32.4
平均的なスコアです。
※バイブルスコア詳細はこちら
バイブルスコアとは独自のAI機械学習技術を利用した物件評価システムで、物件のおすすめ度を示します。最高得点は100点で、スコアが高いほど、よりおすすめの物件と評価されています。
写真
契約条件
| 賃料 | 予想金額:450,000〜470,000円程度 | 管理費 | 予想金額:0〜2,000円程度 |
| 礼金 | 非公開(アーカイブ) | 敷金 | 非公開(アーカイブ) |
| フリーレント | 1ヶ月 | 平米数 | 69.83㎡ |
| 間取り | 2LDK | 大型収納 | WIC |
| 契約期間 | 2年 | 方角 | 南東 |
| 更新料 | 1ヶ月 | 契約形態 | 普通賃貸借契約 |
| 取引態様 | 媒介 | 内見状況 | 入居中 |
| 入居時期 | 入居中 | SOHO・事務所 | 不可 |
| ペット | ペット可 | 間取り内訳 | LD=16.4J / K / BR=6.5J / BR=5.2J |
| キャンペーン情報・備考 | 本情報は賃料改定交渉の資料作成、収益物件の利回り試算、周辺エリアや最寄り駅の坪単価分析、次回募集開始時期の予測などにご活用いただけます。 | ||
※「どの不動産に頼めばいいのか分からない」「信頼できる営業マンの話を聞きたい」「一番親切な会社と契約したい」とお悩みの方におすすめなのが「高級賃貸バイブル」です。
高級賃貸バイブルは業界10年以上の熟練スタッフ群がお客様ファーストで対応します。
下記ボタンから、まずは無料でご相談下さい。
※内覧をご希望の際には、どうぞ物件のエントランス前にてお待ち合わせくださいませ。ご内覧後は、同じ場所でお別れとさせていただきます。お客様のご都合に合わせたスムーズなご案内を心がけておりますので、ご質問等がございましたら何なりとお申し付けください。 物件概要
| 物件名 |
| 築年月 |
|
|---|---|---|---|
| 所在地 | |||
| 交通 | |||
| 総戸数 |
| 総階数 |
|
| 構造 |
| ||
地図
物件までの道のりは、「拡大地図を表示」をクリックしてナビ機能をご利用ください。
部屋設備




















建物設備

24時間管理

TVモニターホン

エレベーター

オートロック

宅配ボックス

敷地内ゴミ置場

管理人

駐車場平置き

駐車場機械式

駐輪場
プライムガーデン西麻布の現在募集中のお部屋
- No rooms found for this property.




















