
| 賃料 | 予想金額:130,000〜150,000円程度 | 管理費 | 予想金額:8,000〜12,000円程度 |
| 礼金/敷金 | 非公開(アーカイブ) | 平米数 | 31.71㎡ |
| 初期費用概算(参考) | 目安:113,500〜213,500 円 | みなし賃料(月額・参考) | 140,490〜160,490 円 |
| 備考 | 本ページは過去募集のアーカイブです。表示の金額は周辺相場・過去募集を踏まえた参考レンジであり、実際の契約金額・条件ではありません。 | ||
※上記みなし賃料(月額)は仲介手数料割引・無料&キャッシュバックを加味した高級賃貸バイブル限定の金額です。一般的なみなし賃料とは異なります。
【建物ページ】CREAL上野の詳細・最新空室はこちら▶▶選ばれる理由
仲介手数料無料・キャンペーン情報(毎月15名様限定)
〇引っ越しお祝い金98000円プレゼント(キャッシュバック)
〇仲介手数料無料キャンペーン
CREAL上野 502の口コミ・レビュー
CREAL上野 502は、まるで独自の宇宙を持つかのように、あなたを豊かな生活へと誘う空間です。東京都台東区松が谷2-9-2、南向きのこの物件は、日々の喧騒を忘れさせてくれる、静謐なオアシスとしての顔を持っています。ここに住み始めることは、まるで新たな物語の主人公になること。美しい街並みと歴史に囲まれたこの地で、あなたのライフスタイルは新たな次元に進化することでしょう。
502号室のドアを開ける…CREAL上野 502は、まるで独自の宇宙を持つかのように、あなたを豊かな生活へと誘う空間です。東京都台東区松が谷2-9-2、南向きのこの物件は、日々の喧騒を忘れさせてくれる、静謐なオアシスとしての顔を持っています。ここに住み始めることは、まるで新たな物語の主人公になること。美しい街並みと歴史に囲まれたこの地で、あなたのライフスタイルは新たな次元に進化することでしょう。
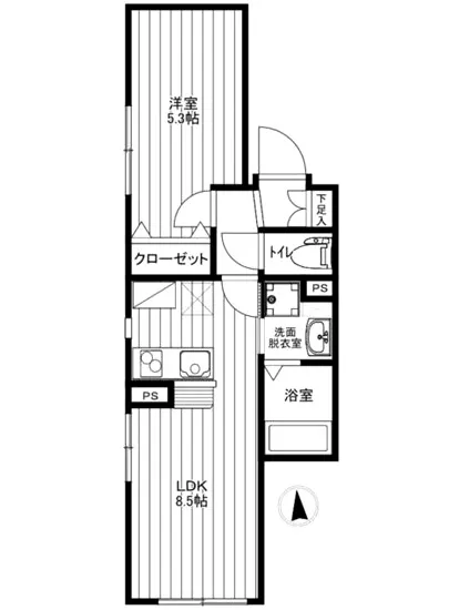
502号室のドアを開けると、まずあなたを迎えてくれるのは、心地良い光が溢れるリビングダイニングキッチン、LDK8.5帖の広さがもたらす、開放感ある空間です。朝日が優しく差し込み、目覚めの瞬間を特別なものにしてくれるでしょう。美しい朝焼けを眺めながら、手にした温かなコーヒーの香りが漂う中、あなたの1日のスタートが期待に満ちたものとなります。そして、訪れるたびに変わる光の表情は、日々の生活に彩りを添え、まるで自然のアートのように感じられるでしょう。
さらに、この物件の魅力はただの美しさだけではありません。洋室5.3帖は、理想の隠れ家として、あなたの夢やアイデアを育む場所となります。静かな夜、心地よい布団に包まれ、優しい月明かりが窓から差し込むと、まるで月の精霊があなたの夢に寄り添っているかのようです。ここでの安らぎが、次の日のあなたを力強く支えてくれることでしょう。
CREAL上野 502の存在は、また生活の利便性にも大きく寄与します。東京メトロ銀座線 田原町駅まで徒歩わずか7分。都市の中心へとアクセスしながらも、暮らす場所は静寂に包まれています。周囲には、伝統と文化が息づく台東区の魅力が広がっており、アート、歴史、そして美しいものが共存する空間で、心を豊かにする時間を享受できるのです。
この物件には、オートロックやTVモニターホンなどの最新設備が整っており、安心感も抜群です。エレベーターでスムーズにアプローチし、宅配ボックスも完備されているため、忙しい日常の中でも自由な時間を確保できます。また、敷地内のゴミ置場は、清潔感を保ち、環境への配慮も忘れないベルベットのような潤いを与えています。
CREAL上野 502での生活は、まるで映画のワンシーンのように、あなたの感性を磨き、心に残る瞬間を提供してくれます。洗練された空間で過ごすうちに、子供の頃に夢見た「お城」に住むような特別な感覚を味わうことができるでしょう。あなたの日常が、色鮮やかに変貌していく様を、ここでの生活が描いてくれるのです。さあ、新たな物語を、このCREAL上野 502で始めてみませんか。
502号室のドアを開ける…CREAL上野 502は、まるで独自の宇宙を持つかのように、あなたを豊かな生活へと誘う空間です。東京都台東区松が谷2-9-2、南向きのこの物件は、日々の喧騒を忘れさせてくれる、静謐なオアシスとしての顔を持っています。ここに住み始めることは、まるで新たな物語の主人公になること。美しい街並みと歴史に囲まれたこの地で、あなたのライフスタイルは新たな次元に進化することでしょう。
502号室のドアを開けると、まずあなたを迎えてくれるのは、心地良い光が溢れるリビングダイニングキッチン、LDK8.5帖の広さがもたらす、開放感ある空間です。朝日が優しく差し込み、目覚めの瞬間を特別なものにしてくれるでしょう。美しい朝焼けを眺めながら、手にした温かなコーヒーの香りが漂う中、あなたの1日のスタートが期待に満ちたものとなります。そして、訪れるたびに変わる光の表情は、日々の生活に彩りを添え、まるで自然のアートのように感じられるでしょう。
さらに、この物件の魅力はただの美しさだけではありません。洋室5.3帖は、理想の隠れ家として、あなたの夢やアイデアを育む場所となります。静かな夜、心地よい布団に包まれ、優しい月明かりが窓から差し込むと、まるで月の精霊があなたの夢に寄り添っているかのようです。ここでの安らぎが、次の日のあなたを力強く支えてくれることでしょう。
CREAL上野 502の存在は、また生活の利便性にも大きく寄与します。東京メトロ銀座線 田原町駅まで徒歩わずか7分。都市の中心へとアクセスしながらも、暮らす場所は静寂に包まれています。周囲には、伝統と文化が息づく台東区の魅力が広がっており、アート、歴史、そして美しいものが共存する空間で、心を豊かにする時間を享受できるのです。
この物件には、オートロックやTVモニターホンなどの最新設備が整っており、安心感も抜群です。エレベーターでスムーズにアプローチし、宅配ボックスも完備されているため、忙しい日常の中でも自由な時間を確保できます。また、敷地内のゴミ置場は、清潔感を保ち、環境への配慮も忘れないベルベットのような潤いを与えています。
CREAL上野 502での生活は、まるで映画のワンシーンのように、あなたの感性を磨き、心に残る瞬間を提供してくれます。洗練された空間で過ごすうちに、子供の頃に夢見た「お城」に住むような特別な感覚を味わうことができるでしょう。あなたの日常が、色鮮やかに変貌していく様を、ここでの生活が描いてくれるのです。さあ、新たな物語を、このCREAL上野 502で始めてみませんか。
バイブルスコア
バイブルスコア: 31.5
平均的なスコアです。
※バイブルスコア詳細はこちら
バイブルスコアとは独自のAI機械学習技術を利用した物件評価システムで、物件のおすすめ度を示します。最高得点は100点で、スコアが高いほど、よりおすすめの物件と評価されています。
写真
現在写真が登録されていません契約条件
| 賃料 | 予想金額:130,000〜150,000円程度 | 管理費 | 予想金額:8,000〜12,000円程度 |
| 礼金 | 非公開(アーカイブ) | 敷金 | 非公開(アーカイブ) |
| フリーレント | なし | 平米数 | 31.71㎡ |
| 間取り | 1LDK | 大型収納 | なし |
| 契約期間 | 2年 | 方角 | 南 |
| 更新料 | 1ヶ月 | 契約形態 | 普通賃貸借契約 |
| 取引態様 | 媒介 | 内見状況 | 入居中 |
| 入居時期 | 入居中 | SOHO・事務所 | 不可 |
| ペット | 不可 | 間取り内訳 | 洋:5.3 LDK:8.5 |
| キャンペーン情報・備考 | 本情報は賃料改定交渉の資料作成、収益物件の利回り試算、周辺エリアや最寄り駅の坪単価分析、次回募集開始時期の予測などにご活用いただけます。 | ||
※「どの不動産に頼めばいいのか分からない」「信頼できる営業マンの話を聞きたい」「一番親切な会社と契約したい」とお悩みの方におすすめなのが「高級賃貸バイブル」です。
高級賃貸バイブルは業界10年以上の熟練スタッフ群がお客様ファーストで対応します。
下記ボタンから、まずは無料でご相談下さい。
※内覧をご希望の際には、どうぞ物件のエントランス前にてお待ち合わせくださいませ。ご内覧後は、同じ場所でお別れとさせていただきます。お客様のご都合に合わせたスムーズなご案内を心がけておりますので、ご質問等がございましたら何なりとお申し付けください。 物件概要
| 物件名 |
| 築年月 |
|
|---|---|---|---|
| 所在地 | |||
| 交通 | |||
| 総戸数 |
| 総階数 |
|
| 構造 |
| ||
地図
物件までの道のりは、「拡大地図を表示」をクリックしてナビ機能をご利用ください。
部屋設備













建物設備

TVモニターホン

エレベーター

オートロック

宅配ボックス

敷地内ゴミ置場
CREAL上野の現在募集中のお部屋
- No rooms found for this property.
