
| 賃料 | 予想金額:74,000〜94,000円程度 | 管理費 | 予想金額:13,000〜17,000円程度 |
| 礼金/敷金 | 非公開(アーカイブ) | 平米数 | 20.2㎡ |
| 初期費用概算(参考) | 目安:106,250〜206,250 円 | みなし賃料(月額・参考) | 92,755〜112,755 円 |
| 備考 | 本ページは過去募集のアーカイブです。表示の金額は周辺相場・過去募集を踏まえた参考レンジであり、実際の契約金額・条件ではありません。 | ||
※上記みなし賃料(月額)は仲介手数料割引・無料&キャッシュバックを加味した高級賃貸バイブル限定の金額です。一般的なみなし賃料とは異なります。
【建物ページ】クオリタス南大井の詳細・最新空室はこちら▶▶選ばれる理由
仲介手数料無料・キャンペーン情報(毎月15名様限定)
〇フリーレント1か月キャンペーン
クオリタス南大井 606の口コミ・レビュー
クオリタス南大井 606。あなたの新たな生活が幕を開ける場所、それがこの特別な住まいです。東京の喧騒から少し離れた品川区南大井に位置するこの物件は、まるで時代を超えて生きる芸術作品のようです。606号室が持つ20.2㎡の空間には、心を豊かにする何かが宿っています。南向きの窓からは、穏やかな陽射しが優しく差し込み、毎朝の目覚めを特別な瞬間に変えてくれます。
ここに住むことは、生活の隅々に至るまで、…クオリタス南大井 606。あなたの新たな生活が幕を開ける場所、それがこの特別な住まいです。東京の喧騒から少し離れた品川区南大井に位置するこの物件は、まるで時代を超えて生きる芸術作品のようです。606号室が持つ20.2㎡の空間には、心を豊かにする何かが宿っています。南向きの窓からは、穏やかな陽射しが優しく差し込み、毎朝の目覚めを特別な瞬間に変えてくれます。
ここに住むことは、生活の隅々に至るまで、あなた自身の物語を紡ぐことに他なりません。居心地の良さを感じさせるデザイナーズの内装は、まるであなたのために設計されたように心をつかみ、まるで自宅が個性豊かなギャラリーのように機能します。色彩豊かなアートが飾られた壁は、時間を忘れさせる夢を描き出し、あなたが求める安らぎの場となることでしょう。ゆったりとした空間の中で、あなたの好きな本を手に取り、静かにコーヒーの香りを楽しむひととき、まるで映画のワンシーンが目の前に広がるかのようです。
クオリタス南大井 606の設備は、現代の暮らしを支えるための便利さを兼ね備えています。エレベーターでスムーズに移動し、オートロックで守られた安全な空間は、自由と安心を提供します。また、忙しい日常の中で嬉しい宅配ボックスは、あなたの時間を大切にします。この住まいは、単なる居住空間ではなく、あなたの生活そのものを豊かにするための舞台なのです。
周囲には、文化と歴史が息づく町並みが広がり、京急本線の大森海岸駅からは、海の香りが漂ってきます。朝日を浴びる海岸に足を運び、潮騒を耳にしながら、心の洗濯をする時間は、ストレス社会に生きるあなたにとっての貴重な逃避行です。海岸沿いの散策道は、日々の散歩に彩りを添え、あなたの生活に小さな冒険をもたらしてくれることでしょう。
夜が訪れると、クオリタス南大井 606は、星々の輝きを背景にした独自の表情を見せます。窓の外に広がる夜空とともに、あなたの想像力が羽ばたき、物語は新たな章へと進むのです。心を揺さぶる音楽や香り、ひと口の美味しい料理が、あなたの生活に彩りを与え、この場所での時間が特別なものであることを確信させてくれます。
クオリタス南大井 606。ここはあなたの新たなスタート地点です。日々の喧騒から心を解放し、独自のストーリーを描き出す場所として、最高の舞台を提供します。この物件が待っているのは、ただの生活ではなく、人生という名の豪華な舞台の一部なのです。
ここに住むことは、生活の隅々に至るまで、…クオリタス南大井 606。あなたの新たな生活が幕を開ける場所、それがこの特別な住まいです。東京の喧騒から少し離れた品川区南大井に位置するこの物件は、まるで時代を超えて生きる芸術作品のようです。606号室が持つ20.2㎡の空間には、心を豊かにする何かが宿っています。南向きの窓からは、穏やかな陽射しが優しく差し込み、毎朝の目覚めを特別な瞬間に変えてくれます。
ここに住むことは、生活の隅々に至るまで、あなた自身の物語を紡ぐことに他なりません。居心地の良さを感じさせるデザイナーズの内装は、まるであなたのために設計されたように心をつかみ、まるで自宅が個性豊かなギャラリーのように機能します。色彩豊かなアートが飾られた壁は、時間を忘れさせる夢を描き出し、あなたが求める安らぎの場となることでしょう。ゆったりとした空間の中で、あなたの好きな本を手に取り、静かにコーヒーの香りを楽しむひととき、まるで映画のワンシーンが目の前に広がるかのようです。
クオリタス南大井 606の設備は、現代の暮らしを支えるための便利さを兼ね備えています。エレベーターでスムーズに移動し、オートロックで守られた安全な空間は、自由と安心を提供します。また、忙しい日常の中で嬉しい宅配ボックスは、あなたの時間を大切にします。この住まいは、単なる居住空間ではなく、あなたの生活そのものを豊かにするための舞台なのです。
周囲には、文化と歴史が息づく町並みが広がり、京急本線の大森海岸駅からは、海の香りが漂ってきます。朝日を浴びる海岸に足を運び、潮騒を耳にしながら、心の洗濯をする時間は、ストレス社会に生きるあなたにとっての貴重な逃避行です。海岸沿いの散策道は、日々の散歩に彩りを添え、あなたの生活に小さな冒険をもたらしてくれることでしょう。
夜が訪れると、クオリタス南大井 606は、星々の輝きを背景にした独自の表情を見せます。窓の外に広がる夜空とともに、あなたの想像力が羽ばたき、物語は新たな章へと進むのです。心を揺さぶる音楽や香り、ひと口の美味しい料理が、あなたの生活に彩りを与え、この場所での時間が特別なものであることを確信させてくれます。
クオリタス南大井 606。ここはあなたの新たなスタート地点です。日々の喧騒から心を解放し、独自のストーリーを描き出す場所として、最高の舞台を提供します。この物件が待っているのは、ただの生活ではなく、人生という名の豪華な舞台の一部なのです。
バイブルスコア
バイブルスコア: 34.5
平均的なスコアです。
※バイブルスコア詳細はこちら
バイブルスコアとは独自のAI機械学習技術を利用した物件評価システムで、物件のおすすめ度を示します。最高得点は100点で、スコアが高いほど、よりおすすめの物件と評価されています。
写真
現在写真が登録されていません契約条件
| 賃料 | 予想金額:74,000〜94,000円程度 | 管理費 | 予想金額:13,000〜17,000円程度 |
| 礼金 | 非公開(アーカイブ) | 敷金 | 非公開(アーカイブ) |
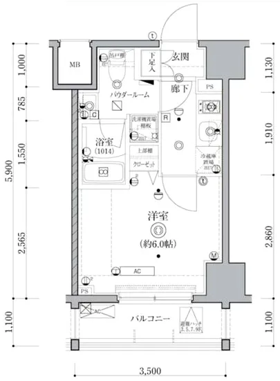
| フリーレント | 1.0ヶ月 | 平米数 | 20.2㎡ |
| 間取り | 1K | 大型収納 | |
| 契約期間 |
| 方角 | 南 |
| 更新料 | 契約形態 | 普通賃貸借契約 | |
| 取引態様 | 媒介 | 内見状況 | 入居中 |
| 入居時期 | 入居中 | SOHO・事務所 | |
| ペット | ペット可 | 間取り内訳 | 洋:6 |
| キャンペーン情報・備考 | 本情報は賃料改定交渉の資料作成、収益物件の利回り試算、周辺エリアや最寄り駅の坪単価分析、次回募集開始時期の予測などにご活用いただけます。 | ||
※「どの不動産に頼めばいいのか分からない」「信頼できる営業マンの話を聞きたい」「一番親切な会社と契約したい」とお悩みの方におすすめなのが「高級賃貸バイブル」です。
高級賃貸バイブルは業界10年以上の熟練スタッフ群がお客様ファーストで対応します。
下記ボタンから、まずは無料でご相談下さい。
※内覧をご希望の際には、どうぞ物件のエントランス前にてお待ち合わせくださいませ。ご内覧後は、同じ場所でお別れとさせていただきます。お客様のご都合に合わせたスムーズなご案内を心がけておりますので、ご質問等がございましたら何なりとお申し付けください。 物件概要
| 物件名 |
| 築年月 |
|
|---|---|---|---|
| 所在地 | |||
| 交通 | |||
| 総戸数 |
| 総階数 |
|
| 構造 |
| ||
地図
物件までの道のりは、「拡大地図を表示」をクリックしてナビ機能をご利用ください。
部屋設備














建物設備

TVモニターホン

エレベーター

オートロック

バイク置場

宅配ボックス

敷地内ゴミ置場

管理人

駐車場平置き

駐輪場
クオリタス南大井の現在募集中のお部屋
- No rooms found for this property.
